Рейтинг@Mail.ru
Переверните экран
Новостройки Квартиры Ипотека Новостройки Москвы Новостройки Подмосковья Новостройки Новой Москвы Готовые новостройки Новостройки на карте Акции от застройщиков Коммерческие помещения Продавцы и застройщики Панорамы новостроек Видеообзор новостроек Экспертиза новостроек Экология Москвы и Подмосковья Студии 1-комнатные 2-комнатные 3-комнатные Квартиры на карте Ипотечный калькулятор Семейная ипотека Военная ипотека Банки и программы Медиа Новости недвижимости Мнение эксперта Аналитика рынка Покупателю Экспертиза новостроек Эксперты и авторы О проекте Контакты Реклама на сайте Vk Youtube Telegram Дзен Машиноместа Апартаменты #траншевая ипотека #рассрочка ИТ-ипотека Квартиры со скидками до 40% Видео 360° новостроек Субсидированная застройщиком Rutube Поиск дома в Москве Программа реновации в Москве Новостройки премиум-класса Новостройки бизнес-класса Рассрочка Траншевая ипотека Дома и коттеджи Бизнес-центры Бизнес-центры в Москве Бизнес-центры рядом с метро Строящиеся бизнес-центры Бизнес-центры класса A Бизнес-центры класса B Ипотека со ставкой 0,1%
Данная квартира является лидером продаж среди трехкомнатных квартир в ЖК «Бригантина» по данным Росреестра
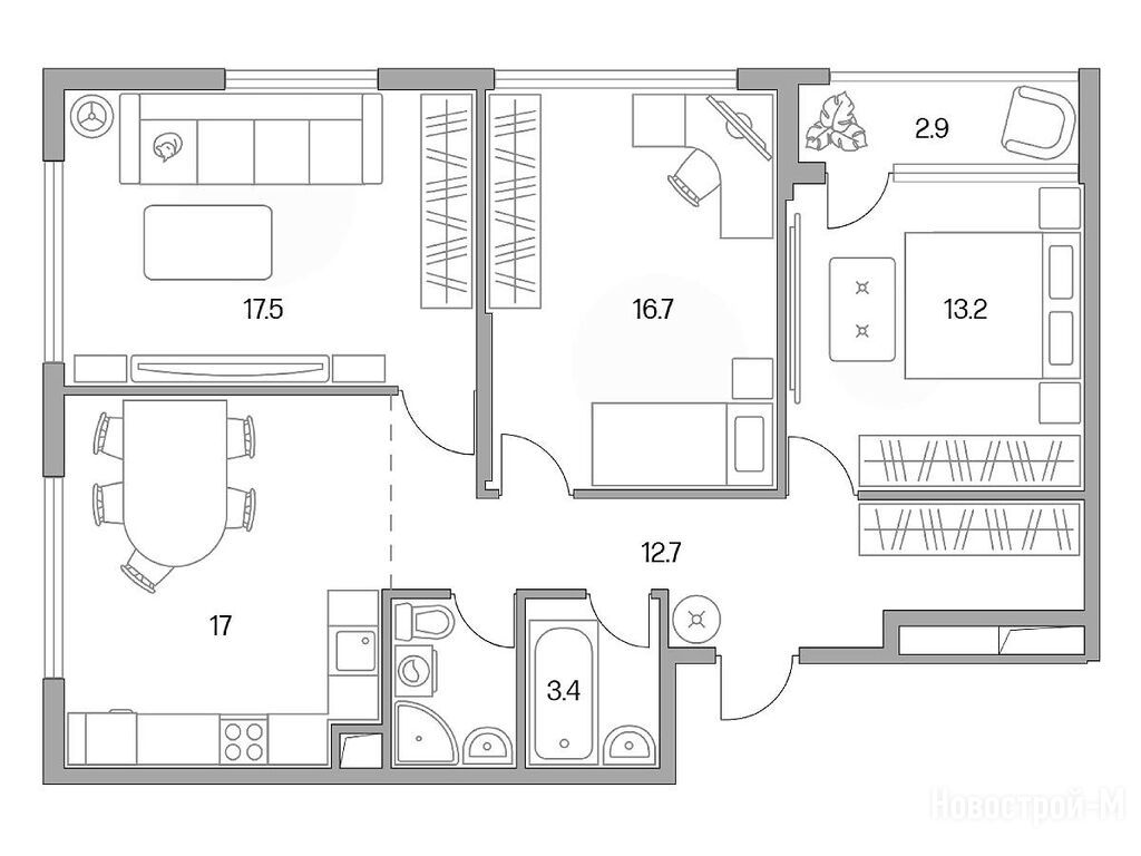
3-комн. квартира, 86.50 м2, 2 этаж
Срок сдачи 3 квартал 2026 года
23 637 555 
27 252 711
273 267 2
обновлено 1 апреля

Описание 3-комн. квартиры

Новостройка
Срок ГК
3 квартал 2026 года
Стадия строительства
Тип проекта
Общая площадь
86.50 м2
Жилая площадь
47.40 м2
Площадь кухни
17.00 м2
Этаж
2 / 23
Балкон
лоджия
Отделка
нет

Расположение 3-комн. квартиры

Метро
Станция МЦД
Дом
1
Адрес
ул. Заводская, корп. 1, секция 1

Способы покупки

Особенности

Продается трехкомнатная квартира в новостройке ЖК «Бригантина» по адресу Московская область, Долгопрудный городской округ, Долгопрудный, ул. Заводская, корп. 1. Общая площадь квартиры - 86.5 кв. м. Тип проекта, по которому построен дом — Монолит,Монолитно-кирпичный, компания-застройщик — ООО «СЗ «Гранель Инвест», ГК «Гранель». Стоимость квартиры — 23 637 555 руб. Способы оплаты можно уточнить у продавца. Срок сдачи — 3 квартал 2026. Более подробная информация по телефону.

Правовые документы

ГК «Гранель»
ГК «Гранель»
Сданных 16
|
Строящихся 17
Время работы 09:00 — 21:00
Онлайн-сделка
Выбирайте квартиру в ЖК «Бригантина» по ценам от застройщика
студия 33,20 м2 10 113 265
Этаж 8/13
МО, ЖК «Бригантина»
Водники
15 мин.
Строится
студия 33,70 м2 10 054 275
Этаж 2/13
МО, ЖК «Бригантина»
Водники
15 мин.
Строится
Посмотреть 6 квартир в ЖК «Бригантина»
1-комн. квартира 37,50 м2 11 344 741
Этаж 3/13
МО, ЖК «Бригантина»
Водники
15 мин.
Строится
1-комн. квартира 41,40 м2 11 810 757
Этаж 4/13
МО, ЖК «Бригантина»
Водники
15 мин.
Строится
1-комн. квартира 41,90 м2 11 778 258
Этаж 2/13
МО, ЖК «Бригантина»
Водники
15 мин.
Строится
1-комн. квартира 42,00 м2 11 543 029
Этаж 12/13 лоджия
МО, ЖК «Бригантина»
Водники
15 мин.
Строится
Посмотреть 10 квартир в ЖК «Бригантина»
2-комн. квартира 41,10 м2 11 381 577
Этаж 22/23
МО, ЖК «Бригантина»
Водники
15 мин.
Строится
2-комн. квартира 41,20 м2 12 399 508
Этаж 23/23
МО, ЖК «Бригантина»
Водники
15 мин.
Строится
2-комн. квартира 42,20 м2 12 259 479
Этаж 2/23
МО, ЖК «Бригантина»
Водники
15 мин.
Строится
2-комн. квартира 44,40 м2 12 689 808
Этаж 13/23
МО, ЖК «Бригантина»
Водники
15 мин.
Строится
Посмотреть 23 квартиры в ЖК «Бригантина»
3-комн. квартира 85,40 м2 24 006 282
Этаж 3/23 лоджия
МО, ЖК «Бригантина»
Водники
15 мин.
Строится
3-комн. квартира 86,60 м2 23 257 647
Этаж 3/13
МО, ЖК «Бригантина»
Водники
15 мин.
Строится
3-комн. квартира 86,80 м2 25 941 825
Этаж 23/23 лоджия
МО, ЖК «Бригантина»
Водники
15 мин.
Строится
3-комн. квартира 86,90 м2 25 426 850
Этаж 4/23 лоджия
МО, ЖК «Бригантина»
Водники
15 мин.
Строится
Посмотреть 12 квартир в ЖК «Бригантина»

Скидки и спецпредложения от застройщиков

ЖК «Бригантина» на карте

Выгодные предложения на новостройки

Отзывы о ЖК «Бригантина»

Самый полезный отзыв
ЛВ
28 августа 2018
Оценка:
Достоинства
Транспортная доступность
Двор, окружение
Недостатки
Готовность
Слушайте, ну если забыть, что это бывшая промзона, то даже близко ничто не может сравниться с крутостью выбранного места. Ежели обустроят все, как обрисовал застройщик на сайте у себя и на рекламных картинках, это ж будет невероятный, шикарный проект.
Ответить
Самый новый отзыв
СН
08 июля 2025
Оценка:
Достоинства
Транспортная доступность
Социальная инфраструктура
Планировки
Внешний вид фасада
Двор, окружение
Расположение
Застройщик предоставляет уникальную "донорскую ипотеку", которая может стать настоящим спасением. Может воспользоваться тот, у кого есть родственники с детьми до 7 лет — эта идея напоминает о взаимопомощи и поддержке семейных ценностей. Ну что сказать — в эпоху коммерции такое решение вызывает одновременно удивление и уважение. Надеюсь, будущие жильцы оценят этот щедрый жест и смогут создать здесь не только уют, но и настоящее сообщество единомышленников
Ответить

Оставить отзыв

Добавьте отзыв, заполнив личные данные, или сначала войдите на сайт, тогда информация будет автоматически взята из личного профиля.
Оценка*