Рейтинг@Mail.ru
Переверните экран
Новостройки Квартиры Ипотека Новостройки Москвы Новостройки Подмосковья Новостройки Новой Москвы Готовые новостройки Новостройки на карте Акции от застройщиков Коммерческие помещения Продавцы и застройщики Панорамы новостроек Видеообзор новостроек Экспертиза новостроек Экология Москвы и Подмосковья Студии 1-комнатные 2-комнатные 3-комнатные Квартиры на карте Ипотечный калькулятор Семейная ипотека Военная ипотека Банки и программы Медиа Новости недвижимости Мнение эксперта Аналитика рынка Покупателю Экспертиза новостроек Эксперты и авторы О проекте Контакты Реклама на сайте Vk Youtube Telegram Дзен Машиноместа Апартаменты #траншевая ипотека #рассрочка IT-ипотека Квартиры со скидками до 40% Видео 360° новостроек Субсидированная застройщиком Rutube Поиск дома в Москве Программа реновации в Москве Новостройки премиум-класса Новостройки бизнес-класса Рассрочка Траншевая ипотека ГАЛС Дома и коттеджи Бизнес-центры Бизнес-центры в Москве Бизнес-центры рядом с метро Строящиеся бизнес-центры Бизнес-центры класса A Бизнес-центры класса B ЛСР
Данная квартира является лидером продаж среди трехкомнатных квартир в ЖК «Большое Путилково» по данным Росреестра
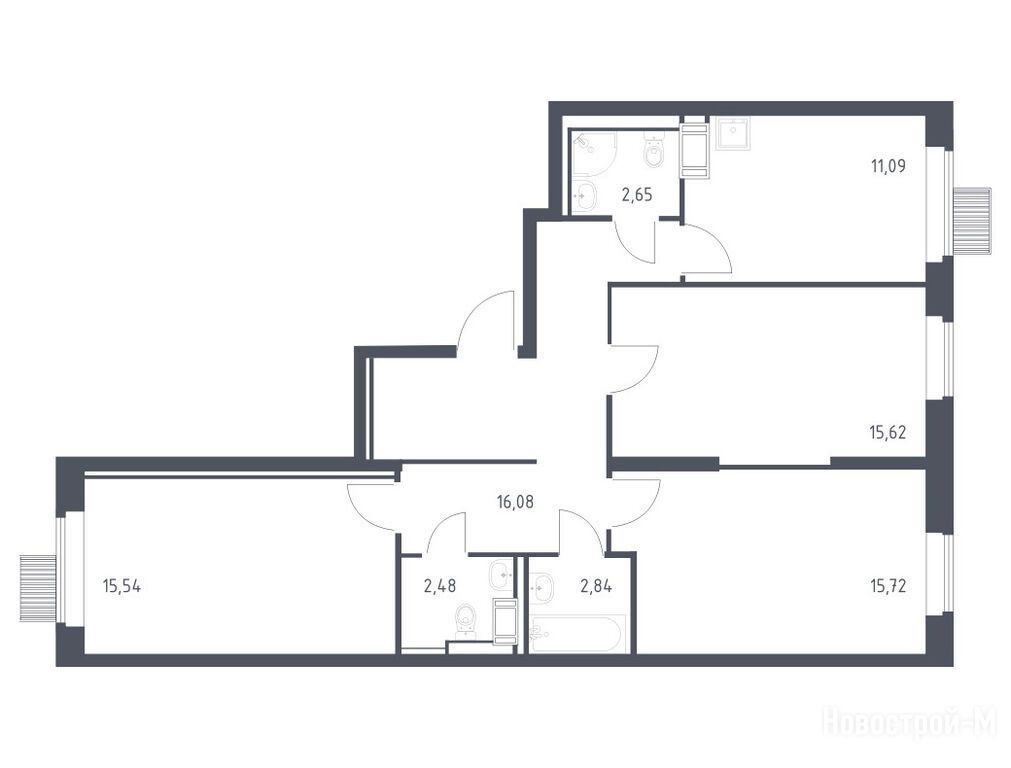
3-комн. квартира, 82.02 м2, 7 этаж
Срок сдачи 2 квартал 2026 года
18 033 819 
219 871 2
обновлено 5 декабря

Описание 3-комн. квартиры

Срок ГК
2 квартал 2026 года
Стадия строительства
отделка фасада и внутренние работы
Общая площадь
82.02 м2
Жилая площадь
46.87 м2
Площадь кухни
11.10 м2
Высота потолков
2.80
Этаж
7 / 25
Отделка
чистовая
Тип санузла
раздельный
Грузовой лифт
есть

Расположение 3-комн. квартиры

Метро
Митино
35 мин.
Станция МЦД
Дом
28
Адрес
городской округ Красногорск, вблизи д. Путилково, д. 28

Способы покупки

Особенности

Продается трехкомнатная квартира в новостройке ЖК «Большое Путилково» по адресу Московская область, Красногорск городской округ, Отрадненское С/П, Путилково деревня, городской округ Красногорск, вблизи д. Путилково, д. 28. Общая площадь квартиры - 82.02 кв. м. Тип проекта, по которому построен дом — Монолитно-кирпичный, компания-застройщик — Группа «Самолет», ООО СЗ «Самолет-Путилково». Стоимость квартиры — 18 033 819 руб. Способы оплаты можно уточнить у продавца. Срок сдачи — 2 квартал 2026. Более подробная информация по телефону.
Посмотреть все спецпредложения
студия 21,69 м2 7 359 762
Этаж 13/25
МО, ЖК «Большое Путилково»
Митино
35 мин.
Строится
студия 21,76 м2 7 980 219
Этаж 16/25
МО, ЖК «Большое Путилково»
Митино
35 мин.
Строится
студия 21,82 м2 6 756 192
Этаж 14/25
МО, ЖК «Большое Путилково»
Митино
35 мин.
Строится
студия 22,21 м2 6 861 935
Этаж 13/25
МО, ЖК «Большое Путилково»
Митино
35 мин.
Строится
Посмотреть 54 квартиры в ЖК «Большое Путилково»
1-комн. квартира 31,78 м2 8 273 732
Этаж 15/25
МО, ЖК «Большое Путилково»
Митино
35 мин.
Строится
1-комн. квартира 31,83 м2 10 467 359
Этаж 19/25
МО, ЖК «Большое Путилково»
Митино
35 мин.
Строится
1-комн. квартира 32,24 м2 11 045 198
Этаж 25/25
МО, ЖК «Большое Путилково»
Митино
35 мин.
Строится
1-комн. квартира 32,53 м2 8 620 710
Этаж 24/25
МО, ЖК «Большое Путилково»
Митино
35 мин.
Строится
Посмотреть 211 квартир в ЖК «Большое Путилково»
2-комн. квартира 49,67 м2 11 935 502
Этаж 15/25
МО, ЖК «Большое Путилково»
Митино
35 мин.
Строится
2-комн. квартира 49,75 м2 12 246 112
Этаж 25/25
МО, ЖК «Большое Путилково»
Митино
35 мин.
Строится
2-комн. квартира 50,31 м2 12 370 223
Этаж 12/25 балкон
МО, ЖК «Большое Путилково»
Митино
35 мин.
Строится
2-комн. квартира 50,79 м2 12 885 067
Этаж 14/25
МО, ЖК «Большое Путилково»
Митино
35 мин.
Строится
Посмотреть 84 квартиры в ЖК «Большое Путилково»
3-комн. квартира 69,32 м2 20 528 841
Этаж 20/25
МО, ЖК «Большое Путилково»
Митино
35 мин.
Строится
3-комн. квартира 69,50 м2 20 321 800
Этаж 17/25
МО, ЖК «Большое Путилково»
Митино
35 мин.
Строится
3-комн. квартира 69,96 м2 21 067 754
Этаж 16/25 балкон
МО, ЖК «Большое Путилково»
Митино
35 мин.
Строится
3-комн. квартира 70,14 м2 20 826 460
Этаж 12/25 балкон
МО, ЖК «Большое Путилково»
Митино
35 мин.
Строится
Посмотреть 27 квартир в ЖК «Большое Путилково»

Скидки и спецпредложения от застройщиков

ЖК «Большое Путилково» на карте

Выгодные предложения на новостройки

Самый полезный отзыв
Р
02 октября 2018
Оценка:
Экология
Способы покупки
Скорость строительства
Транспортная доступность
Если Самолёт сделает всё как обещает с транспортной доступностью и выезд к метро Пятницкое шоссе общественным транспортом, то проект будет просто бомба!
Ответить
Полезный отзыв?
Самый новый отзыв
В
26 ноября
Оценка:
нормальный такой жилой комплекс. не роскошно, но жить можно. главное что тепло и не течет ничего не пока. звукоизоляция как везде в новостройках, слышно соседей сверху, но они вроде адекватные, не топают по ночам.
Ответить
Полезный отзыв?
Добавьте отзыв, заполнив личные данные, или сначала войдите на сайт, тогда информация будет автоматически взята из личного профиля.
Оценка*