Рейтинг@Mail.ru
Переверните экран
Новостройки Квартиры Ипотека Новостройки Москвы Новостройки Подмосковья Новостройки Новой Москвы Готовые новостройки Новостройки на карте Акции от застройщиков Коммерческие помещения Продавцы и застройщики Панорамы новостроек Видеообзор новостроек Экспертиза новостроек Экология Москвы и Подмосковья Студии 1-комнатные 2-комнатные 3-комнатные Квартиры на карте Ипотечный калькулятор Семейная ипотека Военная ипотека Банки и программы Медиа Новости недвижимости Мнение эксперта Аналитика рынка Покупателю Экспертиза новостроек Эксперты и авторы О проекте Контакты Реклама на сайте Vk Youtube Telegram Дзен Машиноместа Апартаменты #траншевая ипотека #рассрочка ИТ-ипотека Квартиры со скидками до 40% Видео 360° новостроек Субсидированная застройщиком Rutube Поиск дома в Москве Программа реновации в Москве Новостройки премиум-класса Новостройки бизнес-класса Рассрочка Траншевая ипотека Дома и коттеджи Бизнес-центры Бизнес-центры в Москве Бизнес-центры рядом с метро Строящиеся бизнес-центры Бизнес-центры класса A Бизнес-центры класса B Ипотека со ставкой 0,1%
Данная квартира является лидером продаж среди трехкомнатных квартир в ЖК «Адмирал» по данным Росреестра
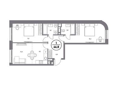
3-комн. квартира, 66.80 м2, 16 этаж
Срок сдачи 3 квартал 2028 года
29 631 044 
443 579 2
обновлено 11 марта

Описание 3-комн. квартиры

Новостройка
Срок ГК
3 квартал 2028 года
Стадия строительства
Тип проекта
Общая площадь
66.80 м2
Жилая площадь
41.80 м2
Площадь кухни
8.20 м2
Этаж
16 / 19
Отделка
нет
Тип санузла
2
Вид из окна
во двор
Грузовой лифт
есть

Расположение 3-комн. квартиры

Локация
Станция МЦД
Дом
1.4
Адрес
ул. Шоссейная, 4Д, секция 1

Способы покупки

Особенности

Продается трехкомнатная квартира в новостройке ЖК «Адмирал» по адресу Москва, ЮВАО, Печатники, ул. Шоссейная, 4Д. Общая площадь квартиры - 66.8 кв. м. Тип проекта, по которому построен дом — Монолит, компания-застройщик — ГК «Галс-Девелопмент». Стоимость квартиры — 29 631 044 руб. Способы оплаты можно уточнить у продавца. Срок сдачи — 3 квартал 2028. Более подробная информация по телефону.
ГК «Галс-Девелопмент»
ГК «Галс-Девелопмент»
Сданных 13
|
Строящихся 11
Время работы 09:00 — 21:00
Онлайн-сделка
Выбирайте квартиру в ЖК «Адмирал» по ценам от застройщика

Похожие квартиры в ЖК «Адмирал»

3 этаж
из 19 3 квартал 2028
Москва, ЮВАО
Печатники
4 мин.
1.4
Корпус
нет
Отделка
2.95 м
Потолки
ЖК «Адмирал»
28 817 420
Московский Кредитный Банк, ВТБ
12.00%
Ставка
50.01%
Первый взнос
от 296 420 /мес.
Все варианты
студия 29,40 м2 18 403 244
Этаж 15/23
Москва, ЖК «Адмирал»
Печатники
4 мин.
Строится
студия 29,90 м2 18 960 255
Этаж 22/23
Москва, ЖК «Адмирал»
Печатники
4 мин.
Строится
Посмотреть 8 квартир в ЖК «Адмирал»
Этаж 5/19
Москва, ЖК «Адмирал»
Печатники
4 мин.
Строится
1-комн. квартира 35,40 м2 20 956 886
Этаж 23/23
Москва, ЖК «Адмирал»
Печатники
4 мин.
Строится
1-комн. квартира 35,70 м2 21 296 498
Этаж 21/21
Москва, ЖК «Адмирал»
Печатники
4 мин.
Строится
Этаж 7/21
Москва, ЖК «Адмирал»
Печатники
4 мин.
Строится
Посмотреть 14 квартир в ЖК «Адмирал»
2-комн. квартира 44,00 м2 22 512 440
Этаж 13/13
Москва, ЖК «Адмирал»
Печатники
4 мин.
Строится
2-комн. квартира 44,10 м2 22 643 753
Этаж 13/13
Москва, ЖК «Адмирал»
Печатники
4 мин.
Строится
2-комн. квартира 48,20 м2 23 155 634
Этаж 12/19
Москва, ЖК «Адмирал»
Печатники
4 мин.
Строится
2-комн. квартира 49,40 м2 25 314 148
Этаж 13/13
Москва, ЖК «Адмирал»
Печатники
4 мин.
Строится
Посмотреть 11 квартир в ЖК «Адмирал»
3-комн. квартира 59,00 м2 29 257 360
Этаж 13/13
Москва, ЖК «Адмирал»
Печатники
4 мин.
Строится
3-комн. квартира 59,90 м2 26 731 856
Этаж 12/13
Москва, ЖК «Адмирал»
Печатники
4 мин.
Строится
3-комн. квартира 60,00 м2 28 114 400
Этаж 13/23
Москва, ЖК «Адмирал»
Печатники
4 мин.
Строится
3-комн. квартира 66,70 м2 28 832 384
Этаж 5/19
Москва, ЖК «Адмирал»
Печатники
4 мин.
Строится
Посмотреть 26 квартир в ЖК «Адмирал»

Скидки и спецпредложения от застройщиков

ЖК «Адмирал» на карте

Выгодные предложения на новостройки

Отзывы о ЖК «Адмирал»

Самый полезный отзыв
И
22 января 2025
Оценка:
Достоинства
Транспортная доступность
Планировки
Способы покупки
Расположение комплекса просто отличное, рядом есть всё необходимое для комфортной жизни: кафе, магазины, парки и остановки общественного транспорта. Квартиры с отличной планировкой. Инфраструктура комплекса включает подземный паркинг, детскую площадку, зону отдыха и спортивные площадки. Это делает жизнь здесь ещё более приятной. Отдельно хочу отметить работу управляющей компании. Они всегда готовы помочь и решить возникающие вопросы.
Ответить
Самый новый отзыв
М
18 февраля
Оценка:
Давно присматривались к проекту, в итоге решили здесь купить студию для сына. Жаль, что не все корпуса сейчас доступны к покупке — хотелось вариант повыше.
Ответить

Оставить отзыв

Добавьте отзыв, заполнив личные данные, или сначала войдите на сайт, тогда информация будет автоматически взята из личного профиля.
Оценка*