Рейтинг@Mail.ru
Переверните экран
Новостройки Квартиры Ипотека Новостройки Москвы Новостройки Подмосковья Новостройки Новой Москвы Готовые новостройки Новостройки на карте Акции от застройщиков Коммерческие помещения Продавцы и застройщики Панорамы новостроек Видеообзор новостроек Экспертиза новостроек Экология Москвы и Подмосковья Студии 1-комнатные 2-комнатные 3-комнатные Квартиры на карте Ипотечный калькулятор Семейная ипотека Военная ипотека Банки и программы Медиа Новости недвижимости Мнение эксперта Аналитика рынка Покупателю Экспертиза новостроек Эксперты и авторы О проекте Контакты Реклама на сайте Vk Youtube Telegram Дзен Машиноместа Апартаменты #траншевая ипотека #рассрочка IT-ипотека Квартиры со скидками до 40% Видео 360° новостроек Субсидированная застройщиком Rutube Поиск дома в Москве Программа реновации в Москве Новостройки премиум-класса Новостройки бизнес-класса Рассрочка Траншевая ипотека Дома и коттеджи Бизнес-центры Бизнес-центры в Москве Бизнес-центры рядом с метро Строящиеся бизнес-центры Бизнес-центры класса A Бизнес-центры класса B
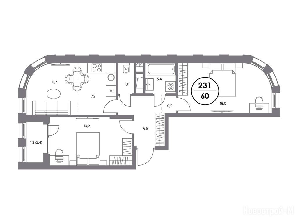
3-комн. квартира, 60.00 м2, 13 этаж
Срок сдачи 3 квартал 2028 года
27 594 800 
459 913 2
обновлено 20 января

Описание 3-комн. квартиры

Новостройка
Срок ГК
3 квартал 2028 года
Стадия строительства
Тип проекта
Общая площадь
60.00 м2
Жилая площадь
38.80 м2
Площадь кухни
7.20 м2
Этаж
13 / 23
Отделка
нет
Тип санузла
раздельный
Вид из окна
во двор
Грузовой лифт
есть

Расположение 3-комн. квартиры

Локация
Станция МЦД
Дом
1.4
Адрес
ул. Шоссейная, 4Д, секция 3

Способы покупки

Особенности

Продается трехкомнатная квартира в новостройке ЖК «Адмирал» по адресу Москва, ЮВАО, Печатники, ул. Шоссейная, 4Д. Общая площадь квартиры - 60 кв. м. Тип проекта, по которому построен дом — Монолит, компания-застройщик — ГК «Галс-Девелопмент». Стоимость квартиры — 27 594 800 руб. Способы оплаты можно уточнить у продавца. Срок сдачи — 3 квартал 2028. Более подробная информация по телефону.
ГК «Галс-Девелопмент»
ГК «Галс-Девелопмент»
Сданных 13
|
Строящихся 11
Время работы 09:00 — 21:00
Онлайн-сделка
Выбирайте квартиру в ЖК «Адмирал» по ценам от застройщика

Похожие квартиры в ЖК «Адмирал»

16 этаж
из 23 3 квартал 2028
Москва, ЮВАО
Печатники
4 мин.
1.4
Корпус
нет
Отделка
2.95 м
Потолки
ЖК «Адмирал»
27 815 600
ВТБ
6.50%
Ставка
50.10%
Первый взнос
от 175 814 /мес.
Все варианты
20 этаж
из 23 3 квартал 2028
Москва, ЮВАО
Печатники
4 мин.
1.4
Корпус
нет
Отделка
2.95 м
Потолки
ЖК «Адмирал»
28 036 400
ВТБ
6.50%
Ставка
50.10%
Первый взнос
от 177 209 /мес.
Все варианты
21 этаж
из 23 3 квартал 2028
Москва, ЮВАО
Печатники
4 мин.
1.4
Корпус
нет
Отделка
2.95 м
Потолки
ЖК «Адмирал»
28 091 600
ВТБ
6.50%
Ставка
50.10%
Первый взнос
от 177 558 /мес.
Все варианты
23 этаж
из 23 3 квартал 2028
Москва, ЮВАО
Печатники
4 мин.
1.4
Корпус
нет
Отделка
2.95 м
Потолки
ЖК «Адмирал»
28 826 000
ВТБ
6.50%
Ставка
50.10%
Первый взнос
от 182 200 /мес.
Все варианты
Посмотреть все спецпредложения
студия 29,40 м2 18 651 968
Этаж 23/23
Москва, ЖК «Адмирал»
Печатники
4 мин.
Строится
студия 29,90 м2 18 968 328
Этаж 23/23
Москва, ЖК «Адмирал»
Печатники
4 мин.
Строится
1-комн. квартира 35,10 м2 20 620 004
Этаж 19/19
Москва, ЖК «Адмирал»
Печатники
4 мин.
Строится
1-комн. квартира 35,70 м2 21 103 004
Этаж 21/21
Москва, ЖК «Адмирал»
Печатники
4 мин.
Строится
1-комн. квартира 35,80 м2 19 449 304
Этаж 4/21
Москва, ЖК «Адмирал»
Печатники
4 мин.
Строится
1-комн. квартира 36,30 м2 20 254 580
Этаж 19/21
Москва, ЖК «Адмирал»
Печатники
4 мин.
Строится
Посмотреть 11 квартир в ЖК «Адмирал»
2-комн. квартира 44,00 м2 21 666 320
Этаж 9/13
Москва, ЖК «Адмирал»
Печатники
4 мин.
Строится
2-комн. квартира 44,10 м2 22 445 744
Этаж 13/13
Москва, ЖК «Адмирал»
Печатники
4 мин.
Строится
Этаж 12/19
Москва, ЖК «Адмирал»
Печатники
4 мин.
Строится
2-комн. квартира 49,40 м2 25 091 848
Этаж 13/13
Москва, ЖК «Адмирал»
Печатники
4 мин.
Строится
Посмотреть 10 квартир в ЖК «Адмирал»
3-комн. квартира 59,00 м2 28 709 840
Этаж 13/13
Москва, ЖК «Адмирал»
Печатники
4 мин.
Строится
3-комн. квартира 59,90 м2 27 383 568
Этаж 11/13
Москва, ЖК «Адмирал»
Печатники
4 мин.
Строится
3-комн. квартира 60,00 м2 27 815 600
Этаж 16/23
Москва, ЖК «Адмирал»
Печатники
4 мин.
Строится
3-комн. квартира 66,80 м2 30 470 720
Этаж 16/19
Москва, ЖК «Адмирал»
Печатники
4 мин.
Строится
Посмотреть 27 квартир в ЖК «Адмирал»

Скидки и спецпредложения от застройщиков

ЖК «Адмирал» на карте

Выгодные предложения на новостройки

Отзывы о ЖК «Адмирал»

Самый полезный отзыв
И
22 января 2025
Оценка:
Транспортная доступность
Планировки
Способы покупки
Расположение комплекса просто отличное, рядом есть всё необходимое для комфортной жизни: кафе, магазины, парки и остановки общественного транспорта. Квартиры с отличной планировкой. Инфраструктура комплекса включает подземный паркинг, детскую площадку, зону отдыха и спортивные площадки. Это делает жизнь здесь ещё более приятной. Отдельно хочу отметить работу управляющей компании. Они всегда готовы помочь и решить возникающие вопросы.
Ответить
Полезный отзыв?
Самый новый отзыв
А
06 января
Оценка:
Смотрели несколько локаций. Тут транспортная доступность лучше, чем в ЗИЛе, цена входа гораздо ниже, чем в Хорошево, плюс набережная и вся инфраструктура будет. Взяли на этапе котлована, к моменту сдачи в 2027 году квартира будет стоить совсем других денег
Ответить
Полезный отзыв?
Добавьте отзыв, заполнив личные данные, или сначала войдите на сайт, тогда информация будет автоматически взята из личного профиля.
Оценка*