Рейтинг@Mail.ru
Переверните экран
Новостройки Квартиры Ипотека Новостройки Москвы Новостройки Подмосковья Новостройки Новой Москвы Готовые новостройки Новостройки на карте Акции от застройщиков Коммерческие помещения Продавцы и застройщики Панорамы новостроек Видеообзор новостроек Экспертиза новостроек Экология Москвы и Подмосковья Студии 1-комнатные 2-комнатные 3-комнатные Квартиры на карте Ипотечный калькулятор Семейная ипотека Военная ипотека Банки и программы Медиа Новости недвижимости Мнение эксперта Аналитика рынка Покупателю Экспертиза новостроек Эксперты и авторы О проекте Контакты Реклама на сайте Vk Youtube Telegram Дзен Машиноместа Апартаменты #траншевая ипотека #рассрочка IT-ипотека Квартиры со скидками до 40% Видео 360° новостроек Субсидированная застройщиком Rutube Поиск дома в Москве Программа реновации в Москве Новостройки премиум-класса Новостройки бизнес-класса Рассрочка Траншевая ипотека ГАЛС Дома и коттеджи Бизнес-центры Бизнес-центры в Москве Бизнес-центры рядом с метро Строящиеся бизнес-центры Бизнес-центры класса A Бизнес-центры класса B ЛСР
Данная квартира является лидером продаж среди трехкомнатных квартир в Руставели 14 по данным Росреестра
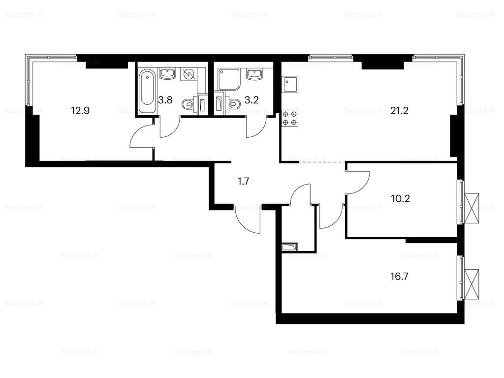
3-комн. квартира, 83.30 м2, 2 этаж
Срок сдачи 4 квартал 2025 года
37 759 890 
453 300 2
обновлено 5 декабря
83.345.336.261.361.9

Описание 3-комн. квартиры

Новостройка
Застройщик
СЗ ПЛАМ
Срок ГК
4 квартал 2025 года
Тип проекта
Общая площадь
83.30 м2
Этаж
2 / 14
Отделка
чистовая
Грузовой лифт
есть

Расположение 3-комн. квартиры

Локация
Метро
Станция МЦД
Станция МЦК
Дом
2.8
Адрес
ул. Руставели, д.8, секция 4

Способы покупки

Особенности

Продается трехкомнатная квартира в новостройке Руставели 14 по адресу Москва, СВАО, Бутырский, ул. Руставели, д.8. Общая площадь квартиры - 83.3 кв. м. Тип проекта, по которому построен дом — Панельный, компания-застройщик — СЗ ПЛАМ, ПИК. Стоимость квартиры — 37 759 890 руб. Способы оплаты можно уточнить у продавца. Срок сдачи — 4 квартал 2025. Более подробная информация по телефону.

Правовые документы

Посмотреть все спецпредложения
студия 19,80 м2 14 400 540
Этаж 20/33
Москва, Руставели 14
Бутырская
3 мин.
Строится
Этаж 3/23
Москва, Руставели 14
Бутырская
3 мин.
Строится
студия 23,60 м2 15 656 240
Этаж 12/33
Москва, Руставели 14
Бутырская
3 мин.
Строится
студия 25,40 м2 16 964 660
Этаж 32/33
Москва, Руставели 14
Бутырская
3 мин.
Строится
студия 28,20 м2 17 653 200
Этаж 17/21
Москва, Руставели 14
Бутырская
3 мин.
Строится
студия 29,10 м2 16 889 640
Этаж 6/16
Москва, Руставели 14
Бутырская
3 мин.
Строится
Посмотреть 7 квартир в Руставели 14
Этаж 15/21
Москва, Руставели 14
Бутырская
3 мин.
Строится
1-комн. квартира 31,80 м2 19 254 900
Этаж 3/21
Москва, Руставели 14
Бутырская
3 мин.
Строится
1-комн. квартира 32,40 м2 19 796 400
Этаж 11/21
Москва, Руставели 14
Бутырская
3 мин.
Строится
1-комн. квартира 32,60 м2 21 496 440
Этаж 31/33
Москва, Руставели 14
Бутырская
3 мин.
Строится
Посмотреть 30 квартир в Руставели 14
2-комн. квартира 45,60 м2 25 773 120
Этаж 24/33
Москва, Руставели 14
Бутырская
3 мин.
Строится
2-комн. квартира 48,30 м2 25 970 910
Этаж 2/23
Москва, Руставели 14
Бутырская
3 мин.
Строится
2-комн. квартира 48,60 м2 25 121 340
Этаж 18/21
Москва, Руставели 14
Бутырская
3 мин.
Строится
2-комн. квартира 49,10 м2 26 150 660
Этаж 2/33
Москва, Руставели 14
Бутырская
3 мин.
Строится
Посмотреть 29 квартир в Руставели 14
3-комн. квартира 71,90 м2 33 074 000
Этаж 2/33
Москва, Руставели 14
Бутырская
3 мин.
Строится
3-комн. квартира 72,00 м2 32 551 200
Этаж 2/33
Москва, Руставели 14
Бутырская
3 мин.
Строится
3-комн. квартира 72,20 м2 32 692 160
Этаж 4/33 балкон
Москва, Руставели 14
Бутырская
3 мин.
Строится
3-комн. квартира 74,90 м2 36 086 820
Этаж 2/23
Москва, Руставели 14
Бутырская
3 мин.
Строится
Посмотреть 12 квартир в Руставели 14

Скидки и спецпредложения от застройщиков

Руставели 14 на карте

Выгодные предложения на новостройки

Отзывы о Руставели 14

Самый полезный отзыв
П
30 октября 2020
Оценка:
Купили в 1.1, пока конечно начало, зато успели с хорошей ценой. Сейчас вообще мне кажется, лучше покупать до конца вот этого года. Потому что потом цена будет расти по понятным причинам. ПИК в плане стоимости правда не обижает. Большинство застройщиков уже цены начали повышать. Тут пока нет, но всё равно перестраховаться стоит. Тем более сейчас условия ппокупки хорошие и ипотеки.
Ответить
Полезный отзыв?
Самый новый отзыв
ПА
09 августа
Оценка:
Планировки
Способы покупки
Внешний вид фасада
Двор, окружение
Расположение
Плюсов много у нашего ЖК, минусы, конечно, тоже есть, а где их нет. Понятное дело, все субъективно, но хочу отметить: близко от метро и парка, нормальная цена, не самый плохой ремонт от застройщика, нормальная планировка квартиры
Ответить
Полезный отзыв?
Добавьте отзыв, заполнив личные данные, или сначала войдите на сайт, тогда информация будет автоматически взята из личного профиля.
Оценка*