Рейтинг@Mail.ru
Переверните экран
Новостройки Квартиры Ипотека Новостройки Москвы Новостройки Подмосковья Новостройки Новой Москвы Готовые новостройки Новостройки на карте Акции от застройщиков Коммерческие помещения Продавцы и застройщики Панорамы новостроек Видеообзор новостроек Экспертиза новостроек Экология Москвы и Подмосковья Студии 1-комнатные 2-комнатные 3-комнатные Квартиры на карте Ипотечный калькулятор Семейная ипотека Военная ипотека Банки и программы Медиа Новости недвижимости Мнение эксперта Аналитика рынка Покупателю Экспертиза новостроек Эксперты и авторы О проекте Контакты Реклама на сайте Vk Youtube Telegram Дзен Машиноместа Апартаменты #траншевая ипотека #рассрочка ИТ-ипотека Квартиры со скидками до 40% Видео 360° новостроек Субсидированная застройщиком Rutube Поиск дома в Москве Программа реновации в Москве Новостройки премиум-класса Новостройки бизнес-класса Рассрочка Траншевая ипотека Дома и коттеджи Бизнес-центры Бизнес-центры в Москве Бизнес-центры рядом с метро Строящиеся бизнес-центры Бизнес-центры класса A Бизнес-центры класса B Ипотека со ставкой 0,1%
Данная квартира является лидером продаж среди трехкомнатных квартир в Городе-парке «Переделкино Ближнее» по данным Росреестра
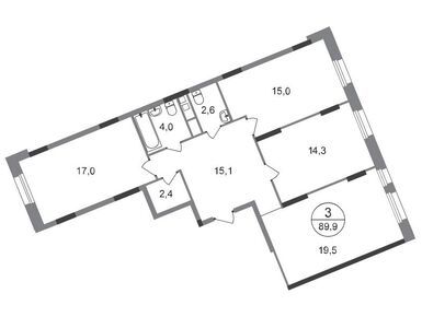
3-комн. квартира, 89.90 м2, 8 этаж
Срок сдачи 2 квартал 2027 года
24 808 181 
275 953 2
обновлено 1 апреля

Описание 3-комн. квартиры

Срок ГК
2 квартал 2027 года
Стадия строительства
отделка фасада
Тип проекта
Общая площадь
89.90 м2
Высота потолков
3.03
Этаж
8 / 17
Отделка
нет
Грузовой лифт
есть
Стоимость эксплуатации
~ 39 руб./м2

Расположение 3-комн. квартиры

Локация
Метро
Станция МЦД
Станция МЦК
Дом
1 (18 фаза)
Адрес
д. Рассказовка, секция 12

Способы покупки

Особенности

Продается трехкомнатная квартира в новостройке Город-парк «Переделкино Ближнее» по адресу Москва, ТиНАО, Новомосковский АО, Внуковское С/П, д. Рассказовка. Общая площадь квартиры - 89.9 кв. м. Тип проекта, по которому построен дом — Монолит,Панельный,Блочный, компания-застройщик — ООО «Переделкино Ближнее». Стоимость квартиры — 24 808 181 руб. Способы оплаты можно уточнить у продавца. Срок сдачи — 2 квартал 2027. Более подробная информация по телефону.

Правовые документы

Инфоцентр новостроек
Инфоцентр новостроек
+7 (499) 705-91-41
Время работы 9:00 — 21:00

Похожие квартиры в Городе-парке «Переделкино Ближнее»

13 этаж
из 17 2 квартал 2027
Москва, Новомосковский АО
Рассказовка
7 мин.
1 (18 фаза)
Корпус
нет
Отделка
2.80 м
Потолки
Город-парк «Переделкино Ближнее»
24 498 921
СберБанк, Альфа-Банк, Азиатско-Тихоокеанский Банк, ВТБ, Совкомбанк, ДОМ.РФ, Россельхозбанк, Металлинвестбанк, Банк Санкт-Петербург, Абсолют Банк, Банк Россия, Московский Кредитный Банк
3.50%
Ставка
40.10%
Первый взнос
от 110 011 /мес.
Все варианты
17 этаж
из 17 2 квартал 2027
Москва, Новомосковский АО
Рассказовка
7 мин.
1 (18 фаза)
Корпус
нет
Отделка
2.80 м
Потолки
Город-парк «Переделкино Ближнее»
25 093 887
СберБанк, Альфа-Банк, Азиатско-Тихоокеанский Банк, ВТБ, Совкомбанк, ДОМ.РФ, Россельхозбанк, Металлинвестбанк, Банк Санкт-Петербург, Абсолют Банк, Банк Россия, Московский Кредитный Банк
3.50%
Ставка
40.10%
Первый взнос
от 112 683 /мес.
Все варианты
10 этаж
из 17 2 квартал 2027
Москва, Новомосковский АО
Рассказовка
7 мин.
1 (18 фаза)
Корпус
нет
Отделка
2.80 м
Потолки
Город-парк «Переделкино Ближнее»
25 290 035
СберБанк, Альфа-Банк, Азиатско-Тихоокеанский Банк, ВТБ, Совкомбанк, ДОМ.РФ, Россельхозбанк, Металлинвестбанк, Банк Санкт-Петербург, Абсолют Банк, Банк Россия, Московский Кредитный Банк
3.50%
Ставка
40.10%
Первый взнос
от 113 564 /мес.
Все варианты
11 этаж
из 17 2 квартал 2027
Москва, Новомосковский АО
Рассказовка
7 мин.
1 (18 фаза)
Корпус
нет
Отделка
2.80 м
Потолки
Город-парк «Переделкино Ближнее»
25 413 065
СберБанк, Альфа-Банк, Азиатско-Тихоокеанский Банк, ВТБ, Совкомбанк, ДОМ.РФ, Россельхозбанк, Металлинвестбанк, Банк Санкт-Петербург, Абсолют Банк, Банк Россия, Московский Кредитный Банк
3.50%
Ставка
40.10%
Первый взнос
от 114 116 /мес.
Все варианты
16 этаж
из 17 2 квартал 2027
Москва, Новомосковский АО
Рассказовка
7 мин.
1 (18 фаза)
Корпус
нет
Отделка
2.80 м
Потолки
Город-парк «Переделкино Ближнее»
26 290 351
СберБанк, Альфа-Банк, Азиатско-Тихоокеанский Банк, ВТБ, Совкомбанк, ДОМ.РФ, Россельхозбанк, Металлинвестбанк, Банк Санкт-Петербург, Абсолют Банк, Банк Россия, Московский Кредитный Банк
3.50%
Ставка
40.10%
Первый взнос
от 118 055 /мес.
Все варианты
Этаж 1/17
НМ, Город-парк «Переделкино Ближнее»
Рассказовка
7 мин.
Строится
Этаж 9/17
НМ, Город-парк «Переделкино Ближнее»
Рассказовка
7 мин.
Строится
Этаж 11/17
НМ, Город-парк «Переделкино Ближнее»
Рассказовка
7 мин.
Строится
студия 28,60 м2 14 054 534
Этаж 2/17
НМ, Город-парк «Переделкино Ближнее»
Рассказовка
7 мин.
Строится
Посмотреть 10 квартир в Городе-парке «Переделкино Ближнее»
1-комн. квартира 34,60 м2 15 013 314
Этаж 8/17
НМ, Город-парк «Переделкино Ближнее»
Рассказовка
7 мин.
Строится
1-комн. квартира 35,40 м2 15 003 945
Этаж 3/17
НМ, Город-парк «Переделкино Ближнее»
Рассказовка
7 мин.
Строится
1-комн. квартира 35,90 м2 15 314 730
Этаж 13/17
НМ, Город-парк «Переделкино Ближнее»
Рассказовка
7 мин.
Сдан
1-комн. квартира 36,10 м2 14 711 368
Этаж 3/17
НМ, Город-парк «Переделкино Ближнее»
Рассказовка
7 мин.
Строится
Посмотреть 130 квартир в Городе-парке «Переделкино Ближнее»
2-комн. квартира 39,80 м2 15 258 210
Этаж 15/17
НМ, Город-парк «Переделкино Ближнее»
Рассказовка
7 мин.
Строится
2-комн. квартира 44,50 м2 16 307 140
Этаж 6/17
НМ, Город-парк «Переделкино Ближнее»
Рассказовка
7 мин.
Строится
2-комн. квартира 47,40 м2 16 481 590
Этаж 8/17
НМ, Город-парк «Переделкино Ближнее»
Рассказовка
7 мин.
Строится
2-комн. квартира 52,60 м2 19 267 847
Этаж 11/17
НМ, Город-парк «Переделкино Ближнее»
Рассказовка
7 мин.
Сдан
Посмотреть 218 квартир в Городе-парке «Переделкино Ближнее»
3-комн. квартира 64,80 м2 18 564 446
Этаж 2/17
НМ, Город-парк «Переделкино Ближнее»
Рассказовка
7 мин.
Строится
3-комн. квартира 66,10 м2 18 809 365
Этаж 1/17
НМ, Город-парк «Переделкино Ближнее»
Рассказовка
7 мин.
Строится
3-комн. квартира 68,70 м2 20 138 271
Этаж 8/17
НМ, Город-парк «Переделкино Ближнее»
Рассказовка
7 мин.
Строится
3-комн. квартира 74,60 м2 22 380 460
Этаж 2/17
НМ, Город-парк «Переделкино Ближнее»
Рассказовка
7 мин.
Строится
Посмотреть 91 квартира в Городе-парке «Переделкино Ближнее»
4-комн. квартира 106,80 м2 33 507 273
Этаж 16/17
НМ, Город-парк «Переделкино Ближнее»
Рассказовка
7 мин.
Строится
4-комн. квартира 107,10 м2 34 235 796
Этаж 17/17
НМ, Город-парк «Переделкино Ближнее»
Рассказовка
7 мин.
Строится
4-комн. квартира 107,20 м2 35 409 893
Этаж 15/17
НМ, Город-парк «Переделкино Ближнее»
Рассказовка
7 мин.
Строится
4-комн. квартира 108,60 м2 30 707 654
Этаж 12/17
НМ, Город-парк «Переделкино Ближнее»
Рассказовка
7 мин.
Строится
Посмотреть 9 квартир в Городе-парке «Переделкино Ближнее»

Скидки и спецпредложения от застройщиков

Город-парк «Переделкино Ближнее» на карте

Выгодные предложения на новостройки

Самый полезный отзыв
Н
28 мая 2018
Оценка:
Достоинства
Планировки
Внешний вид фасада
Двор, окружение
Расположение
Такой грандиозный проект! А сегодня в инете вычитала, что Москомархитектура согласовала проекты пяти кварталов жилого комплекса «Переделкино Ближнее» в Новой Москве. Жизнь продолжается, что бы там не говорили: кризис, везде разруха...!
Ответить
Самый новый отзыв
МЕ
10 марта
Оценка:
Достоинства
Планировки
Способы покупки
Типы отделки разнообразные - от черновой вообще без всего до чистовой. Это даёт выбор в зависимости от того, что вам нужно.
Ответить

Оставить отзыв

Добавьте отзыв, заполнив личные данные, или сначала войдите на сайт, тогда информация будет автоматически взята из личного профиля.
Оценка*