Рейтинг@Mail.ru
Переверните экран
Новостройки Квартиры Ипотека Новостройки Москвы Новостройки Подмосковья Новостройки Новой Москвы Готовые новостройки Новостройки на карте Акции от застройщиков Коммерческие помещения Продавцы и застройщики Панорамы новостроек Видеообзор новостроек Экспертиза новостроек Экология Москвы и Подмосковья Студии 1-комнатные 2-комнатные 3-комнатные Квартиры на карте Ипотечный калькулятор Семейная ипотека Военная ипотека Банки и программы Медиа Новости недвижимости Мнение эксперта Аналитика рынка Покупателю Экспертиза новостроек Эксперты и авторы О проекте Контакты Реклама на сайте Vk Youtube Telegram Дзен Машиноместа Апартаменты #траншевая ипотека #рассрочка ИТ-ипотека Квартиры со скидками до 40% Видео 360° новостроек Субсидированная застройщиком Rutube Поиск дома в Москве Программа реновации в Москве Новостройки премиум-класса Новостройки бизнес-класса Рассрочка Траншевая ипотека Дома и коттеджи Бизнес-центры Бизнес-центры в Москве Бизнес-центры рядом с метро Строящиеся бизнес-центры Бизнес-центры класса A Бизнес-центры класса B Ипотека со ставкой 0,1%
Данная квартира является лидером продаж среди трехкомнатных квартир в Бунинской набережной по данным Росреестра
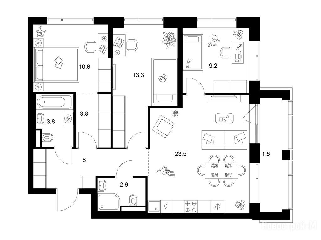
3-комн. квартира, 76.70 м2, 6 этаж
Срок сдачи 4 квартал 2027 года
25 479 740 
332 200 2
обновлено 17 марта

Описание 3-комн. квартиры

Застройщик
Срок ГК
4 квартал 2027 года
Стадия строительства
Тип проекта
Общая площадь
76.70 м2
Этаж
6 / 16
Отделка
чистовая
Грузовой лифт
есть

Расположение 3-комн. квартиры

Локация
Дом
2.6/1.4
Адрес
Бунинская набережная, корп. 2.6/1.4, секция 4

Способы покупки

Особенности

Продается трехкомнатная квартира в новостройке Бунинская набережная по адресу Москва, ТиНАО, Новомосковский АО, Сосенское С/П, Коммунарка пос., Бунинская набережная, корп. 2.6/1.4. Общая площадь квартиры - 76.7 кв. м. Тип проекта, по которому построен дом — Монолит, компания-застройщик — ПИК, СЗ СТРОЙКОМ. Стоимость квартиры — 25 479 740 руб. Способы оплаты можно уточнить у продавца. Срок сдачи — 4 квартал 2027. Более подробная информация по телефону.
ПИК
ПИК
Сданных 96
|
Строящихся 38
Время работы 02:00 — 21:00
Онлайн-сделка
Выбирайте квартиру в Бунинская набережная по ценам от застройщика
студия 19,00 м2 10 657 100
Этаж 10/16
НМ, Бунинская набережная
Потапово
18 мин.
Строится
студия 19,20 м2 9 914 880
Этаж 12/16
НМ, Бунинская набережная
Потапово
18 мин.
Строится
Этаж 9/16
НМ, Бунинская набережная
Потапово
18 мин.
Строится
студия 19,80 м2 10 478 160
Этаж 8/16
НМ, Бунинская набережная
Потапово
18 мин.
Строится
Посмотреть 32 квартиры в Бунинской набережной
1-комн. квартира 30,10 м2 12 398 190
Этаж 5/16
НМ, Бунинская набережная
Потапово
18 мин.
Строится
1-комн. квартира 30,70 м2 13 538 700
Этаж 10/16
НМ, Бунинская набережная
Потапово
18 мин.
Строится
1-комн. квартира 31,80 м2 13 149 300
Этаж 3/16
НМ, Бунинская набережная
Потапово
18 мин.
Строится
1-комн. квартира 31,90 м2 13 531 980
Этаж 12/16
НМ, Бунинская набережная
Потапово
18 мин.
Строится
Посмотреть 62 квартиры в Бунинской набережной
2-комн. квартира 50,30 м2 18 470 160
Этаж 1/16
НМ, Бунинская набережная
Потапово
18 мин.
Строится
2-комн. квартира 50,90 м2 17 932 070
Этаж 2/16
НМ, Бунинская набережная
Потапово
18 мин.
Строится
2-комн. квартира 51,40 м2 18 627 360
Этаж 5/16
НМ, Бунинская набережная
Потапово
18 мин.
Строится
Этаж 7/16
НМ, Бунинская набережная
Потапово
18 мин.
Строится
Посмотреть 63 квартиры в Бунинской набережной
3-комн. квартира 69,00 м2 23 798 100
Этаж 14/16
НМ, Бунинская набережная
Потапово
18 мин.
Строится
3-комн. квартира 69,40 м2 23 713 980
Этаж 7/16
НМ, Бунинская набережная
Потапово
18 мин.
Строится
3-комн. квартира 70,10 м2 23 876 060
Этаж 4/16
НМ, Бунинская набережная
Потапово
18 мин.
Строится
3-комн. квартира 70,30 м2 23 606 740
Этаж 2/16
НМ, Бунинская набережная
Потапово
18 мин.
Строится
Посмотреть 21 квартира в Бунинской набережной

Скидки и спецпредложения от застройщиков

Бунинская набережная на карте

Выгодные предложения на новостройки

Отзывы о Бунинской набережной

Самый полезный отзыв
ОМ
29 мая 2025
Оценка:
Достоинства
Двор, окружение
Расположение
Прямо на берегу Ивановского пруда. Красота! Но самое главное преимущество для нас, будущих жителей Бунинской набережной, — это тишина и приватность. Никакой городской суеты, только спокойствие и уют. Вот это я понимаю, уютное жилье!
Ответить
Самый новый отзыв
ОЭ
11 января
Оценка:
Достоинства
Внешний вид фасада
Двор, окружение
Расположение
если рядом вода и прогулочная набережная, это большой плюс для повседневной жизни. Такие места держат качество среды даже при активной застройке
Ответить

Оставить отзыв

Добавьте отзыв, заполнив личные данные, или сначала войдите на сайт, тогда информация будет автоматически взята из личного профиля.
Оценка*