Рейтинг@Mail.ru
Переверните экран
Новостройки Квартиры Ипотека Новостройки Москвы Новостройки Подмосковья Новостройки Новой Москвы Готовые новостройки Новостройки на карте Акции от застройщиков Коммерческие помещения Продавцы и застройщики Панорамы новостроек Видеообзор новостроек Экспертиза новостроек Экология Москвы и Подмосковья Студии 1-комнатные 2-комнатные 3-комнатные Квартиры на карте Ипотечный калькулятор Семейная ипотека Военная ипотека Банки и программы Медиа Новости недвижимости Мнение эксперта Аналитика рынка Покупателю Экспертиза новостроек Эксперты и авторы О проекте Контакты Реклама на сайте Vk Youtube Telegram Дзен Машиноместа Апартаменты #траншевая ипотека #рассрочка IT-ипотека Квартиры со скидками до 40% Видео 360° новостроек Субсидированная застройщиком Rutube Поиск дома в Москве Программа реновации в Москве Новостройки премиум-класса Новостройки бизнес-класса Рассрочка Траншевая ипотека ГАЛС Дома и коттеджи Бизнес-центры Бизнес-центры в Москве Бизнес-центры рядом с метро Строящиеся бизнес-центры Бизнес-центры класса A Бизнес-центры класса B ЛСР
Данная квартира является лидером продаж среди трехкомнатных квартир в Алтуфьевское 53 по данным Росреестра
Данное предложение на 05.12.2025 неактуально. Пожалуйста, ознакомьтесь с другими похожими предложениями в Алтуфьевское 53 .
3-комн. квартира, 74.80 м2, 17 этаж
Срок сдачи 4 квартал 2028 года
25 858 360 
345 700 2
обновлено 5 декабря

Описание 3-комн. квартиры

Новостройка
Срок ГК
4 квартал 2028 года
Стадия строительства
Тип проекта
Общая площадь
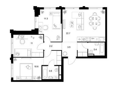
74.80 м2
Жилая площадь
32.90 м2
Площадь кухни
22.70 м2
Этаж
17 / 32
Отделка
чистовая
Грузовой лифт
есть

Расположение 3-комн. квартиры

Локация
Метро
Станция МЦД
Станция МЦК
Дом
1.1
Адрес
ш. Алтуфьевское, корп.1.1, секция 4

Способы покупки

Особенности

Продается трехкомнатная квартира в новостройке Алтуфьевское 53 по адресу Москва, СВАО, Алтуфьевский, ш. Алтуфьевское, корп.1.1. Общая площадь квартиры - 74.8 кв. м. Тип проекта, по которому построен дом — Монолит, компания-застройщик — ПИК, СЗ «Перспективные решения». Стоимость квартиры — 25 858 360 руб. Способы оплаты можно уточнить у продавца. Срок сдачи — 4 квартал 2028. Более подробная информация по телефону.

Похожие квартиры в Алтуфьевское 53

10 этаж
из 32 4 квартал 2028
Москва, СВАО
Дегунино
20 мин.
1.1
Корпус
чистовая
Отделка
2.66 м
Потолки
Алтуфьевское 53
25 791 040
ВТБ, Альфа-Банк, СберБанк, ДОМ.РФ, Московский Кредитный Банк
6.00%
Ставка
50.10%
Первый взнос
от 154 630 /мес.
Все варианты
13 этаж
из 32 4 квартал 2028
Москва, СВАО
Дегунино
20 мин.
1.1
Корпус
чистовая
Отделка
2.66 м
Потолки
Алтуфьевское 53
25 813 480
ВТБ, Альфа-Банк, СберБанк, ДОМ.РФ, Московский Кредитный Банк
6.00%
Ставка
50.10%
Первый взнос
от 154 765 /мес.
Все варианты
19 этаж
из 32 4 квартал 2028
Москва, СВАО
Дегунино
20 мин.
1.1
Корпус
чистовая
Отделка
2.66 м
Потолки
Алтуфьевское 53
25 873 320
ВТБ, Альфа-Банк, СберБанк, ДОМ.РФ, Московский Кредитный Банк
6.00%
Ставка
50.10%
Первый взнос
от 155 124 /мес.
Все варианты
Посмотреть все спецпредложения
студия 28,00 м2 12 941 600
Этаж 31/32
Москва, Алтуфьевское 53
Дегунино
20 мин.
Строится
студия 28,50 м2 13 141 350
Этаж 23/32
Москва, Алтуфьевское 53
Дегунино
20 мин.
Строится
студия 28,70 м2 13 862 100
Этаж 23/32
Москва, Алтуфьевское 53
Дегунино
20 мин.
Строится
студия 28,90 м2 13 016 560
Этаж 27/32
Москва, Алтуфьевское 53
Дегунино
20 мин.
Строится
студия 28,00 м2 12 941 600
Этаж 31/32
Москва, Алтуфьевское 53
Дегунино
20 мин.
Строится
студия 28,50 м2 13 141 350
Этаж 23/32
Москва, Алтуфьевское 53
Дегунино
20 мин.
Строится
студия 28,70 м2 13 862 100
Этаж 23/32
Москва, Алтуфьевское 53
Дегунино
20 мин.
Строится
студия 28,90 м2 13 016 560
Этаж 27/32
Москва, Алтуфьевское 53
Дегунино
20 мин.
Строится
Посмотреть 16 квартир в Алтуфьевское 53
1-комн. квартира 31,20 м2 14 448 720
Этаж 2/22
Москва, Алтуфьевское 53
Дегунино
20 мин.
Строится
1-комн. квартира 31,80 м2 15 480 240
Этаж 22/32
Москва, Алтуфьевское 53
Дегунино
20 мин.
Строится
1-комн. квартира 31,90 м2 15 296 050
Этаж 14/32
Москва, Алтуфьевское 53
Дегунино
20 мин.
Строится
1-комн. квартира 32,40 м2 15 108 120
Этаж 3/32
Москва, Алтуфьевское 53
Дегунино
20 мин.
Строится
Посмотреть 51 квартира в Алтуфьевское 53
2-комн. квартира 48,90 м2 20 611 350
Этаж 7/22
Москва, Алтуфьевское 53
Дегунино
20 мин.
Строится
2-комн. квартира 49,20 м2 20 791 920
Этаж 10/22
Москва, Алтуфьевское 53
Дегунино
20 мин.
Строится
2-комн. квартира 49,50 м2 20 384 100
Этаж 25/32
Москва, Алтуфьевское 53
Дегунино
20 мин.
Строится
2-комн. квартира 50,40 м2 19 756 800
Этаж 19/32
Москва, Алтуфьевское 53
Дегунино
20 мин.
Строится
Посмотреть 91 квартира в Алтуфьевское 53
3-комн. квартира 72,50 м2 25 846 250
Этаж 32/32
Москва, Алтуфьевское 53
Дегунино
20 мин.
Строится
3-комн. квартира 74,70 м2 25 674 390
Этаж 2/32
Москва, Алтуфьевское 53
Дегунино
20 мин.
Строится
3-комн. квартира 74,80 м2 25 873 320
Этаж 19/32
Москва, Алтуфьевское 53
Дегунино
20 мин.
Строится
3-комн. квартира 74,90 м2 25 960 340
Этаж 22/32
Москва, Алтуфьевское 53
Дегунино
20 мин.
Строится
Посмотреть 32 квартиры в Алтуфьевское 53

Скидки и спецпредложения от застройщиков

Алтуфьевское 53 на карте

Выгодные предложения на новостройки

Отзывы о Алтуфьевское 53

Самый полезный отзыв
КА
22 сентября 2022
Оценка:
Пик зашел в Алтуфьево с неплохим проектом, сроки реальные. Из инфраструктуры - два садика плюс школа. Паркинг подземный по плану, но инфы по ценам на машиноместа пока нет.
Ответить
Полезный отзыв?
Самый новый отзыв
ДГ
10 ноября
Оценка:
Социальная инфраструктура
Планировки
Способы покупки
Двор, окружение
Расположение
два детских сада и подземный паркинг - это были основные моменты в пользу этого проекта, поэтому взяли трешку, думаю, что не прогадали
Ответить
Полезный отзыв?
Добавьте отзыв, заполнив личные данные, или сначала войдите на сайт, тогда информация будет автоматически взята из личного профиля.
Оценка*