Рейтинг@Mail.ru
Переверните экран
Новостройки Квартиры Ипотека Новостройки Москвы Новостройки Подмосковья Новостройки Новой Москвы Готовые новостройки Новостройки на карте Акции от застройщиков Коммерческие помещения Продавцы и застройщики Панорамы новостроек Видеообзор новостроек Экспертиза новостроек Экология Москвы и Подмосковья Студии 1-комнатные 2-комнатные 3-комнатные Квартиры на карте Ипотечный калькулятор Семейная ипотека Военная ипотека Банки и программы Медиа Новости недвижимости Мнение эксперта Аналитика рынка Покупателю Экспертиза новостроек Эксперты и авторы О проекте Контакты Реклама на сайте Vk Youtube Telegram Дзен Машиноместа Апартаменты #траншевая ипотека #рассрочка IT-ипотека Квартиры со скидками до 40% Видео 360° новостроек Субсидированная застройщиком Rutube Поиск дома в Москве Программа реновации в Москве Новостройки премиум-класса Новостройки бизнес-класса Рассрочка Траншевая ипотека ГАЛС Дома и коттеджи Бизнес-центры Бизнес-центры в Москве Бизнес-центры рядом с метро Строящиеся бизнес-центры Бизнес-центры класса A Бизнес-центры класса B ЛСР
студия, 29.90 м2, 16 этаж
Срок сдачи 4 квартал 2027 года
15 020 501 
21 464 296
502 358 2
обновлено 5 декабря

Описание студии

Застройщик
Срок ГК
4 квартал 2027 года
Стадия строительства
Общая площадь
29.90 м2
Этаж
16 / 40

Расположение студии

Локация
Станция МЦК
Дом
1
Адрес
1-й Грайвороновский пр-д, вл. 2/2, секция 1

Способы покупки

Особенности

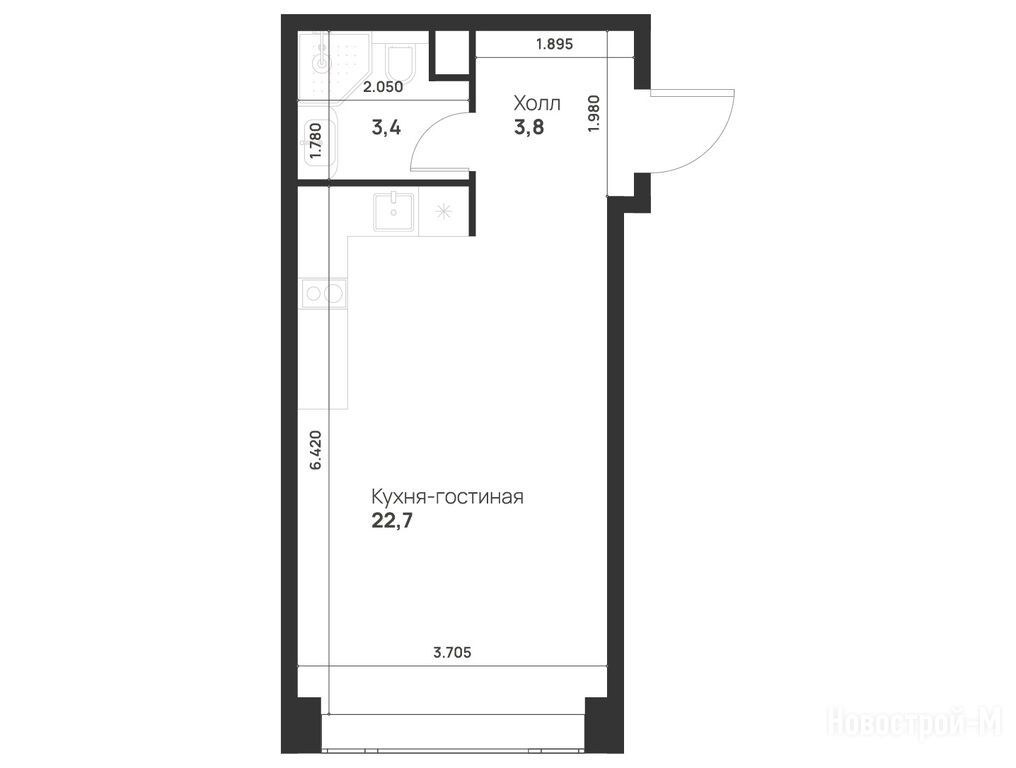
Продается студия в новостройке ЖК Voice Towers (Войс Тауэрс) по адресу Москва, ЮВАО, Текстильщики, 1-й Грайвороновский пр-д, вл. 2/2. Общая площадь квартиры - 29.9 кв. м. Тип проекта, по которому построен дом — Монолитно-кирпичный, компания-застройщик — 3S Group, СЗ ТРИ ЭС СИТИ. Стоимость квартиры — 15 020 501 руб. Способы оплаты можно уточнить у продавца. Срок сдачи — 4 квартал 2027. Более подробная информация по телефону.
3S Group
3S Group
Сданных 1
|
Строящихся 2
Время работы 09:00 — 21:00
Выбирайте квартиру в ЖК Voice Towers (Войс Тауэрс) по ценам от застройщика

Похожие квартиры в ЖК Voice Towers (Войс Тауэрс)

29 этаж
из 40 4 квартал 2027
Москва, ЮВАО
Новохохловская
12 мин.
1
Корпус
нет данных
Отделка
2.92 м
Потолки
ЖК Voice Towers (Войс Тауэрс)
15 272 144 21 823 894
Московский Кредитный Банк, СберБанк, Альфа-Банк, Промсвязьбанк, Совкомбанк, Банк Санкт-Петербург, Абсолют Банк, Металлинвестбанк, Россельхозбанк, ДОМ.РФ, Уралсиб, МТС Банк, Газпромбанк
6.00%
Ставка
50.01%
Первый взнос
от 91 564 /мес.
Все варианты
12 этаж
из 40 4 квартал 2027
Москва, ЮВАО
Новохохловская
12 мин.
1
Корпус
нет данных
Отделка
2.92 м
Потолки
ЖК Voice Towers (Войс Тауэрс)
17 855 500
Московский Кредитный Банк, СберБанк, Альфа-Банк, Промсвязьбанк, Совкомбанк, Банк Санкт-Петербург, Абсолют Банк, Металлинвестбанк, Россельхозбанк, ДОМ.РФ, Уралсиб, МТС Банк, Газпромбанк
6.00%
Ставка
50.01%
Первый взнос
от 107 053 /мес.
Все варианты
13 этаж
из 40 4 квартал 2027
Москва, ЮВАО
Новохохловская
12 мин.
1
Корпус
нет данных
Отделка
2.92 м
Потолки
ЖК Voice Towers (Войс Тауэрс)
17 855 500
Московский Кредитный Банк, СберБанк, Альфа-Банк, Промсвязьбанк, Совкомбанк, Банк Санкт-Петербург, Абсолют Банк, Металлинвестбанк, Россельхозбанк, ДОМ.РФ, Уралсиб, МТС Банк, Газпромбанк
6.00%
Ставка
50.01%
Первый взнос
от 107 053 /мес.
Все варианты
11 этаж
из 40 4 квартал 2027
Москва, ЮВАО
Новохохловская
12 мин.
1
Корпус
нет данных
Отделка
2.92 м
Потолки
ЖК Voice Towers (Войс Тауэрс)
17 855 500
Московский Кредитный Банк, СберБанк, Альфа-Банк, Промсвязьбанк, Совкомбанк, Банк Санкт-Петербург, Абсолют Банк, Металлинвестбанк, Россельхозбанк, ДОМ.РФ, Уралсиб, МТС Банк, Газпромбанк
6.00%
Ставка
50.01%
Первый взнос
от 107 053 /мес.
Все варианты
Посмотреть все спецпредложения
студия 22,10 м2 12 255 384
Этаж 7/40
Москва, ЖК Voice Towers (Войс Тауэрс)
Новохохловская
12 мин.
Строится
студия 22,20 м2 12 484 044
Этаж 12/40
Москва, ЖК Voice Towers (Войс Тауэрс)
Новохохловская
12 мин.
Строится
студия 22,70 м2 12 112 459
Этаж 29/40
Москва, ЖК Voice Towers (Войс Тауэрс)
Новохохловская
12 мин.
Строится
студия 22,80 м2 16 350 150
Этаж 16/33
Москва, ЖК Voice Towers (Войс Тауэрс)
Новохохловская
12 мин.
Строится
Посмотреть 41 квартира в ЖК Voice Towers (Войс Тауэрс)
1-комн. квартира 35,80 м2 22 390 150
Этаж 17/33
Москва, ЖК Voice Towers (Войс Тауэрс)
Новохохловская
12 мин.
Строится
1-комн. квартира 36,00 м2 22 690 150
Этаж 21/33
Москва, ЖК Voice Towers (Войс Тауэрс)
Новохохловская
12 мин.
Строится
1-комн. квартира 36,30 м2 22 250 150
Этаж 17/33
Москва, ЖК Voice Towers (Войс Тауэрс)
Новохохловская
12 мин.
Строится
1-комн. квартира 36,40 м2 22 450 150
Этаж 23/33
Москва, ЖК Voice Towers (Войс Тауэрс)
Новохохловская
12 мин.
Строится
Посмотреть 76 квартир в ЖК Voice Towers (Войс Тауэрс)
2-комн. квартира 44,40 м2 24 832 000
Этаж 17/33
Москва, ЖК Voice Towers (Войс Тауэрс)
Новохохловская
12 мин.
Строится
2-комн. квартира 44,50 м2 24 832 000
Этаж 23/33
Москва, ЖК Voice Towers (Войс Тауэрс)
Новохохловская
12 мин.
Строится
2-комн. квартира 48,30 м2 25 101 760
Этаж 8/33
Москва, ЖК Voice Towers (Войс Тауэрс)
Новохохловская
12 мин.
Строится
2-комн. квартира 48,60 м2 21 761 340
Этаж 21/33
Москва, ЖК Voice Towers (Войс Тауэрс)
Новохохловская
12 мин.
Строится
Посмотреть 98 квартир в ЖК Voice Towers (Войс Тауэрс)
3-комн. квартира 69,70 м2 34 514 460
Этаж 17/33
Москва, ЖК Voice Towers (Войс Тауэрс)
Новохохловская
12 мин.
Строится
3-комн. квартира 70,00 м2 34 514 460
Этаж 22/33
Москва, ЖК Voice Towers (Войс Тауэрс)
Новохохловская
12 мин.
Строится
3-комн. квартира 71,40 м2 35 180 150
Этаж 16/33
Москва, ЖК Voice Towers (Войс Тауэрс)
Новохохловская
12 мин.
Строится
3-комн. квартира 71,50 м2 35 791 550
Этаж 22/33
Москва, ЖК Voice Towers (Войс Тауэрс)
Новохохловская
12 мин.
Строится
Посмотреть 19 квартир в ЖК Voice Towers (Войс Тауэрс)

Скидки и спецпредложения от застройщиков

ЖК Voice Towers (Войс Тауэрс) на карте

Выгодные предложения на новостройки

Отзывы о ЖК Voice Towers (Войс Тауэрс)

Самый полезный отзыв
АУ
27 мая 2024
Оценка:
Транспортная доступность
Расположение
На районе хватает ТЦ и развлечений, есть каток, бассейн и много чего еще. Вот это прям здорово и важно для меня, на самом деле. Сам ЖК выглядит многообещающе.
Ответить
Полезный отзыв?
Самый новый отзыв
ММ
26 ноября
Оценка:
Покупка квартиры - дело серьёзное, и я рад, что доверился 3С групп. Войс - качественный стильный проект с продуманным дизайном и локациями для жильцов. Просторные планировки - топ. А панорамные виды из окон будут шикарные
Ответить
Полезный отзыв?
Добавьте отзыв, заполнив личные данные, или сначала войдите на сайт, тогда информация будет автоматически взята из личного профиля.
Оценка*