Рейтинг@Mail.ru
Переверните экран
Новостройки Квартиры Ипотека Новостройки Москвы Новостройки Подмосковья Новостройки Новой Москвы Готовые новостройки Новостройки на карте Акции от застройщиков Коммерческие помещения Продавцы и застройщики Панорамы новостроек Видеообзор новостроек Экспертиза новостроек Экология Москвы и Подмосковья Студии 1-комнатные 2-комнатные 3-комнатные Квартиры на карте Ипотечный калькулятор Семейная ипотека Военная ипотека Банки и программы Медиа Новости недвижимости Мнение эксперта Аналитика рынка Покупателю Экспертиза новостроек Эксперты и авторы О проекте Контакты Реклама на сайте Vk Youtube Telegram Дзен Машиноместа Апартаменты #траншевая ипотека #рассрочка ИТ-ипотека Квартиры со скидками до 40% Видео 360° новостроек Субсидированная застройщиком Rutube Поиск дома в Москве Программа реновации в Москве Новостройки премиум-класса Новостройки бизнес-класса Рассрочка Траншевая ипотека Дома и коттеджи Бизнес-центры Бизнес-центры в Москве Бизнес-центры рядом с метро Строящиеся бизнес-центры Бизнес-центры класса A Бизнес-центры класса B Ипотека со ставкой 0,1%
студия, 29.20 м2, 4 этаж
Срок сдачи 3 квартал 2028 года
20 972 900 
24 674 000
718 250 2
обновлено 19 марта

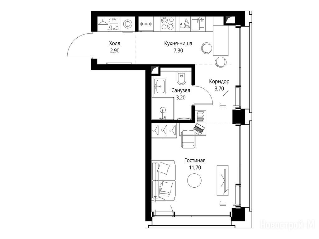
Описание студии

Новостройка
Застройщик
Срок ГК
3 квартал 2028 года
Стадия строительства
монтаж верхних этажей
Общая площадь
29.20 м2
Жилая площадь
11.70 м2
Площадь кухни
7.30 м2
Этаж
4 / 18
Отделка
нет
Грузовой лифт
есть

Расположение студии

Локация
Станция МЦД
Дом
1
Адрес
ул. Верейская, вл. 29, стр. 32Б, корп. 1, секция 1

Особенности

Продается студия в новостройке ЖК «СЕТ» по адресу Москва, ЗАО, Можайский, ул. Верейская, вл. 29, стр. 32Б, корп. 1. Общая площадь квартиры - 29.2 кв. м. Тип проекта, по которому построен дом — Монолитно-кирпичный, компания-застройщик — MR Group (МР Групп). Стоимость квартиры — 20 972 900 руб. Способы оплаты можно уточнить у продавца. Срок сдачи — 3 квартал 2028. Более подробная информация по телефону.
Инфоцентр новостроек
Инфоцентр новостроек
+7 (499) 705-91-41
Время работы 9:00 — 21:00

Похожие квартиры в ЖК «СЕТ»

7 этаж
из 18 3 квартал 2028
Москва, ЗАО
Давыдково
22 мин.
1
Корпус
нет
Отделка
2.85 м
Потолки
ЖК «СЕТ»
21 444 480 25 228 800
13 этаж
из 18 3 квартал 2028
Москва, ЗАО
Давыдково
22 мин.
1
Корпус
нет
Отделка
2.85 м
Потолки
ЖК «СЕТ»
21 593 400 25 404 000
Этаж 22/45
Москва, ЖК «СЕТ»
Давыдково
22 мин.
Строится
Этаж 19/45
Москва, ЖК «СЕТ»
Давыдково
22 мин.
Строится
Этаж 31/45
Москва, ЖК «СЕТ»
Давыдково
22 мин.
Строится
Этаж 4/59
Москва, ЖК «СЕТ»
Давыдково
22 мин.
Строится
Посмотреть 60 квартир в ЖК «СЕТ»
Этаж 12/59
Москва, ЖК «СЕТ»
Давыдково
22 мин.
Строится
Этаж 12/59
Москва, ЖК «СЕТ»
Давыдково
22 мин.
Строится
Этаж 57/59
Москва, ЖК «СЕТ»
Давыдково
22 мин.
Строится
1-комн. квартира 32,47 м2 23 378 400
Этаж 59/59
Москва, ЖК «СЕТ»
Давыдково
22 мин.
Строится
Посмотреть 264 квартиры в ЖК «СЕТ»
Этаж 31/52
Москва, ЖК «СЕТ»
Давыдково
22 мин.
Строится
Этаж 46/52
Москва, ЖК «СЕТ»
Давыдково
22 мин.
Строится
Этаж 49/52
Москва, ЖК «СЕТ»
Давыдково
22 мин.
Строится
Этаж 49/52
Москва, ЖК «СЕТ»
Давыдково
22 мин.
Строится
Посмотреть 221 квартира в ЖК «СЕТ»
Этаж 28/52
Москва, ЖК «СЕТ»
Давыдково
22 мин.
Строится
Этаж 22/45
Москва, ЖК «СЕТ»
Давыдково
22 мин.
Строится
Этаж 16/52
Москва, ЖК «СЕТ»
Давыдково
22 мин.
Строится
Этаж 34/45
Москва, ЖК «СЕТ»
Давыдково
22 мин.
Строится
Посмотреть 66 квартир в ЖК «СЕТ»
Этаж 48/59
Москва, ЖК «СЕТ»
Давыдково
22 мин.
Строится
Этаж 4/52
Москва, ЖК «СЕТ»
Давыдково
22 мин.
Строится
Этаж 48/59
Москва, ЖК «СЕТ»
Давыдково
22 мин.
Строится
Этаж 4/52
Москва, ЖК «СЕТ»
Давыдково
22 мин.
Строится
Посмотреть 9 квартир в ЖК «СЕТ»
Этаж 53/59
Москва, ЖК «СЕТ»
Давыдково
22 мин.
Строится

Скидки и спецпредложения от застройщиков

ЖК «СЕТ» на карте

Выгодные предложения на новостройки

Отзывы о ЖК «СЕТ»

Самый полезный отзыв
КР
20 ноября 2024
Оценка:
Достоинства
Социальная инфраструктура
Внешний вид фасада
Двор, окружение
Расположение
Жилой квартал состоит из трех корпусов, каждый из которых выполнен в своем стиле. Вроде как будут смотровые площадки, с которых панорама района предстанет как на ладони. Проектом предусмотрена своя инфраструктура - Фитнес-клуб с бассейном, детская школа искусств, школа и детский сад, центр культуры и досуга, медицинский центр, кафе и рестораны, мини-маркет
Ответить
Самый новый отзыв
ДМ
06 марта
Оценка:
Достоинства
Планировки
Способы покупки
Для меня бизнес-класс всегда означает больше удобства. Но ещё не определилась, готова ли платить такую цену за расположение.
Ответить

Оставить отзыв

Добавьте отзыв, заполнив личные данные, или сначала войдите на сайт, тогда информация будет автоматически взята из личного профиля.
Оценка*