Рейтинг@Mail.ru
Переверните экран
Новостройки Квартиры Ипотека Новостройки Москвы Новостройки Подмосковья Новостройки Новой Москвы Готовые новостройки Новостройки на карте Акции от застройщиков Коммерческие помещения Продавцы и застройщики Панорамы новостроек Видеообзор новостроек Экспертиза новостроек Экология Москвы и Подмосковья Студии 1-комнатные 2-комнатные 3-комнатные Квартиры на карте Ипотечный калькулятор Семейная ипотека Военная ипотека Банки и программы Медиа Новости недвижимости Мнение эксперта Аналитика рынка Покупателю Экспертиза новостроек Эксперты и авторы О проекте Контакты Реклама на сайте Vk Youtube Telegram Дзен Машиноместа Апартаменты #траншевая ипотека #рассрочка ИТ-ипотека Квартиры со скидками до 40% Видео 360° новостроек Субсидированная застройщиком Rutube Поиск дома в Москве Программа реновации в Москве Новостройки премиум-класса Новостройки бизнес-класса Рассрочка Траншевая ипотека Дома и коттеджи Бизнес-центры Бизнес-центры в Москве Бизнес-центры рядом с метро Строящиеся бизнес-центры Бизнес-центры класса A Бизнес-центры класса B Ипотека со ставкой 0,1%
2-комн. квартира, 49.07 м2, 31 этаж
Срок сдачи 3 квартал 2028 года
28 007 929 
32 950 505
570 775 2
обновлено 7 марта

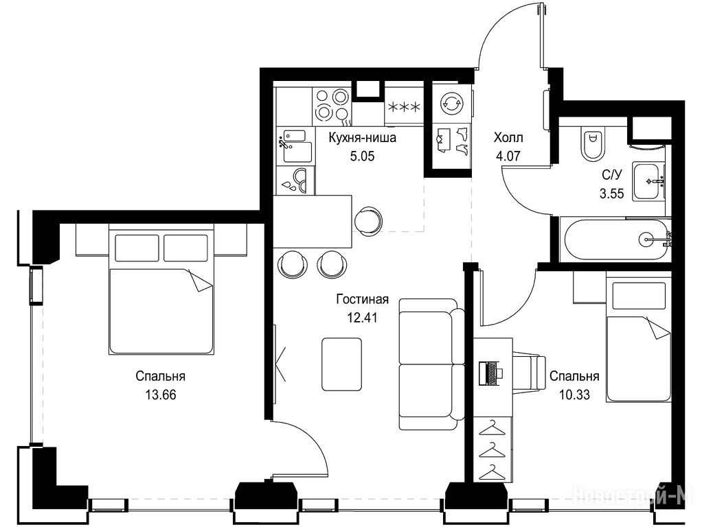
Описание 2-комн. квартиры

Новостройка
Застройщик
Срок ГК
3 квартал 2028 года
Стадия строительства
монтаж нижних этажей
Общая площадь
49.07 м2
Этаж
31 / 52
Отделка
нет

Расположение 2-комн. квартиры

Локация
Станция МЦД
Дом
A
Адрес
ул. Верейская, вл. 29, стр. 32Б, корп. A, секция 1

Особенности

Продается двухкомнатная квартира в новостройке ЖК «СЕТ» по адресу Москва, ЗАО, Можайский, ул. Верейская, вл. 29, стр. 32Б, корп. A. Общая площадь квартиры - 49.07 кв. м. Тип проекта, по которому построен дом — Монолитно-кирпичный, компания-застройщик — MR Group (МР Групп). Стоимость квартиры — 28 007 929 руб. Способы оплаты можно уточнить у продавца. Срок сдачи — 3 квартал 2028. Более подробная информация по телефону.
Инфоцентр новостроек
Инфоцентр новостроек
+7 (499) 705-91-41
Время работы 9:00 — 21:00

Похожие квартиры в ЖК «СЕТ»

28 этаж
из 52 3 квартал 2028
Москва, ЗАО
Давыдково
22 мин.
A
Корпус
нет
Отделка
2.85 м
Потолки
ЖК «СЕТ»
27 945 365 32 876 900
Этаж 25/59
Москва, ЖК «СЕТ»
Давыдково
22 мин.
Строится
Этаж 19/59
Москва, ЖК «СЕТ»
Давыдково
22 мин.
Строится
Этаж 34/59
Москва, ЖК «СЕТ»
Давыдково
22 мин.
Строится
Этаж 4/59
Москва, ЖК «СЕТ»
Давыдково
22 мин.
Строится
Посмотреть 60 квартир в ЖК «СЕТ»
1-комн. квартира 30,77 м2 24 092 910
Этаж 14/59
Москва, ЖК «СЕТ»
Давыдково
22 мин.
Строится
1-комн. квартира 31,70 м2 24 535 800
Этаж 14/59
Москва, ЖК «СЕТ»
Давыдково
22 мин.
Строится
Этаж 57/59
Москва, ЖК «СЕТ»
Давыдково
22 мин.
Строится
1-комн. квартира 32,47 м2 23 378 400
Этаж 59/59
Москва, ЖК «СЕТ»
Давыдково
22 мин.
Строится
Посмотреть 279 квартир в ЖК «СЕТ»
Этаж 28/52
Москва, ЖК «СЕТ»
Давыдково
22 мин.
Строится
Этаж 46/52
Москва, ЖК «СЕТ»
Давыдково
22 мин.
Строится
Этаж 49/52
Москва, ЖК «СЕТ»
Давыдково
22 мин.
Строится
Этаж 49/52
Москва, ЖК «СЕТ»
Давыдково
22 мин.
Строится
Посмотреть 221 квартира в ЖК «СЕТ»
Этаж 28/52
Москва, ЖК «СЕТ»
Давыдково
22 мин.
Строится
Этаж 22/59
Москва, ЖК «СЕТ»
Давыдково
22 мин.
Строится
Этаж 25/59
Москва, ЖК «СЕТ»
Давыдково
22 мин.
Строится
Этаж 16/52
Москва, ЖК «СЕТ»
Давыдково
22 мин.
Строится
Посмотреть 67 квартир в ЖК «СЕТ»
Этаж 48/59
Москва, ЖК «СЕТ»
Давыдково
22 мин.
Строится
Этаж 4/52
Москва, ЖК «СЕТ»
Давыдково
22 мин.
Строится
Этаж 48/59
Москва, ЖК «СЕТ»
Давыдково
22 мин.
Строится
Этаж 4/52
Москва, ЖК «СЕТ»
Давыдково
22 мин.
Строится
Посмотреть 9 квартир в ЖК «СЕТ»
5-комн. квартира 102,10 м2 48 165 675
Этаж 56/59
Москва, ЖК «СЕТ»
Давыдково
22 мин.
Строится

Скидки и спецпредложения от застройщиков

ЖК «СЕТ» на карте

Выгодные предложения на новостройки

Отзывы о ЖК «СЕТ»

Самый полезный отзыв
КР
20 ноября 2024
Оценка:
Достоинства
Социальная инфраструктура
Внешний вид фасада
Двор, окружение
Расположение
Жилой квартал состоит из трех корпусов, каждый из которых выполнен в своем стиле. Вроде как будут смотровые площадки, с которых панорама района предстанет как на ладони. Проектом предусмотрена своя инфраструктура - Фитнес-клуб с бассейном, детская школа искусств, школа и детский сад, центр культуры и досуга, медицинский центр, кафе и рестораны, мини-маркет
Ответить
Самый новый отзыв
ДМ
06 марта
Оценка:
Достоинства
Планировки
Способы покупки
Для меня бизнес-класс всегда означает больше удобства. Но ещё не определилась, готова ли платить такую цену за расположение.
Ответить

Оставить отзыв

Добавьте отзыв, заполнив личные данные, или сначала войдите на сайт, тогда информация будет автоматически взята из личного профиля.
Оценка*