Рейтинг@Mail.ru
Переверните экран
Новостройки Квартиры Ипотека Новостройки Москвы Новостройки Подмосковья Новостройки Новой Москвы Готовые новостройки Новостройки на карте Акции от застройщиков Коммерческие помещения Продавцы и застройщики Панорамы новостроек Видеообзор новостроек Экспертиза новостроек Экология Москвы и Подмосковья Студии 1-комнатные 2-комнатные 3-комнатные Квартиры на карте Ипотечный калькулятор Семейная ипотека Военная ипотека Банки и программы Медиа Новости недвижимости Мнение эксперта Аналитика рынка Покупателю Экспертиза новостроек Эксперты и авторы О проекте Контакты Реклама на сайте Vk Youtube Telegram Дзен Машиноместа Апартаменты #траншевая ипотека #рассрочка IT-ипотека Квартиры со скидками до 40% Видео 360° новостроек Субсидированная застройщиком Rutube Поиск дома в Москве Программа реновации в Москве Новостройки премиум-класса Новостройки бизнес-класса Рассрочка Траншевая ипотека Дома и коттеджи Бизнес-центры Бизнес-центры в Москве Бизнес-центры рядом с метро Строящиеся бизнес-центры Бизнес-центры класса A Бизнес-центры класса B
Данная квартира является лидером продаж среди студий в ЖК Riga Hills (Рига Хиллс) по данным Росреестра
студия, 35.63 м2, 7 этаж
Срок сдачи 1 квартал 2026 года
9 877 320 
277 219 2
обновлено 3 февраля

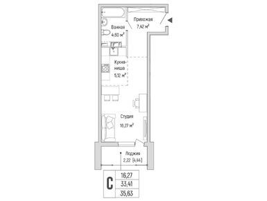
Описание студии

Новостройка
Застройщик
Срок ГК
1 квартал 2026 года
Стадия строительства
отделка фасада и внутренние работы
Общая площадь
35.63 м2
Жилая площадь
16.27 м2
Площадь кухни
5.12 м2
Этаж
7 / 9

Расположение студии

Станция МЦД
Павшино
20 мин.
Ж/Д-станция
Дом
2
Адрес
ЖК Riga Hills (Рига Хилс), секция 6

Способы покупки

Особенности

Продается студия в новостройке ЖК Riga Hills (Рига Хиллс) по адресу Московская область, Красногорск городской округ, Ильинское С/П, Бузланово деревня, ЖК Riga Hills (Рига Хилс). Общая площадь квартиры - 35.63 кв. м. Тип проекта, по которому построен дом — Монолитно-кирпичный, компания-застройщик — ГК UNION (Юнион), ООО СЗ ЖК Яркий. Рига. Стоимость квартиры — 9 877 320 руб. Способы оплаты можно уточнить у продавца. Срок сдачи — 1 квартал 2026. Более подробная информация по телефону.
Инфоцентр новостроек
Инфоцентр новостроек
+7 (499) 705-91-41
Время работы 9:00 — 21:00

Похожие квартиры в ЖК Riga Hills (Рига Хиллс)

8 этаж
из 9 1 квартал 2026
Московская область, Ильинское С/П
Ильинская (2029)
10 мин.
2
Корпус
нет данных
Отделка
3.00 м
Потолки
ЖК Riga Hills (Рига Хиллс)
10 066 050
ВТБ, Альфа-Банк, Абсолют Банк, Газпромбанк, СберБанк, Металлинвестбанк, Совкомбанк, ДОМ.РФ, Уралсиб, АК БАРС, Россельхозбанк
6.00%
Ставка
40.10%
Первый взнос
от 60 351 /мес.
Все варианты
9 этаж
из 9 1 квартал 2026
Московская область, Ильинское С/П
Ильинская (2029)
10 мин.
2
Корпус
нет данных
Отделка
3.00 м
Потолки
ЖК Riga Hills (Рига Хиллс)
10 066 050
ВТБ, Альфа-Банк, Абсолют Банк, Газпромбанк, СберБанк, Металлинвестбанк, Совкомбанк, ДОМ.РФ, Уралсиб, АК БАРС, Россельхозбанк
6.00%
Ставка
40.10%
Первый взнос
от 60 351 /мес.
Все варианты
Посмотреть все спецпредложения
Этаж 1/9
МО, ЖК Riga Hills (Рига Хиллс)
Ильинская (2029)
10 мин.
Строится
Этаж 1/9
МО, ЖК Riga Hills (Рига Хиллс)
Ильинская (2029)
10 мин.
Строится
Этаж 1/9
МО, ЖК Riga Hills (Рига Хиллс)
Ильинская (2029)
10 мин.
Строится
студия 31,28 м2 8 551 860
Этаж 6/9
МО, ЖК Riga Hills (Рига Хиллс)
Ильинская (2029)
10 мин.
Строится
Посмотреть 143 квартиры в ЖК Riga Hills (Рига Хиллс)
1-комн. квартира 40,22 м2 12 576 330
Этаж 8/9
МО, ЖК Riga Hills (Рига Хиллс)
Ильинская (2029)
10 мин.
Строится
1-комн. квартира 40,50 м2 12 400 404
Этаж 4/9
МО, ЖК Riga Hills (Рига Хиллс)
Ильинская (2029)
10 мин.
Строится
1-комн. квартира 40,54 м2 12 432 788
Этаж 6/9
МО, ЖК Riga Hills (Рига Хиллс)
Ильинская (2029)
10 мин.
Строится
1-комн. квартира 40,58 м2 11 200 540
Этаж 9/9
МО, ЖК Riga Hills (Рига Хиллс)
Ильинская (2029)
10 мин.
Строится
Посмотреть 167 квартир в ЖК Riga Hills (Рига Хиллс)
2-комн. квартира 64,70 м2 17 070 692
Этаж 1/9
МО, ЖК Riga Hills (Рига Хиллс)
Ильинская (2029)
10 мин.
Строится
Этаж 1/9
МО, ЖК Riga Hills (Рига Хиллс)
Ильинская (2029)
10 мин.
Строится
2-комн. квартира 69,21 м2 16 553 430
Этаж 1/9
МО, ЖК Riga Hills (Рига Хиллс)
Ильинская (2029)
10 мин.
Строится
2-комн. квартира 70,71 м2 17 324 520
Этаж 1/9
МО, ЖК Riga Hills (Рига Хиллс)
Ильинская (2029)
10 мин.
Строится
Посмотреть 150 квартир в ЖК Riga Hills (Рига Хиллс)
3-комн. квартира 90,74 м2 29 866 410
Этаж 9/9
МО, ЖК Riga Hills (Рига Хиллс)
Ильинская (2029)
10 мин.
Строится
3-комн. квартира 91,20 м2 25 075 620
Этаж 1/9
МО, ЖК Riga Hills (Рига Хиллс)
Ильинская (2029)
10 мин.
Строится
3-комн. квартира 101,19 м2 25 296 840
Этаж 9/9
МО, ЖК Riga Hills (Рига Хиллс)
Ильинская (2029)
10 мин.
Строится
3-комн. квартира 101,37 м2 25 350 390
Этаж 9/9
МО, ЖК Riga Hills (Рига Хиллс)
Ильинская (2029)
10 мин.
Строится
Посмотреть 52 квартиры в ЖК Riga Hills (Рига Хиллс)

Скидки и спецпредложения от застройщиков

ЖК Riga Hills (Рига Хиллс) на карте

Выгодные предложения на новостройки

Отзывы о ЖК Riga Hills (Рига Хиллс)

Самый полезный отзыв
А
10 декабря 2023
Оценка:
Планировки
Способы покупки
Внешний вид фасада
Входные группы
Двор, окружение
Расположение
Отличные потолки и окна, 3 метра дают простор хоть какой-то. На то и бизнес класс. Оформляюсь на 7 этаже. Соседи, привет!
Показать все комментарии
Ответить
Полезный отзыв?
Самый новый отзыв
ГД
11 января
Оценка:
Планировки
Способы покупки
Внешний вид фасада
Двор, окружение
Расположение
Формат больше загородный, с упором на пространство и воздух. Рассматривал как альтернативу квартире в городе. Но без машины здесь делать нечего, это нужно честно учитывать
Ответить
Полезный отзыв?
Добавьте отзыв, заполнив личные данные, или сначала войдите на сайт, тогда информация будет автоматически взята из личного профиля.
Оценка*