Рейтинг@Mail.ru
Переверните экран
Новостройки Квартиры Ипотека Новостройки Москвы Новостройки Подмосковья Новостройки Новой Москвы Готовые новостройки Новостройки на карте Акции от застройщиков Коммерческие помещения Продавцы и застройщики Панорамы новостроек Видеообзор новостроек Экспертиза новостроек Экология Москвы и Подмосковья Студии 1-комнатные 2-комнатные 3-комнатные Квартиры на карте Ипотечный калькулятор Семейная ипотека Военная ипотека Банки и программы Медиа Новости недвижимости Мнение эксперта Аналитика рынка Покупателю Экспертиза новостроек Эксперты и авторы О проекте Контакты Реклама на сайте Vk Youtube Telegram Дзен Машиноместа Апартаменты #траншевая ипотека #рассрочка IT-ипотека Квартиры со скидками до 40% Видео 360° новостроек Субсидированная застройщиком Rutube Поиск дома в Москве Программа реновации в Москве Новостройки премиум-класса Новостройки бизнес-класса Рассрочка Траншевая ипотека ГАЛС Дома и коттеджи Бизнес-центры Бизнес-центры в Москве Бизнес-центры рядом с метро Строящиеся бизнес-центры Бизнес-центры класса A Бизнес-центры класса B ЛСР
студия, 31.20 м2, 4 этаж
Срок сдачи 4 квартал 2025 года
22 284 881 
714 259 2
обновлено 5 декабря

Описание студии

Застройщик
Срок ГК
4 квартал 2025 года
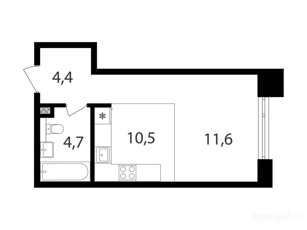
Общая площадь
31.20 м2
Жилая площадь
11.60 м2
Площадь кухни
10.50 м2
Этаж
4 / 25
Отделка
нет

Расположение студии

Локация
Станция МЦД
Станция МЦК
Дом
1
Адрес
пр-д Старый Петровско-Разумовский, вл. 1/23, секция 4

Способы покупки

Особенности

Продается студия в новостройке ЖК «Петровский парк II» по адресу Москва, САО, Савеловский, пр-д Старый Петровско-Разумовский, вл. 1/23. Общая площадь квартиры - 31.2 кв. м. Тип проекта, по которому построен дом — Монолитно-кирпичный, компания-застройщик — РГ-Девелопмент. Стоимость квартиры — 22 284 881 руб. Способы оплаты можно уточнить у продавца. Срок сдачи — 4 квартал 2025. Более подробная информация по телефону.
Инфоцентр новостроек
Инфоцентр новостроек
+7 (499) 705-91-41
Время работы 9:00 — 21:00

Похожие квартиры в ЖК «Петровский парк II»

18 этаж
из 25 4 квартал 2025
Москва, САО
Гражданская
14 мин.
1
Корпус
нет
Отделка
3.10 м
Потолки
ЖК «Петровский парк II»
22 560 283
Московский Кредитный Банк, СберБанк, Совкомбанк
2.99%
Ставка
30.00%
Первый взнос
от 94 993 /мес.
Все варианты
15 этаж
из 25 4 квартал 2025
Москва, САО
Гражданская
14 мин.
1
Корпус
нет
Отделка
3.10 м
Потолки
ЖК «Петровский парк II»
22 560 283
Московский Кредитный Банк, СберБанк, Совкомбанк
2.99%
Ставка
30.00%
Первый взнос
от 94 993 /мес.
Все варианты
Посмотреть все спецпредложения
студия 23,90 м2 17 562 318
Этаж 9/25
Москва, ЖК «Петровский парк II»
Гражданская
14 мин.
Строится
студия 26,80 м2 19 403 093
Этаж 10/25
Москва, ЖК «Петровский парк II»
Гражданская
14 мин.
Строится
студия 27,60 м2 19 058 021
Этаж 5/25
Москва, ЖК «Петровский парк II»
Гражданская
14 мин.
Строится
студия 31,20 м2 22 560 283
Этаж 18/25
Москва, ЖК «Петровский парк II»
Гражданская
14 мин.
Строится
Посмотреть 6 квартир в ЖК «Петровский парк II»
1-комн. квартира 39,70 м2 25 856 094
Этаж 4/17
Москва, ЖК «Петровский парк II»
Гражданская
14 мин.
Строится
1-комн. квартира 42,50 м2 25 540 970
Этаж 3/17
Москва, ЖК «Петровский парк II»
Гражданская
14 мин.
Строится
1-комн. квартира 42,70 м2 25 711 677
Этаж 2/17
Москва, ЖК «Петровский парк II»
Гражданская
14 мин.
Строится
1-комн. квартира 43,20 м2 25 328 722
Этаж 2/21
Москва, ЖК «Петровский парк II»
Гражданская
14 мин.
Строится
Посмотреть 66 квартир в ЖК «Петровский парк II»
2-комн. квартира 62,30 м2 36 646 355
Этаж 4/24
Москва, ЖК «Петровский парк II»
Гражданская
14 мин.
Строится
2-комн. квартира 63,00 м2 34 764 912
Этаж 3/17
Москва, ЖК «Петровский парк II»
Гражданская
14 мин.
Строится
2-комн. квартира 63,40 м2 37 235 708
Этаж 16/17
Москва, ЖК «Петровский парк II»
Гражданская
14 мин.
Строится
2-комн. квартира 64,00 м2 37 972 480
Этаж 17/17
Москва, ЖК «Петровский парк II»
Гражданская
14 мин.
Строится
Посмотреть 72 квартиры в ЖК «Петровский парк II»
3-комн. квартира 84,50 м2 53 288 235
Этаж 12/17
Москва, ЖК «Петровский парк II»
Гражданская
14 мин.
Строится
3-комн. квартира 87,10 м2 46 629 246
Этаж 19/24
Москва, ЖК «Петровский парк II»
Гражданская
14 мин.
Строится
3-комн. квартира 87,50 м2 49 152 513
Этаж 9/25
Москва, ЖК «Петровский парк II»
Гражданская
14 мин.
Строится
3-комн. квартира 90,10 м2 48 128 717
Этаж 18/25
Москва, ЖК «Петровский парк II»
Гражданская
14 мин.
Строится
Посмотреть 35 квартир в ЖК «Петровский парк II»

Скидки и спецпредложения от застройщиков

ЖК «Петровский парк II» на карте

Выгодные предложения на новостройки

Отзывы о ЖК «Петровский парк II»

Самый полезный отзыв
Д
21 ноября 2022
Оценка:
Транспортная доступность
Планировки
Очень приятно что я первая кто оставит тут свой отзыв!) Хочется отметить работу менеджеров которые оперативно включаются во все вопросы и консультируют очень грамотно. Ждали старта продаж в этом ЖК так как были наслышаны и о застройщике и локация нам очень понравилась. Теперь будем считать дни от начала и до окончания строительства!!!)
Ответить
Полезный отзыв?
Самый новый отзыв
КД
14 мая
Оценка:
Транспортная доступность
Скорость строительства
Двор, окружение
Расположение
Когда я первый раз увидел этот ЖК, меня просто поразило, где он находится и как выглядит. Комплекс стоит в тихом, чистом районе, где воздух свежий и шума почти нет. Это реально круто для будущих жильцов. Рядом ТТК, Ленинградка и Бутырская, так что подъехать можно с трех сторон. До центра города рукой подать, можно быстро доехать на метро или машине. Сейчас на стройке кипит работа, трудятся опытные профи и крутая техника. Проект идет по плану, и есть надежда, что все сделают вовремя.
Ответить
Полезный отзыв?
Добавьте отзыв, заполнив личные данные, или сначала войдите на сайт, тогда информация будет автоматически взята из личного профиля.
Оценка*