Рейтинг@Mail.ru
Переверните экран
Новостройки Квартиры Ипотека Новостройки Москвы Новостройки Подмосковья Новостройки Новой Москвы Готовые новостройки Новостройки на карте Акции от застройщиков Коммерческие помещения Продавцы и застройщики Панорамы новостроек Видеообзор новостроек Экспертиза новостроек Экология Москвы и Подмосковья Студии 1-комнатные 2-комнатные 3-комнатные Квартиры на карте Ипотечный калькулятор Семейная ипотека Военная ипотека Банки и программы Медиа Новости недвижимости Мнение эксперта Аналитика рынка Покупателю Экспертиза новостроек Эксперты и авторы О проекте Контакты Реклама на сайте Vk Youtube Telegram Дзен Машиноместа Апартаменты #траншевая ипотека #рассрочка IT-ипотека Квартиры со скидками до 40% Видео 360° новостроек Субсидированная застройщиком Rutube Поиск дома в Москве Программа реновации в Москве Новостройки премиум-класса Новостройки бизнес-класса Рассрочка Траншевая ипотека ГАЛС Дома и коттеджи Бизнес-центры Бизнес-центры в Москве Бизнес-центры рядом с метро Строящиеся бизнес-центры Бизнес-центры класса A Бизнес-центры класса B ЛСР
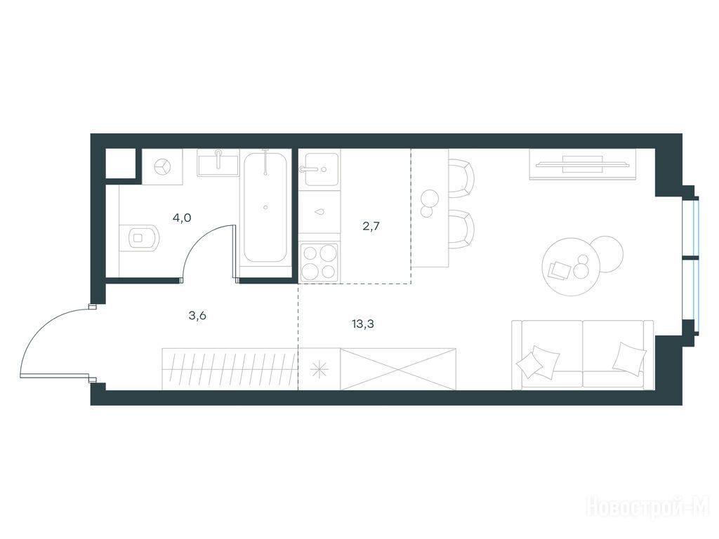
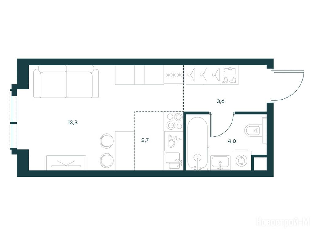
студия, 23.60 м2, 14 этаж
Срок сдачи 4 квартал 2027 года
18 881 588 
22 213 634
800 067 2
обновлено 5 декабря

Описание студии

Новостройка
Срок ГК
4 квартал 2027 года
Стадия строительства
монтаж верхних этажей
Тип проекта
Общая площадь
23.60 м2
Жилая площадь
13.30 м2
Площадь кухни
2.70 м2
Высота потолков
3.00
Этаж
14 / 20
Отделка
нет
Грузовой лифт
есть

Расположение студии

Локация
Метро
Дом
Горизонт (13)
Адрес
ул. Дубининская, вл. 69, корп. 13, секция 1

Способы покупки

Особенности

Продается студия в новостройке Level Павелецкая Сити по адресу Москва, ЮАО, Даниловский, ул. Дубининская, вл. 69, корп. 13. Общая площадь квартиры - 23.6 кв. м. Тип проекта, по которому построен дом — Монолит,Монолитно-кирпичный, компания-застройщик — Level Group (Левел Групп). Стоимость квартиры — 18 881 588 руб. Способы оплаты можно уточнить у продавца. Срок сдачи — 4 квартал 2027. Более подробная информация по телефону.

Правовые документы

Level Group (Левел Групп)
Level Group (Левел Групп)
Сданных 8
|
Строящихся 18
Время работы 09:00 — 21:00
Выбирайте квартиру в Level Павелецкая Сити по ценам от застройщика

Похожие квартиры в Level Павелецкая Сити

6 этаж
из 20 4 квартал 2027
Москва, ЮАО
Павелецкая
15 мин.
Горизонт (13)
Корпус
нет
Отделка
3.00 м
Потолки
Level Павелецкая Сити
18 500 248 21 764 998
ВТБ, Альфа-Банк, Новикомбанк, Всероссийский банк развития регионов, СберБанк, Банк Санкт-Петербург, Банк Россия, Абсолют Банк, Металлинвестбанк, Россельхозбанк, Уралсиб, ДОМ.РФ, Т-Банк, АК БАРС, Промсвязьбанк, Московский Кредитный Банк, Совкомбанк, МТС Банк
6.00%
Ставка
40.10%
Первый взнос
от 110 918 /мес.
Все варианты
Посмотреть все спецпредложения
студия 23,60 м2 18 500 248
Этаж 6/20
Москва, Level Павелецкая Сити
Павелецкая
15 мин.
Строится
студия 25,50 м2 19 306 582
Этаж 16/27
Москва, Level Павелецкая Сити
Павелецкая
15 мин.
Строится
студия 26,00 м2 19 058 078
Этаж 4/27
Москва, Level Павелецкая Сити
Павелецкая
15 мин.
Строится
студия 26,60 м2 18 584 104
Этаж 16/27
Москва, Level Павелецкая Сити
Павелецкая
15 мин.
Строится
Посмотреть 14 квартир в Level Павелецкая Сити
Этаж 31/45
Москва, Level Павелецкая Сити
Павелецкая
15 мин.
Строится
1-комн. квартира 31,10 м2 22 287 104
Этаж 26/45
Москва, Level Павелецкая Сити
Павелецкая
15 мин.
Строится
1-комн. квартира 36,60 м2 22 633 227
Этаж 14/45
Москва, Level Павелецкая Сити
Павелецкая
15 мин.
Строится
1-комн. квартира 36,70 м2 23 268 416
Этаж 30/45
Москва, Level Павелецкая Сити
Павелецкая
15 мин.
Строится
Посмотреть 26 квартир в Level Павелецкая Сити
2-комн. квартира 40,70 м2 24 628 846
Этаж 31/45
Москва, Level Павелецкая Сити
Павелецкая
15 мин.
Строится
2-комн. квартира 41,50 м2 24 613 227
Этаж 21/45
Москва, Level Павелецкая Сити
Павелецкая
15 мин.
Строится
2-комн. квартира 41,70 м2 25 143 349
Этаж 34/45
Москва, Level Павелецкая Сити
Павелецкая
15 мин.
Строится
2-комн. квартира 42,20 м2 24 414 871
Этаж 3/45
Москва, Level Павелецкая Сити
Павелецкая
15 мин.
Строится
Посмотреть 37 квартир в Level Павелецкая Сити
3-комн. квартира 56,80 м2 30 440 290
Этаж 2/45
Москва, Level Павелецкая Сити
Павелецкая
15 мин.
Строится
Этаж 2/27
Москва, Level Павелецкая Сити
Павелецкая
15 мин.
Строится
3-комн. квартира 58,50 м2 31 030 561
Этаж 3/20
Москва, Level Павелецкая Сити
Павелецкая
15 мин.
Строится
3-комн. квартира 58,60 м2 34 688 649
Этаж 16/45
Москва, Level Павелецкая Сити
Павелецкая
15 мин.
Строится
Посмотреть 45 квартир в Level Павелецкая Сити
4-комн. квартира 83,40 м2 43 536 692
Этаж 41/45
Москва, Level Павелецкая Сити
Павелецкая
15 мин.
Строится
4-комн. квартира 87,70 м2 41 357 758
Этаж 4/27
Москва, Level Павелецкая Сити
Павелецкая
15 мин.
Строится
4-комн. квартира 89,70 м2 62 141 310
Этаж 19/20
Москва, Level Павелецкая Сити
Павелецкая
15 мин.
Строится
4-комн. квартира 89,90 м2 50 128 574
Этаж 20/20
Москва, Level Павелецкая Сити
Павелецкая
15 мин.
Строится
Посмотреть 28 квартир в Level Павелецкая Сити
5-комн. квартира 91,70 м2 48 723 013
Этаж 31/45
Москва, Level Павелецкая Сити
Павелецкая
15 мин.
Строится
5-комн. квартира 95,00 м2 51 312 091
Этаж 35/45
Москва, Level Павелецкая Сити
Павелецкая
15 мин.
Строится
5-комн. квартира 96,10 м2 49 790 348
Этаж 27/45
Москва, Level Павелецкая Сити
Павелецкая
15 мин.
Строится
5-комн. квартира 97,10 м2 72 979 288
Этаж 24/45
Москва, Level Павелецкая Сити
Павелецкая
15 мин.
Строится
Посмотреть 10 квартир в Level Павелецкая Сити

Скидки и спецпредложения от застройщиков

Level Павелецкая Сити на карте

Выгодные предложения на новостройки

Отзывы о Level Павелецкая Сити

Самый полезный отзыв
Т
01 апреля 2020
Оценка:
Меня подкупили доступные цены на квартиры и застройщик, который занимается этим жк. Несмотря на то, что комплекс находится в Даниловском районе, стоимость жилья здесь приемлемая. Еще и застройщик внушает доверие, репутация у него неплохая, недостроев за ним не числится, так что я думаю, что проблем не будет.
Ответить
Полезный отзыв?
Самый новый отзыв
ИБ
22 апреля
Оценка:
Двор, окружение
Все выглядит современно и аккуратно. Территория комплекса организована так, что можно спокойно прогуляться или просто посидеть на лавочке. Особенно обратил внимание на доступ к wi-fi на территории двора и в лобби — это действительно удобно.
Ответить
Полезный отзыв?
Добавьте отзыв, заполнив личные данные, или сначала войдите на сайт, тогда информация будет автоматически взята из личного профиля.
Оценка*