Рейтинг@Mail.ru
Переверните экран
Новостройки Квартиры Ипотека Новостройки Москвы Новостройки Подмосковья Новостройки Новой Москвы Готовые новостройки Новостройки на карте Акции от застройщиков Коммерческие помещения Продавцы и застройщики Панорамы новостроек Видеообзор новостроек Экспертиза новостроек Экология Москвы и Подмосковья Студии 1-комнатные 2-комнатные 3-комнатные Квартиры на карте Ипотечный калькулятор Семейная ипотека Военная ипотека Банки и программы Медиа Новости недвижимости Мнение эксперта Аналитика рынка Покупателю Экспертиза новостроек Эксперты и авторы О проекте Контакты Реклама на сайте Vk Youtube Telegram Дзен Машиноместа Апартаменты #траншевая ипотека #рассрочка ИТ-ипотека Квартиры со скидками до 40% Видео 360° новостроек Субсидированная застройщиком Rutube Поиск дома в Москве Программа реновации в Москве Новостройки премиум-класса Новостройки бизнес-класса Рассрочка Траншевая ипотека Дома и коттеджи Бизнес-центры Бизнес-центры в Москве Бизнес-центры рядом с метро Строящиеся бизнес-центры Бизнес-центры класса A Бизнес-центры класса B Ипотека со ставкой 0,1%
студия, 37.10 м2, 10 этаж
Сдан
8 400 000 
11 830 000
226 415 2
обновлено 29 марта

Описание студии

Новостройка
Срок ГК
Дом сдан
Стадия строительства
Тип проекта
Общая площадь
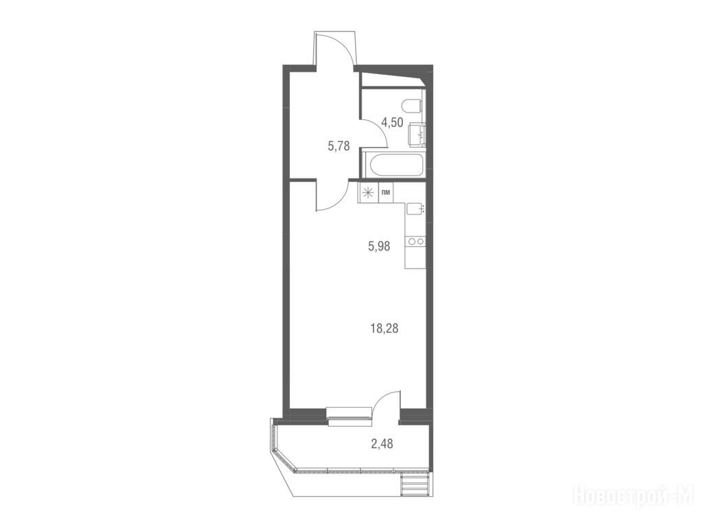
37.10 м2
Жилая площадь
18.28 м2
Площадь кухни
5.98 м2
Этаж
10 / 22
Грузовой лифт
есть

Расположение студии

Метро
Станция МЦД
Ж/Д-станция
Дом
Луч4
Адрес
ул. Северная, Луч 4, секция 4

Способы покупки

Особенности

Продается студия в новостройке ЖК «Одинбург» по адресу Московская область, Одинцовский район, Одинцово, ул. Северная, Луч 4. Общая площадь квартиры - 37.1 кв. м. Тип проекта, по которому построен дом — Монолит, компания-застройщик — AFI Development (АФИ Девелопмент). Стоимость квартиры — 8 400 000 руб. Способы оплаты можно уточнить у продавца. Более подробная информация по телефону.

Правовые документы

Инфоцентр новостроек
Инфоцентр новостроек
+7 (499) 705-91-41
Время работы 9:00 — 21:00

Похожие квартиры в ЖК «Одинбург»

7 этаж
из 22 Дом сдан
Московская область, Одинцовский район
Одинцово
10 мин.
Луч4
Корпус
нет данных
Отделка
2.58 м
Потолки
ЖК «Одинбург»
8 340 000 11 740 000
Альфа-Банк, МТС Банк, ВТБ, СберБанк, РНКБ, Совкомбанк, Металлинвестбанк, Промсвязьбанк, Банк Россия, Банк Санкт-Петербург, ДОМ.РФ, Абсолют Банк, Московский Кредитный Банк, Уралсиб
6.00%
Ставка
30.10%
Первый взнос
от 50 003 /мес.
Все варианты
11 этаж
из 22 Дом сдан
Московская область, Одинцовский район
Одинцово
10 мин.
Луч4
Корпус
нет данных
Отделка
2.58 м
Потолки
ЖК «Одинбург»
8 420 000 11 870 000
Альфа-Банк, МТС Банк, ВТБ, СберБанк, РНКБ, Совкомбанк, Металлинвестбанк, Промсвязьбанк, Банк Россия, Банк Санкт-Петербург, ДОМ.РФ, Абсолют Банк, Московский Кредитный Банк, Уралсиб
6.00%
Ставка
30.10%
Первый взнос
от 50 482 /мес.
Все варианты
12 этаж
из 22 Дом сдан
Московская область, Одинцовский район
Одинцово
10 мин.
Луч4
Корпус
нет данных
Отделка
2.58 м
Потолки
ЖК «Одинбург»
8 450 000 11 900 000
Альфа-Банк, МТС Банк, ВТБ, СберБанк, РНКБ, Совкомбанк, Металлинвестбанк, Промсвязьбанк, Банк Россия, Банк Санкт-Петербург, ДОМ.РФ, Абсолют Банк, Московский Кредитный Банк, Уралсиб
6.00%
Ставка
30.10%
Первый взнос
от 50 662 /мес.
Все варианты
14 этаж
из 22 Дом сдан
Московская область, Одинцовский район
Одинцово
10 мин.
Луч4
Корпус
нет данных
Отделка
2.58 м
Потолки
ЖК «Одинбург»
8 490 000 11 960 000
Альфа-Банк, МТС Банк, ВТБ, СберБанк, РНКБ, Совкомбанк, Металлинвестбанк, Промсвязьбанк, Банк Россия, Банк Санкт-Петербург, ДОМ.РФ, Абсолют Банк, Московский Кредитный Банк, Уралсиб
6.00%
Ставка
30.10%
Первый взнос
от 50 902 /мес.
Все варианты
21 этаж
из 22 Дом сдан
Московская область, Одинцовский район
Одинцово
10 мин.
Луч4
Корпус
нет данных
Отделка
2.58 м
Потолки
ЖК «Одинбург»
8 690 000 12 970 000
Альфа-Банк, МТС Банк, ВТБ, СберБанк, РНКБ, Совкомбанк, Металлинвестбанк, Промсвязьбанк, Банк Россия, Банк Санкт-Петербург, ДОМ.РФ, Абсолют Банк, Московский Кредитный Банк, Уралсиб
6.00%
Ставка
30.10%
Первый взнос
от 52 101 /мес.
Все варианты
22 этаж
из 22 Дом сдан
Московская область, Одинцовский район
Одинцово
10 мин.
Луч4
Корпус
нет данных
Отделка
2.58 м
Потолки
ЖК «Одинбург»
8 710 000 13 000 000
Альфа-Банк, МТС Банк, ВТБ, СберБанк, РНКБ, Совкомбанк, Металлинвестбанк, Промсвязьбанк, Банк Россия, Банк Санкт-Петербург, ДОМ.РФ, Абсолют Банк, Московский Кредитный Банк, Уралсиб
6.00%
Ставка
30.10%
Первый взнос
от 52 221 /мес.
Все варианты
студия 32,15 м2 9 720 000
Этаж 22/24
МО, ЖК «Одинбург»
Одинцово
10 мин.
Сдан
студия 33,05 м2 8 250 000
Этаж 20/24
МО, ЖК «Одинбург»
Одинцово
10 мин.
Сдан
студия 33,15 м2 8 320 000
Этаж 24/24
МО, ЖК «Одинбург»
Одинцово
10 мин.
Сдан
студия 33,25 м2 8 160 000
Этаж 13/24
МО, ЖК «Одинбург»
Одинцово
10 мин.
Сдан
Посмотреть 78 квартир в ЖК «Одинбург»
1-комн. квартира 35,90 м2 9 330 000
Этаж 24/24
МО, ЖК «Одинбург»
Одинцово
10 мин.
Сдан
1-комн. квартира 36,00 м2 9 290 000
Этаж 21/24
МО, ЖК «Одинбург»
Одинцово
10 мин.
Сдан
1-комн. квартира 36,30 м2 9 530 000
Этаж 24/24
МО, ЖК «Одинбург»
Одинцово
10 мин.
Сдан
1-комн. квартира 37,10 м2 9 460 000
Этаж 19/24
МО, ЖК «Одинбург»
Одинцово
10 мин.
Сдан
Посмотреть 70 квартир в ЖК «Одинбург»
2-комн. квартира 81,50 м2 17 570 000
Этаж 18/20
МО, ЖК «Одинбург»
Одинцово
10 мин.
Сдан
2-комн. квартира 82,20 м2 18 340 000
Этаж 14/16
МО, ЖК «Одинбург»
Одинцово
10 мин.
Сдан
2-комн. квартира 83,10 м2 20 210 000
Этаж 18/20
МО, ЖК «Одинбург»
Одинцово
10 мин.
Сдан
2-комн. квартира 83,30 м2 17 550 000
Этаж 2/20
МО, ЖК «Одинбург»
Одинцово
10 мин.
Сдан
Посмотреть 8 квартир в ЖК «Одинбург»
3-комн. квартира 73,20 м2 18 980 000
Этаж 24/24
МО, ЖК «Одинбург»
Одинцово
10 мин.
Сдан
4-комн. квартира 73,19 м2 20 420 000
Этаж 24/24
МО, ЖК «Одинбург»
Одинцово
10 мин.
Сдан

Скидки и спецпредложения от застройщиков

ЖК «Одинбург» на карте

Выгодные предложения на новостройки

Самый полезный отзыв
ВК
20 декабря 2017
Оценка:
А мне понравилось в этом комплексе наличие высоких потолков. 2,9 м это очень даже хорошо. много где делают 2,55-2,7. Потом ремонт сделаешь и вообще ничего не останется...
Ответить
Самый новый отзыв
И
25 марта
Оценка:
Достоинства
Транспортная доступность
Социальная инфраструктура
Готовность
Скорость строительства
Недостатки
Подземный паркинг
Двор, окружение
Рассматривал покупку как инвестицию и не прогадал. Комплекс давно заселён, инфраструктура работает, спрос на аренду стабильный. Квартиру сдал буквально через неделю после оформления. Локация у леса и рядом с Москвой привлекает арендаторов. Для вложений один из лучших вариантов в Одинцовском направлении.
Ответить

Оставить отзыв

Добавьте отзыв, заполнив личные данные, или сначала войдите на сайт, тогда информация будет автоматически взята из личного профиля.
Оценка*