Рейтинг@Mail.ru
Переверните экран
Новостройки Квартиры Ипотека Новостройки Москвы Новостройки Подмосковья Новостройки Новой Москвы Готовые новостройки Новостройки на карте Акции от застройщиков Коммерческие помещения Продавцы и застройщики Панорамы новостроек Видеообзор новостроек Экспертиза новостроек Экология Москвы и Подмосковья Студии 1-комнатные 2-комнатные 3-комнатные Квартиры на карте Ипотечный калькулятор Семейная ипотека Военная ипотека Банки и программы Медиа Новости недвижимости Мнение эксперта Аналитика рынка Покупателю Экспертиза новостроек Эксперты и авторы О проекте Контакты Реклама на сайте Vk Youtube Telegram Дзен Машиноместа Апартаменты #траншевая ипотека #рассрочка IT-ипотека Квартиры со скидками до 40% Видео 360° новостроек Субсидированная застройщиком Rutube Поиск дома в Москве Программа реновации в Москве Новостройки премиум-класса Новостройки бизнес-класса Рассрочка Траншевая ипотека ГАЛС Дома и коттеджи Бизнес-центры Бизнес-центры в Москве Бизнес-центры рядом с метро Строящиеся бизнес-центры Бизнес-центры класса A Бизнес-центры класса B ЛСР
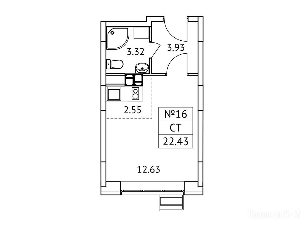
студия, 22.43 м2, 4 этаж
Срок сдачи 4 квартал 2026 года
10 129 728 
451 615 2
обновлено 18 декабря

Описание студии

Новостройка
Срок ГК
4 квартал 2026 года
Общая площадь
22.43 м2
Жилая площадь
12.63 м2
Площадь кухни
2.55 м2
Этаж
4 / 11

Расположение студии

Метро
Станция МЦД
Панки
25 мин.
Станция МЦК
Дом
6
Адрес
ЖК «Новотомилино», корп. 1-3, 9, секция 1

Способы покупки

Особенности

Продается студия в новостройке ЖК «Новотомилино» по адресу Московская область, Люберцы городской округ, Томилино пос., ЖК «Новотомилино», корп. 1-3, 9. Общая площадь квартиры - 22.43 кв. м. Тип проекта, по которому построен дом — Монолитно-кирпичный, компания-застройщик — Группа компаний 3-RED, АО «СЗ«Реалинвест». Стоимость квартиры — 10 129 728 руб. Способы оплаты можно уточнить у продавца. Срок сдачи — 4 квартал 2026. Более подробная информация по телефону.
Инфоцентр новостроек
Инфоцентр новостроек
+7 (499) 705-91-41
Время работы 9:00 — 21:00

Похожие квартиры в ЖК «Новотомилино»

14 этаж
из 17 4 квартал 2026
Московская область, Люберцы городской округ
Панки
25 мин.
6
Корпус
нет данных
Отделка
2.80 м
Потолки
ЖК «Новотомилино»
10 640 841
ВТБ, Промсвязьбанк, СберБанк, Абсолют Банк, Россельхозбанк, ДОМ.РФ
6.00%
Ставка
40.10%
Первый взнос
от 63 797 /мес.
Все варианты
Посмотреть все спецпредложения
студия 19,84 м2 8 880 068
Этаж 13/14
МО, ЖК «Новотомилино»
Панки
25 мин.
Строится
студия 20,92 м2 8 989 721
Этаж 13/13
МО, ЖК «Новотомилино»
Панки
25 мин.
Строится
студия 21,13 м2 9 685 340
Этаж 5/13
МО, ЖК «Новотомилино»
Панки
25 мин.
Строится
студия 21,69 м2 9 233 681
Этаж 9/13
МО, ЖК «Новотомилино»
Панки
25 мин.
Строится
Посмотреть 79 квартир в ЖК «Новотомилино»
1-комн. квартира 32,95 м2 13 571 398
Этаж 13/17
МО, ЖК «Новотомилино»
Панки
25 мин.
Строится
1-комн. квартира 33,13 м2 11 055 760
Этаж 13/14
МО, ЖК «Новотомилино»
Панки
25 мин.
Строится
1-комн. квартира 33,15 м2 14 123 103
Этаж 3/17
МО, ЖК «Новотомилино»
Панки
25 мин.
Строится
1-комн. квартира 33,41 м2 14 218 180
Этаж 17/17
МО, ЖК «Новотомилино»
Панки
25 мин.
Строится
Посмотреть 111 квартир в ЖК «Новотомилино»
2-комн. квартира 37,86 м2 12 273 924
Этаж 15/17
МО, ЖК «Новотомилино»
Панки
25 мин.
Строится
2-комн. квартира 39,02 м2 15 431 419
Этаж 10/14
МО, ЖК «Новотомилино»
Панки
25 мин.
Строится
2-комн. квартира 39,67 м2 13 552 921
Этаж 14/14
МО, ЖК «Новотомилино»
Панки
25 мин.
Строится
2-комн. квартира 39,84 м2 13 714 204
Этаж 7/14
МО, ЖК «Новотомилино»
Панки
25 мин.
Строится
Посмотреть 43 квартиры в ЖК «Новотомилино»
3-комн. квартира 59,73 м2 21 606 148
Этаж 12/14
МО, ЖК «Новотомилино»
Панки
25 мин.
Строится
3-комн. квартира 70,02 м2 25 651 872
Этаж 14/17
МО, ЖК «Новотомилино»
Панки
25 мин.
Строится
3-комн. квартира 70,22 м2 25 332 017
Этаж 3/17
МО, ЖК «Новотомилино»
Панки
25 мин.
Строится
3-комн. квартира 70,45 м2 20 765 396
Этаж 11/13
МО, ЖК «Новотомилино»
Панки
25 мин.
Строится
Посмотреть 23 квартиры в ЖК «Новотомилино»

Скидки и спецпредложения от застройщиков

ЖК «Новотомилино» на карте

Выгодные предложения на новостройки

Отзывы о ЖК «Новотомилино»

Самый полезный отзыв
А
01 марта 2020
Оценка:
Экология
Способы покупки
Расположение
Звонил в офис продаж, сказали, что скоро уже откроют продажи, получили всю необходимую документацию - заключение о соответствии компании и проектной декларации, кажется так называется
Показать все комментарии
Ответить
Полезный отзыв?
Самый новый отзыв
ЕД
30 мая
Оценка:
Транспортная доступность
Внешний вид фасада
Расположение
До станций Томилино и Панки, конечно, не пять минут пешком, но относительно недалеко – вполне можно добираться. И дома симпатичные, глаз радуют! Особенно порадовал уровень ремонта, он явно выше среднего. Сразу видно, что застройщик не экономил на материалах и отделке.
Ответить
Полезный отзыв?
Добавьте отзыв, заполнив личные данные, или сначала войдите на сайт, тогда информация будет автоматически взята из личного профиля.
Оценка*