Рейтинг@Mail.ru
Переверните экран
Новостройки Квартиры Ипотека Новостройки Москвы Новостройки Подмосковья Новостройки Новой Москвы Готовые новостройки Новостройки на карте Акции от застройщиков Коммерческие помещения Продавцы и застройщики Панорамы новостроек Видеообзор новостроек Экспертиза новостроек Экология Москвы и Подмосковья Студии 1-комнатные 2-комнатные 3-комнатные Квартиры на карте Ипотечный калькулятор Семейная ипотека Военная ипотека Банки и программы Медиа Новости недвижимости Мнение эксперта Аналитика рынка Покупателю Экспертиза новостроек Эксперты и авторы О проекте Контакты Реклама на сайте Vk Youtube Telegram Дзен Машиноместа Апартаменты #траншевая ипотека #рассрочка IT-ипотека Квартиры со скидками до 40% Видео 360° новостроек Субсидированная застройщиком Rutube Поиск дома в Москве Программа реновации в Москве Новостройки премиум-класса Новостройки бизнес-класса Рассрочка Траншевая ипотека ГАЛС Дома и коттеджи Бизнес-центры Бизнес-центры в Москве Бизнес-центры рядом с метро Строящиеся бизнес-центры Бизнес-центры класса A Бизнес-центры класса B ЛСР
Данная квартира является лидером продаж среди студий в ЖК MYPRIORITY Дубровка (Май Приорити Дубровка) по данным Росреестра
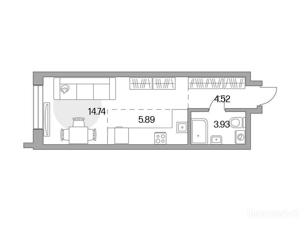
студия, 29.08 м2, 2 этаж
Срок сдачи 3 квартал 2028 года
15 050 080 
17 351 857
517 541 2
обновлено 13 декабря

Описание студии

Срок ГК
3 квартал 2028 года
Стадия строительства
котлован/фундамент
Тип проекта
Общая площадь
29.08 м2
Жилая площадь
14.74 м2
Площадь кухни
5.89 м2
Этаж
2 / 28
Отделка
нет
Грузовой лифт
есть

Расположение студии

Локация
Ж/Д-станция
Дом
2
Адрес
ул. Шарикоподшипниковская, вл.11, корп. 2, секция 1

Способы покупки

Особенности

Продается студия в новостройке ЖК MYPRIORITY Дубровка (Май Приорити Дубровка) по адресу Москва, ЮВАО, Южнопортовый, ул. Шарикоподшипниковская, вл.11, корп. 2. Общая площадь квартиры - 29.08 кв. м. Тип проекта, по которому построен дом — Монолит, компания-застройщик — ГК «Гранель», СЗ ГРАНЕЛЬ СТОЛИЦА. Стоимость квартиры — 15 050 080 руб. Способы оплаты можно уточнить у продавца. Срок сдачи — 3 квартал 2028. Более подробная информация по телефону.
ГК «Гранель»
ГК «Гранель»
Сданных 16
|
Строящихся 16
Время работы 09:00 — 21:00
Онлайн-сделка
Выбирайте квартиру в ЖК MYPRIORITY Дубровка (Май Приорити Дубровка) по ценам от застройщика

Похожие квартиры в ЖК MYPRIORITY Дубровка (Май Приорити Дубровка)

3 этаж
из 28 3 квартал 2028
Москва, ЮВАО
Дубровка
3 мин.
2
Корпус
нет
Отделка
3.00 м
Потолки
ЖК MYPRIORITY Дубровка (Май Приорити Дубровка)
15 107 196 17 417 708
Всероссийский банк развития регионов, Промсвязьбанк, Азиатско-Тихоокеанский Банк, СберБанк, Сургутнефтегазбанк, Банк Санкт-Петербург, Совкомбанк, Примсоцбанк, Металлинвестбанк, Россельхозбанк, ДОМ.РФ, Уралсиб, Севергазбанк, Московский Кредитный Банк, Абсолют Банк, МТС Банк, Альфа-Банк, ВТБ
5.80%
Ставка
20.10%
Первый взнос
от 88 642 /мес.
Все варианты
6 этаж
из 28 3 квартал 2028
Москва, ЮВАО
Дубровка
3 мин.
2
Корпус
нет
Отделка
3.00 м
Потолки
ЖК MYPRIORITY Дубровка (Май Приорити Дубровка)
15 107 196 17 417 708
Всероссийский банк развития регионов, Промсвязьбанк, Азиатско-Тихоокеанский Банк, СберБанк, Сургутнефтегазбанк, Банк Санкт-Петербург, Совкомбанк, Примсоцбанк, Металлинвестбанк, Россельхозбанк, ДОМ.РФ, Уралсиб, Севергазбанк, Московский Кредитный Банк, Абсолют Банк, МТС Банк, Альфа-Банк, ВТБ
5.80%
Ставка
20.10%
Первый взнос
от 88 642 /мес.
Все варианты
8 этаж
из 28 3 квартал 2028
Москва, ЮВАО
Дубровка
3 мин.
2
Корпус
нет
Отделка
3.00 м
Потолки
ЖК MYPRIORITY Дубровка (Май Приорити Дубровка)
15 192 870 17 516 485
Всероссийский банк развития регионов, Промсвязьбанк, Азиатско-Тихоокеанский Банк, СберБанк, Сургутнефтегазбанк, Банк Санкт-Петербург, Совкомбанк, Примсоцбанк, Металлинвестбанк, Россельхозбанк, ДОМ.РФ, Уралсиб, Севергазбанк, Московский Кредитный Банк, Абсолют Банк, МТС Банк, Альфа-Банк, ВТБ
5.80%
Ставка
20.10%
Первый взнос
от 89 145 /мес.
Все варианты
13 этаж
из 28 3 квартал 2028
Москва, ЮВАО
Дубровка
3 мин.
2
Корпус
нет
Отделка
3.00 м
Потолки
ЖК MYPRIORITY Дубровка (Май Приорити Дубровка)
15 278 544 17 615 263
Всероссийский банк развития регионов, Промсвязьбанк, Азиатско-Тихоокеанский Банк, СберБанк, Сургутнефтегазбанк, Банк Санкт-Петербург, Совкомбанк, Примсоцбанк, Металлинвестбанк, Россельхозбанк, ДОМ.РФ, Уралсиб, Севергазбанк, Московский Кредитный Банк, Абсолют Банк, МТС Банк, Альфа-Банк, ВТБ
5.80%
Ставка
20.10%
Первый взнос
от 89 647 /мес.
Все варианты
15 этаж
из 28 3 квартал 2028
Москва, ЮВАО
Дубровка
3 мин.
2
Корпус
нет
Отделка
3.00 м
Потолки
ЖК MYPRIORITY Дубровка (Май Приорити Дубровка)
15 278 544 17 615 263
Всероссийский банк развития регионов, Промсвязьбанк, Азиатско-Тихоокеанский Банк, СберБанк, Сургутнефтегазбанк, Банк Санкт-Петербург, Совкомбанк, Примсоцбанк, Металлинвестбанк, Россельхозбанк, ДОМ.РФ, Уралсиб, Севергазбанк, Московский Кредитный Банк, Абсолют Банк, МТС Банк, Альфа-Банк, ВТБ
5.80%
Ставка
20.10%
Первый взнос
от 89 647 /мес.
Все варианты
2 этаж
из 28 3 квартал 2028
Москва, ЮВАО
Дубровка
3 мин.
2
Корпус
нет
Отделка
3.00 м
Потолки
ЖК MYPRIORITY Дубровка (Май Приорити Дубровка)
15 335 660 17 681 114
Всероссийский банк развития регионов, Промсвязьбанк, Азиатско-Тихоокеанский Банк, СберБанк, Сургутнефтегазбанк, Банк Санкт-Петербург, Совкомбанк, Примсоцбанк, Металлинвестбанк, Россельхозбанк, ДОМ.РФ, Уралсиб, Севергазбанк, Московский Кредитный Банк, Абсолют Банк, МТС Банк, Альфа-Банк, ВТБ
5.80%
Ставка
20.10%
Первый взнос
от 89 982 /мес.
Все варианты
21 этаж
из 28 3 квартал 2028
Москва, ЮВАО
Дубровка
3 мин.
2
Корпус
нет
Отделка
3.00 м
Потолки
ЖК MYPRIORITY Дубровка (Май Приорити Дубровка)
15 364 218 17 714 040
Всероссийский банк развития регионов, Промсвязьбанк, Азиатско-Тихоокеанский Банк, СберБанк, Сургутнефтегазбанк, Банк Санкт-Петербург, Совкомбанк, Примсоцбанк, Металлинвестбанк, Россельхозбанк, ДОМ.РФ, Уралсиб, Севергазбанк, Московский Кредитный Банк, Абсолют Банк, МТС Банк, Альфа-Банк, ВТБ
5.80%
Ставка
20.10%
Первый взнос
от 90 150 /мес.
Все варианты
23 этаж
из 28 3 квартал 2028
Москва, ЮВАО
Дубровка
3 мин.
2
Корпус
нет
Отделка
3.00 м
Потолки
ЖК MYPRIORITY Дубровка (Май Приорити Дубровка)
15 364 218 17 714 040
Всероссийский банк развития регионов, Промсвязьбанк, Азиатско-Тихоокеанский Банк, СберБанк, Сургутнефтегазбанк, Банк Санкт-Петербург, Совкомбанк, Примсоцбанк, Металлинвестбанк, Россельхозбанк, ДОМ.РФ, Уралсиб, Севергазбанк, Московский Кредитный Банк, Абсолют Банк, МТС Банк, Альфа-Банк, ВТБ
5.80%
Ставка
20.10%
Первый взнос
от 90 150 /мес.
Все варианты
19 этаж
из 28 3 квартал 2028
Москва, ЮВАО
Дубровка
3 мин.
2
Корпус
нет
Отделка
3.00 м
Потолки
ЖК MYPRIORITY Дубровка (Май Приорити Дубровка)
15 364 218 17 714 040
Всероссийский банк развития регионов, Промсвязьбанк, Азиатско-Тихоокеанский Банк, СберБанк, Сургутнефтегазбанк, Банк Санкт-Петербург, Совкомбанк, Примсоцбанк, Металлинвестбанк, Россельхозбанк, ДОМ.РФ, Уралсиб, Севергазбанк, Московский Кредитный Банк, Абсолют Банк, МТС Банк, Альфа-Банк, ВТБ
5.80%
Ставка
20.10%
Первый взнос
от 90 150 /мес.
Все варианты
3 этаж
из 28 3 квартал 2028
Москва, ЮВАО
Дубровка
3 мин.
2
Корпус
нет
Отделка
3.00 м
Потолки
ЖК MYPRIORITY Дубровка (Май Приорити Дубровка)
15 392 776 17 746 966
Всероссийский банк развития регионов, Промсвязьбанк, Азиатско-Тихоокеанский Банк, СберБанк, Сургутнефтегазбанк, Банк Санкт-Петербург, Совкомбанк, Примсоцбанк, Металлинвестбанк, Россельхозбанк, ДОМ.РФ, Уралсиб, Севергазбанк, Московский Кредитный Банк, Абсолют Банк, МТС Банк, Альфа-Банк, ВТБ
5.80%
Ставка
20.10%
Первый взнос
от 90 318 /мес.
Все варианты
5 этаж
из 28 3 квартал 2028
Москва, ЮВАО
Дубровка
3 мин.
2
Корпус
нет
Отделка
3.00 м
Потолки
ЖК MYPRIORITY Дубровка (Май Приорити Дубровка)
15 392 776 17 746 966
Всероссийский банк развития регионов, Промсвязьбанк, Азиатско-Тихоокеанский Банк, СберБанк, Сургутнефтегазбанк, Банк Санкт-Петербург, Совкомбанк, Примсоцбанк, Металлинвестбанк, Россельхозбанк, ДОМ.РФ, Уралсиб, Севергазбанк, Московский Кредитный Банк, Абсолют Банк, МТС Банк, Альфа-Банк, ВТБ
5.80%
Ставка
20.10%
Первый взнос
от 90 318 /мес.
Все варианты
25 этаж
из 28 3 квартал 2028
Москва, ЮВАО
Дубровка
3 мин.
2
Корпус
нет
Отделка
3.00 м
Потолки
ЖК MYPRIORITY Дубровка (Май Приорити Дубровка)
15 449 892 17 812 817
Всероссийский банк развития регионов, Промсвязьбанк, Азиатско-Тихоокеанский Банк, СберБанк, Сургутнефтегазбанк, Банк Санкт-Петербург, Совкомбанк, Примсоцбанк, Металлинвестбанк, Россельхозбанк, ДОМ.РФ, Уралсиб, Севергазбанк, Московский Кредитный Банк, Абсолют Банк, МТС Банк, Альфа-Банк, ВТБ
5.80%
Ставка
20.10%
Первый взнос
от 90 653 /мес.
Все варианты
9 этаж
из 28 3 квартал 2028
Москва, ЮВАО
Дубровка
3 мин.
2
Корпус
нет
Отделка
3.00 м
Потолки
ЖК MYPRIORITY Дубровка (Май Приорити Дубровка)
15 478 450 17 845 743
Всероссийский банк развития регионов, Промсвязьбанк, Азиатско-Тихоокеанский Банк, СберБанк, Сургутнефтегазбанк, Банк Санкт-Петербург, Совкомбанк, Примсоцбанк, Металлинвестбанк, Россельхозбанк, ДОМ.РФ, Уралсиб, Севергазбанк, Московский Кредитный Банк, Абсолют Банк, МТС Банк, Альфа-Банк, ВТБ
5.80%
Ставка
20.10%
Первый взнос
от 90 820 /мес.
Все варианты
17 этаж
из 28 3 квартал 2028
Москва, ЮВАО
Дубровка
3 мин.
2
Корпус
нет
Отделка
3.00 м
Потолки
ЖК MYPRIORITY Дубровка (Май Приорити Дубровка)
15 564 124 17 944 520
Всероссийский банк развития регионов, Промсвязьбанк, Азиатско-Тихоокеанский Банк, СберБанк, Сургутнефтегазбанк, Банк Санкт-Петербург, Совкомбанк, Примсоцбанк, Металлинвестбанк, Россельхозбанк, ДОМ.РФ, Уралсиб, Севергазбанк, Московский Кредитный Банк, Абсолют Банк, МТС Банк, Альфа-Банк, ВТБ
5.80%
Ставка
20.10%
Первый взнос
от 91 323 /мес.
Все варианты
24 этаж
из 28 3 квартал 2028
Москва, ЮВАО
Дубровка
3 мин.
2
Корпус
нет
Отделка
3.00 м
Потолки
ЖК MYPRIORITY Дубровка (Май Приорити Дубровка)
15 649 799 18 043 297
Всероссийский банк развития регионов, Промсвязьбанк, Азиатско-Тихоокеанский Банк, СберБанк, Сургутнефтегазбанк, Банк Санкт-Петербург, Совкомбанк, Примсоцбанк, Металлинвестбанк, Россельхозбанк, ДОМ.РФ, Уралсиб, Севергазбанк, Московский Кредитный Банк, Абсолют Банк, МТС Банк, Альфа-Банк, ВТБ
5.80%
Ставка
20.10%
Первый взнос
от 91 826 /мес.
Все варианты
Посмотреть все спецпредложения
студия 29,08 м2 15 449 892
Этаж 25/28
Москва, ЖК MYPRIORITY Дубровка (Май Приорити Дубровка)
Дубровка
3 мин.
Строится
студия 29,16 м2 15 148 756
Этаж 3/28
Москва, ЖК MYPRIORITY Дубровка (Май Приорити Дубровка)
Дубровка
3 мин.
Строится
студия 29,29 м2 15 475 170
Этаж 19/28
Москва, ЖК MYPRIORITY Дубровка (Май Приорити Дубровка)
Дубровка
3 мин.
Строится
Посмотреть 47 квартир в ЖК MYPRIORITY Дубровка (Май Приорити Дубровка)
1-комн. квартира 37,39 м2 18 744 981
Этаж 3/28
Москва, ЖК MYPRIORITY Дубровка (Май Приорити Дубровка)
Дубровка
3 мин.
Строится
1-комн. квартира 37,40 м2 18 970 366
Этаж 14/28
Москва, ЖК MYPRIORITY Дубровка (Май Приорити Дубровка)
Дубровка
3 мин.
Строится
1-комн. квартира 38,42 м2 18 280 368
Этаж 3/28
Москва, ЖК MYPRIORITY Дубровка (Май Приорити Дубровка)
Дубровка
3 мин.
Строится
1-комн. квартира 38,46 м2 18 299 400
Этаж 4/28
Москва, ЖК MYPRIORITY Дубровка (Май Приорити Дубровка)
Дубровка
3 мин.
Строится
Посмотреть 103 квартиры в ЖК MYPRIORITY Дубровка (Май Приорити Дубровка)
2-комн. квартира 48,50 м2 28 029 929
Этаж 24/30
Москва, ЖК MYPRIORITY Дубровка (Май Приорити Дубровка)
Дубровка
3 мин.
Строится
2-комн. квартира 57,35 м2 22 978 802
Этаж 2/28
Москва, ЖК MYPRIORITY Дубровка (Май Приорити Дубровка)
Дубровка
3 мин.
Строится
2-комн. квартира 57,38 м2 22 990 822
Этаж 2/28
Москва, ЖК MYPRIORITY Дубровка (Май Приорити Дубровка)
Дубровка
3 мин.
Строится
2-комн. квартира 57,39 м2 23 614 787
Этаж 20/28
Москва, ЖК MYPRIORITY Дубровка (Май Приорити Дубровка)
Дубровка
3 мин.
Строится
Посмотреть 37 квартир в ЖК MYPRIORITY Дубровка (Май Приорити Дубровка)
4-комн. квартира 86,20 м2 37 374 188
Этаж 2/12
Москва, ЖК MYPRIORITY Дубровка (Май Приорити Дубровка)
Дубровка
3 мин.
Строится
4-комн. квартира 93,80 м2 41 682 639
Этаж 21/30
Москва, ЖК MYPRIORITY Дубровка (Май Приорити Дубровка)
Дубровка
3 мин.
Строится

Скидки и спецпредложения от застройщиков

ЖК MYPRIORITY Дубровка (Май Приорити Дубровка) на карте

Выгодные предложения на новостройки

Отзывы о ЖК MYPRIORITY Дубровка (Май Приорити Дубровка)

Самый полезный отзыв
П
01 апреля 2022
Оценка:
Интересный проект , стартовали продажи, ездили в офис продаж узновали детали. Офис открылся в бизнес-центре «ЕПК». Нам понравился жк, будем думать о покупке квартиры, на старте пока цены еще более менее.
Ответить
Полезный отзыв?
Самый новый отзыв
ОМ
23 июля
Оценка:
Способы покупки
Застройщик предусмотрел возможность полного расчета либо ипотечное кредитование. Оба варианта обеспечили комфортные условия покупки, позволив подобрать подходящий именно нам способ финансирования. Однако, если интересует вариант рассрочки, лучше заранее связаться с офисом продаж для подробной консультации. В целом впечатления приятные.
Ответить
Полезный отзыв?
Добавьте отзыв, заполнив личные данные, или сначала войдите на сайт, тогда информация будет автоматически взята из личного профиля.
Оценка*