Рейтинг@Mail.ru
Переверните экран
Новостройки Квартиры Ипотека Новостройки Москвы Новостройки Подмосковья Новостройки Новой Москвы Готовые новостройки Новостройки на карте Акции от застройщиков Коммерческие помещения Продавцы и застройщики Панорамы новостроек Видеообзор новостроек Экспертиза новостроек Экология Москвы и Подмосковья Студии 1-комнатные 2-комнатные 3-комнатные Квартиры на карте Ипотечный калькулятор Семейная ипотека Военная ипотека Банки и программы Медиа Новости недвижимости Мнение эксперта Аналитика рынка Покупателю Экспертиза новостроек Эксперты и авторы О проекте Контакты Реклама на сайте Vk Youtube Telegram Дзен Машиноместа Апартаменты #траншевая ипотека #рассрочка IT-ипотека Квартиры со скидками до 40% Видео 360° новостроек Субсидированная застройщиком Rutube Поиск дома в Москве Программа реновации в Москве Новостройки премиум-класса Новостройки бизнес-класса Рассрочка Траншевая ипотека ГАЛС Дома и коттеджи Бизнес-центры Бизнес-центры в Москве Бизнес-центры рядом с метро Строящиеся бизнес-центры Бизнес-центры класса A Бизнес-центры класса B ЛСР
Данное предложение на 13.12.2025 неактуально. Пожалуйста, ознакомьтесь с другими похожими предложениями в ЖК «Легенда Коренёво» .
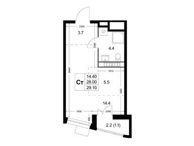
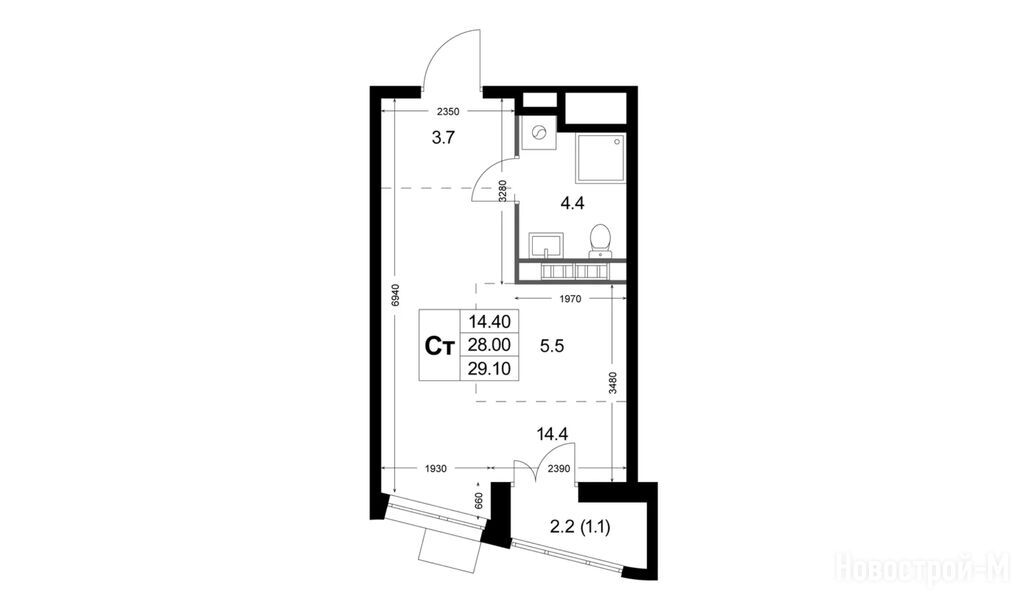
студия, 29.10 м2, 5 этаж
Срок сдачи 4 квартал 2026 года
7 334 946 
252 060 2
обновлено 5 декабря

Описание студии

Срок ГК
4 квартал 2026 года
Стадия строительства
отделка фасада и внутренние работы
Общая площадь
29.10 м2
Жилая площадь
14.40 м2
Площадь кухни
5.50 м2
Этаж
5 / 8
Балкон
лоджия
Отделка
нет

Расположение студии

Ж/Д-станция
Дом
4
Адрес
ул. Лорха корп. 4, секция 1

Способы покупки

Особенности

Продается студия в новостройке ЖК «Легенда Коренёво» по адресу Московская область, Люберцы городской округ, Красково пос., ул. Лорха корп. 4. Общая площадь квартиры - 29.1 кв. м. Тип проекта, по которому построен дом — Монолитно-кирпичный, компания-застройщик — Некрасовка Девелопмент, ООО СЗ «Коренево Девелопмент». Стоимость квартиры — 7 334 946 руб. Способы оплаты можно уточнить у продавца. Срок сдачи — 4 квартал 2026. Более подробная информация по телефону.
Инфоцентр новостроек
Инфоцентр новостроек
+7 (499) 705-91-41
Время работы 9:00 — 21:00

Похожие квартиры в ЖК «Легенда Коренёво»

2 этаж
из 8 4 квартал 2026
Московская область, Люберцы городской округ
Лермонтовский проспект
20 мин.
4
Корпус
нет
Отделка
2.72 м
Потолки
ЖК «Легенда Коренёво»
7 319 232
СберБанк
6.00%
Ставка
20.10%
Первый взнос
от 43 882 /мес.
Все варианты
2 этаж
из 8 4 квартал 2026
Московская область, Люберцы городской округ
Лермонтовский проспект
20 мин.
4
Корпус
нет
Отделка
2.72 м
Потолки
ЖК «Легенда Коренёво»
7 319 232
СберБанк
6.00%
Ставка
20.10%
Первый взнос
от 43 882 /мес.
Все варианты
2 этаж
из 8 4 квартал 2026
Московская область, Люберцы городской округ
Лермонтовский проспект
20 мин.
4
Корпус
нет
Отделка
2.72 м
Потолки
ЖК «Легенда Коренёво»
7 319 232
СберБанк
6.00%
Ставка
20.10%
Первый взнос
от 43 882 /мес.
Все варианты
3 этаж
из 8 4 квартал 2026
Московская область, Люберцы городской округ
Лермонтовский проспект
20 мин.
4
Корпус
нет
Отделка
2.72 м
Потолки
ЖК «Легенда Коренёво»
7 327 380
СберБанк
6.00%
Ставка
20.10%
Первый взнос
от 43 931 /мес.
Все варианты
3 этаж
из 8 4 квартал 2026
Московская область, Люберцы городской округ
Лермонтовский проспект
20 мин.
4
Корпус
нет
Отделка
2.72 м
Потолки
ЖК «Легенда Коренёво»
7 327 380
СберБанк
6.00%
Ставка
20.10%
Первый взнос
от 43 931 /мес.
Все варианты
3 этаж
из 8 4 квартал 2026
Московская область, Люберцы городской округ
Лермонтовский проспект
20 мин.
4
Корпус
нет
Отделка
2.72 м
Потолки
ЖК «Легенда Коренёво»
7 327 380
СберБанк
6.00%
Ставка
20.10%
Первый взнос
от 43 931 /мес.
Все варианты
6 этаж
из 8 4 квартал 2026
Московская область, Люберцы городской округ
Лермонтовский проспект
20 мин.
4
Корпус
нет
Отделка
2.72 м
Потолки
ЖК «Легенда Коренёво»
7 338 729
СберБанк
6.00%
Ставка
20.10%
Первый взнос
от 43 999 /мес.
Все варианты
6 этаж
из 8 4 квартал 2026
Московская область, Люберцы городской округ
Лермонтовский проспект
20 мин.
4
Корпус
нет
Отделка
2.72 м
Потолки
ЖК «Легенда Коренёво»
7 338 729
СберБанк
6.00%
Ставка
20.10%
Первый взнос
от 43 999 /мес.
Все варианты
7 этаж
из 8 4 квартал 2026
Московская область, Люберцы городской округ
Лермонтовский проспект
20 мин.
4
Корпус
нет
Отделка
2.72 м
Потолки
ЖК «Легенда Коренёво»
7 342 512
СберБанк
6.00%
Ставка
20.10%
Первый взнос
от 44 022 /мес.
Все варианты
7 этаж
из 8 4 квартал 2026
Московская область, Люберцы городской округ
Лермонтовский проспект
20 мин.
4
Корпус
нет
Отделка
2.72 м
Потолки
ЖК «Легенда Коренёво»
7 342 512
СберБанк
6.00%
Ставка
20.10%
Первый взнос
от 44 022 /мес.
Все варианты
Посмотреть все спецпредложения
студия 29,10 м2 5 803 995
Этаж 8/8 лоджия
МО, ЖК «Легенда Коренёво»
Лермонтовский проспект
20 мин.
Строится
студия 29,50 м2 5 872 270
Этаж 5/8 лоджия
МО, ЖК «Легенда Коренёво»
Лермонтовский проспект
20 мин.
Строится
Посмотреть 102 квартиры в ЖК «Легенда Коренёво»
1-комн. квартира 34,00 м2 6 742 880
Этаж 7/8 лоджия
МО, ЖК «Легенда Коренёво»
Лермонтовский проспект
20 мин.
Строится
1-комн. квартира 34,10 м2 6 767 145
Этаж 8/8 лоджия
МО, ЖК «Легенда Коренёво»
Лермонтовский проспект
20 мин.
Строится
1-комн. квартира 34,40 м2 6 826 680
Этаж 8/8 лоджия
МО, ЖК «Легенда Коренёво»
Лермонтовский проспект
20 мин.
Строится
1-комн. квартира 35,90 м2 6 031 200
Этаж 2/8
МО, ЖК «Легенда Коренёво»
Лермонтовский проспект
20 мин.
Строится
Посмотреть 54 квартиры в ЖК «Легенда Коренёво»
2-комн. квартира 51,80 м2 10 214 960
Этаж 1/8
МО, ЖК «Легенда Коренёво»
Лермонтовский проспект
20 мин.
Строится
2-комн. квартира 53,60 м2 9 004 800
Этаж 2/8
МО, ЖК «Легенда Коренёво»
Лермонтовский проспект
20 мин.
Строится
2-комн. квартира 56,20 м2 11 127 600
Этаж 5/8 лоджия
МО, ЖК «Легенда Коренёво»
Лермонтовский проспект
20 мин.
Строится
2-комн. квартира 56,30 м2 11 147 400
Этаж 5/8 лоджия
МО, ЖК «Легенда Коренёво»
Лермонтовский проспект
20 мин.
Строится
Посмотреть 51 квартира в ЖК «Легенда Коренёво»

Скидки и спецпредложения от застройщиков

ЖК «Легенда Коренёво» на карте

Выгодные предложения на новостройки

Отзывы о ЖК «Легенда Коренёво»

Самый полезный отзыв
АП
06 июня 2024
Оценка:
Способы покупки
Первый офис находится на станции метро «Окская», а второй — прямо на строительной площадке. Сначала я посетил офис на метро «Окская». Второй офис продаж оказался гораздо удобнее, так как он расположен прямо на территории стройки. Здесь я смог увидеть процесс строительства своими глазами и задать вопросы строителям.
Ответить
Полезный отзыв?
Самый новый отзыв
А
08 декабря
Оценка:
Сейчас в Люберецком районе много всего строится и когда начинаешь думать над покупкой жилья, то решиться сложно. На мой взгляд, когда уже убедился в надежности застройщика, то сам комплекс и квартиру выбирать нужно сердцем. Ну, по крайней мере, я именно так и сделала. Жить в шаговой доступности от воды - это мечта!
Показать все комментарии
Ответить
Полезный отзыв?
Добавьте отзыв, заполнив личные данные, или сначала войдите на сайт, тогда информация будет автоматически взята из личного профиля.
Оценка*