Рейтинг@Mail.ru
Переверните экран
Новостройки Квартиры Ипотека Новостройки Москвы Новостройки Подмосковья Новостройки Новой Москвы Готовые новостройки Новостройки на карте Акции от застройщиков Коммерческие помещения Продавцы и застройщики Панорамы новостроек Видеообзор новостроек Экспертиза новостроек Экология Москвы и Подмосковья Студии 1-комнатные 2-комнатные 3-комнатные Квартиры на карте Ипотечный калькулятор Семейная ипотека Военная ипотека Банки и программы Медиа Новости недвижимости Мнение эксперта Аналитика рынка Покупателю Экспертиза новостроек Эксперты и авторы О проекте Контакты Реклама на сайте Vk Youtube Telegram Дзен Машиноместа Апартаменты #траншевая ипотека #рассрочка IT-ипотека Квартиры со скидками до 40% Видео 360° новостроек Субсидированная застройщиком Rutube Поиск дома в Москве Программа реновации в Москве Новостройки премиум-класса Новостройки бизнес-класса Рассрочка Траншевая ипотека ГАЛС Дома и коттеджи Бизнес-центры Бизнес-центры в Москве Бизнес-центры рядом с метро Строящиеся бизнес-центры Бизнес-центры класса A Бизнес-центры класса B ЛСР
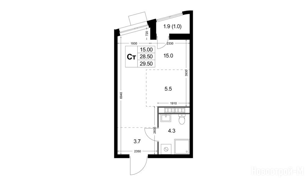
студия, 29.50 м2, 5 этаж
Срок сдачи 4 квартал 2026 года
5 872 270 
199 060 2
обновлено 5 декабря

Описание студии

Срок ГК
4 квартал 2026 года
Стадия строительства
отделка фасада и внутренние работы
Общая площадь
29.50 м2
Жилая площадь
15.00 м2
Площадь кухни
5.50 м2
Этаж
5 / 8
Балкон
лоджия
Отделка
нет

Расположение студии

Ж/Д-станция
Дом
1
Адрес
ул. Лорха корп. 1, секция 1

Способы покупки

Особенности

Продается студия в новостройке ЖК «Легенда Коренёво» по адресу Московская область, Люберцы городской округ, Красково пос., ул. Лорха корп. 1. Общая площадь квартиры - 29.5 кв. м. Тип проекта, по которому построен дом — Монолитно-кирпичный, компания-застройщик — Некрасовка Девелопмент, ООО СЗ «Коренево Девелопмент». Стоимость квартиры — 5 872 270 руб. Способы оплаты можно уточнить у продавца. Срок сдачи — 4 квартал 2026. Более подробная информация по телефону.
Инфоцентр новостроек
Инфоцентр новостроек
+7 (499) 705-91-41
Время работы 9:00 — 21:00

Похожие квартиры в ЖК «Легенда Коренёво»

6 этаж
из 8 4 квартал 2026
Московская область, Люберцы городской округ
Лермонтовский проспект
20 мин.
1
Корпус
нет
Отделка
2.72 м
Потолки
ЖК «Легенда Коренёво»
5 374 605
СберБанк
6.00%
Ставка
20.10%
Первый взнос
от 32 223 /мес.
Все варианты
3 этаж
из 8 4 квартал 2026
Московская область, Люберцы городской округ
Лермонтовский проспект
20 мин.
1
Корпус
нет
Отделка
2.72 м
Потолки
ЖК «Легенда Коренёво»
5 864 600
СберБанк
6.00%
Ставка
20.10%
Первый взнос
от 35 161 /мес.
Все варианты
3 этаж
из 8 4 квартал 2026
Московская область, Люберцы городской округ
Лермонтовский проспект
20 мин.
1
Корпус
нет
Отделка
2.72 м
Потолки
ЖК «Легенда Коренёво»
5 864 600
СберБанк
6.00%
Ставка
20.10%
Первый взнос
от 35 161 /мес.
Все варианты
4 этаж
из 8 4 квартал 2026
Московская область, Люберцы городской округ
Лермонтовский проспект
20 мин.
1
Корпус
нет
Отделка
2.72 м
Потолки
ЖК «Легенда Коренёво»
5 868 435
СберБанк
6.00%
Ставка
20.10%
Первый взнос
от 35 184 /мес.
Все варианты
4 этаж
из 8 4 квартал 2026
Московская область, Люберцы городской округ
Лермонтовский проспект
20 мин.
1
Корпус
нет
Отделка
2.72 м
Потолки
ЖК «Легенда Коренёво»
5 868 435
СберБанк
6.00%
Ставка
20.10%
Первый взнос
от 35 184 /мес.
Все варианты
5 этаж
из 8 4 квартал 2026
Московская область, Люберцы городской округ
Лермонтовский проспект
20 мин.
1
Корпус
нет
Отделка
2.72 м
Потолки
ЖК «Легенда Коренёво»
5 872 270
СберБанк
6.00%
Ставка
20.10%
Первый взнос
от 35 207 /мес.
Все варианты
5 этаж
из 8 4 квартал 2026
Московская область, Люберцы городской округ
Лермонтовский проспект
20 мин.
1
Корпус
нет
Отделка
2.72 м
Потолки
ЖК «Легенда Коренёво»
5 872 270
СберБанк
6.00%
Ставка
20.10%
Первый взнос
от 35 207 /мес.
Все варианты
6 этаж
из 8 4 квартал 2026
Московская область, Люберцы городской округ
Лермонтовский проспект
20 мин.
1
Корпус
нет
Отделка
2.72 м
Потолки
ЖК «Легенда Коренёво»
5 876 105
СберБанк
6.00%
Ставка
20.10%
Первый взнос
от 35 230 /мес.
Все варианты
7 этаж
из 8 4 квартал 2026
Московская область, Люберцы городской округ
Лермонтовский проспект
20 мин.
1
Корпус
нет
Отделка
2.72 м
Потолки
ЖК «Легенда Коренёво»
5 879 940
СберБанк
6.00%
Ставка
20.10%
Первый взнос
от 35 253 /мес.
Все варианты
8 этаж
из 8 4 квартал 2026
Московская область, Люберцы городской округ
Лермонтовский проспект
20 мин.
1
Корпус
нет
Отделка
2.72 м
Потолки
ЖК «Легенда Коренёво»
5 883 775
СберБанк
6.00%
Ставка
20.10%
Первый взнос
от 35 276 /мес.
Все варианты
8 этаж
из 8 4 квартал 2026
Московская область, Люберцы городской округ
Лермонтовский проспект
20 мин.
1
Корпус
нет
Отделка
2.72 м
Потолки
ЖК «Легенда Коренёво»
5 883 775
СберБанк
6.00%
Ставка
20.10%
Первый взнос
от 35 276 /мес.
Все варианты
Посмотреть все спецпредложения
студия 29,10 м2 5 803 995
Этаж 8/8 лоджия
МО, ЖК «Легенда Коренёво»
Лермонтовский проспект
20 мин.
Строится
студия 29,50 м2 5 872 270
Этаж 5/8 лоджия
МО, ЖК «Легенда Коренёво»
Лермонтовский проспект
20 мин.
Строится
Посмотреть 116 квартир в ЖК «Легенда Коренёво»
1-комн. квартира 34,00 м2 6 742 880
Этаж 7/8 лоджия
МО, ЖК «Легенда Коренёво»
Лермонтовский проспект
20 мин.
Строится
1-комн. квартира 34,10 м2 6 767 145
Этаж 8/8 лоджия
МО, ЖК «Легенда Коренёво»
Лермонтовский проспект
20 мин.
Строится
1-комн. квартира 34,40 м2 6 826 680
Этаж 8/8 лоджия
МО, ЖК «Легенда Коренёво»
Лермонтовский проспект
20 мин.
Строится
1-комн. квартира 35,90 м2 6 031 200
Этаж 2/8
МО, ЖК «Легенда Коренёво»
Лермонтовский проспект
20 мин.
Строится
Посмотреть 100 квартир в ЖК «Легенда Коренёво»
2-комн. квартира 51,80 м2 10 214 960
Этаж 1/8
МО, ЖК «Легенда Коренёво»
Лермонтовский проспект
20 мин.
Строится
2-комн. квартира 53,60 м2 9 004 800
Этаж 2/8
МО, ЖК «Легенда Коренёво»
Лермонтовский проспект
20 мин.
Строится
2-комн. квартира 56,20 м2 11 127 600
Этаж 5/8 лоджия
МО, ЖК «Легенда Коренёво»
Лермонтовский проспект
20 мин.
Строится
2-комн. квартира 56,30 м2 11 147 400
Этаж 5/8 лоджия
МО, ЖК «Легенда Коренёво»
Лермонтовский проспект
20 мин.
Строится
Посмотреть 59 квартир в ЖК «Легенда Коренёво»

Скидки и спецпредложения от застройщиков

ЖК «Легенда Коренёво» на карте

Выгодные предложения на новостройки

Отзывы о ЖК «Легенда Коренёво»

Самый полезный отзыв
АП
06 июня 2024
Оценка:
Способы покупки
Первый офис находится на станции метро «Окская», а второй — прямо на строительной площадке. Сначала я посетил офис на метро «Окская». Второй офис продаж оказался гораздо удобнее, так как он расположен прямо на территории стройки. Здесь я смог увидеть процесс строительства своими глазами и задать вопросы строителям.
Ответить
Полезный отзыв?
Самый новый отзыв
М
20 ноября
Оценка:
Увидели на сайте отличную планировку двухкомнатной квартиры в 4 корпусе ЖК Легенда Коренево. Только вот не посмотрели, что она уже забронирована, однако оказалось, что во 2 корпусе, который даже раньше сдается, есть такая же квартира. Рассчитали ипотеку и тут же забронировали. Осталось только пару месяцев дождаться ключей
Показать все комментарии
Ответить
Полезный отзыв?
Добавьте отзыв, заполнив личные данные, или сначала войдите на сайт, тогда информация будет автоматически взята из личного профиля.
Оценка*