Рейтинг@Mail.ru
Переверните экран
Новостройки Квартиры Ипотека Новостройки Москвы Новостройки Подмосковья Новостройки Новой Москвы Готовые новостройки Новостройки на карте Акции от застройщиков Коммерческие помещения Продавцы и застройщики Панорамы новостроек Видеообзор новостроек Экспертиза новостроек Экология Москвы и Подмосковья Студии 1-комнатные 2-комнатные 3-комнатные Квартиры на карте Ипотечный калькулятор Семейная ипотека Военная ипотека Банки и программы Медиа Новости недвижимости Мнение эксперта Аналитика рынка Покупателю Экспертиза новостроек Эксперты и авторы О проекте Контакты Реклама на сайте Vk Youtube Telegram Дзен Машиноместа Апартаменты #траншевая ипотека #рассрочка IT-ипотека Квартиры со скидками до 40% Видео 360° новостроек Субсидированная застройщиком Rutube Поиск дома в Москве Программа реновации в Москве Новостройки премиум-класса Новостройки бизнес-класса Рассрочка Траншевая ипотека ГАЛС Дома и коттеджи Бизнес-центры Бизнес-центры в Москве Бизнес-центры рядом с метро Строящиеся бизнес-центры Бизнес-центры класса A Бизнес-центры класса B ЛСР
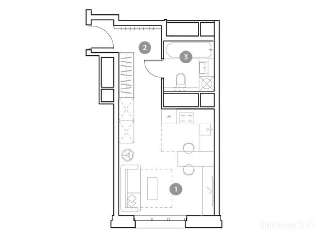
студия, 27.40 м2, 24 этаж
Сдан
8 540 580 
311 700 2
обновлено 5 декабря

Описание студии

Новостройка
Застройщик
Срок ГК
Дом сдан
Стадия строительства
выдача ключей + заселение
Тип проекта
Общая площадь
27.40 м2
Жилая площадь
13.20 м2
Площадь кухни
5.00 м2
Этаж
24 / 25
Грузовой лифт
есть

Расположение студии

Станция МЦД
Дом
3
Адрес
ул. Гоголя, д. 3, д.3к2, секция 1

Способы покупки

Особенности

Продается студия в новостройке ЖК «Гоголь Парк» по адресу Московская область, Люберцы городской округ, Люберцы, ул. Гоголя, д. 3, д.3к2. Общая площадь квартиры - 27.4 кв. м. Тип проекта, по которому построен дом — Монолит, компания-застройщик — ГК «Основа». Стоимость квартиры — 8 540 580 руб. Способы оплаты можно уточнить у продавца. Более подробная информация по телефону.
Инфоцентр новостроек
Инфоцентр новостроек
+7 (499) 705-91-41
Время работы 9:00 — 21:00
Посмотреть все спецпредложения
Этаж 22/22
МО, ЖК «Гоголь Парк»
Лухмановская
5 мин.
Сдан
студия 22,10 м2 6 961 500
Этаж 12/22
МО, ЖК «Гоголь Парк»
Лухмановская
5 мин.
Сдан
Этаж 25/25
МО, ЖК «Гоголь Парк»
Лухмановская
5 мин.
Сдан
студия 23,80 м2 7 830 200
Этаж 21/22
МО, ЖК «Гоголь Парк»
Лухмановская
5 мин.
Сдан
Посмотреть 20 квартир в ЖК «Гоголь Парк»
1-комн. квартира 33,30 м2 10 725 930
Этаж 22/22
МО, ЖК «Гоголь Парк»
Лухмановская
5 мин.
Сдан
1-комн. квартира 37,00 м2 11 655 000
Этаж 22/22
МО, ЖК «Гоголь Парк»
Лухмановская
5 мин.
Сдан
1-комн. квартира 37,50 м2 12 000 000
Этаж 24/25
МО, ЖК «Гоголь Парк»
Лухмановская
5 мин.
Сдан
1-комн. квартира 38,90 м2 11 864 500
Этаж 22/25
МО, ЖК «Гоголь Парк»
Лухмановская
5 мин.
Сдан
Посмотреть 17 квартир в ЖК «Гоголь Парк»
2-комн. квартира 64,90 м2 18 366 700
Этаж 22/22
МО, ЖК «Гоголь Парк»
Лухмановская
5 мин.
Сдан
2-комн. квартира 67,10 м2 18 519 600
Этаж 22/25
МО, ЖК «Гоголь Парк»
Лухмановская
5 мин.
Сдан
2-комн. квартира 67,50 м2 18 528 750
Этаж 20/25
МО, ЖК «Гоголь Парк»
Лухмановская
5 мин.
Сдан
2-комн. квартира 67,60 м2 18 454 800
Этаж 17/25
МО, ЖК «Гоголь Парк»
Лухмановская
5 мин.
Сдан
Посмотреть 6 квартир в ЖК «Гоголь Парк»
3-комн. квартира 71,90 м2 21 570 000
Этаж 2/22
МО, ЖК «Гоголь Парк»
Лухмановская
5 мин.
Сдан
3-комн. квартира 75,50 м2 20 536 000
Этаж 19/25
МО, ЖК «Гоголь Парк»
Лухмановская
5 мин.
Сдан
3-комн. квартира 75,70 м2 23 724 380
Этаж 24/25
МО, ЖК «Гоголь Парк»
Лухмановская
5 мин.
Сдан
3-комн. квартира 75,80 м2 20 920 800
Этаж 21/25
МО, ЖК «Гоголь Парк»
Лухмановская
5 мин.
Сдан
Посмотреть 5 квартир в ЖК «Гоголь Парк»

Скидки и спецпредложения от застройщиков

ЖК «Гоголь Парк» на карте

Выгодные предложения на новостройки

Отзывы о ЖК «Гоголь Парк»

Самый полезный отзыв
И
04 июня 2018
Оценка:
Большой плюс такой локации ст.м. Лухмановская очень и очень рядом! К концу строительства этого дома, она будет точно открыта, тут уж нет сомнений) жду старт продаж, интересно, какие озвучат цены.
Ответить
Полезный отзыв?
Самый новый отзыв
МК
20 ноября
Оценка:
Переехали в Гоголь Парк и довольны. До метро Лухмановская – 5-7 минут неспешным шагом, это главный плюс. Фасады смотрятся свежо и современно. Во дворе приятно, аккуратно детские и спортивные площадки есть, дети довольны.
Ответить
Полезный отзыв?
Добавьте отзыв, заполнив личные данные, или сначала войдите на сайт, тогда информация будет автоматически взята из личного профиля.
Оценка*