Рейтинг@Mail.ru
Переверните экран
Новостройки Квартиры Ипотека Новостройки Москвы Новостройки Подмосковья Новостройки Новой Москвы Готовые новостройки Новостройки на карте Акции от застройщиков Коммерческие помещения Продавцы и застройщики Панорамы новостроек Видеообзор новостроек Экспертиза новостроек Экология Москвы и Подмосковья Студии 1-комнатные 2-комнатные 3-комнатные Квартиры на карте Ипотечный калькулятор Семейная ипотека Военная ипотека Банки и программы Медиа Новости недвижимости Мнение эксперта Аналитика рынка Покупателю Экспертиза новостроек Эксперты и авторы О проекте Контакты Реклама на сайте Vk Youtube Telegram Дзен Машиноместа Апартаменты #траншевая ипотека #рассрочка ИТ-ипотека Квартиры со скидками до 40% Видео 360° новостроек Субсидированная застройщиком Rutube Поиск дома в Москве Программа реновации в Москве Новостройки премиум-класса Новостройки бизнес-класса Рассрочка Траншевая ипотека Дома и коттеджи Бизнес-центры Бизнес-центры в Москве Бизнес-центры рядом с метро Строящиеся бизнес-центры Бизнес-центры класса A Бизнес-центры класса B Ипотека со ставкой 0,1%
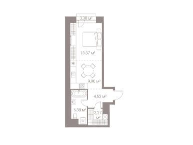
студия, 35.02 м2, 2 этаж
Срок сдачи 4 квартал 2026 года
20 300 008 
579 669 2
обновлено 29 марта

Описание студии

Застройщик
Срок ГК
4 квартал 2026 года
Стадия строительства
отделка фасада
Общая площадь
35.02 м2
Жилая площадь
15.12 м2
Площадь кухни
8.14 м2
Высота потолков
2.97
Этаж
2 / 13

Расположение студии

Локация
Метро
Дом
К6-1
Адрес
Каширский пр-д, секция 4

Способы покупки

Особенности

Продается студия в новостройке Жилой квартал LIFE Варшавская (Лайф Варшавская) по адресу Москва, ЮАО, Москворечье-Сабурово, Каширский пр-д. Общая площадь квартиры - 35.02 кв. м. Тип проекта, по которому построен дом — Монолитно-кирпичный, компания-застройщик — ГК Пионер. Стоимость квартиры — 20 300 008 руб. Способы оплаты можно уточнить у продавца. Срок сдачи — 4 квартал 2026. Более подробная информация по телефону.

Правовые документы

+7 (499) 705-91-41
Время работы 9:00 — 21:00
Этаж 25/25 балкон
Москва, Жилой квартал LIFE Варшавская (Лайф Варшавская)
Варшавская
5 мин.
Строится
Этаж 14/25 балкон
Москва, Жилой квартал LIFE Варшавская (Лайф Варшавская)
Варшавская
5 мин.
Строится
Этаж 9/9 балкон
Москва, Жилой квартал LIFE Варшавская (Лайф Варшавская)
Варшавская
5 мин.
Строится
Этаж 7/13 лоджия
Москва, Жилой квартал LIFE Варшавская (Лайф Варшавская)
Варшавская
5 мин.
Строится
Посмотреть 13 квартир в Жилом квартале LIFE Варшавская (Лайф Варшавская)
Этаж 9/9 балкон
Москва, Жилой квартал LIFE Варшавская (Лайф Варшавская)
Варшавская
5 мин.
Строится
1-комн. квартира 37,62 м2 22 496 760
Этаж 2/9 балкон
Москва, Жилой квартал LIFE Варшавская (Лайф Варшавская)
Варшавская
5 мин.
Строится
Этаж 9/9 балкон
Москва, Жилой квартал LIFE Варшавская (Лайф Варшавская)
Варшавская
5 мин.
Строится
1-комн. квартира 37,88 м2 25 235 656
Этаж 9/9
Москва, Жилой квартал LIFE Варшавская (Лайф Варшавская)
Варшавская
5 мин.
Строится
Посмотреть 36 квартир в Жилом квартале LIFE Варшавская (Лайф Варшавская)
2-комн. квартира 40,66 м2 22 354 868
Этаж 9/10 балкон
Москва, Жилой квартал LIFE Варшавская (Лайф Варшавская)
Варшавская
5 мин.
Строится
2-комн. квартира 40,69 м2 21 813 909
Этаж 8/10 балкон
Москва, Жилой квартал LIFE Варшавская (Лайф Варшавская)
Варшавская
5 мин.
Строится
2-комн. квартира 41,96 м2 22 494 756
Этаж 8/10 балкон
Москва, Жилой квартал LIFE Варшавская (Лайф Варшавская)
Варшавская
5 мин.
Строится
2-комн. квартира 61,02 м2 36 471 654
Этаж 25/25 балкон
Москва, Жилой квартал LIFE Варшавская (Лайф Варшавская)
Варшавская
5 мин.
Строится
Посмотреть 18 квартир в Жилом квартале LIFE Варшавская (Лайф Варшавская)
3-комн. квартира 57,02 м2 28 920 544
Этаж 9/10 балкон
Москва, Жилой квартал LIFE Варшавская (Лайф Варшавская)
Варшавская
5 мин.
Строится
3-комн. квартира 57,65 м2 28 657 815
Этаж 8/10 балкон
Москва, Жилой квартал LIFE Варшавская (Лайф Варшавская)
Варшавская
5 мин.
Строится
3-комн. квартира 57,69 м2 28 671 930
Этаж 8/10 балкон
Москва, Жилой квартал LIFE Варшавская (Лайф Варшавская)
Варшавская
5 мин.
Строится
3-комн. квартира 57,80 м2 29 512 680
Этаж 9/10 балкон
Москва, Жилой квартал LIFE Варшавская (Лайф Варшавская)
Варшавская
5 мин.
Строится
Посмотреть 18 квартир в Жилом квартале LIFE Варшавская (Лайф Варшавская)

Скидки и спецпредложения от застройщиков

Жилой квартал LIFE Варшавская (Лайф Варшавская) на карте

Выгодные предложения на новостройки

Самый полезный отзыв
ЕС
16 ноября 2018
Оценка:
Мы уже купили квартиру в ЖК «LIFE-Варшавская», теперь с нетерпением ждем свой домик. Еще нашла полноценный форум нашего ЖК *ссылка*, надеюсь там познакомиться с будущими соседями)
Ответить
Самый новый отзыв
В
28 марта
Оценка:
Для этого района цены не завышены, если сравнивать с другими новостройками в округе, хотя хотелось бы подешевле)) У Лайф Варшавской хорошее расположение относительно станции метро, дойти можно пешком. И почему нас еще этот жк заинтересовал - рассматриваем к покупке комплексы с работающими школами, это обязательный пункт.
Ответить

Оставить отзыв

Добавьте отзыв, заполнив личные данные, или сначала войдите на сайт, тогда информация будет автоматически взята из личного профиля.
Оценка*