Рейтинг@Mail.ru
Переверните экран
Новостройки Квартиры Ипотека Новостройки Москвы Новостройки Подмосковья Новостройки Новой Москвы Готовые новостройки Новостройки на карте Акции от застройщиков Коммерческие помещения Продавцы и застройщики Панорамы новостроек Видеообзор новостроек Экспертиза новостроек Экология Москвы и Подмосковья Студии 1-комнатные 2-комнатные 3-комнатные Квартиры на карте Ипотечный калькулятор Семейная ипотека Военная ипотека Банки и программы Медиа Новости недвижимости Мнение эксперта Аналитика рынка Покупателю Экспертиза новостроек Эксперты и авторы О проекте Контакты Реклама на сайте Vk Youtube Telegram Дзен Машиноместа Апартаменты #траншевая ипотека #рассрочка IT-ипотека Квартиры со скидками до 40% Видео 360° новостроек Субсидированная застройщиком Rutube Поиск дома в Москве Программа реновации в Москве Новостройки премиум-класса Новостройки бизнес-класса Рассрочка Траншевая ипотека ГАЛС Дома и коттеджи Бизнес-центры Бизнес-центры в Москве Бизнес-центры рядом с метро Строящиеся бизнес-центры Бизнес-центры класса A Бизнес-центры класса B ЛСР
Данная квартира является лидером продаж среди студий в Квартале здоровой жизни «СОЮЗ» по данным Росреестра
Данное предложение на 17.12.2025 неактуально. Пожалуйста, ознакомьтесь с другими похожими предложениями в Квартал здоровой жизни «СОЮЗ» .
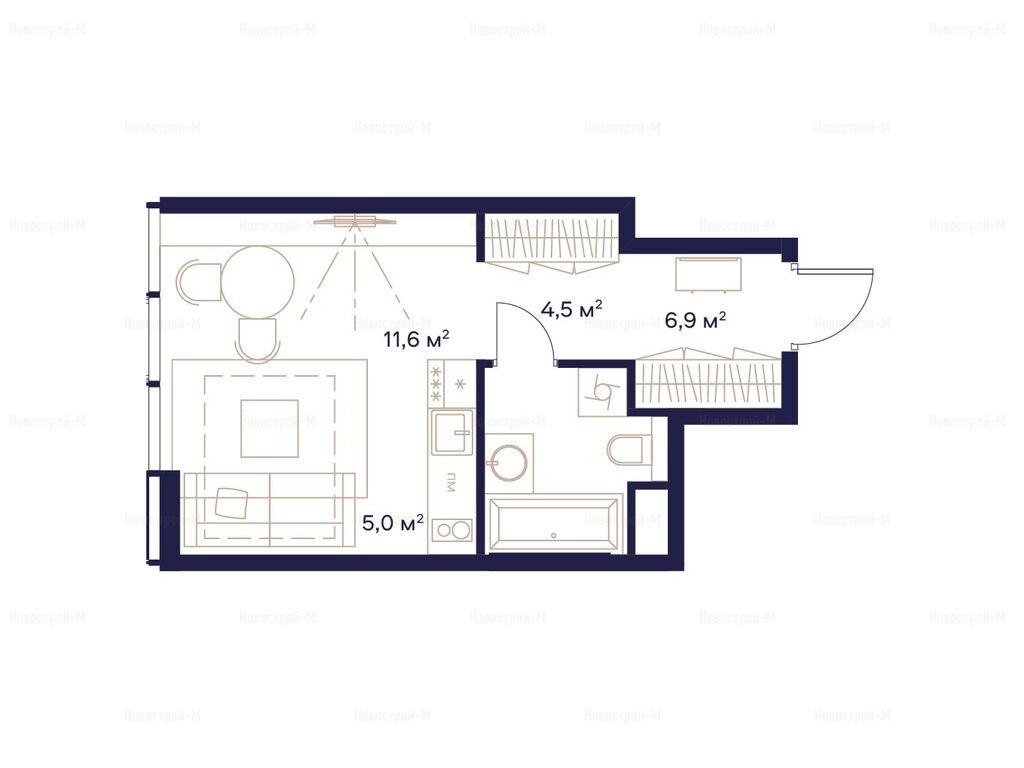
студия, 28.00 м2, 2 этаж
Срок сдачи 4 квартал 2025 года
18 635 200 
665 543 2
обновлено 5 декабря

Описание студии

Застройщик
Срок ГК
4 квартал 2025 года
Общая площадь
28.00 м2
Жилая площадь
11.60 м2
Площадь кухни
5.00 м2
Этаж
2 / 23

Расположение студии

Локация
Метро
Станция МЦК
Ж/Д-станция
Яуза
23 мин.
Дом
4
Адрес
ул. Сельскохозяйственная, вл. 26, корп. 4, секция 1

Способы покупки

Особенности

Продается студия в новостройке Квартал здоровой жизни «СОЮЗ» по адресу Москва, СВАО, Ростокино, ул. Сельскохозяйственная, вл. 26, корп. 4. Общая площадь квартиры - 28 кв. м. Тип проекта, по которому построен дом — Монолитно-кирпичный, компания-застройщик — ГРУППА РОДИНА, СЗ «ИСКРА». Стоимость квартиры — 18 635 200 руб. Способы оплаты можно уточнить у продавца. Срок сдачи — 4 квартал 2025. Более подробная информация по телефону.

Правовые документы

ГРУППА РОДИНА
ГРУППА РОДИНА
Сданных 1
|
Строящихся 6
Время работы 09:00 — 21:00
Выбирайте квартиру в Квартал здоровой жизни «СОЮЗ» по ценам от застройщика
Посмотреть все спецпредложения
студия 27,40 м2 19 155 320
Этаж 2/24
Москва, Квартал здоровой жизни «СОЮЗ»
Ботанический сад
8 мин.
Строится
студия 28,80 м2 19 916 480
Этаж 2/24
Москва, Квартал здоровой жизни «СОЮЗ»
Ботанический сад
8 мин.
Строится
студия 28,90 м2 20 588 950
Этаж 14/23
Москва, Квартал здоровой жизни «СОЮЗ»
Ботанический сад
8 мин.
Строится
студия 29,00 м2 19 635 800
Этаж 6/23
Москва, Квартал здоровой жизни «СОЮЗ»
Ботанический сад
8 мин.
Строится
Посмотреть 33 квартиры в Квартале здоровой жизни «СОЮЗ»
1-комн. квартира 41,30 м2 32 930 250
Этаж 12/23
Москва, Квартал здоровой жизни «СОЮЗ»
Ботанический сад
8 мин.
Сдан
1-комн. квартира 41,80 м2 32 666 060
Этаж 20/24
Москва, Квартал здоровой жизни «СОЮЗ»
Ботанический сад
8 мин.
Строится
1-комн. квартира 41,90 м2 29 597 040
Этаж 18/24
Москва, Квартал здоровой жизни «СОЮЗ»
Ботанический сад
8 мин.
Строится
1-комн. квартира 42,90 м2 28 917 260
Этаж 17/23
Москва, Квартал здоровой жизни «СОЮЗ»
Ботанический сад
8 мин.
Строится
Посмотреть 95 квартир в Квартале здоровой жизни «СОЮЗ»
2-комн. квартира 59,60 м2 43 028 560
Этаж 8/23
Москва, Квартал здоровой жизни «СОЮЗ»
Ботанический сад
8 мин.
Строится
2-комн. квартира 60,10 м2 46 945 780
Этаж 5/24
Москва, Квартал здоровой жизни «СОЮЗ»
Ботанический сад
8 мин.
Строится
2-комн. квартира 60,30 м2 41 909 510
Этаж 3/23
Москва, Квартал здоровой жизни «СОЮЗ»
Ботанический сад
8 мин.
Строится
2-комн. квартира 60,40 м2 51 999 040
Этаж 16/24
Москва, Квартал здоровой жизни «СОЮЗ»
Ботанический сад
8 мин.
Строится
Посмотреть 79 квартир в Квартале здоровой жизни «СОЮЗ»
3-комн. квартира 77,80 м2 49 758 600
Этаж 12/23
Москва, Квартал здоровой жизни «СОЮЗ»
Ботанический сад
8 мин.
Строится
3-комн. квартира 77,90 м2 70 489 170
Этаж 14/23
Москва, Квартал здоровой жизни «СОЮЗ»
Ботанический сад
8 мин.
Строится
3-комн. квартира 78,40 м2 56 859 680
Этаж 18/23
Москва, Квартал здоровой жизни «СОЮЗ»
Ботанический сад
8 мин.
Сдан
3-комн. квартира 78,50 м2 52 457 450
Этаж 16/23
Москва, Квартал здоровой жизни «СОЮЗ»
Ботанический сад
8 мин.
Строится
Посмотреть 48 квартир в Квартале здоровой жизни «СОЮЗ»
4-комн. квартира 94,60 м2 114 514 640
Этаж 22/23
Москва, Квартал здоровой жизни «СОЮЗ»
Ботанический сад
8 мин.
Сдан
4-комн. квартира 94,70 м2 114 701 770
Этаж 22/23
Москва, Квартал здоровой жизни «СОЮЗ»
Ботанический сад
8 мин.
Сдан
4-комн. квартира 95,00 м2 115 002 750
Этаж 21/23
Москва, Квартал здоровой жизни «СОЮЗ»
Ботанический сад
8 мин.
Сдан
4-комн. квартира 127,20 м2 92 483 600
Этаж 18/23
Москва, Квартал здоровой жизни «СОЮЗ»
Ботанический сад
8 мин.
Сдан
Посмотреть 13 квартир в Квартале здоровой жизни «СОЮЗ»

Скидки и спецпредложения от застройщиков

Квартал здоровой жизни «СОЮЗ» на карте

Выгодные предложения на новостройки

Отзывы о Квартале здоровой жизни «СОЮЗ»

Самый полезный отзыв
И
29 июля 2021
Оценка:
Расположение
Готовность
В целом интересное расположение, Яуза рядом, до ВДНХ не далеко, парк сад будущего вообще практически под окнами будет. Но конечно, без цен, пока очень рано говорить о том стоит ли сюда вкладываться, плюс не понятно сколько всего будет квартир/очередей, жить долгое время рядом с бесконечной стройкой не хочется) Так что ждём цен)
Ответить
Полезный отзыв?
Самый новый отзыв
ВО
17 ноября
Оценка:
Планировки
В союзе квартиры отдают без отделки - для меня это вариант сделать ремонт по своему проекту, в принципе я так и хотел.
Ответить
Полезный отзыв?
Добавьте отзыв, заполнив личные данные, или сначала войдите на сайт, тогда информация будет автоматически взята из личного профиля.
Оценка*