Рейтинг@Mail.ru
Переверните экран
Новостройки Квартиры Ипотека Новостройки Москвы Новостройки Подмосковья Новостройки Новой Москвы Готовые новостройки Новостройки на карте Акции от застройщиков Коммерческие помещения Продавцы и застройщики Панорамы новостроек Видеообзор новостроек Экспертиза новостроек Экология Москвы и Подмосковья Студии 1-комнатные 2-комнатные 3-комнатные Квартиры на карте Ипотечный калькулятор Семейная ипотека Военная ипотека Банки и программы Медиа Новости недвижимости Мнение эксперта Аналитика рынка Покупателю Экспертиза новостроек Эксперты и авторы О проекте Контакты Реклама на сайте Vk Youtube Telegram Дзен Машиноместа Апартаменты #траншевая ипотека #рассрочка IT-ипотека Квартиры со скидками до 40% Видео 360° новостроек Субсидированная застройщиком Rutube Поиск дома в Москве Программа реновации в Москве Новостройки премиум-класса Новостройки бизнес-класса Рассрочка Траншевая ипотека ГАЛС Дома и коттеджи Бизнес-центры Бизнес-центры в Москве Бизнес-центры рядом с метро Строящиеся бизнес-центры Бизнес-центры класса A Бизнес-центры класса B ЛСР
Данная квартира является лидером продаж среди студий в Бунинской набережной по данным Росреестра
Данное предложение на 13.12.2025 неактуально. Пожалуйста, ознакомьтесь с другими похожими предложениями в Бунинская набережная .
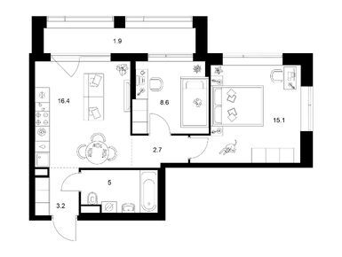
студия, 20.40 м2, 8 этаж
Срок сдачи 2 квартал 2028 года
7 576 560 
371 400 2
обновлено 10 октября

Описание студии

Застройщик
Срок ГК
2 квартал 2028 года
Стадия строительства
Тип проекта
Общая площадь
20.40 м2
Жилая площадь
8.80 м2
Площадь кухни
5.40 м2
Этаж
8 / 16
Отделка
white box
Грузовой лифт
есть

Расположение студии

Локация
Дом
2.6/1.2
Адрес
Бунинская набережная, корп. 2.6/1.2, секция 2

Способы покупки

Особенности

Продается студия в новостройке Бунинская набережная по адресу Москва, ТиНАО, Новомосковский АО, Сосенское С/П, Коммунарка пос., Бунинская набережная, корп. 2.6/1.2. Общая площадь квартиры - 20.4 кв. м. Тип проекта, по которому построен дом — Монолит, компания-застройщик — ПИК, СЗ СТРОЙКОМ. Стоимость квартиры — 7 576 560 руб. Способы оплаты можно уточнить у продавца. Срок сдачи — 2 квартал 2028. Более подробная информация по телефону.
ПИК
ПИК
Сданных 94
|
Строящихся 40
Время работы 02:00 — 21:00
Онлайн-сделка
Выбирайте квартиру в Бунинская набережная по ценам от застройщика

Похожие квартиры в Бунинской набережной

9 этаж
из 16 2 квартал 2028
Москва, Сосенское С/П
Потапово
18 мин.
2.6/1.2
Корпус
white box
Отделка
2.66 м
Потолки
Бунинская набережная
9 286 080
ВТБ, Альфа-Банк, Московский Кредитный Банк
6.00%
Ставка
20.10%
Первый взнос
от 55 675 /мес.
Все варианты
13 этаж
из 16 2 квартал 2028
Москва, Сосенское С/П
Потапово
18 мин.
2.6/1.2
Корпус
white box
Отделка
2.66 м
Потолки
Бунинская набережная
9 316 680
ВТБ, Альфа-Банк, Московский Кредитный Банк
6.00%
Ставка
20.10%
Первый взнос
от 55 858 /мес.
Все варианты
Посмотреть все спецпредложения
студия 19,00 м2 9 937 000
Этаж 10/16
НМ, Бунинская набережная
Потапово
18 мин.
Строится
студия 19,20 м2 10 124 160
Этаж 14/16
НМ, Бунинская набережная
Потапово
18 мин.
Строится
студия 19,80 м2 9 773 280
Этаж 14/16
НМ, Бунинская набережная
Потапово
18 мин.
Строится
студия 19,90 м2 9 770 900
Этаж 10/16
НМ, Бунинская набережная
Потапово
18 мин.
Строится
Посмотреть 27 квартир в Бунинской набережной
1-комн. квартира 30,70 м2 13 590 890
Этаж 11/16
НМ, Бунинская набережная
Потапово
18 мин.
Строится
1-комн. квартира 32,40 м2 13 585 320
Этаж 12/16
НМ, Бунинская набережная
Потапово
18 мин.
Строится
Этаж 13/16
НМ, Бунинская набережная
Потапово
18 мин.
Строится
1-комн. квартира 33,70 м2 13 746 230
Этаж 14/16
НМ, Бунинская набережная
Потапово
18 мин.
Строится
Посмотреть 52 квартиры в Бунинской набережной
2-комн. квартира 51,40 м2 18 730 160
Этаж 5/16
НМ, Бунинская набережная
Потапово
18 мин.
Строится
Этаж 13/16
НМ, Бунинская набережная
Потапово
18 мин.
Строится
2-комн. квартира 52,80 м2 19 456 800
Этаж 9/16
НМ, Бунинская набережная
Потапово
18 мин.
Строится
Этаж 7/16
НМ, Бунинская набережная
Потапово
18 мин.
Строится
Посмотреть 34 квартиры в Бунинской набережной
3-комн. квартира 69,30 м2 23 936 220
Этаж 14/16
НМ, Бунинская набережная
Потапово
18 мин.
Строится
3-комн. квартира 69,80 м2 21 993 980
Этаж 5/16
НМ, Бунинская набережная
Потапово
18 мин.
Строится
3-комн. квартира 69,90 м2 22 368 000
Этаж 13/16
НМ, Бунинская набережная
Потапово
18 мин.
Строится
3-комн. квартира 70,30 м2 22 158 560
Этаж 10/16
НМ, Бунинская набережная
Потапово
18 мин.
Строится
Посмотреть 17 квартир в Бунинской набережной

Скидки и спецпредложения от застройщиков

Бунинская набережная на карте

Выгодные предложения на новостройки

Отзывы о Бунинской набережной

Самый полезный отзыв
ОМ
29 мая
Оценка:
Двор, окружение
Расположение
Прямо на берегу Ивановского пруда. Красота! Но самое главное преимущество для нас, будущих жителей Бунинской набережной, — это тишина и приватность. Никакой городской суеты, только спокойствие и уют. Вот это я понимаю, уютное жилье!
Ответить
Полезный отзыв?
Самый новый отзыв
ФР
24 октября
Оценка:
Ценник для меня слишком высокий, подожду, может скидки будут, а то уж больно лакомый кусочек
Ответить
Полезный отзыв?
Добавьте отзыв, заполнив личные данные, или сначала войдите на сайт, тогда информация будет автоматически взята из личного профиля.
Оценка*