Рейтинг@Mail.ru
Переверните экран
Новостройки Квартиры Ипотека Новостройки Москвы Новостройки Подмосковья Новостройки Новой Москвы Готовые новостройки Новостройки на карте Акции от застройщиков Коммерческие помещения Продавцы и застройщики Панорамы новостроек Видеообзор новостроек Экспертиза новостроек Экология Москвы и Подмосковья Студии 1-комнатные 2-комнатные 3-комнатные Квартиры на карте Ипотечный калькулятор Семейная ипотека Военная ипотека Банки и программы Медиа Новости недвижимости Мнение эксперта Аналитика рынка Покупателю Экспертиза новостроек Эксперты и авторы О проекте Контакты Реклама на сайте Vk Youtube Telegram Дзен Машиноместа Апартаменты #траншевая ипотека #рассрочка IT-ипотека Квартиры со скидками до 40% Видео 360° новостроек Субсидированная застройщиком Rutube Поиск дома в Москве Программа реновации в Москве Новостройки премиум-класса Новостройки бизнес-класса Рассрочка Траншевая ипотека Дома и коттеджи Бизнес-центры Бизнес-центры в Москве Бизнес-центры рядом с метро Строящиеся бизнес-центры Бизнес-центры класса A Бизнес-центры класса B
Данная квартира является лидером продаж среди однокомнатных квартир в ЖК STONE Sokolniki (Стоун Сокольники) по данным Росреестра
1-комн. квартира, 42.40 м2, 18 этаж
Срок сдачи 4 квартал 2027 года
25 038 726 
590 536 2
обновлено 5 февраля

Описание 1-комн. квартиры

Срок ГК
4 квартал 2027 года
Стадия строительства
монтаж верхних этажей
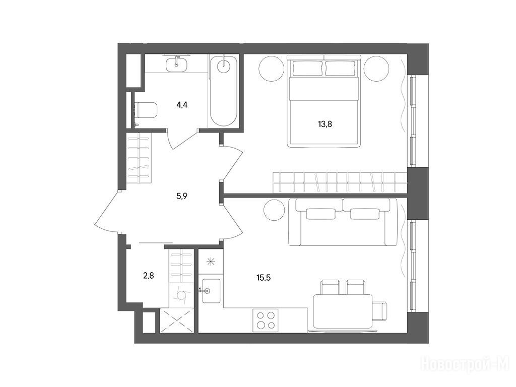
Общая площадь
42.40 м2
Жилая площадь
13.80 м2
Площадь кухни
15.50 м2
Этаж
18 / 28

Расположение 1-комн. квартиры

Локация
Станция МЦД
Дом
В
Адрес
ул. Гастелло, з/у 32, секция 2

Особенности

Продается однокомнатная квартира в новостройке ЖК STONE Sokolniki (Стоун Сокольники) по адресу Москва, ВАО, Сокольники, ул. Гастелло, з/у 32. Общая площадь квартиры - 42.4 кв. м. Тип проекта, по которому построен дом — Монолитно-кирпичный, компания-застройщик — Stone, ООО СЗ «КВАРТАЛ СОКОЛЬНИКИ». Стоимость квартиры — 25 038 726 руб. Способы оплаты можно уточнить у продавца. Срок сдачи — 4 квартал 2027. Более подробная информация по телефону.
Инфоцентр новостроек
Инфоцентр новостроек
+7 (499) 705-91-41
Время работы 9:00 — 21:00

Похожие квартиры в ЖК STONE Sokolniki (Стоун Сокольники)

15 этаж
из 28 4 квартал 2027
Москва, ВАО
Сокольники
10 мин.
В
Корпус
нет данных
Отделка
3.00 м
Потолки
ЖК STONE Sokolniki (Стоун Сокольники)
24 907 117
16 этаж
из 28 4 квартал 2027
Москва, ВАО
Сокольники
10 мин.
В
Корпус
нет данных
Отделка
3.00 м
Потолки
ЖК STONE Sokolniki (Стоун Сокольники)
24 956 470
17 этаж
из 28 4 квартал 2027
Москва, ВАО
Сокольники
10 мин.
В
Корпус
нет данных
Отделка
3.00 м
Потолки
ЖК STONE Sokolniki (Стоун Сокольники)
24 997 598
26 этаж
из 28 4 квартал 2027
Москва, ВАО
Сокольники
10 мин.
В
Корпус
нет данных
Отделка
3.00 м
Потолки
ЖК STONE Sokolniki (Стоун Сокольники)
26 177 972
Посмотреть все спецпредложения
студия 32,80 м2 20 276 337
Этаж 10/24
Москва, ЖК STONE Sokolniki (Стоун Сокольники)
Сокольники
10 мин.
Строится
студия 33,10 м2 20 532 427
Этаж 12/24
Москва, ЖК STONE Sokolniki (Стоун Сокольники)
Сокольники
10 мин.
Строится
студия 34,00 м2 21 549 132
Этаж 16/24
Москва, ЖК STONE Sokolniki (Стоун Сокольники)
Сокольники
10 мин.
Строится
студия 37,70 м2 20 628 573
Этаж 5/28
Москва, ЖК STONE Sokolniki (Стоун Сокольники)
Сокольники
10 мин.
Строится
Посмотреть 20 квартир в ЖК STONE Sokolniki (Стоун Сокольники)
1-комн. квартира 42,10 м2 23 436 354
Этаж 3/28
Москва, ЖК STONE Sokolniki (Стоун Сокольники)
Сокольники
10 мин.
Строится
1-комн. квартира 42,30 м2 25 094 560
Этаж 20/33
Москва, ЖК STONE Sokolniki (Стоун Сокольники)
Сокольники
10 мин.
Строится
1-комн. квартира 42,40 м2 26 177 972
Этаж 26/28
Москва, ЖК STONE Sokolniki (Стоун Сокольники)
Сокольники
10 мин.
Строится
1-комн. квартира 42,50 м2 25 357 498
Этаж 25/28
Москва, ЖК STONE Sokolniki (Стоун Сокольники)
Сокольники
10 мин.
Строится
Посмотреть 56 квартир в ЖК STONE Sokolniki (Стоун Сокольники)
2-комн. квартира 54,80 м2 29 145 435
Этаж 14/28
Москва, ЖК STONE Sokolniki (Стоун Сокольники)
Сокольники
10 мин.
Строится
2-комн. квартира 55,60 м2 29 570 916
Этаж 18/24
Москва, ЖК STONE Sokolniki (Стоун Сокольники)
Сокольники
10 мин.
Строится
2-комн. квартира 55,70 м2 29 715 950
Этаж 19/24
Москва, ЖК STONE Sokolniki (Стоун Сокольники)
Сокольники
10 мин.
Строится
2-комн. квартира 55,90 м2 27 951 957
Этаж 2/24
Москва, ЖК STONE Sokolniki (Стоун Сокольники)
Сокольники
10 мин.
Строится
Посмотреть 84 квартиры в ЖК STONE Sokolniki (Стоун Сокольники)
3-комн. квартира 84,40 м2 44 454 324
Этаж 22/24
Москва, ЖК STONE Sokolniki (Стоун Сокольники)
Сокольники
10 мин.
Строится
3-комн. квартира 85,20 м2 43 487 273
Этаж 7/33
Москва, ЖК STONE Sokolniki (Стоун Сокольники)
Сокольники
10 мин.
Строится
3-комн. квартира 85,30 м2 46 235 671
Этаж 22/33
Москва, ЖК STONE Sokolniki (Стоун Сокольники)
Сокольники
10 мин.
Строится
3-комн. квартира 86,60 м2 42 463 011
Этаж 9/24
Москва, ЖК STONE Sokolniki (Стоун Сокольники)
Сокольники
10 мин.
Строится
Посмотреть 43 квартиры в ЖК STONE Sokolniki (Стоун Сокольники)
4-комн. квартира 116,00 м2 58 960 480
Этаж 19/24
Москва, ЖК STONE Sokolniki (Стоун Сокольники)
Сокольники
10 мин.
Строится
4-комн. квартира 134,20 м2 70 267 925
Этаж 21/33
Москва, ЖК STONE Sokolniki (Стоун Сокольники)
Сокольники
10 мин.
Строится

Скидки и спецпредложения от застройщиков

ЖК STONE Sokolniki (Стоун Сокольники) на карте

Выгодные предложения на новостройки

Отзывы о ЖК STONE Sokolniki (Стоун Сокольники)

Самый полезный отзыв
ГС
10 сентября 2024
Оценка:
Социальная инфраструктура
Планировки
Способы покупки
Внешний вид фасада
Плюсы: Метро Сокольники - 15 минут пешком, метро Электрозаводская - 20 минут; ЖК бизнес-класса от надежного застройщика; Построят торговые помещения внутри ЖК; Цена ниже рынка и практически нет конкурентов. Минусы: Позиционирование ЖК как дом у парка. Но до парка сокольники минут 20 пешком. Это не близко.
Ответить
Полезный отзыв?
Самый новый отзыв
ИБ
11 января
Оценка:
Двор, окружение
Расположение
Рассматривал этот проект из-за локации - район давно сформирован, рядом парки, не ощущается стройка в чистом поле. Понравилось, что дом городской по духу, без показной роскоши. Есть опасения по шуму и трафику, поэтому выбор стороны и этажа тут критичен. вариант для тех, кто ценит район, а не только сам дом
Ответить
Полезный отзыв?
Добавьте отзыв, заполнив личные данные, или сначала войдите на сайт, тогда информация будет автоматически взята из личного профиля.
Оценка*