Рейтинг@Mail.ru
Переверните экран
Новостройки Квартиры Ипотека Новостройки Москвы Новостройки Подмосковья Новостройки Новой Москвы Готовые новостройки Новостройки на карте Акции от застройщиков Коммерческие помещения Продавцы и застройщики Панорамы новостроек Видеообзор новостроек Экспертиза новостроек Экология Москвы и Подмосковья Студии 1-комнатные 2-комнатные 3-комнатные Квартиры на карте Ипотечный калькулятор Семейная ипотека Военная ипотека Банки и программы Медиа Новости недвижимости Мнение эксперта Аналитика рынка Покупателю Экспертиза новостроек Эксперты и авторы О проекте Контакты Реклама на сайте Vk Youtube Telegram Дзен Машиноместа Апартаменты #траншевая ипотека #рассрочка IT-ипотека Квартиры со скидками до 40% Видео 360° новостроек Субсидированная застройщиком Rutube Поиск дома в Москве Программа реновации в Москве Новостройки премиум-класса Новостройки бизнес-класса Рассрочка Траншевая ипотека Дома и коттеджи Бизнес-центры Бизнес-центры в Москве Бизнес-центры рядом с метро Строящиеся бизнес-центры Бизнес-центры класса A Бизнес-центры класса B
Данная квартира является лидером продаж среди однокомнатных квартир в ЖК SET по данным Росреестра
1-комн. квартира, 53.68 м2, 2 этаж
Срок сдачи 3 квартал 2028 года
41 065 200 
45 628 000
765 000 2
обновлено 2 февраля

Описание 1-комн. квартиры

Новостройка
Застройщик
Срок ГК
3 квартал 2028 года
Стадия строительства
монтаж нижних этажей
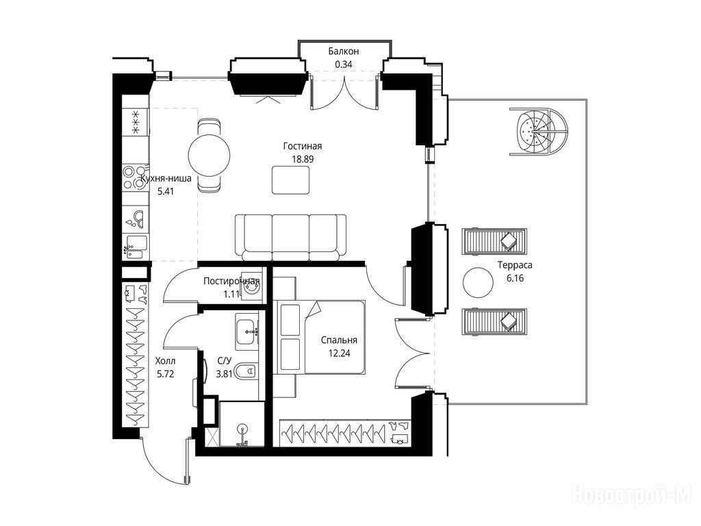
Общая площадь
53.68 м2
Жилая площадь
12.24 м2
Площадь кухни
24.30 м2
Этаж
2 / 28
Отделка
нет

Расположение 1-комн. квартиры

Локация
Станция МЦД
Дом
С
Адрес
ул. Верейская, вл. 29, стр. 32Б, корп. С, секция 1

Особенности

Продается однокомнатная квартира в новостройке ЖК SET (СЕТ) по адресу Москва, ЗАО, Можайский, ул. Верейская, вл. 29, стр. 32Б, корп. С. Общая площадь квартиры - 53.68 кв. м. Тип проекта, по которому построен дом — Монолитно-кирпичный, компания-застройщик — MR Group (МР Групп). Стоимость квартиры — 41 065 200 руб. Способы оплаты можно уточнить у продавца. Срок сдачи — 3 квартал 2028. Более подробная информация по телефону.
Инфоцентр новостроек
Инфоцентр новостроек
+7 (499) 705-91-41
Время работы 9:00 — 21:00
Посмотреть все спецпредложения
студия 22,90 м2 18 384 693
Этаж 29/45
Москва, ЖК SET (СЕТ)
Давыдково
22 мин.
Строится
студия 24,90 м2 18 519 375
Этаж 47/52
Москва, ЖК SET (СЕТ)
Давыдково
22 мин.
Строится
студия 25,17 м2 18 656 004
Этаж 23/52
Москва, ЖК SET (СЕТ)
Давыдково
22 мин.
Строится
студия 25,50 м2 19 615 875
Этаж 3/45
Москва, ЖК SET (СЕТ)
Давыдково
22 мин.
Строится
Посмотреть 20 квартир в ЖК SET
1-комн. квартира 30,77 м2 24 092 910
Этаж 14/59
Москва, ЖК SET (СЕТ)
Давыдково
22 мин.
Строится
1-комн. квартира 31,05 м2 19 319 310
Этаж 56/59
Москва, ЖК SET (СЕТ)
Давыдково
22 мин.
Строится
1-комн. квартира 31,70 м2 24 535 800
Этаж 14/59
Москва, ЖК SET (СЕТ)
Давыдково
22 мин.
Строится
1-комн. квартира 32,19 м2 19 973 895
Этаж 56/59
Москва, ЖК SET (СЕТ)
Давыдково
22 мин.
Строится
Посмотреть 261 квартира в ЖК SET
2-комн. квартира 50,70 м2 26 158 665
Этаж 37/59
Москва, ЖК SET (СЕТ)
Давыдково
22 мин.
Строится
2-комн. квартира 50,90 м2 27 256 950
Этаж 47/52
Москва, ЖК SET (СЕТ)
Давыдково
22 мин.
Строится
2-комн. квартира 51,28 м2 27 111 736
Этаж 32/52
Москва, ЖК SET (СЕТ)
Давыдково
22 мин.
Строится
2-комн. квартира 51,30 м2 27 798 188
Этаж 24/45
Москва, ЖК SET (СЕТ)
Давыдково
22 мин.
Строится
Посмотреть 204 квартиры в ЖК SET
3-комн. квартира 74,58 м2 37 084 905
Этаж 26/52
Москва, ЖК SET (СЕТ)
Давыдково
22 мин.
Строится
3-комн. квартира 75,18 м2 37 511 061
Этаж 29/52
Москва, ЖК SET (СЕТ)
Давыдково
22 мин.
Строится
3-комн. квартира 76,09 м2 37 965 106
Этаж 17/52
Москва, ЖК SET (СЕТ)
Давыдково
22 мин.
Строится
3-комн. квартира 76,60 м2 38 675 340
Этаж 46/59
Москва, ЖК SET (СЕТ)
Давыдково
22 мин.
Строится
Посмотреть 80 квартир в ЖК SET
4-комн. квартира 97,41 м2 46 822 552
Этаж 47/59
Москва, ЖК SET (СЕТ)
Давыдково
22 мин.
Строится
4-комн. квартира 102,07 м2 51 621 903
Этаж 8/28
Москва, ЖК SET (СЕТ)
Давыдково
22 мин.
Строится
4-комн. квартира 102,56 м2 48 164 740
Этаж 47/59
Москва, ЖК SET (СЕТ)
Давыдково
22 мин.
Строится
4-комн. квартира 109,63 м2 50 320 170
Этаж 3/5
Москва, ЖК SET (СЕТ)
Давыдково
22 мин.
Строится
Посмотреть 10 квартир в ЖК SET
5-комн. квартира 102,10 м2 47 731 750
Этаж 51/59
Москва, ЖК SET (СЕТ)
Давыдково
22 мин.
Строится

Скидки и спецпредложения от застройщиков

ЖК SET (СЕТ) на карте

Выгодные предложения на новостройки

Самый полезный отзыв
КР
20 ноября 2024
Оценка:
Социальная инфраструктура
Внешний вид фасада
Двор, окружение
Расположение
Жилой квартал состоит из трех корпусов, каждый из которых выполнен в своем стиле. Вроде как будут смотровые площадки, с которых панорама района предстанет как на ладони. Проектом предусмотрена своя инфраструктура - Фитнес-клуб с бассейном, детская школа искусств, школа и детский сад, центр культуры и досуга, медицинский центр, кафе и рестораны, мини-маркет
Ответить
Полезный отзыв?
Самый новый отзыв
ПЖ
22 декабря 2025
Оценка:
Рассматривал как современный городской проект. Понравился внешний вид и общественные пространства. Квартира компактная, но грамотно спланированная. Минус — не всем подойдёт плотность и активная среда. Для молодых и активных хороший вариант. Для любителей тишины, скорее всего, нет.
Ответить
Полезный отзыв?
Добавьте отзыв, заполнив личные данные, или сначала войдите на сайт, тогда информация будет автоматически взята из личного профиля.
Оценка*