Рейтинг@Mail.ru
Переверните экран
Новостройки Квартиры Ипотека Новостройки Москвы Новостройки Подмосковья Новостройки Новой Москвы Готовые новостройки Новостройки на карте Акции от застройщиков Коммерческие помещения Продавцы и застройщики Панорамы новостроек Видеообзор новостроек Экспертиза новостроек Экология Москвы и Подмосковья Студии 1-комнатные 2-комнатные 3-комнатные Квартиры на карте Ипотечный калькулятор Семейная ипотека Военная ипотека Банки и программы Медиа Новости недвижимости Мнение эксперта Аналитика рынка Покупателю Экспертиза новостроек Эксперты и авторы О проекте Контакты Реклама на сайте Vk Youtube Telegram Дзен Машиноместа Апартаменты #траншевая ипотека #рассрочка IT-ипотека Квартиры со скидками до 40% Видео 360° новостроек Субсидированная застройщиком Rutube Поиск дома в Москве Программа реновации в Москве Новостройки премиум-класса Новостройки бизнес-класса Рассрочка Траншевая ипотека ГАЛС Дома и коттеджи Бизнес-центры Бизнес-центры в Москве Бизнес-центры рядом с метро Строящиеся бизнес-центры Бизнес-центры класса A Бизнес-центры класса B ЛСР
Данная квартира является лидером продаж среди однокомнатных квартир в ЖК SET по данным Росреестра
Данное предложение на 18.12.2025 неактуально. Пожалуйста, ознакомьтесь с другими похожими предложениями в ЖК SET (СЕТ) .
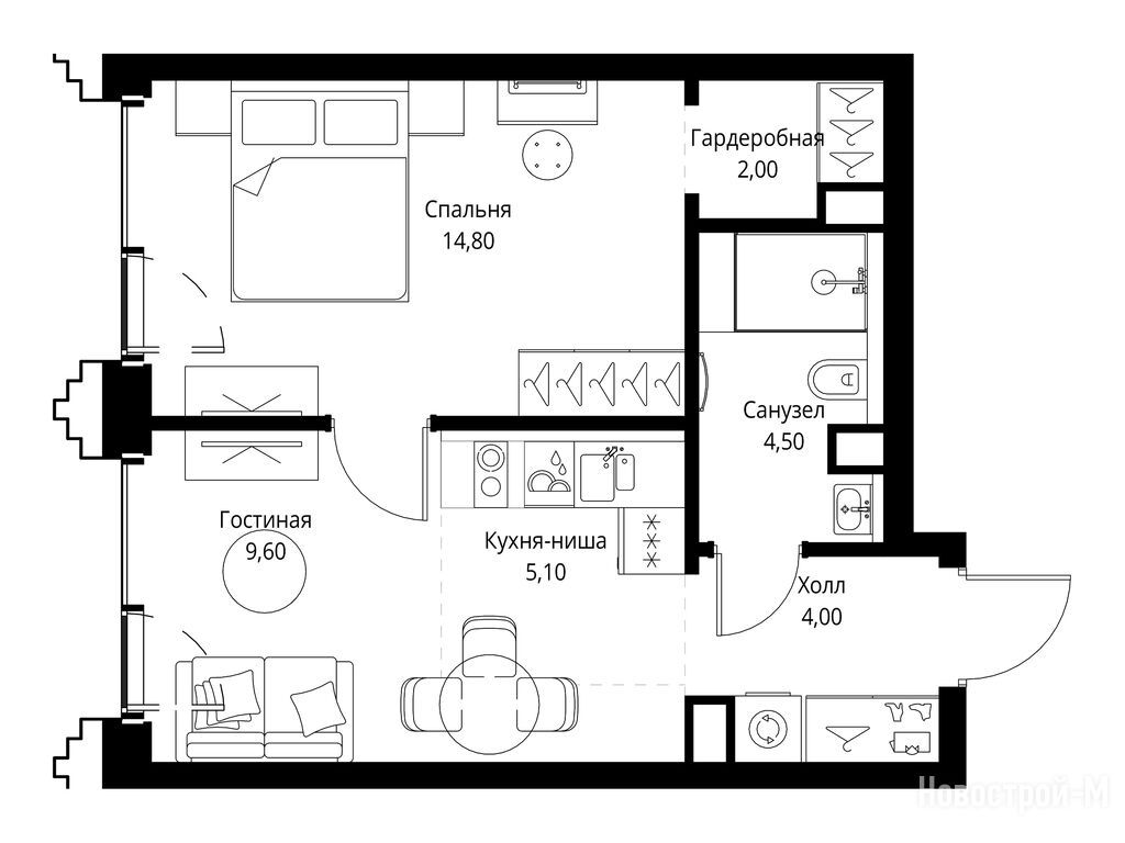
1-комн. квартира, 40.00 м2, 44 этаж
Срок сдачи 3 квартал 2028 года
21 794 000 
25 640 000
544 850 2
обновлено 3 декабря

Описание 1-комн. квартиры

Новостройка
Застройщик
Срок ГК
3 квартал 2028 года
Стадия строительства
монтаж средних этажей
Общая площадь
40.00 м2
Этаж
44 / 59
Отделка
нет
Грузовой лифт
есть

Расположение 1-комн. квартиры

Локация
Станция МЦД
Дом
2
Адрес
ул. Верейская, вл. 29, стр. 32Б, корп. 2, секция 1

Особенности

Продается однокомнатная квартира в новостройке ЖК SET (СЕТ) по адресу Москва, ЗАО, Можайский, ул. Верейская, вл. 29, стр. 32Б, корп. 2. Общая площадь квартиры - 40 кв. м. Тип проекта, по которому построен дом — Монолитно-кирпичный, компания-застройщик — MR Group (МР Групп). Стоимость квартиры — 21 794 000 руб. Способы оплаты можно уточнить у продавца. Срок сдачи — 3 квартал 2028. Более подробная информация по телефону.
Инфоцентр новостроек
Инфоцентр новостроек
+7 (499) 705-91-41
Время работы 9:00 — 21:00

Похожие квартиры в ЖК SET

40 этаж
из 59 3 квартал 2028
Москва, ЗАО
Давыдково
22 мин.
2
Корпус
нет
Отделка
2.85 м
Потолки
ЖК SET (СЕТ)
21 726 000 25 560 000
46 этаж
из 59 3 квартал 2028
Москва, ЗАО
Давыдково
22 мин.
2
Корпус
нет
Отделка
2.85 м
Потолки
ЖК SET (СЕТ)
21 828 000 25 680 000
Посмотреть все спецпредложения
студия 22,70 м2 16 400 750
Этаж 2/18
Москва, ЖК SET (СЕТ)
Давыдково
22 мин.
Строится
Этаж 3/18
Москва, ЖК SET (СЕТ)
Давыдково
22 мин.
Строится
студия 22,90 м2 16 632 843
Этаж 29/45
Москва, ЖК SET (СЕТ)
Давыдково
22 мин.
Строится
Этаж 3/59
Москва, ЖК SET (СЕТ)
Давыдково
22 мин.
Строится
Посмотреть 25 квартир в ЖК SET
Этаж 14/59
Москва, ЖК SET (СЕТ)
Давыдково
22 мин.
Строится
Этаж 56/59
Москва, ЖК SET (СЕТ)
Давыдково
22 мин.
Строится
1-комн. квартира 31,20 м2 18 298 800
Этаж 2/45
Москва, ЖК SET (СЕТ)
Давыдково
22 мин.
Строится
Этаж 27/28
Москва, ЖК SET (СЕТ)
Давыдково
22 мин.
Строится
Посмотреть 280 квартир в ЖК SET
Этаж 47/52
Москва, ЖК SET (СЕТ)
Давыдково
22 мин.
Строится
Этаж 47/52
Москва, ЖК SET (СЕТ)
Давыдково
22 мин.
Строится
Этаж 32/52
Москва, ЖК SET (СЕТ)
Давыдково
22 мин.
Строится
Этаж 42/52
Москва, ЖК SET (СЕТ)
Давыдково
22 мин.
Строится
Посмотреть 231 квартира в ЖК SET
Этаж 26/52
Москва, ЖК SET (СЕТ)
Давыдково
22 мин.
Строится
Этаж 29/52
Москва, ЖК SET (СЕТ)
Давыдково
22 мин.
Строится
Этаж 33/45
Москва, ЖК SET (СЕТ)
Давыдково
22 мин.
Строится
Этаж 30/45
Москва, ЖК SET (СЕТ)
Давыдково
22 мин.
Строится
Посмотреть 89 квартир в ЖК SET
Этаж 47/59
Москва, ЖК SET (СЕТ)
Давыдково
22 мин.
Строится
Этаж 8/28
Москва, ЖК SET (СЕТ)
Давыдково
22 мин.
Строится
Этаж 47/59
Москва, ЖК SET (СЕТ)
Давыдково
22 мин.
Строится
4-комн. квартира 109,63 м2 48 372 593
Этаж 3/5
Москва, ЖК SET (СЕТ)
Давыдково
22 мин.
Строится
Посмотреть 10 квартир в ЖК SET
Этаж 51/59
Москва, ЖК SET (СЕТ)
Давыдково
22 мин.
Строится

Скидки и спецпредложения от застройщиков

ЖК SET (СЕТ) на карте

Выгодные предложения на новостройки

Самый полезный отзыв
КР
20 ноября 2024
Оценка:
Социальная инфраструктура
Внешний вид фасада
Двор, окружение
Расположение
Жилой квартал состоит из трех корпусов, каждый из которых выполнен в своем стиле. Вроде как будут смотровые площадки, с которых панорама района предстанет как на ладони. Проектом предусмотрена своя инфраструктура - Фитнес-клуб с бассейном, детская школа искусств, школа и детский сад, центр культуры и досуга, медицинский центр, кафе и рестораны, мини-маркет
Ответить
Полезный отзыв?
Самый новый отзыв
СЛ
24 сентября
Оценка:
Социальная инфраструктура
Планировки
Внешний вид фасада
Двор, окружение
Расположение
Место просто супер. Это Можайский, район с историей, старая Москва в лучших традициях, зонирование района, инфраструктура, зоны рекреации. Рядом "Долина реки Сетунь". У ЖК отличная транспортная доступность, поэтому выбор остановила именно на нем
Ответить
Полезный отзыв?
Добавьте отзыв, заполнив личные данные, или сначала войдите на сайт, тогда информация будет автоматически взята из личного профиля.
Оценка*