Рейтинг@Mail.ru
Переверните экран
Новостройки Квартиры Ипотека Новостройки Москвы Новостройки Подмосковья Новостройки Новой Москвы Готовые новостройки Новостройки на карте Акции от застройщиков Коммерческие помещения Продавцы и застройщики Панорамы новостроек Видеообзор новостроек Экспертиза новостроек Экология Москвы и Подмосковья Студии 1-комнатные 2-комнатные 3-комнатные Квартиры на карте Ипотечный калькулятор Семейная ипотека Военная ипотека Банки и программы Медиа Новости недвижимости Мнение эксперта Аналитика рынка Покупателю Экспертиза новостроек Эксперты и авторы О проекте Контакты Реклама на сайте Vk Youtube Telegram Дзен Машиноместа Апартаменты #траншевая ипотека #рассрочка IT-ипотека Квартиры со скидками до 40% Видео 360° новостроек Субсидированная застройщиком Rutube Поиск дома в Москве Программа реновации в Москве Новостройки премиум-класса Новостройки бизнес-класса Рассрочка Траншевая ипотека ГАЛС Дома и коттеджи Бизнес-центры Бизнес-центры в Москве Бизнес-центры рядом с метро Строящиеся бизнес-центры Бизнес-центры класса A Бизнес-центры класса B ЛСР
Данное предложение на 15.12.2025 неактуально. Пожалуйста, ознакомьтесь с другими похожими предложениями в ЖК MYPRIORITY Павелецкая (Май Приорити Павелецкая) .
1-комн. квартира, 45.16 м2, 3 этаж
Срок сдачи 3 квартал 2028 года
26 836 614 
29 550 429
594 256 2
обновлено 19 сентября

Описание 1-комн. квартиры

Застройщик
Срок ГК
3 квартал 2028 года
Стадия строительства
котлован/фундамент
Общая площадь
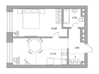
45.16 м2
Жилая площадь
16.98 м2
Площадь кухни
17.75 м2
Этаж
3 / 24
Отделка
нет

Расположение 1-комн. квартиры

Локация
Ж/Д-станция
Дом
2
Адрес
Дубининская, вл.17, корп. 2, секция 1

Способы покупки

Особенности

Продается однокомнатная квартира в новостройке ЖК MYPRIORITY Павелецкая (Май Приорити Павелецкая) по адресу Москва, ЦАО, Замоскворечье, Дубининская, вл.17, корп. 2. Общая площадь квартиры - 45.16 кв. м. Тип проекта, по которому построен дом — Монолит, компания-застройщик — ГК «Гранель». Стоимость квартиры — 26 836 614 руб. Способы оплаты можно уточнить у продавца. Срок сдачи — 3 квартал 2028. Более подробная информация по телефону.
ГК «Гранель»
ГК «Гранель»
Сданных 16
|
Строящихся 16
Время работы 09:00 — 21:00
Выбирайте квартиру в ЖК MYPRIORITY Павелецкая (Май Приорити Павелецкая) по ценам от застройщика

Похожие квартиры в ЖК MYPRIORITY Павелецкая (Май Приорити Павелецкая)

4 этаж
из 24 3 квартал 2028
Москва, ЦАО
Павелецкая
7 мин.
2
Корпус
нет
Отделка
3.10 м
Потолки
ЖК MYPRIORITY Павелецкая (Май Приорити Павелецкая)
30 423 686 35 076 721
ВТБ, Альфа-Банк, Всероссийский банк развития регионов, МТС Банк, СберБанк, Банк Санкт-Петербург, Совкомбанк, Металлинвестбанк, Уралсиб, Промсвязьбанк, Севергазбанк, Московский Кредитный Банк, Сургутнефтегазбанк
6.00%
Ставка
40.10%
Первый взнос
от 182 405 /мес.
Все варианты
Посмотреть все спецпредложения
студия 30,23 м2 25 070 996
Этаж 9/28
Москва, ЖК MYPRIORITY Павелецкая (Май Приорити Павелецкая)
Павелецкая
7 мин.
Строится
студия 34,03 м2 24 178 774
Этаж 6/11
Москва, ЖК MYPRIORITY Павелецкая (Май Приорити Павелецкая)
Павелецкая
7 мин.
Строится
студия 35,85 м2 24 415 713
Этаж 4/24
Москва, ЖК MYPRIORITY Павелецкая (Май Приорити Павелецкая)
Павелецкая
7 мин.
Строится
Посмотреть 6 квартир в ЖК MYPRIORITY Павелецкая (Май Приорити Павелецкая)
1-комн. квартира 38,02 м2 26 360 315
Этаж 4/11
Москва, ЖК MYPRIORITY Павелецкая (Май Приорити Павелецкая)
Павелецкая
7 мин.
Строится
1-комн. квартира 39,91 м2 27 670 705
Этаж 3/11
Москва, ЖК MYPRIORITY Павелецкая (Май Приорити Павелецкая)
Павелецкая
7 мин.
Строится
Этаж 16/24
Москва, ЖК MYPRIORITY Павелецкая (Май Приорити Павелецкая)
Павелецкая
7 мин.
Строится
1-комн. квартира 40,59 м2 27 982 722
Этаж 14/24
Москва, ЖК MYPRIORITY Павелецкая (Май Приорити Павелецкая)
Павелецкая
7 мин.
Строится
Посмотреть 95 квартир в ЖК MYPRIORITY Павелецкая (Май Приорити Павелецкая)
2-комн. квартира 62,26 м2 35 432 055
Этаж 6/11
Москва, ЖК MYPRIORITY Павелецкая (Май Приорити Павелецкая)
Павелецкая
7 мин.
Строится
2-комн. квартира 66,15 м2 35 924 338
Этаж 2/24
Москва, ЖК MYPRIORITY Павелецкая (Май Приорити Павелецкая)
Павелецкая
7 мин.
Строится
2-комн. квартира 66,88 м2 36 452 141
Этаж 3/24
Москва, ЖК MYPRIORITY Павелецкая (Май Приорити Павелецкая)
Павелецкая
7 мин.
Строится
2-комн. квартира 67,24 м2 38 629 347
Этаж 19/24
Москва, ЖК MYPRIORITY Павелецкая (Май Приорити Павелецкая)
Павелецкая
7 мин.
Строится
Посмотреть 43 квартиры в ЖК MYPRIORITY Павелецкая (Май Приорити Павелецкая)
3-комн. квартира 70,23 м2 41 381 641
Этаж 3/28
Москва, ЖК MYPRIORITY Павелецкая (Май Приорити Павелецкая)
Павелецкая
7 мин.
Строится
3-комн. квартира 79,38 м2 46 812 075
Этаж 19/28
Москва, ЖК MYPRIORITY Павелецкая (Май Приорити Павелецкая)
Павелецкая
7 мин.
Строится
3-комн. квартира 85,01 м2 45 081 418
Этаж 4/24
Москва, ЖК MYPRIORITY Павелецкая (Май Приорити Павелецкая)
Павелецкая
7 мин.
Строится
3-комн. квартира 85,51 м2 46 102 347
Этаж 10/24
Москва, ЖК MYPRIORITY Павелецкая (Май Приорити Павелецкая)
Павелецкая
7 мин.
Строится
Посмотреть 18 квартир в ЖК MYPRIORITY Павелецкая (Май Приорити Павелецкая)
4-комн. квартира 103,30 м2 54 577 845
Этаж 2/24
Москва, ЖК MYPRIORITY Павелецкая (Май Приорити Павелецкая)
Павелецкая
7 мин.
Строится

Скидки и спецпредложения от застройщиков

ЖК MYPRIORITY Павелецкая (Май Приорити Павелецкая) на карте

Выгодные предложения на новостройки

Отзывы о ЖК MYPRIORITY Павелецкая (Май Приорити Павелецкая)

Самый полезный отзыв
СА
11 января 2024
Оценка:
Транспортная доступность
Двор, окружение
Расположение
Пал выбор именно на этот жилой комплекс, в офисе продаж нам все рассказали, после беседы с менеджером, решили с семьей лично проехать и посмотреть по инфраструктуре. Мой супруг часто ездит в командировке, поэтому наличие вокзала была неотъемлемая часть. От жилого комплекса в шаговой доступности Павелецкий вокзал, можно сказать практически рядом с домом.
Ответить
Полезный отзыв?
Самый новый отзыв
АХ
16 июня
Оценка:
Планировки
Способы покупки
Внешний вид фасада
Двор, окружение
Расположение
Дома переменной этажности от 9 до 19 этажей словно создают динамичный городской ландшафт. Такой разброс высот наполняет пространство живостью и разнообразием, словно картины художника, каждая из которых играет в своей высоте. Мне кажется тут не просто здания — это гармония в движении, которая превращает привычный городской пейзаж в интересное множество уровней и объемов
Ответить
Полезный отзыв?
Добавьте отзыв, заполнив личные данные, или сначала войдите на сайт, тогда информация будет автоматически взята из личного профиля.
Оценка*