Рейтинг@Mail.ru
Переверните экран
Новостройки Квартиры Ипотека Новостройки Москвы Новостройки Подмосковья Новостройки Новой Москвы Готовые новостройки Новостройки на карте Акции от застройщиков Коммерческие помещения Продавцы и застройщики Панорамы новостроек Видеообзор новостроек Экспертиза новостроек Экология Москвы и Подмосковья Студии 1-комнатные 2-комнатные 3-комнатные Квартиры на карте Ипотечный калькулятор Семейная ипотека Военная ипотека Банки и программы Медиа Новости недвижимости Мнение эксперта Аналитика рынка Покупателю Экспертиза новостроек Эксперты и авторы О проекте Контакты Реклама на сайте Vk Youtube Telegram Дзен Машиноместа Апартаменты #траншевая ипотека #рассрочка ИТ-ипотека Квартиры со скидками до 40% Видео 360° новостроек Субсидированная застройщиком Rutube Поиск дома в Москве Программа реновации в Москве Новостройки премиум-класса Новостройки бизнес-класса Рассрочка Траншевая ипотека Дома и коттеджи Бизнес-центры Бизнес-центры в Москве Бизнес-центры рядом с метро Строящиеся бизнес-центры Бизнес-центры класса A Бизнес-центры класса B Ипотека со ставкой 0,1%
Данная квартира является лидером продаж среди однокомнатных квартир в ЖК «Легенда Коренёво» по данным Росреестра
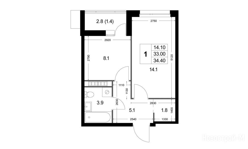
1-комн. квартира, 34.40 м2, 2 этаж
Срок сдачи 4 квартал 2026 года
9 976 000 
290 000 2
обновлено 29 марта

Описание 1-комн. квартиры

Срок ГК
4 квартал 2026 года
Стадия строительства
отделка фасада и внутренние работы
Общая площадь
34.40 м2
Жилая площадь
14.10 м2
Площадь кухни
8.10 м2
Этаж
2 / 8

Расположение 1-комн. квартиры

Ж/Д-станция
Дом
4
Адрес
ул. Лорха корп. 4, секция 1

Способы покупки

Особенности

Продается однокомнатная квартира в новостройке ЖК «Легенда Коренёво» по адресу Московская область, Люберцы городской округ, Красково пос., ул. Лорха корп. 4. Общая площадь квартиры - 34.4 кв. м. Тип проекта, по которому построен дом — Монолитно-кирпичный, компания-застройщик — Некрасовка Девелопмент, ООО СЗ «Коренево Девелопмент». Стоимость квартиры — 9 976 000 руб. Способы оплаты можно уточнить у продавца. Срок сдачи — 4 квартал 2026. Более подробная информация по телефону.
Инфоцентр новостроек
Инфоцентр новостроек
+7 (499) 705-91-41
Время работы 9:00 — 21:00

Похожие квартиры в ЖК «Легенда Коренёво»

2 этаж
из 8 4 квартал 2026
Московская область, Люберцы городской округ
Лермонтовский проспект
20 мин.
4
Корпус
нет данных
Отделка
2.72 м
Потолки
ЖК «Легенда Коренёво»
9 976 000
СберБанк
6.00%
Ставка
20.10%
Первый взнос
от 59 811 /мес.
Все варианты
6 этаж
из 8 4 квартал 2026
Московская область, Люберцы городской округ
Лермонтовский проспект
20 мин.
4
Корпус
нет данных
Отделка
2.72 м
Потолки
ЖК «Легенда Коренёво»
9 976 000
СберБанк
6.00%
Ставка
20.10%
Первый взнос
от 59 811 /мес.
Все варианты
4 этаж
из 8 4 квартал 2026
Московская область, Люберцы городской округ
Лермонтовский проспект
20 мин.
4
Корпус
нет данных
Отделка
2.72 м
Потолки
ЖК «Легенда Коренёво»
9 976 000
СберБанк
6.00%
Ставка
20.10%
Первый взнос
от 59 811 /мес.
Все варианты
студия 28,00 м2 5 485 475
Этаж 2/8
МО, ЖК «Легенда Коренёво»
Лермонтовский проспект
20 мин.
Строится
студия 29,10 м2 6 489 300
Этаж 7/8
МО, ЖК «Легенда Коренёво»
Лермонтовский проспект
20 мин.
Строится
студия 29,50 м2 6 578 500
Этаж 6/8
МО, ЖК «Легенда Коренёво»
Лермонтовский проспект
20 мин.
Строится
Посмотреть 111 квартир в ЖК «Легенда Коренёво»
1-комн. квартира 34,00 м2 7 514 000
Этаж 7/8
МО, ЖК «Легенда Коренёво»
Лермонтовский проспект
20 мин.
Строится
1-комн. квартира 34,10 м2 7 536 100
Этаж 4/8
МО, ЖК «Легенда Коренёво»
Лермонтовский проспект
20 мин.
Строится
1-комн. квартира 34,40 м2 7 877 600
Этаж 3/8
МО, ЖК «Легенда Коренёво»
Лермонтовский проспект
20 мин.
Строится
1-комн. квартира 35,90 м2 7 033 163
Этаж 2/8
МО, ЖК «Легенда Коренёво»
Лермонтовский проспект
20 мин.
Строится
Посмотреть 56 квартир в ЖК «Легенда Коренёво»
2-комн. квартира 51,80 м2 11 137 000
Этаж 1/8
МО, ЖК «Легенда Коренёво»
Лермонтовский проспект
20 мин.
Строится
2-комн. квартира 53,60 м2 10 500 767
Этаж 2/8
МО, ЖК «Легенда Коренёво»
Лермонтовский проспект
20 мин.
Строится
2-комн. квартира 56,20 м2 12 083 000
Этаж 4/8
МО, ЖК «Легенда Коренёво»
Лермонтовский проспект
20 мин.
Строится
2-комн. квартира 56,30 м2 12 104 500
Этаж 4/8
МО, ЖК «Легенда Коренёво»
Лермонтовский проспект
20 мин.
Строится
Посмотреть 58 квартир в ЖК «Легенда Коренёво»

Скидки и спецпредложения от застройщиков

ЖК «Легенда Коренёво» на карте

Выгодные предложения на новостройки

Отзывы о ЖК «Легенда Коренёво»

Самый полезный отзыв
АП
06 июня 2024
Оценка:
Достоинства
Способы покупки
Первый офис находится на станции метро «Окская», а второй — прямо на строительной площадке. Сначала я посетил офис на метро «Окская». Второй офис продаж оказался гораздо удобнее, так как он расположен прямо на территории стройки. Здесь я смог увидеть процесс строительства своими глазами и задать вопросы строителям.
Ответить
Самый новый отзыв
Ю
24 марта
Оценка:
Для нас ключевым было то, что рядом с ЖК начали строить новую школу с садиком. Как ни крути, если маленькие дети, все решаешь с оглядкой на них. У нас сын 2 года и жена в начале августа родит второго ребенка. И конечно, момент с образованием решает. Поэтому мы купили квартиру в ЖК Легенда Коренево.
Показать все комментарии
Ответить

Оставить отзыв

Добавьте отзыв, заполнив личные данные, или сначала войдите на сайт, тогда информация будет автоматически взята из личного профиля.
Оценка*