Рейтинг@Mail.ru
Переверните экран
Новостройки Квартиры Ипотека Новостройки Москвы Новостройки Подмосковья Новостройки Новой Москвы Готовые новостройки Новостройки на карте Акции от застройщиков Коммерческие помещения Продавцы и застройщики Панорамы новостроек Видеообзор новостроек Экспертиза новостроек Экология Москвы и Подмосковья Студии 1-комнатные 2-комнатные 3-комнатные Квартиры на карте Ипотечный калькулятор Семейная ипотека Военная ипотека Банки и программы Медиа Новости недвижимости Мнение эксперта Аналитика рынка Покупателю Экспертиза новостроек Эксперты и авторы О проекте Контакты Реклама на сайте Vk Youtube Telegram Дзен Машиноместа Апартаменты #траншевая ипотека #рассрочка ИТ-ипотека Квартиры со скидками до 40% Видео 360° новостроек Субсидированная застройщиком Rutube Поиск дома в Москве Программа реновации в Москве Новостройки премиум-класса Новостройки бизнес-класса Рассрочка Траншевая ипотека Дома и коттеджи Бизнес-центры Бизнес-центры в Москве Бизнес-центры рядом с метро Строящиеся бизнес-центры Бизнес-центры класса A Бизнес-центры класса B Ипотека со ставкой 0,1%
Данная квартира является лидером продаж среди однокомнатных квартир в ЖК «Горки Марусино» по данным Росреестра
1-комн. квартира, 36.48 м2, 4 этаж
Срок сдачи 3 квартал 2027 года
8 025 600 
220 000 2
обновлено 2 апреля

Описание 1-комн. квартиры

Новостройка
Застройщик
Срок ГК
3 квартал 2027 года
Стадия строительства
котлован/фундамент
Общая площадь
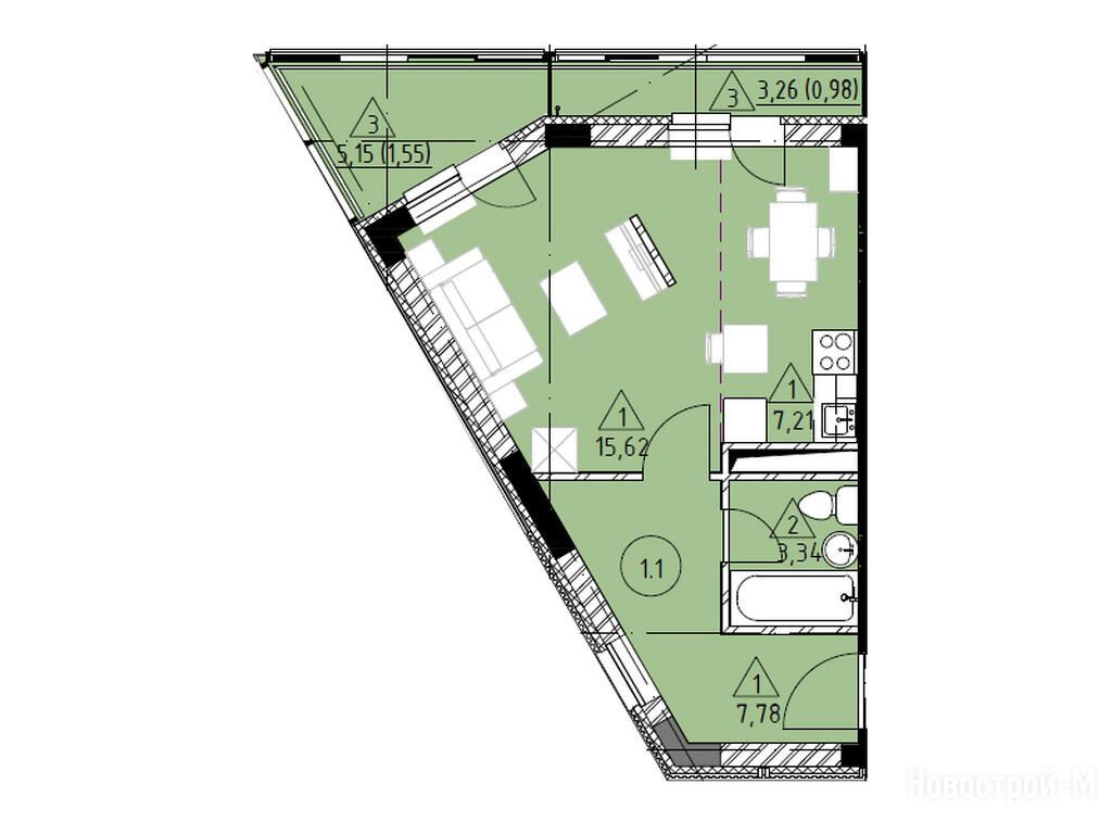
36.48 м2
Жилая площадь
15.62 м2
Площадь кухни
7.20 м2
Этаж
4 / 4
Отделка
нет

Расположение 1-комн. квартиры

Метро
Станция МЦД
Дом
8
Адрес
ЖК Горки Марусино, корп. 8, секция 1

Особенности

Продается однокомнатная квартира в новостройке ЖК «Горки Марусино» по адресу Московская область, Люберцы городской округ, Марусино деревня, ЖК Горки Марусино, корп. 8. Общая площадь квартиры - 36.48 кв. м. Тип проекта, по которому построен дом — Монолитно-кирпичный, компания-застройщик — ООО СЗ «Каравелла». Стоимость квартиры — 8 025 600 руб. Способы оплаты можно уточнить у продавца. Срок сдачи — 3 квартал 2027. Более подробная информация по телефону.
Инфоцентр новостроек
Инфоцентр новостроек
Время работы 9:00 — 21:00
Выбирайте квартиру в ЖК «Горки Марусино» по ценам от застройщика

Похожие квартиры в ЖК «Горки Марусино»

3 этаж
из 4 3 квартал 2027
Московская область, Люберцы городской округ
Некрасовка
14 мин.
8
Корпус
нет
Отделка
2.80 м
Потолки
ЖК «Горки Марусино»
8 025 600
2 этаж
из 4 3 квартал 2027
Московская область, Люберцы городской округ
Некрасовка
14 мин.
8
Корпус
нет
Отделка
2.80 м
Потолки
ЖК «Горки Марусино»
8 025 600
1 этаж
из 4 3 квартал 2027
Московская область, Люберцы городской округ
Некрасовка
14 мин.
8
Корпус
нет
Отделка
2.80 м
Потолки
ЖК «Горки Марусино»
8 025 600
студия 24,37 м2 5 361 400
Этаж 1/4
МО, ЖК «Горки Марусино»
Некрасовка
14 мин.
Строится
студия 25,35 м2 5 577 000
Этаж 4/4
МО, ЖК «Горки Марусино»
Некрасовка
14 мин.
Строится
студия 29,14 м2 6 410 800
Этаж 4/4
МО, ЖК «Горки Марусино»
Некрасовка
14 мин.
Строится
Посмотреть 15 квартир в ЖК «Горки Марусино»
1-комн. квартира 28,02 м2 6 164 400
Этаж 1/4
МО, ЖК «Горки Марусино»
Некрасовка
14 мин.
Строится
1-комн. квартира 28,03 м2 6 166 600
Этаж 1/4
МО, ЖК «Горки Марусино»
Некрасовка
14 мин.
Строится
1-комн. квартира 29,14 м2 6 410 800
Этаж 4/4
МО, ЖК «Горки Марусино»
Некрасовка
14 мин.
Строится
1-комн. квартира 30,99 м2 6 817 800
Этаж 1/4
МО, ЖК «Горки Марусино»
Некрасовка
14 мин.
Строится
Посмотреть 195 квартир в ЖК «Горки Марусино»
2-комн. квартира 36,59 м2 7 830 260
Этаж 1/4
МО, ЖК «Горки Марусино»
Некрасовка
14 мин.
Строится
2-комн. квартира 37,98 м2 8 127 720
Этаж 4/4
МО, ЖК «Горки Марусино»
Некрасовка
14 мин.
Строится
2-комн. квартира 38,04 м2 8 142 700
Этаж 4/4
МО, ЖК «Горки Марусино»
Некрасовка
14 мин.
Строится
2-комн. квартира 38,05 м2 8 142 700
Этаж 4/4
МО, ЖК «Горки Марусино»
Некрасовка
14 мин.
Строится
Посмотреть 35 квартир в ЖК «Горки Марусино»
3-комн. квартира 60,63 м2 12 792 930
Этаж 4/4
МО, ЖК «Горки Марусино»
Некрасовка
14 мин.
Строится

Скидки и спецпредложения от застройщиков

ЖК «Горки Марусино» на карте

Выгодные предложения на новостройки

Отзывы о ЖК «Горки Марусино»

Самый полезный отзыв
ИР
09 января
Оценка:
Достоинства
Двор, окружение
Расположение
Это история для тех, кто хочет тише и просторнее, чем в городе. Плюс - ощущение своего района, минус - сервисы могут появляться медленно
Ответить
Самый новый отзыв
ВП
30 марта
Оценка:
Достоинства
Социальная инфраструктура
Двор, окружение
Отличный выбор для спокойной жизни. Малоэтажные дома создают уютную, почти загородную атмосферу. Есть закрытая территория с зелёными зонами и прогулочными дорожками, а также физкультурный комплекс прямо на территории. Тихое место, но с удобной транспортной доступностью - идеально для семей.
Ответить

Оставить отзыв

Добавьте отзыв, заполнив личные данные, или сначала войдите на сайт, тогда информация будет автоматически взята из личного профиля.
Оценка*