Рейтинг@Mail.ru
Переверните экран
Новостройки Квартиры Ипотека Новостройки Москвы Новостройки Подмосковья Новостройки Новой Москвы Готовые новостройки Новостройки на карте Акции от застройщиков Коммерческие помещения Продавцы и застройщики Панорамы новостроек Видеообзор новостроек Экспертиза новостроек Экология Москвы и Подмосковья Студии 1-комнатные 2-комнатные 3-комнатные Квартиры на карте Ипотечный калькулятор Семейная ипотека Военная ипотека Банки и программы Медиа Новости недвижимости Мнение эксперта Аналитика рынка Покупателю Экспертиза новостроек Эксперты и авторы О проекте Контакты Реклама на сайте Vk Youtube Telegram Дзен Машиноместа Апартаменты #траншевая ипотека #рассрочка IT-ипотека Квартиры со скидками до 40% Видео 360° новостроек Субсидированная застройщиком Rutube Поиск дома в Москве Программа реновации в Москве Новостройки премиум-класса Новостройки бизнес-класса Рассрочка Траншевая ипотека ГАЛС Дома и коттеджи Бизнес-центры Бизнес-центры в Москве Бизнес-центры рядом с метро Строящиеся бизнес-центры Бизнес-центры класса A Бизнес-центры класса B ЛСР
Данная квартира является лидером продаж среди однокомнатных квартир в ЖК «Авиатор-2» (Наро-Фоминск) по данным Росреестра
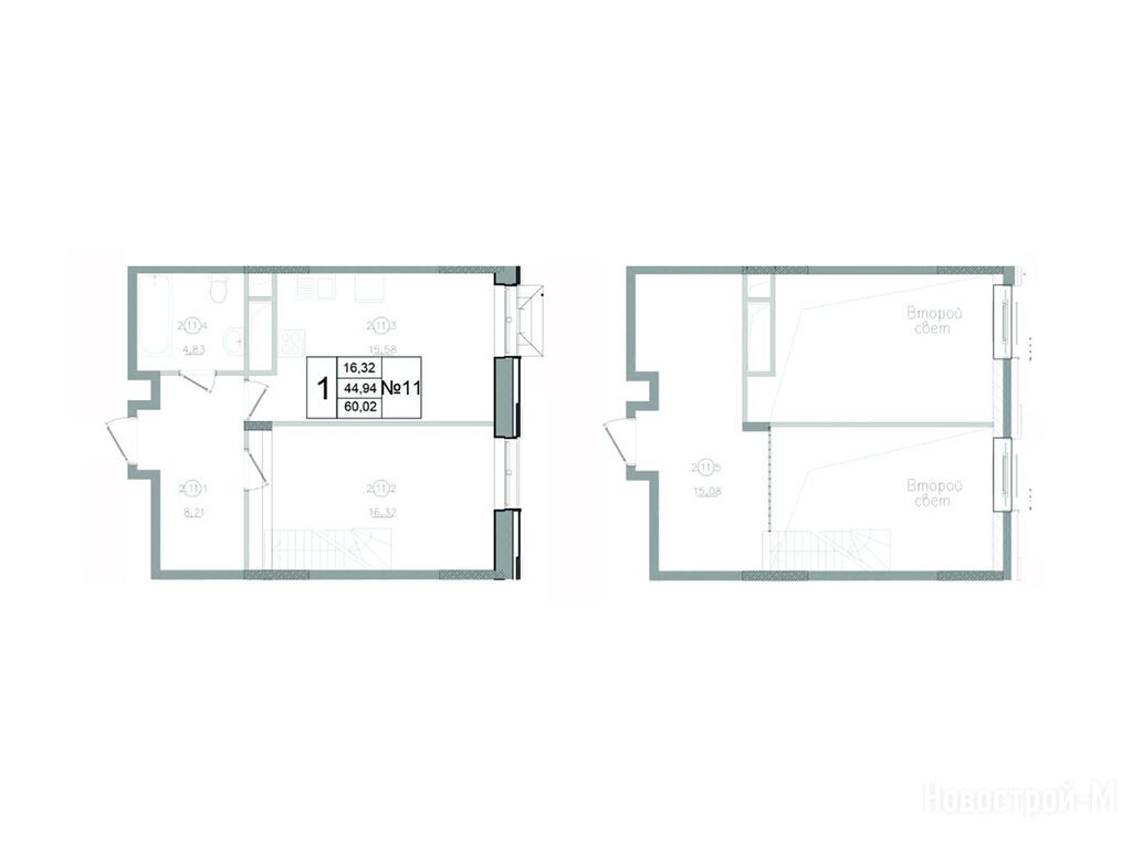
1-комн. квартира, 60.02 м2, 17 этаж
Срок сдачи 4 квартал 2027 года
12 055 017 
200 850 2
обновлено 13 декабря

Описание 1-комн. квартиры

Застройщик
Срок ГК
4 квартал 2027 года
Стадия строительства
котлован/фундамент
Тип проекта
Общая площадь
60.02 м2
Жилая площадь
16.32 м2
Площадь кухни
15.58 м2
Этаж
17 / 17

Расположение 1-комн. квартиры

Локация
Ж/Д-станция
Нара
5 мин.
Дом
1 (3 очередь)
Адрес
ул. Курзенкова, уч. 18/31А, секция 2

Особенности

Продается однокомнатная квартира в новостройке ЖК «Авиатор-2» (Наро-Фоминск) по адресу Московская область, Наро-Фоминск, ул. Курзенкова, уч. 18/31А. Общая площадь квартиры - 60.02 кв. м. Тип проекта, по которому построен дом — Монолит, компания-застройщик — ГК Остов. Стоимость квартиры — 12 055 017 руб. Способы оплаты можно уточнить у продавца. Срок сдачи — 4 квартал 2027. Более подробная информация по телефону.
Инфоцентр новостроек
Инфоцентр новостроек
+7 (499) 705-91-41
Время работы 9:00 — 21:00
Посмотреть все спецпредложения
Этаж 2/11
МО, ЖК «Авиатор-2» (Наро-Фоминск)
Нара (ж/д)
5 мин.
Строится
Этаж 11/11
МО, ЖК «Авиатор-2» (Наро-Фоминск)
Нара (ж/д)
5 мин.
Строится
Этаж 3/11
МО, ЖК «Авиатор-2» (Наро-Фоминск)
Нара (ж/д)
5 мин.
Строится
Этаж 2/11
МО, ЖК «Авиатор-2» (Наро-Фоминск)
Нара (ж/д)
5 мин.
Строится
Посмотреть 17 квартир в ЖК «Авиатор-2» (Наро-Фоминск)
Этаж 7/11
МО, ЖК «Авиатор-2» (Наро-Фоминск)
Нара (ж/д)
5 мин.
Строится
Этаж 4/11
МО, ЖК «Авиатор-2» (Наро-Фоминск)
Нара (ж/д)
5 мин.
Строится
Этаж 5/11
МО, ЖК «Авиатор-2» (Наро-Фоминск)
Нара (ж/д)
5 мин.
Строится
Этаж 5/11
МО, ЖК «Авиатор-2» (Наро-Фоминск)
Нара (ж/д)
5 мин.
Строится
Посмотреть 163 квартиры в ЖК «Авиатор-2» (Наро-Фоминск)
Этаж 4/11
МО, ЖК «Авиатор-2» (Наро-Фоминск)
Нара (ж/д)
5 мин.
Строится
Этаж 3/5
МО, ЖК «Авиатор-2» (Наро-Фоминск)
Нара (ж/д)
5 мин.
Сдан
Этаж 4/15
МО, ЖК «Авиатор-2» (Наро-Фоминск)
Нара (ж/д)
5 мин.
Строится
Этаж 3/15
МО, ЖК «Авиатор-2» (Наро-Фоминск)
Нара (ж/д)
5 мин.
Строится
Посмотреть 84 квартиры в ЖК «Авиатор-2» (Наро-Фоминск)
Этаж 2/17
МО, ЖК «Авиатор-2» (Наро-Фоминск)
Нара (ж/д)
5 мин.
Строится
Этаж 3/17
МО, ЖК «Авиатор-2» (Наро-Фоминск)
Нара (ж/д)
5 мин.
Строится
Этаж 4/5
МО, ЖК «Авиатор-2» (Наро-Фоминск)
Нара (ж/д)
5 мин.
Сдан
Этаж 3/5
МО, ЖК «Авиатор-2» (Наро-Фоминск)
Нара (ж/д)
5 мин.
Сдан
Посмотреть 31 квартира в ЖК «Авиатор-2» (Наро-Фоминск)

Скидки и спецпредложения от застройщиков

ЖК «Авиатор-2» (Наро-Фоминск) на карте

Выгодные предложения на новостройки

Отзывы о ЖК «Авиатор-2» (Наро-Фоминск)

Самый полезный отзыв
В
08 февраля 2020
Оценка:
Транспортная доступность
Социальная инфраструктура
Внешний вид фасада
Расположение
Планировки
Окна от застройщика установлены невероятно омерзительно. Про слышимость я рассказывать не буду, это теперь модно, что бы соседи друг друга все слышали. Добиться от сотрудников компании хоть какой то реакции относительно окон, установленных в моей квартире (как комнатных, так и балконных) невозможно в принципе. Пока дом был на гарантии никто не реагировал на заявки, а теперь просто друг на друга все перекладывают ответственность. Тяжелейший бронхит, перенесённый мной в прошлом году, благодаря великолепнийше установленным окнам, через которые дует как в чистом поле, заставляет меня действовать по-другому!
Ответить
Полезный отзыв?
Самый новый отзыв
В
08 февраля 2020
Оценка:
Транспортная доступность
Социальная инфраструктура
Внешний вид фасада
Расположение
Планировки
Окна от застройщика установлены невероятно омерзительно. Про слышимость я рассказывать не буду, это теперь модно, что бы соседи друг друга все слышали. Добиться от сотрудников компании хоть какой то реакции относительно окон, установленных в моей квартире (как комнатных, так и балконных) невозможно в принципе. Пока дом был на гарантии никто не реагировал на заявки, а теперь просто друг на друга все перекладывают ответственность. Тяжелейший бронхит, перенесённый мной в прошлом году, благодаря великолепнийше установленным окнам, через которые дует как в чистом поле, заставляет меня действовать по-другому!
Ответить
Полезный отзыв?
Добавьте отзыв, заполнив личные данные, или сначала войдите на сайт, тогда информация будет автоматически взята из личного профиля.
Оценка*