Рейтинг@Mail.ru
Переверните экран
Новостройки Квартиры Ипотека Новостройки Москвы Новостройки Подмосковья Новостройки Новой Москвы Готовые новостройки Новостройки на карте Акции от застройщиков Коммерческие помещения Продавцы и застройщики Панорамы новостроек Видеообзор новостроек Экспертиза новостроек Экология Москвы и Подмосковья Студии 1-комнатные 2-комнатные 3-комнатные Квартиры на карте Ипотечный калькулятор Семейная ипотека Военная ипотека Банки и программы Медиа Новости недвижимости Мнение эксперта Аналитика рынка Покупателю Экспертиза новостроек Эксперты и авторы О проекте Контакты Реклама на сайте Vk Youtube Telegram Дзен Машиноместа Апартаменты #траншевая ипотека #рассрочка IT-ипотека Квартиры со скидками до 40% Видео 360° новостроек Субсидированная застройщиком Rutube Поиск дома в Москве Программа реновации в Москве Новостройки премиум-класса Новостройки бизнес-класса Рассрочка Траншевая ипотека ГАЛС Дома и коттеджи Бизнес-центры Бизнес-центры в Москве Бизнес-центры рядом с метро Строящиеся бизнес-центры Бизнес-центры класса A Бизнес-центры класса B ЛСР
Данная квартира является лидером продаж среди однокомнатных квартир в Клубном квартале «Крылатская 33» по данным Росреестра
Данное предложение на 18.12.2025 неактуально. Пожалуйста, ознакомьтесь с другими похожими предложениями в Клубный квартал «Крылатская 33» .
1-комн. квартира, 50.50 м2, 2 этаж
Срок сдачи 2 квартал 2027 года
33 326 970 
659 940 2
обновлено 14 ноября

Описание 1-комн. квартиры

Застройщик
Срок ГК
2 квартал 2027 года
Стадия строительства
монтаж нижних этажей
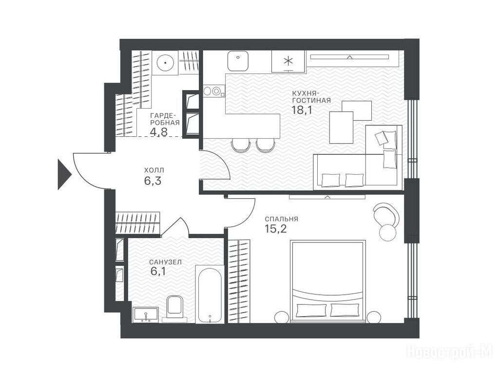
Общая площадь
50.50 м2
Жилая площадь
15.20 м2
Площадь кухни
18.10 м2
Высота потолков
3.15
Этаж
2 / 14
Отделка
нет
Грузовой лифт
есть

Расположение 1-комн. квартиры

Локация
Метро
Дом
1
Адрес
ул. Крылатская, д. 33/1, секция 7

Способы покупки

Особенности

Продается однокомнатная квартира в новостройке Клубный квартал «Крылатская 33» по адресу Москва, ЗАО, Крылатское, ул. Крылатская, д. 33/1. Общая площадь квартиры - 50.5 кв. м. Тип проекта, по которому построен дом — Монолитно-кирпичный, компания-застройщик — ООО СЗ Сияние. Стоимость квартиры — 33 326 970 руб. Способы оплаты можно уточнить у продавца. Срок сдачи — 2 квартал 2027. Более подробная информация по телефону.
Инфоцентр новостроек
Инфоцентр новостроек
+7 (499) 705-91-41
Время работы 9:00 — 21:00

Похожие квартиры в Клубном квартале «Крылатская 33»

2 этаж
из 14 2 квартал 2027
Москва, ЗАО
Крылатское
18 мин.
1
Корпус
нет
Отделка
3.15 м
Потолки
Клубный квартал «Крылатская 33»
33 326 970
Московский Кредитный Банк, ВТБ, Альфа-Банк, Промсвязьбанк, Газпромбанк, Азиатско-Тихоокеанский Банк, СберБанк, Совкомбанк, Россельхозбанк, Абсолют Банк, Металлинвестбанк, Т-Банк, Уралсиб, ДОМ.РФ, АК БАРС, Центр-инвест, МТС Банк, Сургутнефтегазбанк
6.00%
Ставка
50.01%
Первый взнос
от 199 812 /мес.
Все варианты
Посмотреть все спецпредложения
студия 28,50 м2 18 938 250
Этаж 3/14
Москва, Клубный квартал «Крылатская 33»
Крылатское
18 мин.
Строится
студия 29,00 м2 19 763 500
Этаж 4/14
Москва, Клубный квартал «Крылатская 33»
Крылатское
18 мин.
Строится
студия 29,50 м2 20 045 250
Этаж 3/14
Москва, Клубный квартал «Крылатская 33»
Крылатское
18 мин.
Строится
Этаж 3/18
Москва, Клубный квартал «Крылатская 33»
Крылатское
18 мин.
Строится
Посмотреть 110 квартир в Клубном квартале «Крылатская 33»
1-комн. квартира 48,50 м2 34 677 500
Этаж 15/18
Москва, Клубный квартал «Крылатская 33»
Крылатское
18 мин.
Строится
1-комн. квартира 49,20 м2 31 389 600
Этаж 5/18
Москва, Клубный квартал «Крылатская 33»
Крылатское
18 мин.
Строится
1-комн. квартира 49,40 м2 31 319 600
Этаж 3/18
Москва, Клубный квартал «Крылатская 33»
Крылатское
18 мин.
Строится
Этаж 5/14
Москва, Клубный квартал «Крылатская 33»
Крылатское
18 мин.
Строится
Посмотреть 126 квартир в Клубном квартале «Крылатская 33»
2-комн. квартира 64,00 м2 43 424 000
Этаж 22/33
Москва, Клубный квартал «Крылатская 33»
Крылатское
18 мин.
Строится
2-комн. квартира 64,10 м2 43 876 450
Этаж 25/33
Москва, Клубный квартал «Крылатская 33»
Крылатское
18 мин.
Строится
Этаж 4/40
Москва, Клубный квартал «Крылатская 33»
Крылатское
18 мин.
Строится
Этаж 15/40
Москва, Клубный квартал «Крылатская 33»
Крылатское
18 мин.
Строится
Посмотреть 87 квартир в Клубном квартале «Крылатская 33»
Этаж 4/40
Москва, Клубный квартал «Крылатская 33»
Крылатское
18 мин.
Строится
Этаж 4/10
Москва, Клубный квартал «Крылатская 33»
Крылатское
18 мин.
Строится
3-комн. квартира 89,40 м2 55 719 444
Этаж 2/10
Москва, Клубный квартал «Крылатская 33»
Крылатское
18 мин.
Строится
Этаж 3/40
Москва, Клубный квартал «Крылатская 33»
Крылатское
18 мин.
Строится
Посмотреть 18 квартир в Клубном квартале «Крылатская 33»
Этаж 3/14
Москва, Клубный квартал «Крылатская 33»
Крылатское
18 мин.
Строится
Этаж 4/14
Москва, Клубный квартал «Крылатская 33»
Крылатское
18 мин.
Строится
Этаж 2/14
Москва, Клубный квартал «Крылатская 33»
Крылатское
18 мин.
Строится
Этаж 34/40
Москва, Клубный квартал «Крылатская 33»
Крылатское
18 мин.
Строится
Посмотреть 5 квартир в Клубном квартале «Крылатская 33»

Скидки и спецпредложения от застройщиков

Клубный квартал «Крылатская 33» на карте

Выгодные предложения на новостройки

Отзывы о Клубном квартале «Крылатская 33»

Самый полезный отзыв
МВ
11 февраля
Оценка:
Транспортная доступность
Планировки
Способы покупки
Внешний вид фасада
Двор, окружение
Расположение
Приемлемые цены для такой локации, как инвестиции очень даже прибыльно будет. До метро меньше 20 минут прогулочным шагом. Квартиры сдаются с чистовой дизайнерской отделкой от знаменитого бюро Александры Федоровой. Паркинг рассчитан на 271 машино-место, есть станции для зарядки электромобилей. Вся инфраструктура своя, так что одни плюсы
Ответить
Полезный отзыв?
Самый новый отзыв
ОН
24 октября
Оценка:
Планировки
Способы покупки
Внешний вид фасада
Двор, окружение
Расположение
Для меня это наилучший вариант, сошлись все пожелания воедино
Ответить
Полезный отзыв?
Добавьте отзыв, заполнив личные данные, или сначала войдите на сайт, тогда информация будет автоматически взята из личного профиля.
Оценка*