Рейтинг@Mail.ru
Переверните экран
Новостройки Квартиры Ипотека Новостройки Москвы Новостройки Подмосковья Новостройки Новой Москвы Готовые новостройки Новостройки на карте Акции от застройщиков Коммерческие помещения Продавцы и застройщики Панорамы новостроек Видеообзор новостроек Экспертиза новостроек Экология Москвы и Подмосковья Студии 1-комнатные 2-комнатные 3-комнатные Квартиры на карте Ипотечный калькулятор Семейная ипотека Военная ипотека Банки и программы Медиа Новости недвижимости Мнение эксперта Аналитика рынка Покупателю Экспертиза новостроек Эксперты и авторы О проекте Контакты Реклама на сайте Vk Youtube Telegram Дзен Машиноместа Апартаменты #траншевая ипотека #рассрочка ИТ-ипотека Квартиры со скидками до 40% Видео 360° новостроек Субсидированная застройщиком Rutube Поиск дома в Москве Программа реновации в Москве Новостройки премиум-класса Новостройки бизнес-класса Рассрочка Траншевая ипотека Дома и коттеджи Бизнес-центры Бизнес-центры в Москве Бизнес-центры рядом с метро Строящиеся бизнес-центры Бизнес-центры класса A Бизнес-центры класса B Ипотека со ставкой 0,1%
Данное предложение на 02.04.2026 неактуально. Пожалуйста, ознакомьтесь с другими похожими предложениями в Клубный дом «Гранд Фили» .
1-комн. квартира, 42.45 м2, 7 этаж
Срок сдачи 2 квартал 2029 года
32 245 013 
759 600 2
обновлено 29 марта

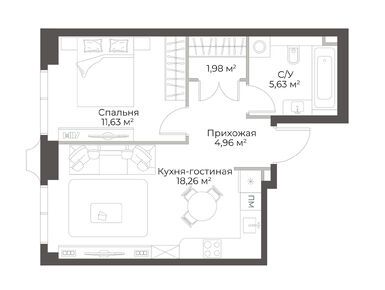
Описание 1-комн. квартиры

Застройщик
Срок ГК
2 квартал 2029 года
Стадия строительства
котлован/фундамент
Общая площадь
42.45 м2
Этаж
7 / 27

Расположение 1-комн. квартиры

Локация
Метро
Фили
15 мин.
Дом
1
Адрес
ул. Большая Филевская, уч.2Б, секция 1

Способы покупки

Особенности

Продается однокомнатная квартира в новостройке Клубный дом «Гранд Фили» по адресу Москва, ЗАО, Филевский Парк, ул. Большая Филевская, уч.2Б. Общая площадь квартиры - 42.45 кв. м. Тип проекта, по которому построен дом — Монолитно-кирпичный, компания-застройщик — АО «СЗ «ГРАНАРД». Стоимость квартиры — 32 245 013 руб. Способы оплаты можно уточнить у продавца. Срок сдачи — 2 квартал 2029. Более подробная информация по телефону.
Инфоцентр новостроек
Инфоцентр новостроек
Время работы 9:00 — 21:00
Выбирайте квартиру в Клубный дом «Гранд Фили» по ценам от застройщика

Похожие квартиры в Клубном доме «Гранд Фили»

7 этаж
из 27 2 квартал 2029
Москва, ЗАО
Фили
15 мин.
1
Корпус
нет данных
Отделка
3.20 м
Потолки
Клубный дом «Гранд Фили»
32 245 013
Альфа-Банк, Газпромбанк, СберБанк, Азиатско-Тихоокеанский Банк, Всероссийский банк развития регионов, МТС Банк, ВТБ, Сургутнефтегазбанк, Совкомбанк, Металлинвестбанк, Абсолют Банк, Банк Россия, ДОМ.РФ, Россельхозбанк, Банк Санкт-Петербург, Промсвязьбанк, АК БАРС, Московский Кредитный Банк
6.00%
Ставка
30.10%
Первый взнос
от 193 325 /мес.
Все варианты
Этаж 2/27
Москва, Клубный дом «Гранд Фили»
Фили
15 мин.
Строится
Этаж 7/27
Москва, Клубный дом «Гранд Фили»
Фили
15 мин.
Строится
Этаж 3/27
Москва, Клубный дом «Гранд Фили»
Фили
15 мин.
Строится
Этаж 5/27
Москва, Клубный дом «Гранд Фили»
Фили
15 мин.
Строится
Посмотреть 60 квартир в Клубном доме «Гранд Фили»
Этаж 6/27
Москва, Клубный дом «Гранд Фили»
Фили
15 мин.
Строится
Этаж 4/27
Москва, Клубный дом «Гранд Фили»
Фили
15 мин.
Строится
Этаж 2/27
Москва, Клубный дом «Гранд Фили»
Фили
15 мин.
Строится
Этаж 3/27
Москва, Клубный дом «Гранд Фили»
Фили
15 мин.
Строится
Посмотреть 25 квартир в Клубном доме «Гранд Фили»
Этаж 2/27
Москва, Клубный дом «Гранд Фили»
Фили
15 мин.
Строится
Этаж 3/27
Москва, Клубный дом «Гранд Фили»
Фили
15 мин.
Строится
Этаж 4/27
Москва, Клубный дом «Гранд Фили»
Фили
15 мин.
Строится
Этаж 5/27
Москва, Клубный дом «Гранд Фили»
Фили
15 мин.
Строится
Посмотреть 6 квартир в Клубном доме «Гранд Фили»

Скидки и спецпредложения от застройщиков

Клубный дом «Гранд Фили» на карте

Выгодные предложения на новостройки

Отзывы о Клубном доме «Гранд Фили»

Самый полезный отзыв
В
26 февраля
Оценка:
Здорово, что изначально продумали инженерию: вентиляция и кондиционирование - центральные, выделяется нормальная мощность на квартиру, для меня это важнее позолоты в холле
Ответить
Самый новый отзыв
ТМ
30 марта
Оценка:
Достоинства
Двор, окружение
Расположение
«Гранд Фили»: престижно, безопасно, удобно. Охраняемая территория, паркинг, рядом метро и парк. Уровень сервиса высокий, но и обслуживание недешёвое. В целом - отличное место для жизни.
Ответить

Оставить отзыв

Добавьте отзыв, заполнив личные данные, или сначала войдите на сайт, тогда информация будет автоматически взята из личного профиля.
Оценка*