Рейтинг@Mail.ru
Переверните экран
Новостройки Квартиры Ипотека Новостройки Москвы Новостройки Подмосковья Новостройки Новой Москвы Готовые новостройки Новостройки на карте Акции от застройщиков Коммерческие помещения Продавцы и застройщики Панорамы новостроек Видеообзор новостроек Экспертиза новостроек Экология Москвы и Подмосковья Студии 1-комнатные 2-комнатные 3-комнатные Квартиры на карте Ипотечный калькулятор Семейная ипотека Военная ипотека Банки и программы Медиа Новости недвижимости Мнение эксперта Аналитика рынка Покупателю Экспертиза новостроек Эксперты и авторы О проекте Контакты Реклама на сайте Vk Youtube Telegram Дзен Машиноместа Апартаменты #траншевая ипотека #рассрочка IT-ипотека Квартиры со скидками до 40% Видео 360° новостроек Субсидированная застройщиком Rutube Поиск дома в Москве Программа реновации в Москве Новостройки премиум-класса Новостройки бизнес-класса Рассрочка Траншевая ипотека ГАЛС Дома и коттеджи Бизнес-центры Бизнес-центры в Москве Бизнес-центры рядом с метро Строящиеся бизнес-центры Бизнес-центры класса A Бизнес-центры класса B ЛСР
Данная квартира является лидером продаж среди двухкомнатных квартир в ЖК Very (Вери) Ботанический сад по данным Росреестра
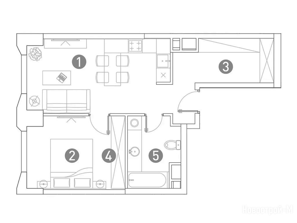
2-комн. квартира, 47.20 м2, 2 этаж
Срок сдачи 4 квартал 2027 года
23 930 400 
507 000 2
обновлено 17 декабря

Описание 2-комн. квартиры

Застройщик
ГК «Основа» ООО «СЗ Останкино»
Срок ГК
4 квартал 2027 года
Стадия строительства
монтаж средних этажей
Общая площадь
47.20 м2
Жилая площадь
10.80 м2
Площадь кухни
19.10 м2
Этаж
2 / 29
Отделка
white box
Грузовой лифт
есть

Расположение 2-комн. квартиры

Локация
Станция МЦД
Станция МЦК
Дом
5
Адрес
ул. Ботаническая, вл. 29, секция 1

Способы покупки

Особенности

Продается двухкомнатная квартира в новостройке ЖК Very (Вери) Ботанический сад по адресу Москва, СВАО, Марфино, ул. Ботаническая, вл. 29. Общая площадь квартиры - 47.2 кв. м. Тип проекта, по которому построен дом — Монолитно-кирпичный, компания-застройщик — ГК «Основа», ООО «СЗ Останкино». Стоимость квартиры — 23 930 400 руб. Способы оплаты можно уточнить у продавца. Срок сдачи — 4 квартал 2027. Более подробная информация по телефону.

Правовые документы

Инфоцентр новостроек
Инфоцентр новостроек
+7 (499) 705-91-41
Время работы 9:00 — 21:00
Посмотреть все спецпредложения
студия 25,80 м2 17 440 800
Этаж 26/29
Москва, ЖК Very (Вери) Ботанический сад
Фонвизинская
15 мин.
Строится
студия 26,10 м2 17 513 100
Этаж 26/29
Москва, ЖК Very (Вери) Ботанический сад
Фонвизинская
15 мин.
Строится
студия 26,40 м2 14 916 000
Этаж 2/29
Москва, ЖК Very (Вери) Ботанический сад
Фонвизинская
15 мин.
Строится
студия 26,60 м2 15 215 200
Этаж 5/29
Москва, ЖК Very (Вери) Ботанический сад
Фонвизинская
15 мин.
Строится
Посмотреть 6 квартир в ЖК Very (Вери) Ботанический сад
2-комн. квартира 40,50 м2 22 356 000
Этаж 21/29
Москва, ЖК Very (Вери) Ботанический сад
Фонвизинская
15 мин.
Строится
2-комн. квартира 40,70 м2 20 838 400
Этаж 2/29
Москва, ЖК Very (Вери) Ботанический сад
Фонвизинская
15 мин.
Строится
2-комн. квартира 41,00 м2 21 279 000
Этаж 6/29
Москва, ЖК Very (Вери) Ботанический сад
Фонвизинская
15 мин.
Строится
2-комн. квартира 41,10 м2 21 988 500
Этаж 14/29
Москва, ЖК Very (Вери) Ботанический сад
Фонвизинская
15 мин.
Строится
Посмотреть 68 квартир в ЖК Very (Вери) Ботанический сад
3-комн. квартира 59,90 м2 28 692 100
Этаж 3/29
Москва, ЖК Very (Вери) Ботанический сад
Фонвизинская
15 мин.
Строится
3-комн. квартира 60,70 м2 28 771 800
Этаж 2/29
Москва, ЖК Very (Вери) Ботанический сад
Фонвизинская
15 мин.
Строится
3-комн. квартира 60,80 м2 28 819 200
Этаж 4/29
Москва, ЖК Very (Вери) Ботанический сад
Фонвизинская
15 мин.
Строится
3-комн. квартира 61,00 м2 28 914 000
Этаж 2/29
Москва, ЖК Very (Вери) Ботанический сад
Фонвизинская
15 мин.
Строится
Посмотреть 45 квартир в ЖК Very (Вери) Ботанический сад
4-комн. квартира 85,20 м2 46 860 000
Этаж 31/31
Москва, ЖК Very (Вери) Ботанический сад
Фонвизинская
15 мин.
Сдан
4-комн. квартира 91,30 м2 43 824 000
Этаж 7/29
Москва, ЖК Very (Вери) Ботанический сад
Фонвизинская
15 мин.
Строится
4-комн. квартира 92,00 м2 44 528 000
Этаж 11/29
Москва, ЖК Very (Вери) Ботанический сад
Фонвизинская
15 мин.
Строится
4-комн. квартира 110,70 м2 66 973 500
Этаж 26/29
Москва, ЖК Very (Вери) Ботанический сад
Фонвизинская
15 мин.
Строится
Посмотреть 16 квартир в ЖК Very (Вери) Ботанический сад

Скидки и спецпредложения от застройщиков

ЖК Very (Вери) Ботанический сад на карте

Выгодные предложения на новостройки

Отзывы о ЖК Very (Вери) Ботанический сад

Самый полезный отзыв
Н
21 июля 2021
Оценка:
Не знаю, мне проект прям нравится. Понятное дело, что что-то поменяется к моменту сдачи, но пока все устраивает. На людей с их жалобами я внимания не обращаю, по сути ЖК хороший. Мост мне вообще понравился, на сайте смотрел как будет выглядеть, и эт оч стильно, и я нигде не видел подобного.
Ответить
Полезный отзыв?
Самый новый отзыв
В
10 декабря
Оценка:
В офисе продаж есть макет жк, хотя и на месте в принципе это видно, дома расположены таким образом, что относительно друг друга находятся с небольшим смещением: вид из окна никому не перегораживается засчет этого.
Ответить
Полезный отзыв?
Добавьте отзыв, заполнив личные данные, или сначала войдите на сайт, тогда информация будет автоматически взята из личного профиля.
Оценка*