Рейтинг@Mail.ru
Переверните экран
Новостройки Квартиры Ипотека Новостройки Москвы Новостройки Подмосковья Новостройки Новой Москвы Готовые новостройки Новостройки на карте Акции от застройщиков Коммерческие помещения Продавцы и застройщики Панорамы новостроек Видеообзор новостроек Экспертиза новостроек Экология Москвы и Подмосковья Студии 1-комнатные 2-комнатные 3-комнатные Квартиры на карте Ипотечный калькулятор Семейная ипотека Военная ипотека Банки и программы Медиа Новости недвижимости Мнение эксперта Аналитика рынка Покупателю Экспертиза новостроек Эксперты и авторы О проекте Контакты Реклама на сайте Vk Youtube Telegram Дзен Машиноместа Апартаменты #траншевая ипотека #рассрочка IT-ипотека Квартиры со скидками до 40% Видео 360° новостроек Субсидированная застройщиком Rutube Поиск дома в Москве Программа реновации в Москве Новостройки премиум-класса Новостройки бизнес-класса Рассрочка Траншевая ипотека ГАЛС Дома и коттеджи Бизнес-центры Бизнес-центры в Москве Бизнес-центры рядом с метро Строящиеся бизнес-центры Бизнес-центры класса A Бизнес-центры класса B ЛСР
Данная квартира является лидером продаж среди двухкомнатных квартир в ЖК Sydney City (Сидней Сити) по данным Росреестра
2-комн. квартира, 62.90 м2, 15 этаж
Срок сдачи 4 квартал 2025 года
45 722 010 
726 900 2
обновлено 5 декабря

Описание 2-комн. квартиры

Застройщик
Срок ГК
4 квартал 2025 года
Стадия строительства
отделка фасада и внутренние работы
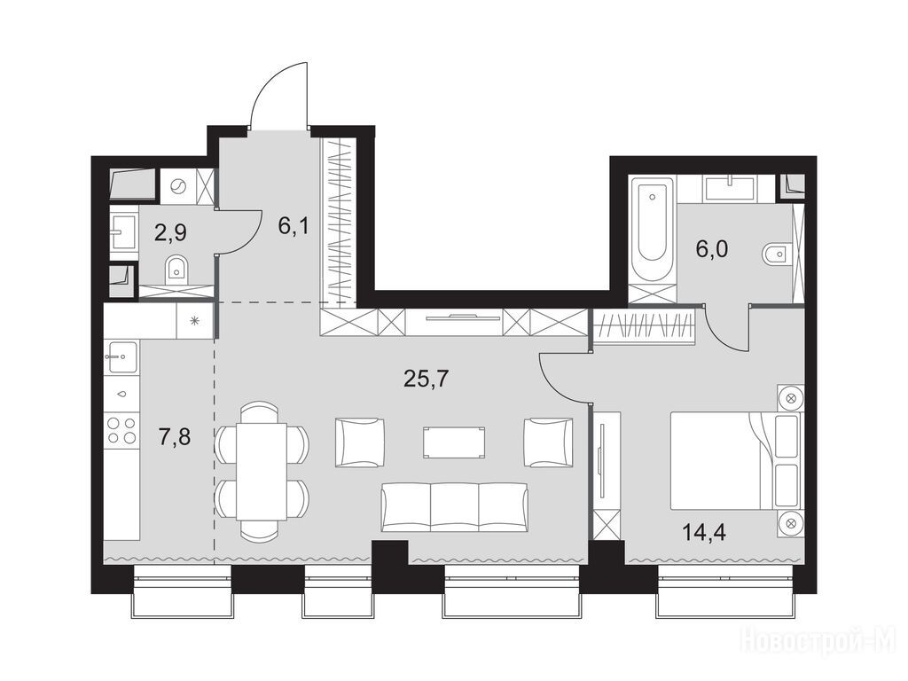
Общая площадь
62.90 м2
Жилая площадь
14.40 м2
Площадь кухни
33.50 м2
Этаж
15 / 43
Отделка
white box

Расположение 2-комн. квартиры

Локация
Станция МЦК
Дом
5.2
Адрес
район Хорошёво-Мнёвники, жилой комплекс Сидней Сити, секция 3

Способы покупки

Особенности

Продается двухкомнатная квартира в новостройке ЖК Sydney City (Сидней Сити) по адресу Москва, СЗАО, Хорошево-Мневники, район Хорошёво-Мнёвники, жилой комплекс Сидней Сити. Общая площадь квартиры - 62.9 кв. м. Тип проекта, по которому построен дом — Монолитно-кирпичный, компания-застройщик — ГК ФСК. Стоимость квартиры — 45 722 010 руб. Способы оплаты можно уточнить у продавца. Срок сдачи — 4 квартал 2025. Более подробная информация по телефону.
Инфоцентр новостроек
Инфоцентр новостроек
+7 (499) 705-91-41
Время работы 9:00 — 21:00
Посмотреть все спецпредложения
студия 30,30 м2 30 530 280
Этаж 28/28
Москва, ЖК Sydney City (Сидней Сити)
Звенигородская (2026)
2 мин.
Строится
студия 30,70 м2 25 686 690
Этаж 11/43
Москва, ЖК Sydney City (Сидней Сити)
Звенигородская (2026)
2 мин.
Строится
студия 30,80 м2 28 610 120
Этаж 26/43
Москва, ЖК Sydney City (Сидней Сити)
Звенигородская (2026)
2 мин.
Строится
студия 41,70 м2 36 512 520
Этаж 25/26
Москва, ЖК Sydney City (Сидней Сити)
Звенигородская (2026)
2 мин.
Строится
Посмотреть 5 квартир в ЖК Sydney City (Сидней Сити)
1-комн. квартира 35,20 м2 33 429 440
Этаж 26/43
Москва, ЖК Sydney City (Сидней Сити)
Звенигородская (2026)
2 мин.
Строится
1-комн. квартира 35,40 м2 21 795 072
Этаж 2/28
Москва, ЖК Sydney City (Сидней Сити)
Звенигородская (2026)
2 мин.
Строится
1-комн. квартира 35,70 м2 34 736 100
Этаж 28/28
Москва, ЖК Sydney City (Сидней Сити)
Звенигородская (2026)
2 мин.
Строится
1-комн. квартира 36,10 м2 22 493 188
Этаж 2/28
Москва, ЖК Sydney City (Сидней Сити)
Звенигородская (2026)
2 мин.
Строится
Посмотреть 25 квартир в ЖК Sydney City (Сидней Сити)
2-комн. квартира 43,00 м2 39 813 700
Этаж 38/43
Москва, ЖК Sydney City (Сидней Сити)
Звенигородская (2026)
2 мин.
Строится
2-комн. квартира 43,80 м2 25 595 756
Этаж 2/43
Москва, ЖК Sydney City (Сидней Сити)
Звенигородская (2026)
2 мин.
Строится
2-комн. квартира 45,00 м2 35 716 500
Этаж 4/43
Москва, ЖК Sydney City (Сидней Сити)
Звенигородская (2026)
2 мин.
Строится
2-комн. квартира 45,10 м2 38 217 740
Этаж 10/43
Москва, ЖК Sydney City (Сидней Сити)
Звенигородская (2026)
2 мин.
Строится
Посмотреть 75 квартир в ЖК Sydney City (Сидней Сити)
3-комн. квартира 61,70 м2 29 874 029
Этаж 2/43
Москва, ЖК Sydney City (Сидней Сити)
Звенигородская (2026)
2 мин.
Строится
3-комн. квартира 63,00 м2 48 736 800
Этаж 6/43
Москва, ЖК Sydney City (Сидней Сити)
Звенигородская (2026)
2 мин.
Строится
3-комн. квартира 65,50 м2 47 939 450
Этаж 3/43
Москва, ЖК Sydney City (Сидней Сити)
Звенигородская (2026)
2 мин.
Строится
3-комн. квартира 65,70 м2 64 464 840
Этаж 39/43
Москва, ЖК Sydney City (Сидней Сити)
Звенигородская (2026)
2 мин.
Строится
Посмотреть 69 квартир в ЖК Sydney City (Сидней Сити)
4-комн. квартира 90,50 м2 82 753 200
Этаж 33/43
Москва, ЖК Sydney City (Сидней Сити)
Звенигородская (2026)
2 мин.
Строится
4-комн. квартира 90,80 м2 71 986 240
Этаж 11/43
Москва, ЖК Sydney City (Сидней Сити)
Звенигородская (2026)
2 мин.
Строится
4-комн. квартира 91,10 м2 47 054 972
Этаж 2/43
Москва, ЖК Sydney City (Сидней Сити)
Звенигородская (2026)
2 мин.
Строится
4-комн. квартира 92,60 м2 72 570 620
Этаж 7/43
Москва, ЖК Sydney City (Сидней Сити)
Звенигородская (2026)
2 мин.
Строится
Посмотреть 34 квартиры в ЖК Sydney City (Сидней Сити)
5-комн. квартира 113,70 м2 70 932 200
Этаж 32/43
Москва, ЖК Sydney City (Сидней Сити)
Звенигородская (2026)
2 мин.
Строится
5-комн. квартира 125,90 м2 123 684 160
Этаж 42/43
Москва, ЖК Sydney City (Сидней Сити)
Звенигородская (2026)
2 мин.
Сдан
5-комн. квартира 137,90 м2 83 183 762
Этаж 29/43
Москва, ЖК Sydney City (Сидней Сити)
Звенигородская (2026)
2 мин.
Строится
5-комн. квартира 140,50 м2 117 514 200
Этаж 42/43
Москва, ЖК Sydney City (Сидней Сити)
Звенигородская (2026)
2 мин.
Строится
Посмотреть 17 квартир в ЖК Sydney City (Сидней Сити)

Скидки и спецпредложения от застройщиков

ЖК Sydney City (Сидней Сити) на карте

Выгодные предложения на новостройки

Отзывы о ЖК Sydney City (Сидней Сити)

Самый полезный отзыв
Л
01 августа 2019
Оценка:
Социальная инфраструктура
Двор, окружение
Расположение
Ого, какой проект затеяли! Расположение оооочень выгодное, этот район так близко к центру, но осваивать его начали только сейчас — странно. По рендерам комплекс выглядит очень современно и прагматично.
Показать все комментарии
Ответить
Полезный отзыв?
Самый новый отзыв
ВС
22 сентября
Оценка:
Транспортная доступность
После встречи с менеджерами и посещения шоурума ЖК Sydney City у нас остались хорошие впечатления. Они показывают реальные квартиры, объясняют все нюансы отделки и инженерии, рассказывают про сроки сдачи, возможность выбрать планировку. Понравилось, что даже при мелких огрехах застройщик идет на встречу: можно согласовать исправление недочетов до передачи квартиры, что для нас важно. В целом, уровень сервиса выше среднего и это снимает любые сомнения по поводу покупки квартиры именно в этом ЖК. Отдельный респект за ультрабыстрые и крутые лифты!
Ответить
Полезный отзыв?
Добавьте отзыв, заполнив личные данные, или сначала войдите на сайт, тогда информация будет автоматически взята из личного профиля.
Оценка*