Рейтинг@Mail.ru
Переверните экран
Новостройки Квартиры Ипотека Новостройки Москвы Новостройки Подмосковья Новостройки Новой Москвы Готовые новостройки Новостройки на карте Акции от застройщиков Коммерческие помещения Продавцы и застройщики Панорамы новостроек Видеообзор новостроек Экспертиза новостроек Экология Москвы и Подмосковья Студии 1-комнатные 2-комнатные 3-комнатные Квартиры на карте Ипотечный калькулятор Семейная ипотека Военная ипотека Банки и программы Медиа Новости недвижимости Мнение эксперта Аналитика рынка Покупателю Экспертиза новостроек Эксперты и авторы О проекте Контакты Реклама на сайте Vk Youtube Telegram Дзен Машиноместа Апартаменты #траншевая ипотека #рассрочка IT-ипотека Квартиры со скидками до 40% Видео 360° новостроек Субсидированная застройщиком Rutube Поиск дома в Москве Программа реновации в Москве Новостройки премиум-класса Новостройки бизнес-класса Рассрочка Траншевая ипотека ГАЛС Дома и коттеджи Бизнес-центры Бизнес-центры в Москве Бизнес-центры рядом с метро Строящиеся бизнес-центры Бизнес-центры класса A Бизнес-центры класса B ЛСР
Данная квартира является лидером продаж среди двухкомнатных квартир в ЖК SOUL (Соул) по данным Росреестра
2-комн. квартира, 77.80 м2, 5 этаж
Срок сдачи 1 квартал 2029 года
41 428 500 
532 500 2
обновлено 5 декабря

Описание 2-комн. квартиры

Новостройка
Срок ГК
1 квартал 2029 года
Стадия строительства
котлован/фундамент
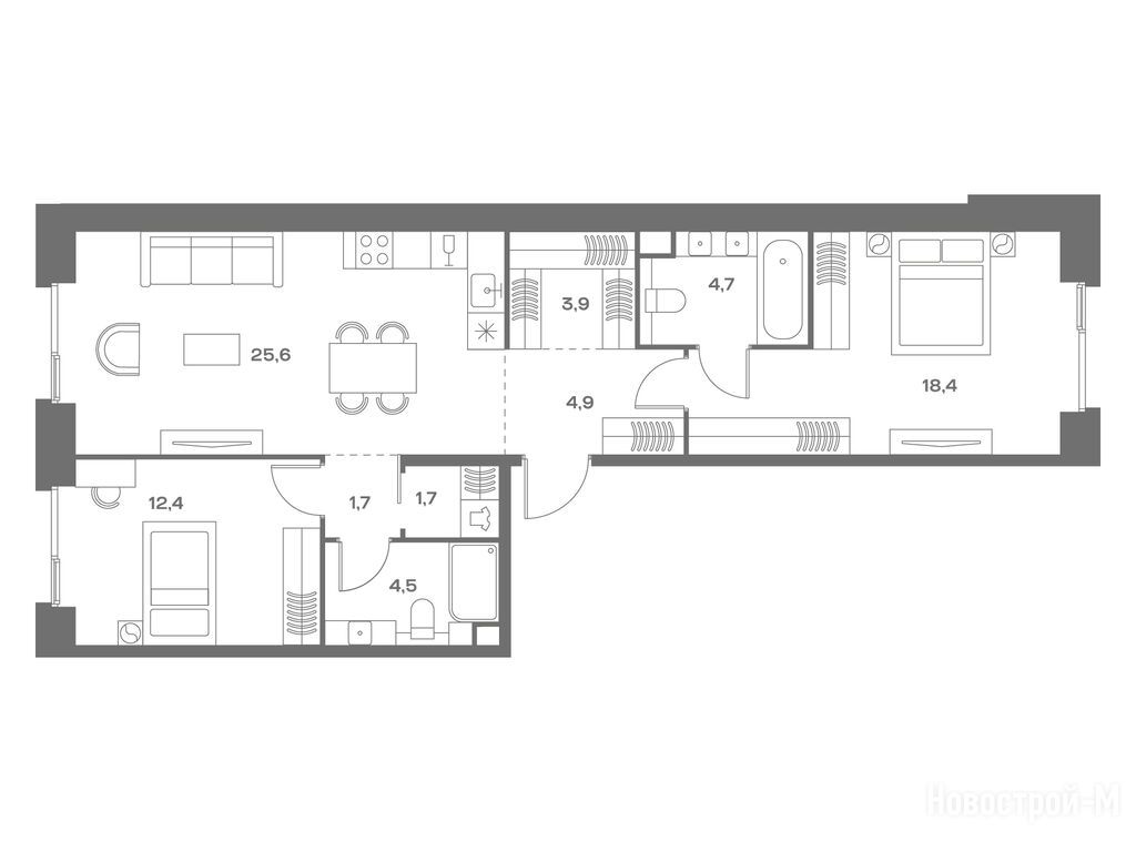
Общая площадь
77.80 м2
Жилая площадь
30.80 м2
Площадь кухни
25.60 м2
Этаж
5 / 8

Расположение 2-комн. квартиры

Локация
Метро
Станция МЦД
Станция МЦК
Дом
7
Адрес
ул. Часовая, вл. 28, корп. 7, секция 3

Способы покупки

Особенности

Продается двухкомнатная квартира в новостройке ЖК SOUL (Соул) по адресу Москва, САО, Аэропорт, ул. Часовая, вл. 28, корп. 7. Общая площадь квартиры - 77.8 кв. м. Тип проекта, по которому построен дом — Монолитно-кирпичный, компания-застройщик — FORMA (Форма), ООО СЗ Часовая. Стоимость квартиры — 41 428 500 руб. Способы оплаты можно уточнить у продавца. Срок сдачи — 1 квартал 2029. Более подробная информация по телефону.

Правовые документы

FORMA (Форма)
FORMA (Форма)
Сданных 1
|
Строящихся 13
Время работы 09:00 — 21:00
Онлайн-сделка
Выбирайте квартиру в ЖК SOUL (Соул) по ценам от застройщика

Похожие квартиры в ЖК SOUL (Соул)

3 этаж
из 8 1 квартал 2029
Москва, САО
Сокол
15 мин.
7
Корпус
нет данных
Отделка
3.02 м
Потолки
ЖК SOUL (Соул)
39 771 360
Т-Банк, Банк Россия, Банк Санкт-Петербург, Уралсиб, Промсвязьбанк, Металлинвестбанк, Севергазбанк, ДОМ.РФ, Московский Кредитный Банк, Всероссийский банк развития регионов, Совкомбанк, МТС Банк, Сургутнефтегазбанк, ВТБ
16.90%
Ставка
20.00%
Первый взнос
от 563 783 /мес.
Все варианты
Посмотреть все спецпредложения
студия 26,80 м2 23 120 360
Этаж 14/25
Москва, ЖК SOUL (Соул)
Сокол
15 мин.
Строится
студия 29,60 м2 22 025 360
Этаж 15/24
Москва, ЖК SOUL (Соул)
Сокол
15 мин.
Строится
студия 29,70 м2 19 524 601
Этаж 8/29
Москва, ЖК SOUL (Соул)
Сокол
15 мин.
Строится
студия 29,80 м2 23 765 500
Этаж 7/29
Москва, ЖК SOUL (Соул)
Сокол
15 мин.
Строится
Посмотреть 12 квартир в ЖК SOUL (Соул)
1-комн. квартира 38,30 м2 25 163 100
Этаж 14/18
Москва, ЖК SOUL (Соул)
Сокол
15 мин.
Строится
1-комн. квартира 41,20 м2 26 737 770
Этаж 17/29
Москва, ЖК SOUL (Соул)
Сокол
15 мин.
Строится
1-комн. квартира 41,50 м2 26 236 300
Этаж 15/24
Москва, ЖК SOUL (Соул)
Сокол
15 мин.
Строится
1-комн. квартира 43,00 м2 30 005 400
Этаж 5/9
Москва, ЖК SOUL (Соул)
Сокол
15 мин.
Строится
Посмотреть 83 квартиры в ЖК SOUL (Соул)
2-комн. квартира 58,90 м2 35 622 720
Этаж 3/9
Москва, ЖК SOUL (Соул)
Сокол
15 мин.
Строится
2-комн. квартира 60,20 м2 35 120 680
Этаж 3/7
Москва, ЖК SOUL (Соул)
Сокол
15 мин.
Строится
2-комн. квартира 62,00 м2 38 309 800
Этаж 22/24
Москва, ЖК SOUL (Соул)
Сокол
15 мин.
Строится
2-комн. квартира 63,60 м2 33 574 440
Этаж 4/18
Москва, ЖК SOUL (Соул)
Сокол
15 мин.
Строится
Посмотреть 57 квартир в ЖК SOUL (Соул)
3-комн. квартира 76,60 м2 40 199 680
Этаж 6/24
Москва, ЖК SOUL (Соул)
Сокол
15 мин.
Строится
3-комн. квартира 81,10 м2 45 205 140
Этаж 20/24
Москва, ЖК SOUL (Соул)
Сокол
15 мин.
Строится
3-комн. квартира 81,90 м2 42 112 980
Этаж 4/24
Москва, ЖК SOUL (Соул)
Сокол
15 мин.
Строится
3-комн. квартира 82,00 м2 42 000 400
Этаж 9/24
Москва, ЖК SOUL (Соул)
Сокол
15 мин.
Строится
Посмотреть 50 квартир в ЖК SOUL (Соул)
4-комн. квартира 128,80 м2 80 371 200
Этаж 3/9
Москва, ЖК SOUL (Соул)
Сокол
15 мин.
Строится
4-комн. квартира 130,40 м2 82 138 960
Этаж 2/8
Москва, ЖК SOUL (Соул)
Сокол
15 мин.
Строится
4-комн. квартира 159,40 м2 119 055 860
Этаж 29/29
Москва, ЖК SOUL (Соул)
Сокол
15 мин.
Строится

Скидки и спецпредложения от застройщиков

ЖК SOUL (Соул) на карте

Выгодные предложения на новостройки

Отзывы о ЖК SOUL (Соул)

Самый полезный отзыв
М
07 марта 2023
Оценка:
Чем больше присматривают к этому комплексу, тем больше хочу здесь квартиру. Бизнес-класс, интересный проект и задумка по благоустройству территории, подземный паркинг, два детских сада. А планировки, так вообще. И два окна в спальне в пол, и кому это мало - окно в ванной комнате. Еще зацепил момент с Изофабрикой - в Соуле,без сомнения, это будет местом притяжения для всех жителей и каждый найдет там что-то свое.
Показать все комментарии
Ответить
Полезный отзыв?
Самый новый отзыв
АВ
04 декабря
Оценка:
Транспортная доступность
Скорость строительства
Классное место, мне кажется, удобное в плане метро и район неплохой, зелёный. Рядом вся инфраструктура.
Ответить
Полезный отзыв?
Добавьте отзыв, заполнив личные данные, или сначала войдите на сайт, тогда информация будет автоматически взята из личного профиля.
Оценка*