Рейтинг@Mail.ru
Переверните экран
Новостройки Квартиры Ипотека Новостройки Москвы Новостройки Подмосковья Новостройки Новой Москвы Готовые новостройки Новостройки на карте Акции от застройщиков Коммерческие помещения Продавцы и застройщики Панорамы новостроек Видеообзор новостроек Экспертиза новостроек Экология Москвы и Подмосковья Студии 1-комнатные 2-комнатные 3-комнатные Квартиры на карте Ипотечный калькулятор Семейная ипотека Военная ипотека Банки и программы Медиа Новости недвижимости Мнение эксперта Аналитика рынка Покупателю Экспертиза новостроек Эксперты и авторы О проекте Контакты Реклама на сайте Vk Youtube Telegram Дзен Машиноместа Апартаменты #траншевая ипотека #рассрочка ИТ-ипотека Квартиры со скидками до 40% Видео 360° новостроек Субсидированная застройщиком Rutube Поиск дома в Москве Программа реновации в Москве Новостройки премиум-класса Новостройки бизнес-класса Рассрочка Траншевая ипотека Дома и коттеджи Бизнес-центры Бизнес-центры в Москве Бизнес-центры рядом с метро Строящиеся бизнес-центры Бизнес-центры класса A Бизнес-центры класса B Ипотека со ставкой 0,1%
Данная квартира является лидером продаж среди двухкомнатных квартир в ЖК «СОУЛ» по данным Росреестра
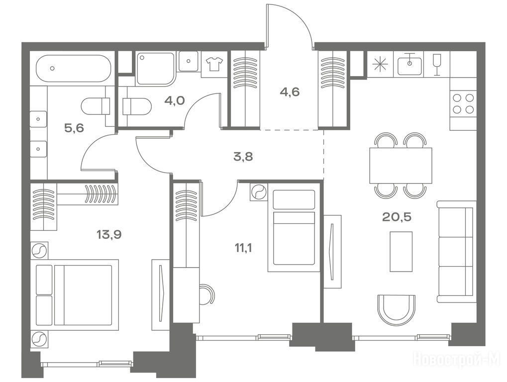
2-комн. квартира, 63.50 м2, 4 этаж
Срок сдачи 1 квартал 2029 года
43 789 600 
689 600 2
обновлено 29 марта

Описание 2-комн. квартиры

Новостройка
Срок ГК
1 квартал 2029 года
Стадия строительства
котлован/фундамент
Общая площадь
63.50 м2
Этаж
4 / 7

Расположение 2-комн. квартиры

Локация
Метро
Станция МЦД
Станция МЦК
Дом
7
Адрес
ул. Часовая, вл. 28, корп. 7, секция 6

Способы покупки

Особенности

Продается двухкомнатная квартира в новостройке ЖК «СОУЛ» по адресу Москва, САО, Аэропорт, ул. Часовая, вл. 28, корп. 7. Общая площадь квартиры - 63.5 кв. м. Тип проекта, по которому построен дом — Монолитно-кирпичный, компания-застройщик — FORMA (Форма), ООО СЗ Часовая. Стоимость квартиры — 43 789 600 руб. Способы оплаты можно уточнить у продавца. Срок сдачи — 1 квартал 2029. Более подробная информация по телефону.

Правовые документы

FORMA (Форма)
FORMA (Форма)
Сданных 2
|
Строящихся 13
Время работы 09:00 — 21:00
Онлайн-сделка
Выбирайте квартиру в ЖК «СОУЛ» по ценам от застройщика

Похожие квартиры в ЖК «СОУЛ»

6 этаж
из 7 1 квартал 2029
Москва, САО
Сокол
15 мин.
7
Корпус
нет данных
Отделка
3.02 м
Потолки
ЖК «СОУЛ»
45 110 400
Альфа-Банк, ВТБ, Московский Кредитный Банк, СберБанк, Совкомбанк
19.90%
Ставка
30.10%
Первый взнос
от 750 093 /мес.
Все варианты
студия 26,80 м2 24 790 000
Этаж 14/25
Москва, ЖК «СОУЛ»
Сокол
15 мин.
Строится
студия 29,60 м2 24 568 000
Этаж 15/24
Москва, ЖК «СОУЛ»
Сокол
15 мин.
Строится
студия 29,80 м2 25 481 980
Этаж 7/29
Москва, ЖК «СОУЛ»
Сокол
15 мин.
Строится
студия 30,40 м2 26 639 520
Этаж 16/27
Москва, ЖК «СОУЛ»
Сокол
15 мин.
Строится
Посмотреть 9 квартир в ЖК «СОУЛ»
1-комн. квартира 35,90 м2 25 614 650
Этаж 2/24
Москва, ЖК «СОУЛ»
Сокол
15 мин.
Строится
1-комн. квартира 36,30 м2 28 655 220
Этаж 16/24
Москва, ЖК «СОУЛ»
Сокол
15 мин.
Строится
1-комн. квартира 38,00 м2 25 824 800
Этаж 5/18
Москва, ЖК «СОУЛ»
Сокол
15 мин.
Строится
1-комн. квартира 38,30 м2 21 797 296
Этаж 14/18
Москва, ЖК «СОУЛ»
Сокол
15 мин.
Строится
Посмотреть 91 квартира в ЖК «СОУЛ»
2-комн. квартира 58,90 м2 38 190 760
Этаж 3/9
Москва, ЖК «СОУЛ»
Сокол
15 мин.
Строится
2-комн. квартира 60,20 м2 32 329 808
Этаж 6/7
Москва, ЖК «СОУЛ»
Сокол
15 мин.
Строится
2-комн. квартира 60,60 м2 36 226 680
Этаж 7/18
Москва, ЖК «СОУЛ»
Сокол
15 мин.
Строится
2-комн. квартира 62,00 м2 41 899 600
Этаж 22/24
Москва, ЖК «СОУЛ»
Сокол
15 мин.
Строится
Посмотреть 66 квартир в ЖК «СОУЛ»
3-комн. квартира 76,60 м2 44 397 360
Этаж 6/24
Москва, ЖК «СОУЛ»
Сокол
15 мин.
Строится
3-комн. квартира 81,10 м2 39 550 848
Этаж 20/24
Москва, ЖК «СОУЛ»
Сокол
15 мин.
Строится
3-комн. квартира 81,90 м2 36 848 448
Этаж 4/24
Москва, ЖК «СОУЛ»
Сокол
15 мин.
Строится
3-комн. квартира 82,00 м2 47 232 000
Этаж 3/24
Москва, ЖК «СОУЛ»
Сокол
15 мин.
Строится
Посмотреть 47 квартир в ЖК «СОУЛ»
4-комн. квартира 128,80 м2 89 722 080
Этаж 4/9
Москва, ЖК «СОУЛ»
Сокол
15 мин.
Строится
Этаж 21/21
Москва, ЖК «СОУЛ»
Сокол
15 мин.
Сдан
4-комн. квартира 130,40 м2 88 072 160
Этаж 2/8
Москва, ЖК «СОУЛ»
Сокол
15 мин.
Строится
4-комн. квартира 159,40 м2 127 647 520
Этаж 29/29
Москва, ЖК «СОУЛ»
Сокол
15 мин.
Строится

Скидки и спецпредложения от застройщиков

ЖК «СОУЛ» на карте

Выгодные предложения на новостройки

Отзывы о ЖК «СОУЛ»

Самый полезный отзыв
М
07 марта 2023
Оценка:
Чем больше присматривают к этому комплексу, тем больше хочу здесь квартиру. Бизнес-класс, интересный проект и задумка по благоустройству территории, подземный паркинг, два детских сада. А планировки, так вообще. И два окна в спальне в пол, и кому это мало - окно в ванной комнате. Еще зацепил момент с Изофабрикой - в Соуле,без сомнения, это будет местом притяжения для всех жителей и каждый найдет там что-то свое.
Показать все комментарии
Ответить
Самый новый отзыв
МП
24 марта
Оценка:
Продуманный проект, это заметно. Есть подземный паркинг, нормальные планировки и в целом ощущение, что комплекс делали без иллюзий, с расчётом как на семьи, так и на одиноких людей. Во дворах и каворкинги планируются и различные площадки для досуга, это как минимум интересно.
Ответить

Оставить отзыв

Добавьте отзыв, заполнив личные данные, или сначала войдите на сайт, тогда информация будет автоматически взята из личного профиля.
Оценка*