Рейтинг@Mail.ru
Переверните экран
Новостройки Квартиры Ипотека Новостройки Москвы Новостройки Подмосковья Новостройки Новой Москвы Готовые новостройки Новостройки на карте Акции от застройщиков Коммерческие помещения Продавцы и застройщики Панорамы новостроек Видеообзор новостроек Экспертиза новостроек Экология Москвы и Подмосковья Студии 1-комнатные 2-комнатные 3-комнатные Квартиры на карте Ипотечный калькулятор Семейная ипотека Военная ипотека Банки и программы Медиа Новости недвижимости Мнение эксперта Аналитика рынка Покупателю Экспертиза новостроек Эксперты и авторы О проекте Контакты Реклама на сайте Vk Youtube Telegram Дзен Машиноместа Апартаменты #траншевая ипотека #рассрочка ИТ-ипотека Квартиры со скидками до 40% Видео 360° новостроек Субсидированная застройщиком Rutube Поиск дома в Москве Программа реновации в Москве Новостройки премиум-класса Новостройки бизнес-класса Рассрочка Траншевая ипотека Дома и коттеджи Бизнес-центры Бизнес-центры в Москве Бизнес-центры рядом с метро Строящиеся бизнес-центры Бизнес-центры класса A Бизнес-центры класса B Ипотека со ставкой 0,1%
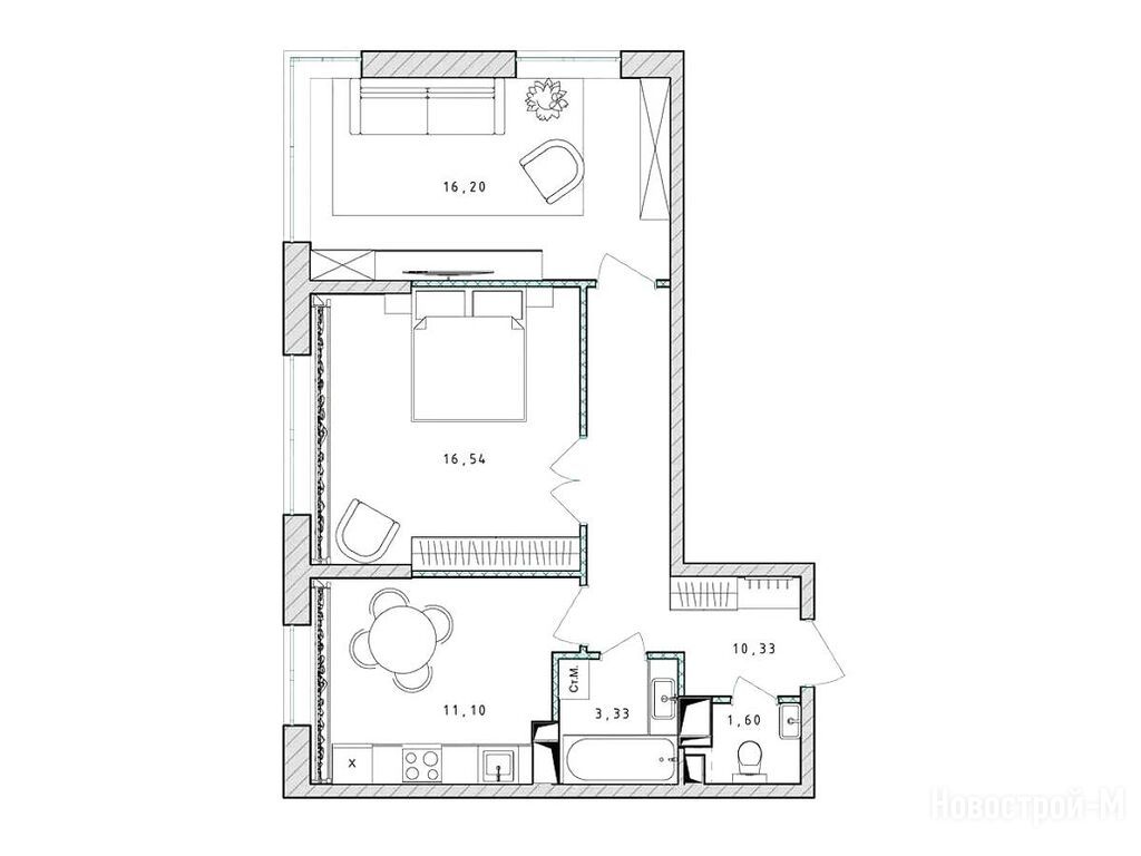
2-комн. квартира, 59.10 м2, 5 этаж
Сдан
7 877 226 
8 850 816
133 286 2
обновлено 29 марта

Описание 2-комн. квартиры

Новостройка
Срок ГК
Дом сдан
Стадия строительства
выдача ключей + заселение
Тип проекта
монолитно-панельный
Общая площадь
59.10 м2
Жилая площадь
32.74 м2
Площадь кухни
11.10 м2
Этаж
5 / 17

Расположение 2-комн. квартиры

Метро
Ж/Д-станция
Дом
2
Адрес
Ярославское ш., д. 194, корп. 1, секция 3

Особенности

Продается двухкомнатная квартира в новостройке ЖК «Серебро» по адресу Московская область, Пушкинский район, Пушкино, Ярославское ш., д. 194, корп. 1. Общая площадь квартиры - 59.1 кв. м. Тип проекта, по которому построен дом — Монолитно-панельный, компания-застройщик — ООО «Жилой квартал 2», АО «Виктория Девелопмент», НДВ Супермаркет недвижимости. Стоимость квартиры — 7 877 226 руб. Способы оплаты можно уточнить у продавца. Более подробная информация по телефону.

Похожие квартиры в ЖК «Серебро»

9 этаж
из 17 Дом сдан
Московская область, Пушкинский район
Медведково
27 мин.
2
Корпус
нет данных
Отделка
0.00 м
Потолки
ЖК «Серебро»
8 180 196 9 191 232
10 этаж
из 17 Дом сдан
Московская область, Пушкинский район
Медведково
27 мин.
2
Корпус
нет данных
Отделка
0.00 м
Потолки
ЖК «Серебро»
8 255 939 9 276 336
3 этаж
из 17 Дом сдан
Московская область, Пушкинский район
Медведково
27 мин.
2
Корпус
нет данных
Отделка
0.00 м
Потолки
ЖК «Серебро»
8 680 608
3 этаж
из 17 Дом сдан
Московская область, Пушкинский район
Медведково
27 мин.
2
Корпус
нет данных
Отделка
0.00 м
Потолки
ЖК «Серебро»
8 680 608
3 этаж
из 17 Дом сдан
Московская область, Пушкинский район
Медведково
27 мин.
2
Корпус
нет данных
Отделка
0.00 м
Потолки
ЖК «Серебро»
8 680 608
4 этаж
из 17 Дом сдан
Московская область, Пушкинский район
Медведково
27 мин.
2
Корпус
нет данных
Отделка
0.00 м
Потолки
ЖК «Серебро»
8 765 712
4 этаж
из 17 Дом сдан
Московская область, Пушкинский район
Медведково
27 мин.
2
Корпус
нет данных
Отделка
0.00 м
Потолки
ЖК «Серебро»
8 765 712
4 этаж
из 17 Дом сдан
Московская область, Пушкинский район
Медведково
27 мин.
2
Корпус
нет данных
Отделка
0.00 м
Потолки
ЖК «Серебро»
8 765 712
5 этаж
из 17 Дом сдан
Московская область, Пушкинский район
Медведково
27 мин.
2
Корпус
нет данных
Отделка
0.00 м
Потолки
ЖК «Серебро»
8 850 816
5 этаж
из 17 Дом сдан
Московская область, Пушкинский район
Медведково
27 мин.
2
Корпус
нет данных
Отделка
0.00 м
Потолки
ЖК «Серебро»
8 850 816
5 этаж
из 17 Дом сдан
Московская область, Пушкинский район
Медведково
27 мин.
2
Корпус
нет данных
Отделка
0.00 м
Потолки
ЖК «Серебро»
8 850 816
6 этаж
из 17 Дом сдан
Московская область, Пушкинский район
Медведково
27 мин.
2
Корпус
нет данных
Отделка
0.00 м
Потолки
ЖК «Серебро»
8 935 920
7 этаж
из 17 Дом сдан
Московская область, Пушкинский район
Медведково
27 мин.
2
Корпус
нет данных
Отделка
0.00 м
Потолки
ЖК «Серебро»
9 021 024
8 этаж
из 17 Дом сдан
Московская область, Пушкинский район
Медведково
27 мин.
2
Корпус
нет данных
Отделка
0.00 м
Потолки
ЖК «Серебро»
9 106 128
8 этаж
из 17 Дом сдан
Московская область, Пушкинский район
Медведково
27 мин.
2
Корпус
нет данных
Отделка
0.00 м
Потолки
ЖК «Серебро»
9 106 128
11 этаж
из 17 Дом сдан
Московская область, Пушкинский район
Медведково
27 мин.
2
Корпус
нет данных
Отделка
0.00 м
Потолки
ЖК «Серебро»
9 361 440
12 этаж
из 17 Дом сдан
Московская область, Пушкинский район
Медведково
27 мин.
2
Корпус
нет данных
Отделка
0.00 м
Потолки
ЖК «Серебро»
9 446 544
13 этаж
из 17 Дом сдан
Московская область, Пушкинский район
Медведково
27 мин.
2
Корпус
нет данных
Отделка
0.00 м
Потолки
ЖК «Серебро»
9 531 648
13 этаж
из 17 Дом сдан
Московская область, Пушкинский район
Медведково
27 мин.
2
Корпус
нет данных
Отделка
0.00 м
Потолки
ЖК «Серебро»
9 531 648
13 этаж
из 17 Дом сдан
Московская область, Пушкинский район
Медведково
27 мин.
2
Корпус
нет данных
Отделка
0.00 м
Потолки
ЖК «Серебро»
9 531 648
14 этаж
из 17 Дом сдан
Московская область, Пушкинский район
Медведково
27 мин.
2
Корпус
нет данных
Отделка
0.00 м
Потолки
ЖК «Серебро»
9 616 752
17 этаж
из 17 Дом сдан
Московская область, Пушкинский район
Медведково
27 мин.
2
Корпус
нет данных
Отделка
0.00 м
Потолки
ЖК «Серебро»
9 869 700
17 этаж
из 17 Дом сдан
Московская область, Пушкинский район
Медведково
27 мин.
2
Корпус
нет данных
Отделка
0.00 м
Потолки
ЖК «Серебро»
10 212 480
студия 27,80 м2 5 213 890
Этаж 11/17
МО, ЖК «Серебро»
Медведково
27 мин.
Сдан
студия 27,90 м2 5 185 076
Этаж 10/17
МО, ЖК «Серебро»
Медведково
27 мин.
Сдан
студия 28,00 м2 5 155 920
Этаж 9/17
МО, ЖК «Серебро»
Медведково
27 мин.
Сдан
студия 30,10 м2 5 192 702
Этаж 7/17
МО, ЖК «Серебро»
Медведково
27 мин.
Сдан
Посмотреть 51 квартира в ЖК «Серебро»
1-комн. квартира 41,20 м2 6 736 200
Этаж 10/17
МО, ЖК «Серебро»
Медведково
27 мин.
Сдан
1-комн. квартира 43,60 м2 6 843 456
Этаж 10/17
МО, ЖК «Серебро»
Медведково
27 мин.
Сдан
1-комн. квартира 43,80 м2 7 000 992
Этаж 12/17
МО, ЖК «Серебро»
Медведково
27 мин.
Сдан
Этаж 14/17
МО, ЖК «Серебро»
Медведково
27 мин.
Сдан
Посмотреть 41 квартира в ЖК «Серебро»
Этаж 13/17
МО, ЖК «Серебро»
Медведково
27 мин.
Сдан
2-комн. квартира 57,60 м2 9 538 560
Этаж 16/17
МО, ЖК «Серебро»
Медведково
27 мин.
Сдан
Этаж 12/17
МО, ЖК «Серебро»
Медведково
27 мин.
Сдан
2-комн. квартира 59,00 м2 8 166 355
Этаж 9/17
МО, ЖК «Серебро»
Медведково
27 мин.
Сдан
Посмотреть 87 квартир в ЖК «Серебро»
3-комн. квартира 77,10 м2 11 579 109
Этаж 12/17
МО, ЖК «Серебро»
Медведково
27 мин.
Сдан
3-комн. квартира 77,30 м2 11 420 889
Этаж 11/17
МО, ЖК «Серебро»
Медведково
27 мин.
Сдан
3-комн. квартира 77,40 м2 11 123 781
Этаж 8/17
МО, ЖК «Серебро»
Медведково
27 мин.
Сдан
3-комн. квартира 77,50 м2 11 034 063
Этаж 7/17
МО, ЖК «Серебро»
Медведково
27 мин.
Сдан
Посмотреть 31 квартира в ЖК «Серебро»

Скидки и спецпредложения от застройщиков

ЖК «Серебро» на карте

Выгодные предложения на новостройки

Отзывы о ЖК «Серебро»

Самый полезный отзыв
G
03 марта 2020
Оценка:
Очень приятный комплекс, три дома на любой вкус, с шумоизоляцей и утепленной лоджией приятного метража, сдача первого дома в конце года, рядом устоявшийся район, поэтому все есть, большой плюс, что до ж/д станции или 20 минут пешком или 8 на транспорте. По планировками есть и стандартные и "евро" с объединенной кухней. Цена более чем, но разумеется будет подниматься. Еще из плюсов опытный застройщик работающий по закону, а значит тут ДДУ с эскроу, что несомненно выгодно дольщикам.
Показать все комментарии
Ответить
Самый новый отзыв
ВМ
22 декабря 2025
Оценка:
Достоинства
Способы покупки
Обратил внимание на условия ипотеки сроком до 2 лет, по цифрам всё достаточно прозрачно, можно подобрать комфортную планировку.
Ответить

Оставить отзыв

Добавьте отзыв, заполнив личные данные, или сначала войдите на сайт, тогда информация будет автоматически взята из личного профиля.
Оценка*