Рейтинг@Mail.ru
Переверните экран
Новостройки Квартиры Ипотека Новостройки Москвы Новостройки Подмосковья Новостройки Новой Москвы Готовые новостройки Новостройки на карте Акции от застройщиков Коммерческие помещения Продавцы и застройщики Панорамы новостроек Видеообзор новостроек Экспертиза новостроек Экология Москвы и Подмосковья Студии 1-комнатные 2-комнатные 3-комнатные Квартиры на карте Ипотечный калькулятор Семейная ипотека Военная ипотека Банки и программы Медиа Новости недвижимости Мнение эксперта Аналитика рынка Покупателю Экспертиза новостроек Эксперты и авторы О проекте Контакты Реклама на сайте Vk Youtube Telegram Дзен Машиноместа Апартаменты #траншевая ипотека #рассрочка IT-ипотека Квартиры со скидками до 40% Видео 360° новостроек Субсидированная застройщиком Rutube Поиск дома в Москве Программа реновации в Москве Новостройки премиум-класса Новостройки бизнес-класса Рассрочка Траншевая ипотека ГАЛС Дома и коттеджи Бизнес-центры Бизнес-центры в Москве Бизнес-центры рядом с метро Строящиеся бизнес-центры Бизнес-центры класса A Бизнес-центры класса B ЛСР
2-комн. квартира, 56.10 м2, 12 этаж
Сдан
19 017 900 
339 000 2
обновлено 17 декабря

Описание 2-комн. квартиры

Новостройка
Срок ГК
Дом сдан
Стадия строительства
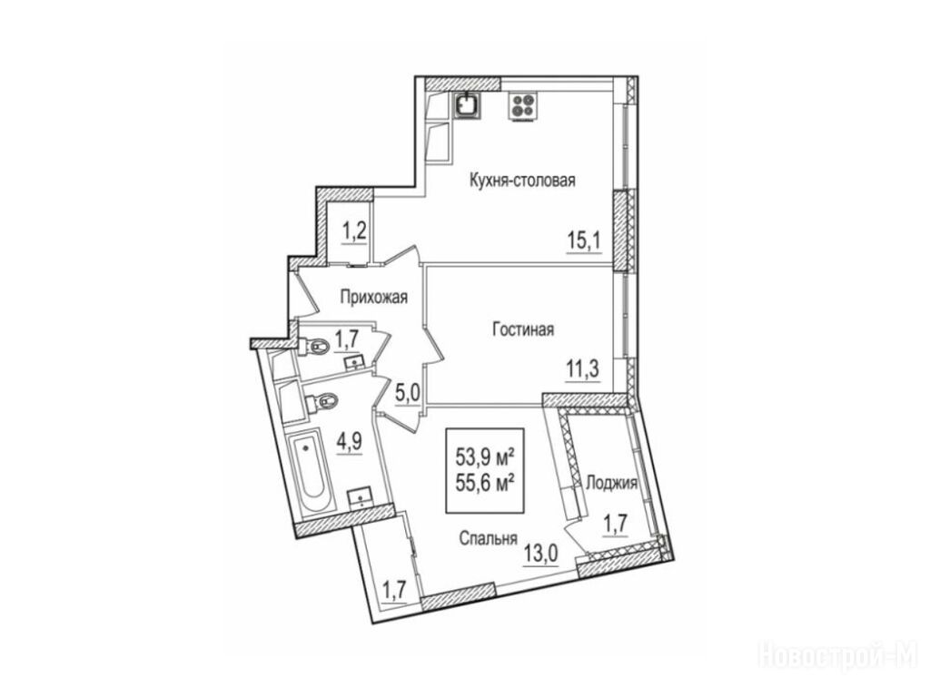
Общая площадь
56.10 м2
Жилая площадь
24.00 м2
Площадь кухни
15.10 м2
Высота потолков
3.00
Этаж
12 / 22
Балкон
лоджия
Отделка
нет
Тип санузла
2
Вид из окна
во двор

Расположение 2-комн. квартиры

Локация
Станция МЦД
Дом
15
Адрес
бульвар Андрея Тарковского, д. 10, секция 19

Способы покупки

Особенности

Продается двухкомнатная квартира в новостройке ЖК «Рассказово» по адресу Москва, ТиНАО, Новомосковский АО, Внуковское С/П, Рассказовка деревня, бульвар Андрея Тарковского, д. 10. Общая площадь квартиры - 56.1 кв. м. Тип проекта, по которому построен дом — Монолитно-кирпичный, компания-застройщик — Sezar Group (Сезар Групп). Стоимость квартиры — 19 017 900 руб. Способы оплаты можно уточнить у продавца. Более подробная информация по телефону.
Инфоцентр новостроек
Инфоцентр новостроек
+7 (499) 705-91-41
Время работы 9:00 — 21:00

Похожие квартиры в ЖК «Рассказово»

16 этаж
из 22 Дом сдан
Москва, Внуковское С/П
Рассказовка
10 мин.
15
Корпус
нет
Отделка
3.00 м
Потолки
ЖК «Рассказово»
19 130 100
Промсвязьбанк, Газпромбанк, СберБанк, Металлинвестбанк, ДОМ.РФ, АК БАРС, Банк Россия, Уралсиб, Московский Кредитный Банк, Совкомбанк, Абсолют Банк, Альфа-Банк, ВТБ
5.90%
Ставка
20.01%
Первый взнос
от 113 468 /мес.
Все варианты
Посмотреть все спецпредложения
Этаж 16/22 лоджия
НМ, ЖК «Рассказово»
Рассказовка
10 мин.
Сдан
Этаж 21/22 лоджия
НМ, ЖК «Рассказово»
Рассказовка
10 мин.
Сдан
Этаж 19/22 лоджия
НМ, ЖК «Рассказово»
Рассказовка
10 мин.
Сдан
Этаж 14/22 лоджия
НМ, ЖК «Рассказово»
Рассказовка
10 мин.
Сдан
Посмотреть 24 квартиры в ЖК «Рассказово»
Этаж 17/22 лоджия
НМ, ЖК «Рассказово»
Рассказовка
10 мин.
Сдан
Этаж 12/22 лоджия
НМ, ЖК «Рассказово»
Рассказовка
10 мин.
Сдан
Этаж 19/22 лоджия
НМ, ЖК «Рассказово»
Рассказовка
10 мин.
Сдан
Этаж 22/22 лоджия
НМ, ЖК «Рассказово»
Рассказовка
10 мин.
Сдан
Посмотреть 140 квартир в ЖК «Рассказово»
Этаж 12/22 лоджия
НМ, ЖК «Рассказово»
Рассказовка
10 мин.
Сдан
Этаж 15/22 лоджия
НМ, ЖК «Рассказово»
Рассказовка
10 мин.
Сдан
3-комн. квартира 74,90 м2 25 840 500
Этаж 22/22 лоджия
НМ, ЖК «Рассказово»
Рассказовка
10 мин.
Сдан
3-комн. квартира 75,00 м2 24 825 000
Этаж 18/22 лоджия
НМ, ЖК «Рассказово»
Рассказовка
10 мин.
Сдан
Посмотреть 159 квартир в ЖК «Рассказово»

Скидки и спецпредложения от застройщиков

ЖК «Рассказово» на карте

Выгодные предложения на новостройки

Самый полезный отзыв
К
20 ноября 2017
Оценка:
Транспортная доступность
Экология
Планировки
Готовность
Способы покупки
Скорость строительства
Внешний вид фасада
Заселились в комплекс, все устраивает! Воздух чистый, метро рядом, планировки удобные. Жаль только, что застройщик скидок не делает.
Показать все комментарии
Ответить
Полезный отзыв?
Самый новый отзыв
М
16 декабря
Оценка:
Соседи красавчики, на спортике все)) Пришлось соответствовать, второй месяц активных тренировок пошел
Ответить
Полезный отзыв?
Добавьте отзыв, заполнив личные данные, или сначала войдите на сайт, тогда информация будет автоматически взята из личного профиля.
Оценка*