Рейтинг@Mail.ru
Переверните экран
Новостройки Квартиры Ипотека Новостройки Москвы Новостройки Подмосковья Новостройки Новой Москвы Готовые новостройки Новостройки на карте Акции от застройщиков Коммерческие помещения Продавцы и застройщики Панорамы новостроек Видеообзор новостроек Экспертиза новостроек Экология Москвы и Подмосковья Студии 1-комнатные 2-комнатные 3-комнатные Квартиры на карте Ипотечный калькулятор Семейная ипотека Военная ипотека Банки и программы Медиа Новости недвижимости Мнение эксперта Аналитика рынка Покупателю Экспертиза новостроек Эксперты и авторы О проекте Контакты Реклама на сайте Vk Youtube Telegram Дзен Машиноместа Апартаменты #траншевая ипотека #рассрочка ИТ-ипотека Квартиры со скидками до 40% Видео 360° новостроек Субсидированная застройщиком Rutube Поиск дома в Москве Программа реновации в Москве Новостройки премиум-класса Новостройки бизнес-класса Рассрочка Траншевая ипотека Дома и коттеджи Бизнес-центры Бизнес-центры в Москве Бизнес-центры рядом с метро Строящиеся бизнес-центры Бизнес-центры класса A Бизнес-центры класса B Ипотека со ставкой 0,1%
Данное предложение на 04.04.2026 неактуально. Пожалуйста, ознакомьтесь с другими похожими предложениями в ЖК «Рассказово» .
2-комн. квартира, 55.60 м2, 12 этаж
Сдан
19 182 000 
345 000 2
обновлено 20 января

Описание 2-комн. квартиры

Новостройка
Срок ГК
Дом сдан
Стадия строительства
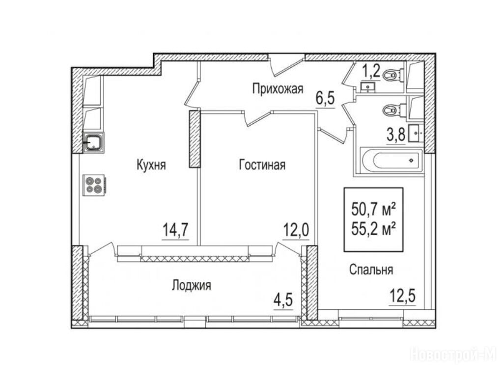
Общая площадь
55.60 м2
Жилая площадь
24.00 м2
Площадь кухни
14.70 м2
Высота потолков
3.00
Этаж
12 / 22
Балкон
лоджия
Отделка
нет
Тип санузла
2
Вид из окна
во двор

Расположение 2-комн. квартиры

Локация
Станция МЦД
Дом
15
Адрес
бульвар Андрея Тарковского, д. 10, секция 17

Способы покупки

Особенности

Продается двухкомнатная квартира в новостройке ЖК «Рассказово» по адресу Москва, ТиНАО, Новомосковский АО, Внуковское С/П, Рассказовка деревня, бульвар Андрея Тарковского, д. 10. Общая площадь квартиры - 55.6 кв. м. Тип проекта, по которому построен дом — Монолитно-кирпичный, компания-застройщик — Sezar Group (Сезар Групп). Стоимость квартиры — 19 182 000 руб. Способы оплаты можно уточнить у продавца. Более подробная информация по телефону.
Инфоцентр новостроек
Инфоцентр новостроек
+7 (499) 705-91-41
Время работы 9:00 — 21:00

Похожие квартиры в ЖК «Рассказово»

12 этаж
из 22 Дом сдан
Москва, Внуковское С/П
Рассказовка
10 мин.
15
Корпус
нет
Отделка
3.00 м
Потолки
ЖК «Рассказово»
20 238 400
Газпромбанк, СберБанк, ДОМ.РФ, Металлинвестбанк, Промсвязьбанк, АК БАРС, Банк Россия, Уралсиб, ВТБ, Альфа-Банк, Московский Кредитный Банк, Совкомбанк, Абсолют Банк
5.99%
Ставка
20.10%
Первый взнос
от 121 209 /мес.
Все варианты
12 этаж
из 22 Дом сдан
Москва, Внуковское С/П
Рассказовка
10 мин.
15
Корпус
нет
Отделка
3.00 м
Потолки
ЖК «Рассказово»
20 294 000
Газпромбанк, СберБанк, ДОМ.РФ, Металлинвестбанк, Промсвязьбанк, АК БАРС, Банк Россия, Уралсиб, ВТБ, Альфа-Банк, Московский Кредитный Банк, Совкомбанк, Абсолют Банк
5.99%
Ставка
20.10%
Первый взнос
от 121 542 /мес.
Все варианты
14 этаж
из 22 Дом сдан
Москва, Внуковское С/П
Рассказовка
10 мин.
15
Корпус
нет
Отделка
3.00 м
Потолки
ЖК «Рассказово»
20 460 800
Газпромбанк, СберБанк, ДОМ.РФ, Металлинвестбанк, Промсвязьбанк, АК БАРС, Банк Россия, Уралсиб, ВТБ, Альфа-Банк, Московский Кредитный Банк, Совкомбанк, Абсолют Банк
5.99%
Ставка
20.10%
Первый взнос
от 122 541 /мес.
Все варианты
15 этаж
из 22 Дом сдан
Москва, Внуковское С/П
Рассказовка
10 мин.
15
Корпус
нет
Отделка
3.00 м
Потолки
ЖК «Рассказово»
20 572 000
Газпромбанк, СберБанк, ДОМ.РФ, Металлинвестбанк, Промсвязьбанк, АК БАРС, Банк Россия, Уралсиб, ВТБ, Альфа-Банк, Московский Кредитный Банк, Совкомбанк, Абсолют Банк
5.99%
Ставка
20.10%
Первый взнос
от 123 207 /мес.
Все варианты
19 этаж
из 22 Дом сдан
Москва, Внуковское С/П
Рассказовка
10 мин.
15
Корпус
нет
Отделка
3.00 м
Потолки
ЖК «Рассказово»
20 572 000
Газпромбанк, СберБанк, ДОМ.РФ, Металлинвестбанк, Промсвязьбанк, АК БАРС, Банк Россия, Уралсиб, ВТБ, Альфа-Банк, Московский Кредитный Банк, Совкомбанк, Абсолют Банк
5.99%
Ставка
20.10%
Первый взнос
от 123 207 /мес.
Все варианты
21 этаж
из 22 Дом сдан
Москва, Внуковское С/П
Рассказовка
10 мин.
15
Корпус
нет
Отделка
3.00 м
Потолки
ЖК «Рассказово»
20 572 000
Газпромбанк, СберБанк, ДОМ.РФ, Металлинвестбанк, Промсвязьбанк, АК БАРС, Банк Россия, Уралсиб, ВТБ, Альфа-Банк, Московский Кредитный Банк, Совкомбанк, Абсолют Банк
5.99%
Ставка
20.10%
Первый взнос
от 123 207 /мес.
Все варианты
20 этаж
из 22 Дом сдан
Москва, Внуковское С/П
Рассказовка
10 мин.
15
Корпус
нет
Отделка
3.00 м
Потолки
ЖК «Рассказово»
21 128 000
Газпромбанк, СберБанк, ДОМ.РФ, Металлинвестбанк, Промсвязьбанк, АК БАРС, Банк Россия, Уралсиб, ВТБ, Альфа-Банк, Московский Кредитный Банк, Совкомбанк, Абсолют Банк
5.99%
Ставка
20.10%
Первый взнос
от 126 537 /мес.
Все варианты
Этаж 20/22
НМ, ЖК «Рассказово»
Рассказовка
10 мин.
Сдан
2-комн. квартира 49,50 м2 19 057 500
Этаж 17/22
НМ, ЖК «Рассказово»
Рассказовка
10 мин.
Сдан
2-комн. квартира 52,50 м2 19 425 000
Этаж 19/22
НМ, ЖК «Рассказово»
Рассказовка
10 мин.
Сдан
Этаж 18/22
НМ, ЖК «Рассказово»
Рассказовка
10 мин.
Сдан
2-комн. квартира 53,20 м2 20 482 000
Этаж 22/22
НМ, ЖК «Рассказово»
Рассказовка
10 мин.
Сдан
Посмотреть 145 квартир в ЖК «Рассказово»
3-комн. квартира 74,90 м2 26 215 000
Этаж 21/22
НМ, ЖК «Рассказово»
Рассказовка
10 мин.
Сдан
3-комн. квартира 75,00 м2 26 100 000
Этаж 18/22
НМ, ЖК «Рассказово»
Рассказовка
10 мин.
Сдан
3-комн. квартира 77,40 м2 25 774 200
Этаж 12/22
НМ, ЖК «Рассказово»
Рассказовка
10 мин.
Сдан
3-комн. квартира 77,50 м2 25 962 500
Этаж 14/22
НМ, ЖК «Рассказово»
Рассказовка
10 мин.
Сдан
Посмотреть 151 квартира в ЖК «Рассказово»

Скидки и спецпредложения от застройщиков

ЖК «Рассказово» на карте

Выгодные предложения на новостройки

Самый полезный отзыв
К
20 ноября 2017
Оценка:
Достоинства
Транспортная доступность
Экология
Планировки
Готовность
Способы покупки
Скорость строительства
Внешний вид фасада
Заселились в комплекс, все устраивает! Воздух чистый, метро рядом, планировки удобные. Жаль только, что застройщик скидок не делает.
Показать все комментарии
Ответить
Самый новый отзыв
П
28 марта
Оценка:
Разные дома немного отличаются друг от друга, но все выглядит как единый жк, у разных домов разное колличество этажей и это ок, есть благоустройство дворов.
Ответить

Оставить отзыв

Добавьте отзыв, заполнив личные данные, или сначала войдите на сайт, тогда информация будет автоматически взята из личного профиля.
Оценка*