Рейтинг@Mail.ru
Переверните экран
Новостройки Квартиры Ипотека Новостройки Москвы Новостройки Подмосковья Новостройки Новой Москвы Готовые новостройки Новостройки на карте Акции от застройщиков Коммерческие помещения Продавцы и застройщики Панорамы новостроек Видеообзор новостроек Экспертиза новостроек Экология Москвы и Подмосковья Студии 1-комнатные 2-комнатные 3-комнатные Квартиры на карте Ипотечный калькулятор Семейная ипотека Военная ипотека Банки и программы Медиа Новости недвижимости Мнение эксперта Аналитика рынка Покупателю Экспертиза новостроек Эксперты и авторы О проекте Контакты Реклама на сайте Vk Youtube Telegram Дзен Машиноместа Апартаменты #траншевая ипотека #рассрочка IT-ипотека Квартиры со скидками до 40% Видео 360° новостроек Субсидированная застройщиком Rutube Поиск дома в Москве Программа реновации в Москве Новостройки премиум-класса Новостройки бизнес-класса Рассрочка Траншевая ипотека ГАЛС Дома и коттеджи Бизнес-центры Бизнес-центры в Москве Бизнес-центры рядом с метро Строящиеся бизнес-центры Бизнес-центры класса A Бизнес-центры класса B ЛСР
2-комн. квартира, 66.30 м2, 10 этаж
Сдан
21 216 000 
320 000 2
обновлено 5 декабря

Описание 2-комн. квартиры

Новостройка
Срок ГК
Дом сдан
Стадия строительства
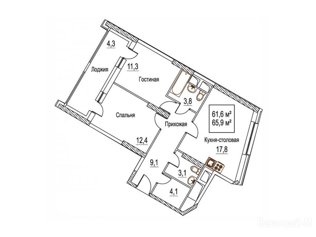
Общая площадь
66.30 м2
Жилая площадь
23.00 м2
Площадь кухни
17.80 м2
Высота потолков
3.00
Этаж
10 / 22
Балкон
лоджия
Отделка
нет
Тип санузла
2
Вид из окна
во двор

Расположение 2-комн. квартиры

Локация
Станция МЦД
Дом
15
Адрес
бульвар Андрея Тарковского, д. 10, секция 3

Способы покупки

Особенности

Продается двухкомнатная квартира в новостройке ЖК «Рассказово» по адресу Москва, ТиНАО, Новомосковский АО, Внуковское С/П, Рассказовка деревня, бульвар Андрея Тарковского, д. 10. Общая площадь квартиры - 66.3 кв. м. Тип проекта, по которому построен дом — Монолитно-кирпичный, компания-застройщик — Sezar Group (Сезар Групп). Стоимость квартиры — 21 216 000 руб. Способы оплаты можно уточнить у продавца. Более подробная информация по телефону.
Инфоцентр новостроек
Инфоцентр новостроек
+7 (499) 705-91-41
Время работы 9:00 — 21:00

Похожие квартиры в ЖК «Рассказово»

11 этаж
из 22 Дом сдан
Москва, Внуковское С/П
Рассказовка
10 мин.
15
Корпус
нет
Отделка
3.00 м
Потолки
ЖК «Рассказово»
21 547 500
Промсвязьбанк, Газпромбанк, СберБанк, Металлинвестбанк, ДОМ.РФ, АК БАРС, Банк Россия, Уралсиб, Московский Кредитный Банк, Совкомбанк, Абсолют Банк, Альфа-Банк, ВТБ
5.90%
Ставка
20.01%
Первый взнос
от 127 806 /мес.
Все варианты
16 этаж
из 22 Дом сдан
Москва, Внуковское С/П
Рассказовка
10 мин.
15
Корпус
нет
Отделка
3.00 м
Потолки
ЖК «Рассказово»
22 276 800
Промсвязьбанк, Газпромбанк, СберБанк, Металлинвестбанк, ДОМ.РФ, АК БАРС, Банк Россия, Уралсиб, Московский Кредитный Банк, Совкомбанк, Абсолют Банк, Альфа-Банк, ВТБ
5.90%
Ставка
20.01%
Первый взнос
от 132 132 /мес.
Все варианты
20 этаж
из 22 Дом сдан
Москва, Внуковское С/П
Рассказовка
10 мин.
15
Корпус
нет
Отделка
3.00 м
Потолки
ЖК «Рассказово»
22 873 500
Промсвязьбанк, Газпромбанк, СберБанк, Металлинвестбанк, ДОМ.РФ, АК БАРС, Банк Россия, Уралсиб, Московский Кредитный Банк, Совкомбанк, Абсолют Банк, Альфа-Банк, ВТБ
5.90%
Ставка
20.01%
Первый взнос
от 135 671 /мес.
Все варианты
21 этаж
из 22 Дом сдан
Москва, Внуковское С/П
Рассказовка
10 мин.
15
Корпус
нет
Отделка
3.00 м
Потолки
ЖК «Рассказово»
23 536 500
Промсвязьбанк, Газпромбанк, СберБанк, Металлинвестбанк, ДОМ.РФ, АК БАРС, Банк Россия, Уралсиб, Московский Кредитный Банк, Совкомбанк, Абсолют Банк, Альфа-Банк, ВТБ
5.90%
Ставка
20.01%
Первый взнос
от 139 604 /мес.
Все варианты
Посмотреть все спецпредложения
Этаж 16/22 лоджия
НМ, ЖК «Рассказово»
Рассказовка
10 мин.
Сдан
Этаж 21/22 лоджия
НМ, ЖК «Рассказово»
Рассказовка
10 мин.
Сдан
Этаж 19/22 лоджия
НМ, ЖК «Рассказово»
Рассказовка
10 мин.
Сдан
Этаж 14/22 лоджия
НМ, ЖК «Рассказово»
Рассказовка
10 мин.
Сдан
Посмотреть 24 квартиры в ЖК «Рассказово»
Этаж 17/22 лоджия
НМ, ЖК «Рассказово»
Рассказовка
10 мин.
Сдан
Этаж 12/22 лоджия
НМ, ЖК «Рассказово»
Рассказовка
10 мин.
Сдан
Этаж 19/22 лоджия
НМ, ЖК «Рассказово»
Рассказовка
10 мин.
Сдан
Этаж 22/22 лоджия
НМ, ЖК «Рассказово»
Рассказовка
10 мин.
Сдан
Посмотреть 140 квартир в ЖК «Рассказово»
Этаж 12/22 лоджия
НМ, ЖК «Рассказово»
Рассказовка
10 мин.
Сдан
Этаж 15/22 лоджия
НМ, ЖК «Рассказово»
Рассказовка
10 мин.
Сдан
3-комн. квартира 74,90 м2 25 840 500
Этаж 22/22 лоджия
НМ, ЖК «Рассказово»
Рассказовка
10 мин.
Сдан
3-комн. квартира 75,00 м2 24 825 000
Этаж 18/22 лоджия
НМ, ЖК «Рассказово»
Рассказовка
10 мин.
Сдан
Посмотреть 159 квартир в ЖК «Рассказово»

Скидки и спецпредложения от застройщиков

ЖК «Рассказово» на карте

Выгодные предложения на новостройки

Самый полезный отзыв
К
20 ноября 2017
Оценка:
Транспортная доступность
Экология
Планировки
Готовность
Способы покупки
Скорость строительства
Внешний вид фасада
Заселились в комплекс, все устраивает! Воздух чистый, метро рядом, планировки удобные. Жаль только, что застройщик скидок не делает.
Показать все комментарии
Ответить
Полезный отзыв?
Самый новый отзыв
V
04 декабря
Оценка:
все-таки локация решает) когжа у тебя из дома вид на лес совсем по-другому себя чувстуешь
Ответить
Полезный отзыв?
Добавьте отзыв, заполнив личные данные, или сначала войдите на сайт, тогда информация будет автоматически взята из личного профиля.
Оценка*