Рейтинг@Mail.ru
Переверните экран
Новостройки Квартиры Ипотека Новостройки Москвы Новостройки Подмосковья Новостройки Новой Москвы Готовые новостройки Новостройки на карте Акции от застройщиков Коммерческие помещения Продавцы и застройщики Панорамы новостроек Видеообзор новостроек Экспертиза новостроек Экология Москвы и Подмосковья Студии 1-комнатные 2-комнатные 3-комнатные Квартиры на карте Ипотечный калькулятор Семейная ипотека Военная ипотека Банки и программы Медиа Новости недвижимости Мнение эксперта Аналитика рынка Покупателю Экспертиза новостроек Эксперты и авторы О проекте Контакты Реклама на сайте Vk Youtube Telegram Дзен Машиноместа Апартаменты #траншевая ипотека #рассрочка ИТ-ипотека Квартиры со скидками до 40% Видео 360° новостроек Субсидированная застройщиком Rutube Поиск дома в Москве Программа реновации в Москве Новостройки премиум-класса Новостройки бизнес-класса Рассрочка Траншевая ипотека Дома и коттеджи Бизнес-центры Бизнес-центры в Москве Бизнес-центры рядом с метро Строящиеся бизнес-центры Бизнес-центры класса A Бизнес-центры класса B Ипотека со ставкой 0,1%
Данная квартира является лидером продаж среди двухкомнатных квартир в ЖК «Подольском квартале» по данным Росреестра
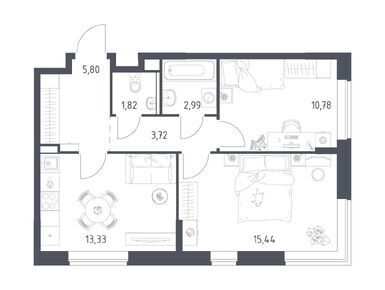
2-комн. квартира, 53.88 м2, 5 этаж
Срок сдачи 1 квартал 2026 года
13 322 800 
247 268 2
обновлено 18 марта

Описание 2-комн. квартиры

Срок ГК
1 квартал 2026 года
Общая площадь
53.88 м2
Жилая площадь
26.22 м2
Площадь кухни
13.33 м2
Этаж
5 / 9
Отделка
нет

Расположение 2-комн. квартиры

Локация
Метро
Станция МЦД
Дом
2
Адрес
ЖК «Подольские кварталы», корп. 2, секция 4

Способы покупки

Особенности

Продается двухкомнатная квартира в новостройке ЖК «Подольские кварталы» по адресу Москва, ТиНАО, Новомосковский АО, Щербинка, ЖК «Подольские кварталы», корп. 2. Общая площадь квартиры - 53.88 кв. м. Тип проекта, по которому построен дом — Монолитно-кирпичный, компания-застройщик — ООО СЗ «Рязанское 1», Группа «Самолет». Стоимость квартиры — 13 322 800 руб. Способы оплаты можно уточнить у продавца. Срок сдачи — 1 квартал 2026. Более подробная информация по телефону.

Похожие квартиры в ЖК «Подольском квартале»

3 этаж
из 9 1 квартал 2026
Москва, Новомосковский АО
Силикатная
15 мин.
2
Корпус
нет
Отделка
2.78 м
Потолки
ЖК «Подольские кварталы»
14 041 828
Уралсиб, Банк Санкт-Петербург, Металлинвестбанк, ВТБ, Альфа-Банк, Абсолют Банк
18.39%
Ставка
20.00%
Первый взнос
от 216 096 /мес.
Все варианты
5 этаж
из 9 1 квартал 2026
Москва, Новомосковский АО
Силикатная
15 мин.
2
Корпус
нет
Отделка
2.78 м
Потолки
ЖК «Подольские кварталы»
14 117 260
Уралсиб, Банк Санкт-Петербург, Металлинвестбанк, ВТБ, Альфа-Банк, Абсолют Банк
18.39%
Ставка
20.00%
Первый взнос
от 217 257 /мес.
Все варианты
6 этаж
из 9 1 квартал 2026
Москва, Новомосковский АО
Силикатная
15 мин.
2
Корпус
нет
Отделка
2.78 м
Потолки
ЖК «Подольские кварталы»
14 140 698
Уралсиб, Банк Санкт-Петербург, Металлинвестбанк, ВТБ, Альфа-Банк, Абсолют Банк
18.39%
Ставка
20.00%
Первый взнос
от 217 618 /мес.
Все варианты
Этаж 1/9
НМ, ЖК «Подольские кварталы»
Силикатная
15 мин.
Строится
Этаж 7/9
НМ, ЖК «Подольские кварталы»
Силикатная
15 мин.
Строится
Этаж 5/9
НМ, ЖК «Подольские кварталы»
Силикатная
15 мин.
Строится
Этаж 5/9
НМ, ЖК «Подольские кварталы»
Силикатная
15 мин.
Строится
Посмотреть 26 квартир в ЖК «Подольском квартале»
Этаж 5/12
НМ, ЖК «Подольские кварталы»
Силикатная
15 мин.
Строится
Этаж 9/9
НМ, ЖК «Подольские кварталы»
Силикатная
15 мин.
Строится
Этаж 7/9
НМ, ЖК «Подольские кварталы»
Силикатная
15 мин.
Строится
Этаж 3/12
НМ, ЖК «Подольские кварталы»
Силикатная
15 мин.
Строится
Посмотреть 94 квартиры в ЖК «Подольском квартале»
Этаж 3/9
НМ, ЖК «Подольские кварталы»
Силикатная
15 мин.
Строится
Этаж 7/9
НМ, ЖК «Подольские кварталы»
Силикатная
15 мин.
Строится
Этаж 5/9
НМ, ЖК «Подольские кварталы»
Силикатная
15 мин.
Строится
Этаж 5/9
НМ, ЖК «Подольские кварталы»
Силикатная
15 мин.
Строится
Посмотреть 26 квартир в ЖК «Подольском квартале»
Этаж 3/12
НМ, ЖК «Подольские кварталы»
Силикатная
15 мин.
Строится
Этаж 1/9
НМ, ЖК «Подольские кварталы»
Силикатная
15 мин.
Строится
Этаж 3/9
НМ, ЖК «Подольские кварталы»
Силикатная
15 мин.
Строится
Этаж 3/9
НМ, ЖК «Подольские кварталы»
Силикатная
15 мин.
Строится
Посмотреть 23 квартиры в ЖК «Подольском квартале»

Скидки и спецпредложения от застройщиков

ЖК «Подольские кварталы» на карте

Выгодные предложения на новостройки

Отзывы о ЖК «Подольском квартале»

Самый полезный отзыв
ИХ
10 февраля 2024
Оценка:
Комплекс однозначно стоит внимания, понятное дело, без личного автомобиля в таком районе будет много неудобств, но в остальном все классно. Квартиры, которые сделают будут соответствовать современным стандартам, с высокими потолками и увеличенным остеклением ну и практически все будут с отличным видом на Бутовский лесопарк.
Ответить
Самый новый отзыв
М
09 марта
Оценка:
инфраструктура пока слабовата магазины далековато и метро не близко. Зато цены привлекательные по сравнению со старыми районами москвы и прописка московская что важно для многих. плюс дома новые технологии строительства монолит кирпич надежно. отделка от застройщика позволяет сэкономить на ремонте. надеюсь что борьба за место для машины тут не будет проблемой, хотя сомневаюсь очень
Ответить

Оставить отзыв

Добавьте отзыв, заполнив личные данные, или сначала войдите на сайт, тогда информация будет автоматически взята из личного профиля.
Оценка*