Рейтинг@Mail.ru
Переверните экран
Новостройки Квартиры Ипотека Новостройки Москвы Новостройки Подмосковья Новостройки Новой Москвы Готовые новостройки Новостройки на карте Акции от застройщиков Коммерческие помещения Продавцы и застройщики Панорамы новостроек Видеообзор новостроек Экспертиза новостроек Экология Москвы и Подмосковья Студии 1-комнатные 2-комнатные 3-комнатные Квартиры на карте Ипотечный калькулятор Семейная ипотека Военная ипотека Банки и программы Медиа Новости недвижимости Мнение эксперта Аналитика рынка Покупателю Экспертиза новостроек Эксперты и авторы О проекте Контакты Реклама на сайте Vk Youtube Telegram Дзен Машиноместа Апартаменты #траншевая ипотека #рассрочка IT-ипотека Квартиры со скидками до 40% Видео 360° новостроек Субсидированная застройщиком Rutube Поиск дома в Москве Программа реновации в Москве Новостройки премиум-класса Новостройки бизнес-класса Рассрочка Траншевая ипотека ГАЛС Дома и коттеджи Бизнес-центры Бизнес-центры в Москве Бизнес-центры рядом с метро Строящиеся бизнес-центры Бизнес-центры класса A Бизнес-центры класса B ЛСР
Данная квартира является лидером продаж среди двухкомнатных квартир в ЖК «Отрадный» по данным Росреестра
2-комн. квартира, 46.60 м2, 9 этаж
Срок сдачи 2 квартал 2027 года
10 252 000 
220 000 2
обновлено 5 декабря

Описание 2-комн. квартиры

Новостройка
Застройщик
Срок ГК
2 квартал 2027 года
Стадия строительства
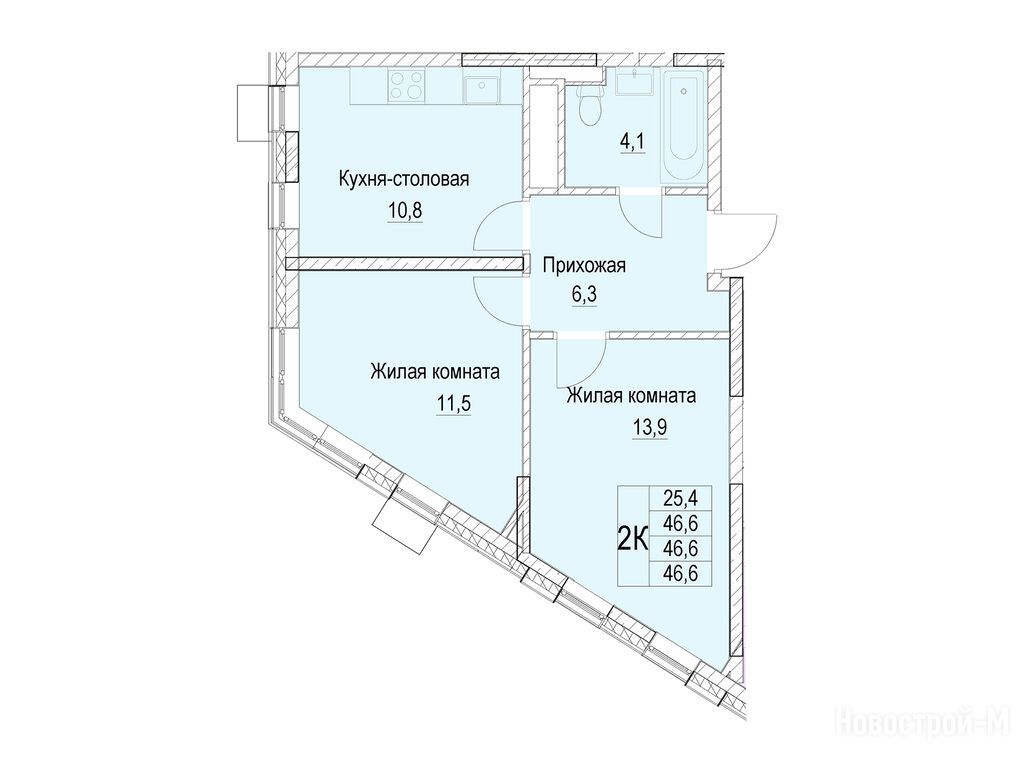
Общая площадь
46.60 м2
Жилая площадь
25.40 м2
Площадь кухни
10.80 м2
Этаж
9 / 10
Грузовой лифт
есть

Расположение 2-комн. квартиры

Ж/Д-станция
Мытищи
10 мин.
Дом
2
Адрес
ул. Академика Каргина, 1-й Щёлковский пр-д, Олимпийский пр-т, корп. 2, секция 3

Способы покупки

Особенности

Продается двухкомнатная квартира в новостройке ЖК «Отрадный» по адресу Московская область, Мытищи городской округ, Мытищи, ул. Академика Каргина, 1-й Щёлковский пр-д, Олимпийский пр-т, корп. 2. Общая площадь квартиры - 46.6 кв. м. Тип проекта, по которому построен дом — Монолитно-кирпичный, компания-застройщик — Инвест-Строй. Стоимость квартиры — 10 252 000 руб. Способы оплаты можно уточнить у продавца. Срок сдачи — 2 квартал 2027. Более подробная информация по телефону.
Инфоцентр новостроек
Инфоцентр новостроек
+7 (499) 705-91-41
Время работы 9:00 — 21:00

Похожие квартиры в ЖК «Отрадный»

8 этаж
из 10 2 квартал 2027
Московская область, Мытищи городской округ
Медведково
17 мин.
2
Корпус
нет данных
Отделка
2.76 м
Потолки
ЖК «Отрадный»
10 252 000
ВТБ, Газпромбанк, СберБанк, Совкомбанк, Банк Россия, ДОМ.РФ, Банк Санкт-Петербург, Абсолют Банк, МТС Банк, Альфа-Банк
6.00%
Ставка
40.10%
Первый взнос
от 61 466 /мес.
Все варианты
Посмотреть все спецпредложения
Этаж 10/25
МО, ЖК «Отрадный»
Медведково
17 мин.
Строится
Этаж 9/25
МО, ЖК «Отрадный»
Медведково
17 мин.
Строится
1-комн. квартира 28,40 м2 6 248 000
Этаж 20/22
МО, ЖК «Отрадный»
Медведково
17 мин.
Строится
1-комн. квартира 28,50 м2 7 410 000
Этаж 13/23
МО, ЖК «Отрадный»
Медведково
17 мин.
Строится
Посмотреть 35 квартир в ЖК «Отрадный»
2-комн. квартира 46,60 м2 10 252 000
Этаж 8/10
МО, ЖК «Отрадный»
Медведково
17 мин.
Строится
Этаж 6/10
МО, ЖК «Отрадный»
Медведково
17 мин.
Строится
2-комн. квартира 51,20 м2 13 312 000
Этаж 17/23
МО, ЖК «Отрадный»
Медведково
17 мин.
Строится
2-комн. квартира 52,00 м2 10 400 000
Этаж 22/22
МО, ЖК «Отрадный»
Медведково
17 мин.
Строится
Посмотреть 32 квартиры в ЖК «Отрадный»
3-комн. квартира 73,10 м2 16 082 000
Этаж 12/23
МО, ЖК «Отрадный»
Медведково
17 мин.
Строится
3-комн. квартира 75,10 м2 16 522 000
Этаж 18/23
МО, ЖК «Отрадный»
Медведково
17 мин.
Строится
3-комн. квартира 78,30 м2 15 268 500
Этаж 6/22
МО, ЖК «Отрадный»
Медведково
17 мин.
Строится
Этаж 3/25
МО, ЖК «Отрадный»
Медведково
17 мин.
Сдан
Посмотреть 14 квартир в ЖК «Отрадный»
Этаж 4/22
МО, ЖК «Отрадный»
Медведково
17 мин.
Строится
4-комн. квартира 95,80 м2 17 052 400
Этаж 3/22
МО, ЖК «Отрадный»
Медведково
17 мин.
Строится
Этаж 2/4
МО, ЖК «Отрадный»
Медведково
17 мин.
Строится
Посмотреть 5 квартир в ЖК «Отрадный»

Скидки и спецпредложения от застройщиков

ЖК «Отрадный» на карте

Выгодные предложения на новостройки

Отзывы о ЖК «Отрадный»

Самый полезный отзыв
Ф
27 июня 2018
Оценка:
Социальная инфраструктура
Расположение
Транспортная доступность
Работаю рядом с бабушкинской. Ищу квартиру недалеко. В Москве цены неподъемные, а в Мытищах, которые по сути находятся сразу за МКАДом, цены значительно ниже. 1 критерий – надежный застройщик, потому что не хочется потом остаться в дураках. Рассматриваю «UP квартал Скандинавский» и «Отрадный». В Скандинавском привлекает меньшая загруженность Волковского шоссе, в сравнении с Ярославским. ЖК выглядят достаточно презентабельно. Смущает пустое окружение ЖК – вокруг лес и дорога. И всё. Тут, конечно, Отрадный выглядит выигрышнее. И школы, и бассейн, и магазины. Увидел, что рядом со скандинавским расположено 2 огромных кладбища и ТЭЦ. Это самый огромный минус. Кто-то знает может быть, насколько это влияет на воздух? Насколько близко кладбища расположены?
Показать все комментарии
Ответить
Полезный отзыв?
Самый новый отзыв
ИВ
17 ноября
Оценка:
Планировки
Способы покупки
Как покупатель уже вижу, что в сданных корпусах студии и однокомнатных квартир практически уже не осталось, ну и мой выбор выглядит разумным в пользу именно этого проекта.
Ответить
Полезный отзыв?
Добавьте отзыв, заполнив личные данные, или сначала войдите на сайт, тогда информация будет автоматически взята из личного профиля.
Оценка*