Рейтинг@Mail.ru
Переверните экран
Новостройки Квартиры Ипотека Новостройки Москвы Новостройки Подмосковья Новостройки Новой Москвы Готовые новостройки Новостройки на карте Акции от застройщиков Коммерческие помещения Продавцы и застройщики Панорамы новостроек Видеообзор новостроек Экспертиза новостроек Экология Москвы и Подмосковья Студии 1-комнатные 2-комнатные 3-комнатные Квартиры на карте Ипотечный калькулятор Семейная ипотека Военная ипотека Банки и программы Медиа Новости недвижимости Мнение эксперта Аналитика рынка Покупателю Экспертиза новостроек Эксперты и авторы О проекте Контакты Реклама на сайте Vk Youtube Telegram Дзен Машиноместа Апартаменты #траншевая ипотека #рассрочка ИТ-ипотека Квартиры со скидками до 40% Видео 360° новостроек Субсидированная застройщиком Rutube Поиск дома в Москве Программа реновации в Москве Новостройки премиум-класса Новостройки бизнес-класса Рассрочка Траншевая ипотека Дома и коттеджи Бизнес-центры Бизнес-центры в Москве Бизнес-центры рядом с метро Строящиеся бизнес-центры Бизнес-центры класса A Бизнес-центры класса B Ипотека со ставкой 0,1%
Данная квартира является лидером продаж среди двухкомнатных квартир в ЖК «Отрадный» по данным Росреестра
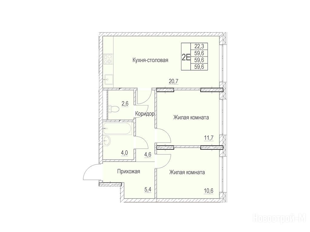
2-комн. квартира, 59.60 м2, 2 этаж
Срок сдачи 3 квартал 2027 года
12 516 000 
210 000 2
обновлено 20 марта

Описание 2-комн. квартиры

Новостройка
Застройщик
Срок ГК
3 квартал 2027 года
Стадия строительства
Общая площадь
59.60 м2
Жилая площадь
22.30 м2
Площадь кухни
20.70 м2
Этаж
2 / 22
Грузовой лифт
есть

Расположение 2-комн. квартиры

Ж/Д-станция
Мытищи
10 мин.
Дом
5
Адрес
ул. Академика Каргина, 1-й Щёлковский пр-д, Олимпийский пр-т, корп. 5, секция 4

Способы покупки

Особенности

Продается двухкомнатная квартира в новостройке ЖК «Отрадный» по адресу Московская область, Мытищи городской округ, Мытищи, ул. Академика Каргина, 1-й Щёлковский пр-д, Олимпийский пр-т, корп. 5. Общая площадь квартиры - 59.6 кв. м. Тип проекта, по которому построен дом — Монолитно-кирпичный, компания-застройщик — Инвест-Строй. Стоимость квартиры — 12 516 000 руб. Способы оплаты можно уточнить у продавца. Срок сдачи — 3 квартал 2027. Более подробная информация по телефону.
Инфоцентр новостроек
Инфоцентр новостроек
+7 (499) 705-91-41
Время работы 9:00 — 21:00
1-комн. квартира 28,40 м2 7 384 000
Этаж 4/4
МО, ЖК «Отрадный»
Медведково
15 мин.
Строится
1-комн. квартира 28,50 м2 7 410 000
Этаж 4/23
МО, ЖК «Отрадный»
Медведково
15 мин.
Строится
1-комн. квартира 28,60 м2 6 864 000
Этаж 17/22
МО, ЖК «Отрадный»
Медведково
15 мин.
Строится
1-комн. квартира 28,90 м2 7 514 000
Этаж 4/4
МО, ЖК «Отрадный»
Медведково
15 мин.
Строится
Посмотреть 67 квартир в ЖК «Отрадный»
2-комн. квартира 46,60 м2 11 184 000
Этаж 8/10
МО, ЖК «Отрадный»
Медведково
15 мин.
Строится
Этаж 5/22
МО, ЖК «Отрадный»
Медведково
15 мин.
Строится
Этаж 5/22
МО, ЖК «Отрадный»
Медведково
15 мин.
Строится
2-комн. квартира 51,20 м2 13 312 000
Этаж 17/23
МО, ЖК «Отрадный»
Медведково
15 мин.
Строится
Посмотреть 92 квартиры в ЖК «Отрадный»
Этаж 9/10
МО, ЖК «Отрадный»
Медведково
15 мин.
Строится
Этаж 2/4
МО, ЖК «Отрадный»
Медведково
15 мин.
Строится
3-комн. квартира 73,10 м2 16 082 000
Этаж 5/23
МО, ЖК «Отрадный»
Медведково
15 мин.
Строится
3-комн. квартира 75,10 м2 16 522 000
Этаж 17/23
МО, ЖК «Отрадный»
Медведково
15 мин.
Строится
Посмотреть 15 квартир в ЖК «Отрадный»
Этаж 4/22
МО, ЖК «Отрадный»
Медведково
15 мин.
Строится
Этаж 2/22
МО, ЖК «Отрадный»
Медведково
15 мин.
Строится
Этаж 4/4
МО, ЖК «Отрадный»
Медведково
15 мин.
Строится
Этаж 2/4
МО, ЖК «Отрадный»
Медведково
15 мин.
Строится
Посмотреть 7 квартир в ЖК «Отрадный»

Скидки и спецпредложения от застройщиков

ЖК «Отрадный» на карте

Выгодные предложения на новостройки

Отзывы о ЖК «Отрадный»

Самый полезный отзыв
Ф
27 июня 2018
Оценка:
Достоинства
Социальная инфраструктура
Расположение
Недостатки
Транспортная доступность
Работаю рядом с бабушкинской. Ищу квартиру недалеко. В Москве цены неподъемные, а в Мытищах, которые по сути находятся сразу за МКАДом, цены значительно ниже. 1 критерий – надежный застройщик, потому что не хочется потом остаться в дураках. Рассматриваю «UP квартал Скандинавский» и «Отрадный». В Скандинавском привлекает меньшая загруженность Волковского шоссе, в сравнении с Ярославским. ЖК выглядят достаточно презентабельно. Смущает пустое окружение ЖК – вокруг лес и дорога. И всё. Тут, конечно, Отрадный выглядит выигрышнее. И школы, и бассейн, и магазины. Увидел, что рядом со скандинавским расположено 2 огромных кладбища и ТЭЦ. Это самый огромный минус. Кто-то знает может быть, насколько это влияет на воздух? Насколько близко кладбища расположены?
Показать все комментарии
Ответить
Самый новый отзыв
ИВ
17 ноября 2025
Оценка:
Достоинства
Планировки
Способы покупки
Как покупатель уже вижу, что в сданных корпусах студии и однокомнатных квартир практически уже не осталось, ну и мой выбор выглядит разумным в пользу именно этого проекта.
Ответить

Оставить отзыв

Добавьте отзыв, заполнив личные данные, или сначала войдите на сайт, тогда информация будет автоматически взята из личного профиля.
Оценка*