Рейтинг@Mail.ru
Переверните экран
Новостройки Квартиры Ипотека Новостройки Москвы Новостройки Подмосковья Новостройки Новой Москвы Готовые новостройки Новостройки на карте Акции от застройщиков Коммерческие помещения Продавцы и застройщики Панорамы новостроек Видеообзор новостроек Экспертиза новостроек Экология Москвы и Подмосковья Студии 1-комнатные 2-комнатные 3-комнатные Квартиры на карте Ипотечный калькулятор Семейная ипотека Военная ипотека Банки и программы Медиа Новости недвижимости Мнение эксперта Аналитика рынка Покупателю Экспертиза новостроек Эксперты и авторы О проекте Контакты Реклама на сайте Vk Youtube Telegram Дзен Машиноместа Апартаменты #траншевая ипотека #рассрочка ИТ-ипотека Квартиры со скидками до 40% Видео 360° новостроек Субсидированная застройщиком Rutube Поиск дома в Москве Программа реновации в Москве Новостройки премиум-класса Новостройки бизнес-класса Рассрочка Траншевая ипотека Дома и коттеджи Коттеджные поселки в Новой Москве Готовые коттеджные поселки Строящиеся коттеджные поселки Коттеджные поселки в лесу Коттеджные поселки у водоема Коттеджные поселки в ипотеку Бизнес-центры Коттеджи Ипотека со ставкой 0,1%
2-комн. квартира, 59.10 м2, 11 этаж
Срок сдачи 1 квартал 2029 года
34 833 540 
589 400 2
обновлено 16 апреля

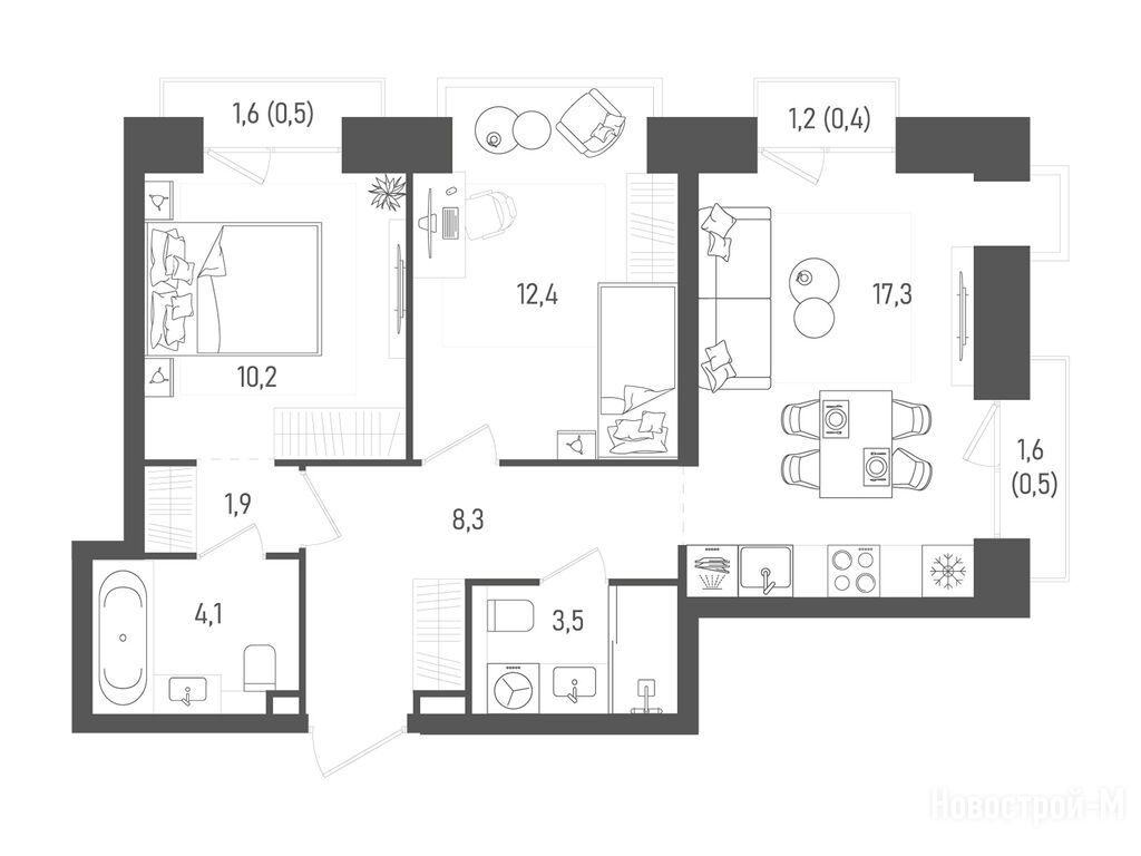
Описание 2-комн. квартиры

Новостройка
Застройщик
Срок ГК
1 квартал 2029 года
Стадия строительства
котлован/фундамент
Общая площадь
59.10 м2
Жилая площадь
22.60 м2
Площадь кухни
17.30 м2
Этаж
11 / 27
Отделка
нет

Расположение 2-комн. квартиры

Локация
Метро
Дом
1
Адрес
ул. Обручева, 27, секция 1

Особенности

Продается двухкомнатная квартира в новостройке ЖК «Татум» по адресу Москва, ЮЗАО, Обручевский, ул. Обручева, 27. Общая площадь квартиры - 59.1 кв. м. Тип проекта, по которому построен дом — Монолитно-кирпичный, компания-застройщик — FORMA (Форма). Стоимость квартиры — 34 833 540 руб. Способы оплаты можно уточнить у продавца. Срок сдачи — 1 квартал 2029. Более подробная информация по телефону.
FORMA (Форма)
FORMA (Форма)
Сданных 2
|
Строящихся 13
Время работы 09:00 — 21:00
Выбирайте квартиру в ЖК «Татум» по ценам от застройщика
студия 30,30 м2 20 337 360
Этаж 3/27
Москва, ЖК «Татум»
Калужская
6 мин.
Строится
Этаж 4/27
Москва, ЖК «Татум»
Калужская
6 мин.
Строится
1-комн. квартира 34,00 м2 24 507 200
Этаж 12/27
Москва, ЖК «Татум»
Калужская
6 мин.
Строится
1-комн. квартира 34,10 м2 24 950 970
Этаж 15/27
Москва, ЖК «Татум»
Калужская
6 мин.
Строится
1-комн. квартира 34,50 м2 23 767 050
Этаж 5/27
Москва, ЖК «Татум»
Калужская
6 мин.
Строится
1-комн. квартира 35,50 м2 22 227 260
Этаж 15/27
Москва, ЖК «Татум»
Калужская
6 мин.
Строится
Посмотреть 41 квартира в ЖК «Татум»
Этаж 11/27
Москва, ЖК «Татум»
Калужская
6 мин.
Строится
2-комн. квартира 63,00 м2 37 144 800
Этаж 12/27
Москва, ЖК «Татум»
Калужская
6 мин.
Строится
2-комн. квартира 64,40 м2 37 764 160
Этаж 11/27
Москва, ЖК «Татум»
Калужская
6 мин.
Строится
2-комн. квартира 65,10 м2 35 941 710
Этаж 3/27
Москва, ЖК «Татум»
Калужская
6 мин.
Строится
Посмотреть 23 квартиры в ЖК «Татум»
3-комн. квартира 88,00 м2 44 349 888
Этаж 19/27
Москва, ЖК «Татум»
Калужская
6 мин.
Строится
3-комн. квартира 88,30 м2 44 042 627
Этаж 15/27
Москва, ЖК «Татум»
Калужская
6 мин.
Строится
3-комн. квартира 94,10 м2 51 849 100
Этаж 17/27
Москва, ЖК «Татум»
Калужская
6 мин.
Строится
3-комн. квартира 94,70 м2 43 701 398
Этаж 11/27
Москва, ЖК «Татум»
Калужская
6 мин.
Строится
Посмотреть 17 квартир в ЖК «Татум»

Скидки и спецпредложения от застройщиков

ЖК «Татум» на карте

Выгодные предложения на новостройки

Отзывы о ЖК «Татум»

Самый полезный отзыв
А
06 апреля
Оценка:
Достоинства
Транспортная доступность
Экология
Планировки
Татум понравился больше всего из всех проектов Формы, высокие потолки, окна крутые, в каждой квартире их “джамбо окна”. Наконец то паркинг с нормальным соотношением - тут около 0,5, это вообще ко всем застроям относиться, есть какая то тенденция на уменьшение парк мест. С сужением здания вверх интересная задумка, не видел такого нигде в Москве.
Ответить
Самый новый отзыв
ЖГ
14 апреля
Оценка:
Достоинства
Транспортная доступность
Социальная инфраструктура
Скорость строительства
Расположение
Недостатки
Готовность
Если смотреть на проект глазами семьи, логика тут понятная, условия комфортными обещают быть. Закрытый двор без машин, игровые зоны по возрастам, детская комната, коворкинг рядом с игровой, комнаты матери и ребёнка. Мне нравится, в целом, есть прям конкретные решения. Другое дело, что всё это хочется потом увидеть не только на сайте, но и в готовом доме))
Ответить

Оставить отзыв

Добавьте отзыв, заполнив личные данные, или сначала войдите на сайт, тогда информация будет автоматически взята из личного профиля.
Оценка*