Рейтинг@Mail.ru
Переверните экран
Новостройки Квартиры Ипотека Новостройки Москвы Новостройки Подмосковья Новостройки Новой Москвы Готовые новостройки Новостройки на карте Акции от застройщиков Коммерческие помещения Продавцы и застройщики Панорамы новостроек Видеообзор новостроек Экспертиза новостроек Экология Москвы и Подмосковья Студии 1-комнатные 2-комнатные 3-комнатные Квартиры на карте Ипотечный калькулятор Семейная ипотека Военная ипотека Банки и программы Медиа Новости недвижимости Мнение эксперта Аналитика рынка Покупателю Экспертиза новостроек Эксперты и авторы О проекте Контакты Реклама на сайте Vk Youtube Telegram Дзен Машиноместа Апартаменты #траншевая ипотека #рассрочка IT-ипотека Квартиры со скидками до 40% Видео 360° новостроек Субсидированная застройщиком Rutube Поиск дома в Москве Программа реновации в Москве Новостройки премиум-класса Новостройки бизнес-класса Рассрочка Траншевая ипотека ГАЛС Дома и коттеджи Бизнес-центры Бизнес-центры в Москве Бизнес-центры рядом с метро Строящиеся бизнес-центры Бизнес-центры класса A Бизнес-центры класса B ЛСР
2-комн. квартира, 60.70 м2, 17 этаж
Сдан
32 242 680 
37 173 913
531 181 2
обновлено 5 декабря

Описание 2-комн. квартиры

Застройщик
Срок ГК
Дом сдан
Стадия строительства
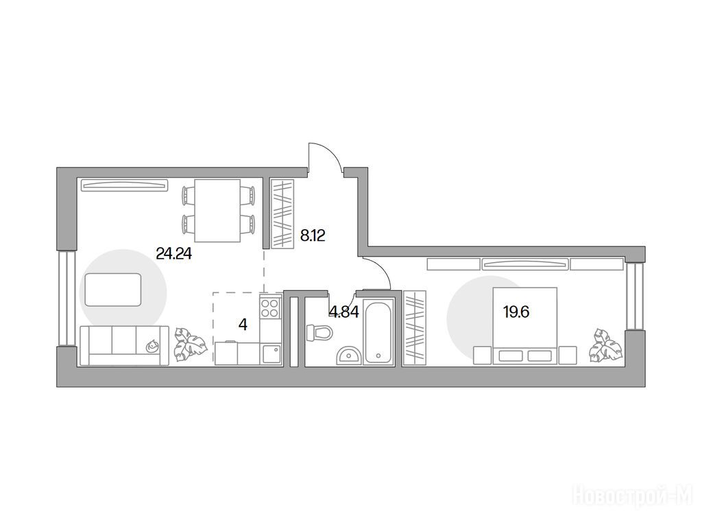
Общая площадь
60.70 м2
Жилая площадь
19.60 м2
Площадь кухни
28.24 м2
Этаж
17 / 19
Отделка
нет

Расположение 2-комн. квартиры

Локация
Метро
Ж/Д-станция
Дом
1
Адрес
Малая Почтовая, 12, стр. 2, секция 8

Способы покупки

Особенности

Продается двухкомнатная квартира в новостройке ЖК MYPRIORITY Басманный (Май Приорити Басманный) по адресу Москва, ЦАО, Басманный, Малая Почтовая, 12, стр. 2. Общая площадь квартиры - 60.7 кв. м. Тип проекта, по которому построен дом — Монолитно-кирпичный, компания-застройщик — ГК «Гранель», ООО «СЗ»Гранель Индустрия». Стоимость квартиры — 32 242 680 руб. Способы оплаты можно уточнить у продавца. Более подробная информация по телефону.
+7 (499) 705-91-41
Время работы 9:00 — 21:00
Посмотреть все спецпредложения
2-комн. квартира 59,30 м2 31 182 861
Этаж 13/19
Москва, ЖК MYPRIORITY Басманный (Май Приорити Басманный)
Бауманская
9 мин.
Сдан
Этаж 16/16
Москва, ЖК MYPRIORITY Басманный (Май Приорити Басманный)
Бауманская
9 мин.
Сдан
2-комн. квартира 59,70 м2 30 795 383
Этаж 13/16
Москва, ЖК MYPRIORITY Басманный (Май Приорити Басманный)
Бауманская
9 мин.
Сдан
2-комн. квартира 61,10 м2 32 553 999
Этаж 13/18 балкон
Москва, ЖК MYPRIORITY Басманный (Май Приорити Басманный)
Бауманская
9 мин.
Сдан
Посмотреть 11 квартир в ЖК MYPRIORITY Басманный (Май Приорити Басманный)
3-комн. квартира 76,20 м2 44 053 329
Этаж 6/11
Москва, ЖК MYPRIORITY Басманный (Май Приорити Басманный)
Бауманская
9 мин.
Сдан
3-комн. квартира 87,60 м2 47 202 333
Этаж 11/18
Москва, ЖК MYPRIORITY Басманный (Май Приорити Басманный)
Бауманская
9 мин.
Сдан

Скидки и спецпредложения от застройщиков

ЖК MYPRIORITY Басманный (Май Приорити Басманный) на карте

Выгодные предложения на новостройки

Отзывы о ЖК MYPRIORITY Басманный (Май Приорити Басманный)

Самый полезный отзыв
А
20 сентября 2021
Оценка:
Жк однозначно выбивается из общей массы. Стильный, продуманный, как я люблю
Ответить
Полезный отзыв?
Самый новый отзыв
АБ
09 апреля
Оценка:
Планировки
Способы покупки
Уютное внутреннее пространство, светлые помещения и удобные планировки, всё выглядит продуманно. Конечно, у меня возникли вопросы относительно отделки: здесь ее вообще не предусмотрено. Это может быть как плюсом, так и минусом. С одной стороны, можно реализовать свои идеи. С другой - придется потратить время и силы на ремонты.
Ответить
Полезный отзыв?
Добавьте отзыв, заполнив личные данные, или сначала войдите на сайт, тогда информация будет автоматически взята из личного профиля.
Оценка*