Рейтинг@Mail.ru
Переверните экран
Новостройки Квартиры Ипотека Новостройки Москвы Новостройки Подмосковья Новостройки Новой Москвы Готовые новостройки Новостройки на карте Акции от застройщиков Коммерческие помещения Продавцы и застройщики Панорамы новостроек Видеообзор новостроек Экспертиза новостроек Экология Москвы и Подмосковья Студии 1-комнатные 2-комнатные 3-комнатные Квартиры на карте Ипотечный калькулятор Семейная ипотека Военная ипотека Банки и программы Медиа Новости недвижимости Мнение эксперта Аналитика рынка Покупателю Экспертиза новостроек Эксперты и авторы О проекте Контакты Реклама на сайте Vk Youtube Telegram Дзен Машиноместа Апартаменты #траншевая ипотека #рассрочка IT-ипотека Квартиры со скидками до 40% Видео 360° новостроек Субсидированная застройщиком Rutube Поиск дома в Москве Программа реновации в Москве Новостройки премиум-класса Новостройки бизнес-класса Рассрочка Траншевая ипотека ГАЛС Дома и коттеджи Бизнес-центры Бизнес-центры в Москве Бизнес-центры рядом с метро Строящиеся бизнес-центры Бизнес-центры класса A Бизнес-центры класса B ЛСР
Данная квартира является лидером продаж среди двухкомнатных квартир в ЖК «Квартал Западный» по данным Росреестра
2-комн. квартира, 60.02 м2, 13 этаж
Срок сдачи 1 квартал 2026 года
17 604 541 
293 311 2
обновлено 5 декабря

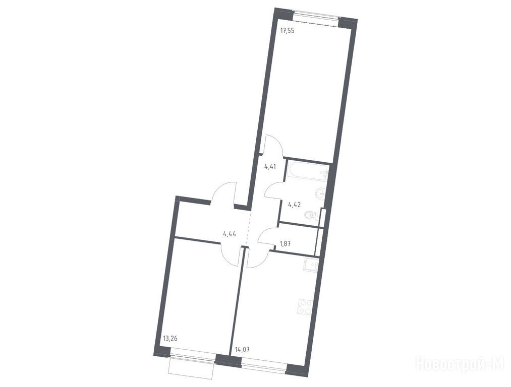
Описание 2-комн. квартиры

Срок ГК
1 квартал 2026 года
Общая площадь
60.02 м2
Жилая площадь
30.81 м2
Площадь кухни
14.07 м2
Высота потолков
3.00
Этаж
13 / 14
Отделка
чистовая
Тип санузла
совмещенный
Грузовой лифт
есть

Расположение 2-комн. квартиры

Локация
Метро
Пыхтино
18 мин.
Станция МЦД
Дом
10
Адрес
ЖК «Квартал Западный», корп. 10

Способы покупки

Особенности

Продается двухкомнатная квартира в новостройке ЖК «Квартал Западный» по адресу Москва, ТиНАО, Новомосковский АО, Марушкинское С/П, ЖК «Квартал Западный», корп. 10. Общая площадь квартиры - 60.02 кв. м. Тип проекта, по которому построен дом — Монолитно-кирпичный, компания-застройщик — ООО CЗ «Самолет-Квартал Западный», Группа «Самолет». Стоимость квартиры — 17 604 541 руб. Способы оплаты можно уточнить у продавца. Срок сдачи — 1 квартал 2026. Более подробная информация по телефону.

Похожие квартиры в ЖК «Квартал Западный»

6 этаж
из 14 1 квартал 2026
Москва, Новомосковский АО
Санино
7 мин.
10
Корпус
чистовая
Отделка
2.95 м
Потолки
ЖК «Квартал Западный»
17 378 026
ВТБ, Альфа-Банк, СберБанк, Совкомбанк, Россельхозбанк, ДОМ.РФ, Уралсиб
6.00%
Ставка
40.10%
Первый взнос
от 104 190 /мес.
Все варианты
11 этаж
из 14 1 квартал 2026
Москва, Новомосковский АО
Санино
7 мин.
10
Корпус
чистовая
Отделка
2.95 м
Потолки
ЖК «Квартал Западный»
17 549 683
ВТБ, Альфа-Банк, СберБанк, Совкомбанк, Россельхозбанк, ДОМ.РФ, Уралсиб
6.00%
Ставка
40.10%
Первый взнос
от 105 219 /мес.
Все варианты
Посмотреть все спецпредложения
студия 18,73 м2 7 015 959
Этаж 1/7
НМ, ЖК «Квартал Западный»
Санино
7 мин.
Строится
студия 22,59 м2 10 074 035
Этаж 14/14
НМ, ЖК «Квартал Западный»
Санино
7 мин.
Строится
студия 22,62 м2 8 477 931
Этаж 8/14
НМ, ЖК «Квартал Западный»
Санино
7 мин.
Строится
студия 22,80 м2 8 498 540
Этаж 13/14
НМ, ЖК «Квартал Западный»
Санино
7 мин.
Строится
Посмотреть 34 квартиры в ЖК «Квартал Западный»
1-комн. квартира 32,24 м2 10 843 032
Этаж 5/12
НМ, ЖК «Квартал Западный»
Санино
7 мин.
Строится
1-комн. квартира 32,25 м2 9 302 061
Этаж 14/14
НМ, ЖК «Квартал Западный»
Санино
7 мин.
Строится
1-комн. квартира 32,54 м2 10 900 859
Этаж 5/12
НМ, ЖК «Квартал Западный»
Санино
7 мин.
Строится
1-комн. квартира 32,66 м2 9 359 442
Этаж 5/14
НМ, ЖК «Квартал Западный»
Санино
7 мин.
Строится
Посмотреть 225 квартир в ЖК «Квартал Западный»
2-комн. квартира 49,63 м2 15 299 744
Этаж 5/12
НМ, ЖК «Квартал Западный»
Санино
7 мин.
Строится
2-комн. квартира 51,27 м2 15 429 179
Этаж 5/12 балкон
НМ, ЖК «Квартал Западный»
Санино
7 мин.
Строится
2-комн. квартира 51,31 м2 17 110 041
Этаж 5/14 балкон
НМ, ЖК «Квартал Западный»
Санино
7 мин.
Строится
2-комн. квартира 52,19 м2 15 191 397
Этаж 7/12
НМ, ЖК «Квартал Западный»
Санино
7 мин.
Строится
Посмотреть 42 квартиры в ЖК «Квартал Западный»
3-комн. квартира 74,42 м2 18 401 089
Этаж 3/14 балкон
НМ, ЖК «Квартал Западный»
Санино
7 мин.
Строится
3-комн. квартира 75,29 м2 16 562 595
Этаж 5/12
НМ, ЖК «Квартал Западный»
Санино
7 мин.
Строится
3-комн. квартира 76,54 м2 18 954 136
Этаж 5/14
НМ, ЖК «Квартал Западный»
Санино
7 мин.
Строится
3-комн. квартира 77,28 м2 17 620 767
Этаж 3/14
НМ, ЖК «Квартал Западный»
Санино
7 мин.
Строится
Посмотреть 14 квартир в ЖК «Квартал Западный»

Скидки и спецпредложения от застройщиков

ЖК «Квартал Западный» на карте

Выгодные предложения на новостройки

Отзывы о ЖК «Квартал Западный»

Самый полезный отзыв
ЕХ
24 января 2023
Оценка:
Экология
Социальная инфраструктура
Планировки
Двор, окружение
Здорово. Очень нравится район,там действительно много свежего воздуха и зелени.Да и все что нужно для семей есть.Добавлю в свой список выбора.
Ответить
Полезный отзыв?
Самый новый отзыв
ВС
03 декабря
Оценка:
Больше всего радует, что в проекте есть просторные квартиры с панорамными окнами и балконами, с которых видно набережную. Это мечта для тех, кто любит воздух и природу. Транспортная доступность не очень хорошая, от этого никуда не уйдешь и этого нельзя не отметить, метро далеко, до центра ехать долго, хотя вариантов - как доехать- достаточно
Ответить
Полезный отзыв?
Добавьте отзыв, заполнив личные данные, или сначала войдите на сайт, тогда информация будет автоматически взята из личного профиля.
Оценка*