Рейтинг@Mail.ru
Переверните экран
Новостройки Квартиры Ипотека Новостройки Москвы Новостройки Подмосковья Новостройки Новой Москвы Готовые новостройки Новостройки на карте Акции от застройщиков Коммерческие помещения Продавцы и застройщики Панорамы новостроек Видеообзор новостроек Экспертиза новостроек Экология Москвы и Подмосковья Студии 1-комнатные 2-комнатные 3-комнатные Квартиры на карте Ипотечный калькулятор Семейная ипотека Военная ипотека Банки и программы Медиа Новости недвижимости Мнение эксперта Аналитика рынка Покупателю Экспертиза новостроек Эксперты и авторы О проекте Контакты Реклама на сайте Vk Youtube Telegram Дзен Машиноместа Апартаменты #траншевая ипотека #рассрочка ИТ-ипотека Квартиры со скидками до 40% Видео 360° новостроек Субсидированная застройщиком Rutube Поиск дома в Москве Программа реновации в Москве Новостройки премиум-класса Новостройки бизнес-класса Рассрочка Траншевая ипотека Дома и коттеджи Бизнес-центры Бизнес-центры в Москве Бизнес-центры рядом с метро Строящиеся бизнес-центры Бизнес-центры класса A Бизнес-центры класса B Ипотека со ставкой 0,1%
Данная квартира является лидером продаж среди двухкомнатных квартир в ЖК «Космический квартал» по данным Росреестра
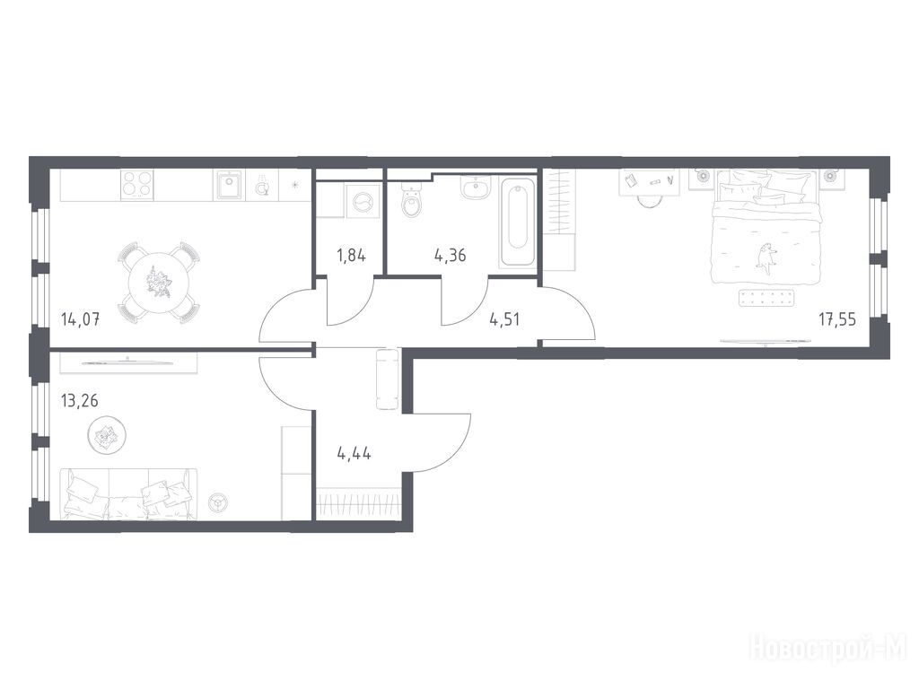
2-комн. квартира, 60.03 м2, 14 этаж
Срок сдачи 4 квартал 2026 года
16 776 517 
279 469 2
обновлено 29 марта

Описание 2-комн. квартиры

Срок ГК
4 квартал 2026 года
Стадия строительства
Тип проекта
монолит, железобетон
Общая площадь
60.03 м2
Жилая площадь
30.81 м2
Площадь кухни
14.07 м2
Этаж
14 / 17
Отделка
чистовая
Грузовой лифт
есть

Расположение 2-комн. квартиры

Ж/Д-станция
Дом
1
Адрес
ул. Тихонравова, ул. Лесная, ул. Советская, д. 1, секция 6

Способы покупки

Особенности

Продается двухкомнатная квартира в новостройке ЖК «Космический квартал» по адресу Московская область, Королев городской округ, Королев, ул. Тихонравова, ул. Лесная, ул. Советская, д. 1. Общая площадь квартиры - 60.03 кв. м. Тип проекта, по которому построен дом — Монолит,Железобетон, компания-застройщик — Группа «Самолет», ООО СЗ Самолет-Королев. Стоимость квартиры — 16 776 517 руб. Способы оплаты можно уточнить у продавца. Срок сдачи — 4 квартал 2026. Более подробная информация по телефону.
Инфоцентр новостроек
Инфоцентр новостроек
Время работы 9:00 — 21:00
Выбирайте квартиру в ЖК «Космический квартал» по ценам от застройщика

Похожие квартиры в ЖК «Космический квартал»

10 этаж
из 17 4 квартал 2026
Московская область, Королев городской округ
Болшево (ж/д)
22 мин.
1
Корпус
чистовая
Отделка
2.77 м
Потолки
ЖК «Космический квартал»
16 656 937
ДОМ.РФ, Уралсиб
6.00%
Ставка
20.01%
Первый взнос
от 99 867 /мес.
Все варианты
17 этаж
из 17 4 квартал 2026
Московская область, Королев городской округ
Болшево (ж/д)
22 мин.
1
Корпус
чистовая
Отделка
2.77 м
Потолки
ЖК «Космический квартал»
16 854 496
ДОМ.РФ, Уралсиб
6.00%
Ставка
20.01%
Первый взнос
от 101 051 /мес.
Все варианты
15 этаж
из 17 4 квартал 2026
Московская область, Королев городской округ
Болшево (ж/д)
22 мин.
1
Корпус
чистовая
Отделка
2.77 м
Потолки
ЖК «Космический квартал»
17 300 699
ДОМ.РФ, Уралсиб
6.00%
Ставка
20.01%
Первый взнос
от 103 726 /мес.
Все варианты
Этаж 2/12
МО, ЖК «Космический квартал»
Болшево (ж/д)
22 мин.
Строится
Этаж 11/12
МО, ЖК «Космический квартал»
Болшево (ж/д)
22 мин.
Строится
Этаж 8/12
МО, ЖК «Космический квартал»
Болшево (ж/д)
22 мин.
Строится
Этаж 5/12
МО, ЖК «Космический квартал»
Болшево (ж/д)
22 мин.
Строится
Посмотреть 13 квартир в ЖК «Космический квартал»
Этаж 10/17
МО, ЖК «Космический квартал»
Болшево (ж/д)
22 мин.
Строится
Этаж 9/17
МО, ЖК «Космический квартал»
Болшево (ж/д)
22 мин.
Строится
Этаж 8/17
МО, ЖК «Космический квартал»
Болшево (ж/д)
22 мин.
Строится
Этаж 5/12
МО, ЖК «Космический квартал»
Болшево (ж/д)
22 мин.
Строится
Посмотреть 73 квартиры в ЖК «Космический квартал»
Этаж 2/12
МО, ЖК «Космический квартал»
Болшево (ж/д)
22 мин.
Строится
Этаж 5/12
МО, ЖК «Космический квартал»
Болшево (ж/д)
22 мин.
Строится
Этаж 7/12
МО, ЖК «Космический квартал»
Болшево (ж/д)
22 мин.
Строится
Этаж 16/17
МО, ЖК «Космический квартал»
Болшево (ж/д)
22 мин.
Строится
Посмотреть 18 квартир в ЖК «Космический квартал»
Этаж 4/12
МО, ЖК «Космический квартал»
Болшево (ж/д)
22 мин.
Строится
Этаж 5/12
МО, ЖК «Космический квартал»
Болшево (ж/д)
22 мин.
Строится
Этаж 3/12
МО, ЖК «Космический квартал»
Болшево (ж/д)
22 мин.
Строится
Посмотреть 5 квартир в ЖК «Космический квартал»

Скидки и спецпредложения от застройщиков

ЖК «Космический квартал» на карте

Выгодные предложения на новостройки

Отзывы о ЖК «Космический квартал»

Самый полезный отзыв
ЮМ
11 декабря 2024
Оценка:
Достоинства
Социальная инфраструктура
В «Космическом Квартале» можно отводить ребенка в детский сад за несколько минут. Школьники смогут ходить на занятия самостоятельно — рядом лицей № 4 и городские гимназии № 3 и «Ковчег». Есть все необходимое: магазины, кафе и салоны красоты на первых этажах домов. До крупных торговых центров «Акварель» и «Красный Кит» можно доехать на машине за 15–19 минут.
Ответить
Самый новый отзыв
ПК
25 марта
Оценка:
Взял квартиру с видом на будущий сквер. Прельстило, что почти от порога начинается зеленая зона это для города-то редкость. Из преимуществ еще отметил бы гостевые санузлы в планировках когда семья большая, это не роскошь, а необходимость. Смущает только шумиха вокруг какого-то старого НИИ по соседству. Но пока это на уровне разговоров
Ответить

Оставить отзыв

Добавьте отзыв, заполнив личные данные, или сначала войдите на сайт, тогда информация будет автоматически взята из личного профиля.
Оценка*