Рейтинг@Mail.ru
Переверните экран
Новостройки Квартиры Ипотека Новостройки Москвы Новостройки Подмосковья Новостройки Новой Москвы Готовые новостройки Новостройки на карте Акции от застройщиков Коммерческие помещения Продавцы и застройщики Панорамы новостроек Видеообзор новостроек Экспертиза новостроек Экология Москвы и Подмосковья Студии 1-комнатные 2-комнатные 3-комнатные Квартиры на карте Ипотечный калькулятор Семейная ипотека Военная ипотека Банки и программы Медиа Новости недвижимости Мнение эксперта Аналитика рынка Покупателю Экспертиза новостроек Эксперты и авторы О проекте Контакты Реклама на сайте Vk Youtube Telegram Дзен Машиноместа Апартаменты #траншевая ипотека #рассрочка IT-ипотека Квартиры со скидками до 40% Видео 360° новостроек Субсидированная застройщиком Rutube Поиск дома в Москве Программа реновации в Москве Новостройки премиум-класса Новостройки бизнес-класса Рассрочка Траншевая ипотека ГАЛС Дома и коттеджи Бизнес-центры Бизнес-центры в Москве Бизнес-центры рядом с метро Строящиеся бизнес-центры Бизнес-центры класса A Бизнес-центры класса B ЛСР
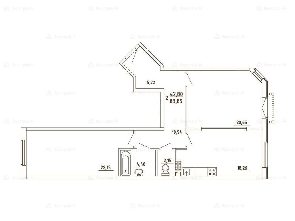
2-комн. квартира, 83.85 м2, 3 этаж
Срок сдачи 4 квартал 2025 года
13 585 293 
162 019 2
обновлено 13 декабря

Описание 2-комн. квартиры

Новостройка
Застройщик
Срок ГК
4 квартал 2025 года
Тип проекта
Общая площадь
83.85 м2
Жилая площадь
42.80 м2
Площадь кухни
18.26 м2
Этаж
3 / 4
Отделка
нет

Расположение 2-комн. квартиры

Метро
Пыхтино
26 мин.
Станция МЦД
Ж/Д-станция
Дом
1
Адрес
ул. Парковая, уч. 1, секция 6

Способы покупки

Особенности

Продается двухкомнатная квартира в новостройке ЖК «Грибовский лес» по адресу Московская область, Одинцовский район, Лесной городок Г/П, Бородки деревня , ул. Парковая, уч. 1. Общая площадь квартиры - 83.85 кв. м. Тип проекта, по которому построен дом — Монолит, компания-застройщик — ООО «Симон Джессо». Стоимость квартиры — 13 585 293 руб. Способы оплаты можно уточнить у продавца. Срок сдачи — 4 квартал 2025. Более подробная информация по телефону.
Инфоцентр новостроек
Инфоцентр новостроек
Время работы 9:00 — 21:00
Выбирайте квартиру в ЖК «Грибовский лес» по ценам от застройщика

Похожие квартиры в ЖК «Грибовский лес»

4 этаж
из 4 4 квартал 2025
Московская область, Лесной городок Г/П
Внуково
11 мин.
1
Корпус
нет
Отделка
3.00 м
Потолки
ЖК «Грибовский лес»
19 855 428
СберБанк, ВТБ
6.00%
Ставка
20.10%
Первый взнос
от 119 043 /мес.
Все варианты
Посмотреть все спецпредложения
Этаж 3/4
МО, ЖК «Грибовский лес»
Внуково
11 мин.
Строится
Этаж 4/4
МО, ЖК «Грибовский лес»
Внуково
11 мин.
Строится
Этаж 4/4
МО, ЖК «Грибовский лес»
Внуково
11 мин.
Строится
Посмотреть 6 квартир в ЖК «Грибовский лес»
Этаж 3/4
МО, ЖК «Грибовский лес»
Внуково
11 мин.
Строится
Этаж 3/4
МО, ЖК «Грибовский лес»
Внуково
11 мин.
Строится
Этаж 3/4
МО, ЖК «Грибовский лес»
Внуково
11 мин.
Строится
Этаж 4/4
МО, ЖК «Грибовский лес»
Внуково
11 мин.
Строится
Посмотреть 40 квартир в ЖК «Грибовский лес»
Этаж 4/4
МО, ЖК «Грибовский лес»
Внуково
11 мин.
Строится
Этаж 1/4
МО, ЖК «Грибовский лес»
Внуково
11 мин.
Строится
Этаж 1/4
МО, ЖК «Грибовский лес»
Внуково
11 мин.
Строится
Этаж 1/4
МО, ЖК «Грибовский лес»
Внуково
11 мин.
Строится
Посмотреть 31 квартира в ЖК «Грибовский лес»
Этаж 4/4
МО, ЖК «Грибовский лес»
Внуково
11 мин.
Строится
Этаж 4/4
МО, ЖК «Грибовский лес»
Внуково
11 мин.
Строится
Этаж 4/4
МО, ЖК «Грибовский лес»
Внуково
11 мин.
Строится
Этаж 4/4
МО, ЖК «Грибовский лес»
Внуково
11 мин.
Строится
Посмотреть 36 квартир в ЖК «Грибовский лес»
Этаж 1/4
МО, ЖК «Грибовский лес»
Внуково
11 мин.
Строится

Скидки и спецпредложения от застройщиков

ЖК «Грибовский лес» на карте

Выгодные предложения на новостройки

Отзывы о ЖК «Грибовский лес»

Самый полезный отзыв
А
04 мая 2018
Оценка:
Транспортная доступность
Экология
Планировки
Проект выглядит очень перспективно, не терпится посмотреть конечный результат! С местом для стройки явно угадали, редко где можно найти такую прекрасную природу, а когда она еще и рядом с домом, это просто здорово. В офисе продаж даже пообщался с будущими соседями и это очень приятные люди, в общем в предвкушении.
Ответить
Полезный отзыв?
Самый новый отзыв
МВ
10 ноября
Оценка:
Планировки
Способы покупки
Двор, окружение
Место хорошее, проект интересный, планировки продуманные, удобные, а то иногда 100 квадратов, а комнаты - мышиные норки
Ответить
Полезный отзыв?
Добавьте отзыв, заполнив личные данные, или сначала войдите на сайт, тогда информация будет автоматически взята из личного профиля.
Оценка*