Рейтинг@Mail.ru
Переверните экран
Новостройки Квартиры Ипотека Новостройки Москвы Новостройки Подмосковья Новостройки Новой Москвы Готовые новостройки Новостройки на карте Акции от застройщиков Коммерческие помещения Продавцы и застройщики Панорамы новостроек Видеообзор новостроек Экспертиза новостроек Экология Москвы и Подмосковья Студии 1-комнатные 2-комнатные 3-комнатные Квартиры на карте Ипотечный калькулятор Семейная ипотека Военная ипотека Банки и программы Медиа Новости недвижимости Мнение эксперта Аналитика рынка Покупателю Экспертиза новостроек Эксперты и авторы О проекте Контакты Реклама на сайте Vk Youtube Telegram Дзен Машиноместа Апартаменты #траншевая ипотека #рассрочка ИТ-ипотека Квартиры со скидками до 40% Видео 360° новостроек Субсидированная застройщиком Rutube Поиск дома в Москве Программа реновации в Москве Новостройки премиум-класса Новостройки бизнес-класса Рассрочка Траншевая ипотека Дома и коттеджи Коттеджные поселки в Новой Москве Готовые коттеджные поселки Строящиеся коттеджные поселки Коттеджные поселки в лесу Коттеджные поселки у водоема Коттеджные поселки в ипотеку Бизнес-центры Коттеджи Ипотека со ставкой 0,1%
Данная квартира является лидером продаж среди двухкомнатных квартир в ЖК «Городские истории» по данным Росреестра
2-комн. квартира, 86.70 м2, 16 этаж
Сдан
28 100 357 
324 110 2
обновлено 13 мая

Описание 2-комн. квартиры

Застройщик
Срок ГК
Дом сдан
Стадия строительства
выдача ключей + заселение
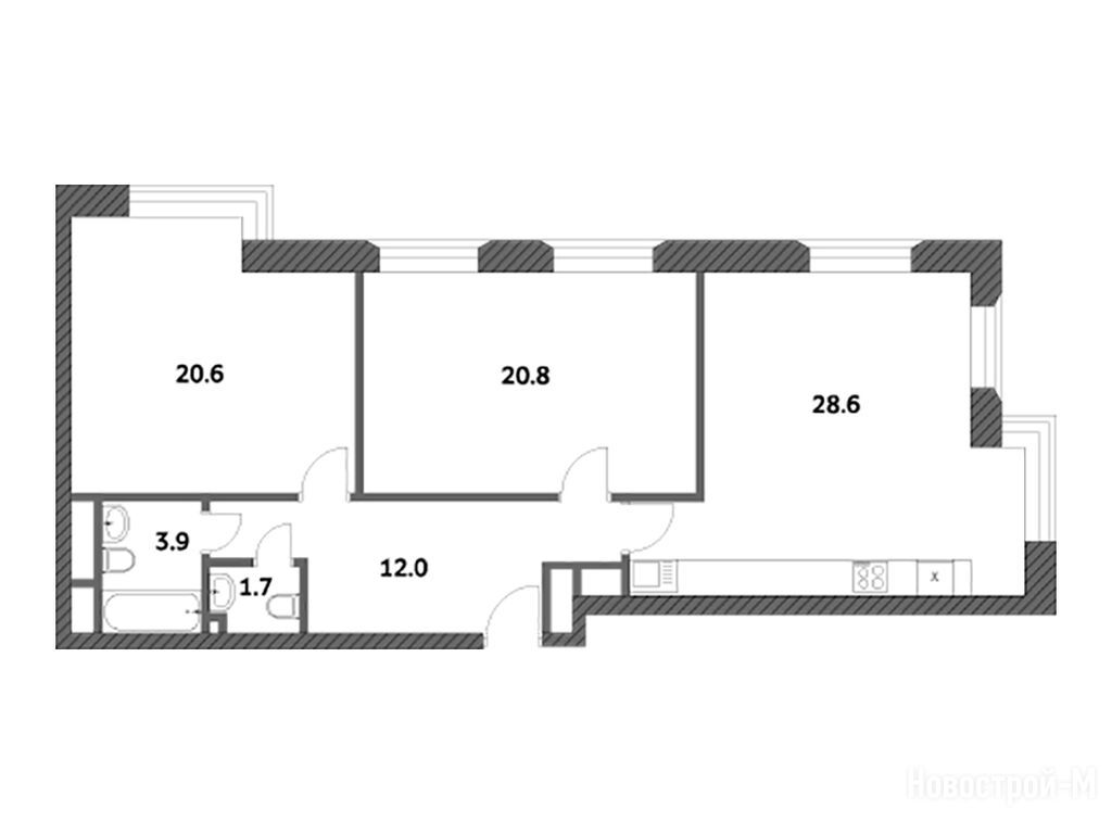
Общая площадь
86.70 м2
Жилая площадь
41.40 м2
Площадь кухни
28.60 м2
Этаж
16 / 23
Отделка
под чистовую
Мусоропровод
есть
Грузовой лифт
есть

Расположение 2-комн. квартиры

Локация
Метро
Дом
1 (11к.2 оч.)
Адрес
ул. Анны Ахматовой, д. 11, корп. 4, секция 2

Особенности

Продается двухкомнатная квартира в новостройке ЖК «Городские истории» по адресу Москва, ТиНАО, Новомосковский АО, Внуковское С/П, ул. Анны Ахматовой, д. 11, корп. 4. Общая площадь квартиры - 86.7 кв. м. Тип проекта, по которому построен дом — Монолит,Монолитно-кирпичный,Монолитно-каркасный, компания-застройщик — ТПУ «Рассказовка». Стоимость квартиры — 28 100 357 руб. Способы оплаты можно уточнить у продавца. Более подробная информация по телефону.

Правовые документы

Инфоцентр новостроек
Инфоцентр новостроек
+7 (499) 705-91-41
Время работы 9:00 — 21:00
Этаж 14/19
НМ, ЖК «Городские истории»
Рассказовка
1 мин.
Строится
студия 22,92 м2 10 964 011
Этаж 15/19
НМ, ЖК «Городские истории»
Рассказовка
1 мин.
Строится
студия 23,13 м2 10 688 836
Этаж 7/19
НМ, ЖК «Городские истории»
Рассказовка
1 мин.
Строится
студия 23,26 м2 10 995 932
Этаж 16/19
НМ, ЖК «Городские истории»
Рассказовка
1 мин.
Строится
Посмотреть 18 квартир в ЖК «Городские истории»
1-комн. квартира 33,28 м2 15 297 485
Этаж 17/19
НМ, ЖК «Городские истории»
Рассказовка
1 мин.
Строится
1-комн. квартира 35,30 м2 15 635 076
Этаж 19/19
НМ, ЖК «Городские истории»
Рассказовка
1 мин.
Строится
1-комн. квартира 36,49 м2 15 406 443
Этаж 16/19
НМ, ЖК «Городские истории»
Рассказовка
1 мин.
Строится
1-комн. квартира 36,57 м2 15 225 554
Этаж 11/19
НМ, ЖК «Городские истории»
Рассказовка
1 мин.
Строится
Посмотреть 25 квартир в ЖК «Городские истории»
2-комн. квартира 48,75 м2 18 407 025
Этаж 18/19
НМ, ЖК «Городские истории»
Рассказовка
1 мин.
Строится
2-комн. квартира 50,69 м2 18 779 631
Этаж 16/19
НМ, ЖК «Городские истории»
Рассказовка
1 мин.
Строится
2-комн. квартира 50,83 м2 17 501 409
Этаж 13/19
НМ, ЖК «Городские истории»
Рассказовка
1 мин.
Строится
2-комн. квартира 53,38 м2 18 131 029
Этаж 16/19
НМ, ЖК «Городские истории»
Рассказовка
1 мин.
Строится
Посмотреть 50 квартир в ЖК «Городские истории»
3-комн. квартира 66,90 м2 22 402 803
Этаж 23/23
НМ, ЖК «Городские истории»
Рассказовка
1 мин.
Сдан
3-комн. квартира 71,87 м2 21 289 489
Этаж 18/19
НМ, ЖК «Городские истории»
Рассказовка
1 мин.
Строится
3-комн. квартира 72,36 м2 21 981 506
Этаж 18/19
НМ, ЖК «Городские истории»
Рассказовка
1 мин.
Строится
3-комн. квартира 85,09 м2 25 706 540
Этаж 13/19
НМ, ЖК «Городские истории»
Рассказовка
1 мин.
Строится
Посмотреть 22 квартиры в ЖК «Городские истории»

Скидки и спецпредложения от застройщиков

ЖК «Городские истории» на карте

Выгодные предложения на новостройки

Отзывы о ЖК «Городские истории»

Самый полезный отзыв
С
17 сентября 2018
Оценка:
Достоинства
Транспортная доступность
Внешний вид фасада
Расположение
Симпатичный проект, экология, метро рядом, мкад недалеко, осталось цены узнать, сообщите, когда появится информация
Ответить
Самый новый отзыв
АМ
08 июля 2025
Оценка:
Достоинства
Транспортная доступность
Планировки
Способы покупки
Внешний вид фасада
Двор, окружение
Расположение
Прекрасная возможность, Мичуринский парк в 20 минутах ходьбы от ЖК, можно проводить время на природе. Здорово, там устраивают пикники и рыбачат, значит, всегда будет чем заняться в выходные. Сам комплекс выглядит привлекательно, с современными архитектурными решениями. Надеюсь, застройщик уделит внимание благоустройству прилегающей территории.
Ответить

Оставить отзыв

Добавьте отзыв, заполнив личные данные, или сначала войдите на сайт, тогда информация будет автоматически взята из личного профиля.
Оценка*