Рейтинг@Mail.ru
Переверните экран
Новостройки Квартиры Ипотека Новостройки Москвы Новостройки Подмосковья Новостройки Новой Москвы Готовые новостройки Новостройки на карте Акции от застройщиков Коммерческие помещения Продавцы и застройщики Панорамы новостроек Видеообзор новостроек Экспертиза новостроек Экология Москвы и Подмосковья Студии 1-комнатные 2-комнатные 3-комнатные Квартиры на карте Ипотечный калькулятор Семейная ипотека Военная ипотека Банки и программы Медиа Новости недвижимости Мнение эксперта Аналитика рынка Покупателю Экспертиза новостроек Эксперты и авторы О проекте Контакты Реклама на сайте Vk Youtube Telegram Дзен Машиноместа Апартаменты #траншевая ипотека #рассрочка IT-ипотека Квартиры со скидками до 35% Видео 360° новостроек Субсидированная застройщиком Rutube Поиск дома в Москве Программа реновации в Москве Новостройки премиум-класса Новостройки бизнес-класса Рассрочка Траншевая ипотека Дома и коттеджи Бизнес-центры Бизнес-центры в Москве Бизнес-центры рядом с метро Строящиеся бизнес-центры Бизнес-центры класса A Бизнес-центры класса B
Данная квартира является лидером продаж среди двухкомнатных квартир в ЖК «Детали» по данным Росреестра
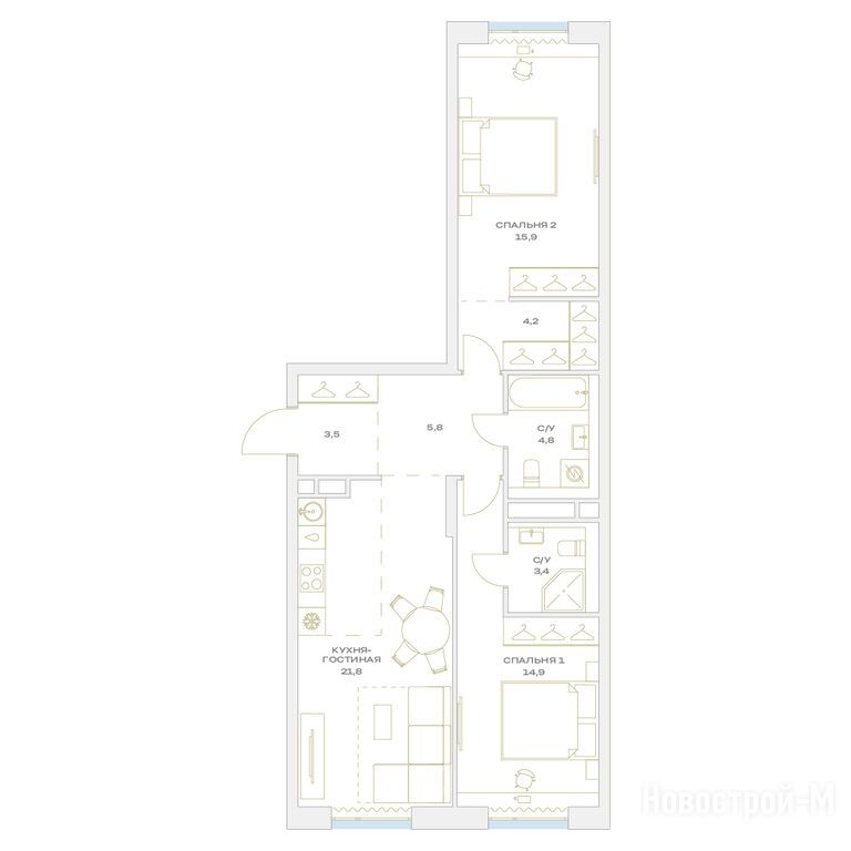
2-комн. квартира, 74.30 м2, 8 этаж
Срок сдачи 4 квартал 2026 года
23 839 006 
320 848 2
обновлено 5 февраля

Описание 2-комн. квартиры

Новостройка
Срок ГК
4 квартал 2026 года
Стадия строительства
монтаж верхних этажей
Общая площадь
74.30 м2
Жилая площадь
47.40 м2
Площадь кухни
21.80 м2
Этаж
8 / 15
Грузовой лифт
есть

Расположение 2-комн. квартиры

Локация
Метро
Станция МЦД
Станция МЦК
Лужники
43 мин.
Дом
2
Адрес
ул Харлампиева, вл. 32, корп. 2, секция 14

Способы покупки

Особенности

Продается двухкомнатная квартира в новостройке ЖК «Детали» по адресу Москва, ТиНАО, Новомосковский АО, Филимонковское С/П, Марьино пос., ул Харлампиева, вл. 32, корп. 2. Общая площадь квартиры - 74.3 кв. м. Тип проекта, по которому построен дом — Монолитно-кирпичный, компания-застройщик — Plus Development. Стоимость квартиры — 23 839 006 руб. Способы оплаты можно уточнить у продавца. Срок сдачи — 4 квартал 2026. Более подробная информация по телефону.
Инфоцентр новостроек
Инфоцентр новостроек
+7 (499) 705-91-41
Время работы 9:00 — 21:00

Похожие квартиры в ЖК «Детали»

6 этаж
из 15 4 квартал 2026
Москва, Филимонковское С/П
Десна (2028)
10 мин.
2
Корпус
нет данных
Отделка
2.70 м
Потолки
ЖК «Детали»
23 742 320
ВТБ, Альфа-Банк, Промсвязьбанк, СберБанк, Совкомбанк, Банк Санкт-Петербург, Металлинвестбанк, Абсолют Банк, Банк Россия, Примсоцбанк, ДОМ.РФ, Уралсиб, Московский Кредитный Банк
6.00%
Ставка
40.10%
Первый взнос
от 142 347 /мес.
Все варианты
7 этаж
из 15 4 квартал 2026
Москва, Филимонковское С/П
Десна (2028)
10 мин.
2
Корпус
нет данных
Отделка
2.70 м
Потолки
ЖК «Детали»
23 742 320
ВТБ, Альфа-Банк, Промсвязьбанк, СберБанк, Совкомбанк, Банк Санкт-Петербург, Металлинвестбанк, Абсолют Банк, Банк Россия, Примсоцбанк, ДОМ.РФ, Уралсиб, Московский Кредитный Банк
6.00%
Ставка
40.10%
Первый взнос
от 142 347 /мес.
Все варианты
10 этаж
из 15 4 квартал 2026
Москва, Филимонковское С/П
Десна (2028)
10 мин.
2
Корпус
нет данных
Отделка
2.70 м
Потолки
ЖК «Детали»
23 839 006
ВТБ, Альфа-Банк, Промсвязьбанк, СберБанк, Совкомбанк, Банк Санкт-Петербург, Металлинвестбанк, Абсолют Банк, Банк Россия, Примсоцбанк, ДОМ.РФ, Уралсиб, Московский Кредитный Банк
6.00%
Ставка
40.10%
Первый взнос
от 142 927 /мес.
Все варианты
Посмотреть все спецпредложения
студия 23,80 м2 13 410 117
Этаж 12/22
НМ, ЖК «Детали»
Десна (2028)
10 мин.
Строится
студия 24,10 м2 13 622 043
Этаж 15/22
НМ, ЖК «Детали»
Десна (2028)
10 мин.
Строится
студия 24,30 м2 13 052 557
Этаж 2/22
НМ, ЖК «Детали»
Десна (2028)
10 мин.
Строится
студия 25,50 м2 13 399 989
Этаж 9/18
НМ, ЖК «Детали»
Десна (2028)
10 мин.
Строится
Посмотреть 6 квартир в ЖК «Детали»
1-комн. квартира 33,50 м2 12 688 782
Этаж 14/22
НМ, ЖК «Детали»
Десна (2028)
10 мин.
Строится
1-комн. квартира 35,50 м2 13 510 636
Этаж 2/10
НМ, ЖК «Детали»
Десна (2028)
10 мин.
Строится
1-комн. квартира 36,30 м2 13 680 298
Этаж 4/22
НМ, ЖК «Детали»
Десна (2028)
10 мин.
Строится
1-комн. квартира 36,60 м2 13 847 226
Этаж 10/22
НМ, ЖК «Детали»
Десна (2028)
10 мин.
Строится
Посмотреть 59 квартир в ЖК «Детали»
2-комн. квартира 59,80 м2 19 577 312
Этаж 18/22
НМ, ЖК «Детали»
Десна (2028)
10 мин.
Строится
2-комн. квартира 60,30 м2 19 658 753
Этаж 13/22
НМ, ЖК «Детали»
Десна (2028)
10 мин.
Строится
2-комн. квартира 60,70 м2 19 231 897
Этаж 15/16
НМ, ЖК «Детали»
Десна (2028)
10 мин.
Строится
2-комн. квартира 60,90 м2 20 732 534
Этаж 4/13
НМ, ЖК «Детали»
Десна (2028)
10 мин.
Строится
Посмотреть 75 квартир в ЖК «Детали»
3-комн. квартира 74,60 м2 19 919 655
Этаж 8/22
НМ, ЖК «Детали»
Десна (2028)
10 мин.
Строится
3-комн. квартира 75,30 м2 20 209 526
Этаж 15/22
НМ, ЖК «Детали»
Десна (2028)
10 мин.
Строится
3-комн. квартира 76,30 м2 20 477 913
Этаж 18/22
НМ, ЖК «Детали»
Десна (2028)
10 мин.
Строится
3-комн. квартира 80,20 м2 23 139 224
Этаж 3/16
НМ, ЖК «Детали»
Десна (2028)
10 мин.
Строится
Посмотреть 59 квартир в ЖК «Детали»

Скидки и спецпредложения от застройщиков

ЖК «Детали» на карте

Выгодные предложения на новостройки

Отзывы о ЖК «Детали»

Самый полезный отзыв
Ю
24 ноября 2023
Оценка:
Планируем переезд в Москву, поэтому рассматриваем разные варианты квартир в строящихся домах. Выбрали этот экологически чистый уголок Новой Москвы, потому что хотим максимально обезопасить детей от негативного влияния окружающей среды. Здесь нет вредных производств, а корпуса жилого комплекса находятся в непосредственной близости к парку Марьино. Рядом течет живописная река Незнайка, в лесу расположена старинная усадьба "Валуево". Сам жилой комплекс уникальный в своем роде, гармонично вписывается в окружающую среду. Думаю, не только детям, но и нам будет интересно устраивать небольшие путешествия в выходные дни. Покупку квартиры оформляем в ипотеку. Оставили заявку на сайте, после чего с нами связался менеджер. Выслушав пожелания, предложил нам варианты, рассказал об акциях и скидках, отправил запрос в банк. Далее мы согласовали условия договора, ждем одобрения.
Ответить
Полезный отзыв?
Самый новый отзыв
ДК
17 декабря 2025
Оценка:
Транспортная доступность
До транспорта близко - по времени выходит рационально. Ближайшее метро - Филатов луг, в проекте строительства станции Десна, который будет ближе в два раза
Ответить
Полезный отзыв?
Добавьте отзыв, заполнив личные данные, или сначала войдите на сайт, тогда информация будет автоматически взята из личного профиля.
Оценка*